東大阪市衣摺4丁目の新築戸建
NEW 11.27掲載情報更新日:2025年11月23日 次回更新予定日:2025年12月07日
- 3,280万円
-
- 借入ご希望金額
万円 - 借入期間
年 - 借入金利
% - 月々のお支払い金額
円
- 借入ご希望金額
※ 月々のお支払例は目安の試算となりますので、実際の金額とは異なる場合がございます。詳しくは店舗までお問合わせください。
- 東大阪市衣摺4丁目
-
近鉄大阪線『弥刀』 徒歩16分 (約1220m)
JRおおさか東線『衣摺加美北』 徒歩11分 (約880m)
近鉄大阪線『長瀬』 徒歩17分 (約1340m)
東大阪市衣摺4丁目一戸建て | 物件情報
物件の設備
- 電気
- 上水道
- カウンターキッチン
- ユニットバス
- 浴室乾燥機
- オートロック
- LDK15畳以上
- シャッター雨戸
- ウォークインクローゼット
物件の特徴
- 3階建以上
物件詳細情報
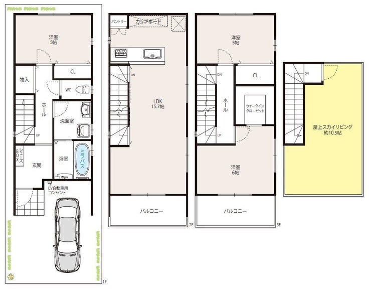
| 価格 | 3,280万円 | 間取り | 3LDK |
|---|---|---|---|
| 物件種別 | 新築一戸建て | ||
| 所在地 | 大阪府東大阪市衣摺4丁目 | ||
| アクセス |
|
||
| 建物面積 | 公95.33㎡ | 駐車場 | あり |
| 築年月 | 2025年(令和7年)07月築 | 建築確認 | |
| 建物構造 | 木造 3階建 | 工法 | |
| 主要採光 | 西向 | バルコニー | |
| 保証・評価 | |||
| 土地面積 | 公60.79㎡(18.38坪) | 接道 | 西側(公道)幅 約4.0m |
| 私道 | セットバック | ||
| 地目 | 宅地 | 地勢 | |
| 権利 | 所有権 |
||
| 都市計画 | 市街化区域 |
用途地域 | 2種住居 |
| 建ぺい/容積率 | 70% / 160% | 土地国土法 | |
| 許可番号 | 建築基準法 | ||
| 法令制限 | |||
| 小学区 | 長瀬南小学校 徒歩8分 (約580m) | 中学区 | 長瀬中学校 徒歩7分 (約560m) |
| 現況 | 完工済 | 引渡 | 相談 |
| その他費用 | |||
| 周辺環境 | 金岡中学校 徒歩9分 (約660m) 長瀬南小学校 徒歩8分 (約580m) 長瀬中学校 徒歩7分 (約560m) 近鉄弥刀駅 徒歩10分 (約750m) 長瀬北小学校 徒歩12分 (約950m) 弥刀小学校 徒歩15分 (約1190m) |
||
| 備考 | |||
| 物件番号 | 4503319 | 取引態様 | 媒介 |
取扱店舗情報
ハウスドゥ 東大阪中小阪 株式会社HouseNext 店舗詳細ページへ
| 電話番号 | 06-6720-8367 |
|---|---|
| 所在地 | 〒577-0804 大阪府東大阪市中小阪1丁目7-10-101 |
| 営業時間 | 9:00~18:00 |
| 定休日 | 年末年始(営業時間外でもご相談ください) |
| 宅建免許番号 | 大阪府知事(1)第66514号 |
| アクセス | 店舗への地図はこちら |

来店ご予約
大阪府東大阪市で価格が似ている物件はこちら
- 大阪府
マイページ物件数 - 15,484件
最近見た物件
-
-

-
- 新築一戸建て
- 2,799万円
-
稲沢市田代1丁目
-
名鉄津島線青塚
-
大阪府新築一戸建て新着物件
- お近くの店舗を探す
-
おすすめ物件
-
-

-
- 新築一戸建て
- 2,948万円
-
泉大津市松之浜町2丁目
-
南海電鉄本線松ノ浜
-
-
-

-
- 新築一戸建て
- 4,780万円
-
堺市北区新金岡町5丁
-
大阪市御堂筋線新金岡
-
-
-

-
- 新築一戸建て
- 4,280万円
-
堺市北区金岡町
-
大阪市御堂筋線新金岡
-
-
-

-
- 新築一戸建て
- 3,480万円
-
茨木市橋の内1丁目
-
阪急電鉄京都線総持寺
-
-
-

-
- 新築一戸建て
- 4,680万円
-
茨木市島2丁目
-
阪急電鉄京都線南茨木
-
-
-

-
- 新築一戸建て
- 4,580万円
-
大阪市西淀川区佃3丁目
-
阪神電鉄本線千船
-
-
-

-
- 新築一戸建て
- 4,580万円
-
大阪市淀川区新北野3丁目
-
JR東海道線塚本
-
-
-

-
- 新築一戸建て
- 5,080万円
-
大阪市住之江区粉浜西3丁目
-
南海電鉄本線住吉大社
-
-
-

-
- 新築一戸建て
- 5,180万円
-
高槻市北昭和台町
-
阪急電鉄京都線総持寺
-
-
-

-
- 新築一戸建て
- 4,680万円
-
茨木市島2丁目
-
阪急電鉄京都線南茨木
-

























