小中学校が徒歩10分圏内♪セルリアンステージ周南市江の宮町
掲載情報更新日:2026年04月25日 次回更新予定日:2026年05月09日
- 3,780万円
-
- 借入ご希望金額
万円 - 借入期間
年 - 借入金利
% - 月々のお支払い金額
円
- 借入ご希望金額
※ 月々のお支払例は目安の試算となりますので、実際の金額とは異なる場合がございます。詳しくは店舗までお問合わせください。
- 周南市江の宮町
-
JR山陽本線『徳山』 車12分(約3.9km)
小中学校が徒歩10分圏内♪セルリアンステージ周南市江の宮町一戸建て | 物件情報
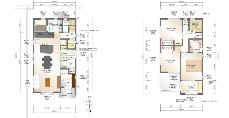
オール電化 秋月小学校・秋月中学校エリアです♪
◇ご家族みんながゆったりくつろげる広々リビング
◆ご家族の思い出も大切にしまっておけるたっぷり収納
◇1階ホールにはファミリークロークもあります♪
◆セカンドカーにも便利な駐車3台以上駐車可能
◇外構付き
◆II型アイランドキッチン(ドゥーブルキッチン)
物件の設備
- 電気
- オール電化
- 公営水道
- 公共下水
- 食器乾燥機
- 食器洗浄乾燥機
- IHクッキングヒータ
- アイランドキッチン
- バス
- トイレ
- トイレ2箇所
- LDK15畳以上
- LDK18畳以上
- 和室
- クローゼット
- クローゼット2箇所
- ウォークインクローゼット
- 床下収納
- 全居室収納
- シューズボックス
- サンルーム
物件の特徴
- 小学校徒歩10分以内
- 前道6m以上
- 南側道路面す
- 通風良好
- 陽当り良好
- 2階建
物件詳細情報
| 価格 | 3,780万円 | 間取り | 3LDK+S |
|---|---|---|---|
| 物件種別 | 新築一戸建て | ||
| 所在地 | 山口県周南市江の宮町 ①号棟 | ||
| アクセス |
|
||
| 建物面積 | 公105.68㎡ | 駐車場 | あり 普通:3台 |
| 築年月 | 2026年(令和8年)05月予定 | 建築確認 | R7建確建住セ岩第0247号 |
| 建物構造 | 木造 2階建 | 工法 | |
| 主要採光 | 南向 | バルコニー | |
| 保証・評価 | |||
| 分譲情報 | 【販売戸数】:2戸 |
||
| 土地面積 | 公182.48㎡(55.20坪) | 接道 | 南側(公道)幅 約6.0m |
| 私道 | セットバック | ||
| 地目 | 宅地 | 地勢 | |
| 権利 | 所有権 |
||
| 都市計画 | 市街化区域 |
用途地域 | 1種低層 |
| 建ぺい/容積率 | 50% / 80% | 土地国土法 | |
| 許可番号 | 建築基準法 | ||
| 法令制限 | |||
| 小学区 | 秋月小学校 徒歩8分 (約630m) | 中学区 | 秋月中学校 徒歩9分 (約720m) |
| 現況 | 建築中 | 引渡 | 期日指定:2026年05月以降 |
| その他費用 | |||
| 周辺環境 | 秋月小学校 徒歩8分 (約630m) 秋月中学校 徒歩9分 (約720m) セブン-イレブン 周南江の宮店 徒歩5分 (約400m) クスリ岩崎チェーン 徳山秋月店 徒歩6分 (約410m) アルク 秋月店 徒歩9分 (約690m) |
||
| 備考 | ※省エネ基準適合住宅 ※外壁光セラ(KMEW) ※制振ダンパー(住友ゴム"MAMORY") ※フラット35S(金利Bプラン)対応 ※瑕疵担保責任保険(まもりすまい保険) ※オール電化(エコキュート) ※IHクッキングヒーター ※食器洗乾燥機 ※浴室乾燥機能 ※カップボード ※1F・2Fウォッシュレットトイレ ※オールLow-Eペアガラス ※アルミ樹脂複合サッシ ※玄関ドア電子錠 ※南向きのひろびろバルコニー ※南向きのサンルーム(2階主寝室) ※3台以上駐車可 ※外構付き |
||
| 物件番号 | 4507271 | 取引態様 | 媒介 |
取扱店舗情報
ハウスドゥ 周南城ケ丘 株式会社田村ビルズ 店舗詳細ページへ
| 電話番号 | 0834-34-1107 |
|---|---|
| 所在地 | 〒745-0807 山口県周南市城ケ丘1丁目2-32 |
| 営業時間 | 9:30~18:00 |
| 定休日 | 水曜日、第2・第3・第4・第5木曜日 |
| 宅建免許番号 | 国土交通大臣(2)第9501号 |
| アクセス | 店舗への地図はこちら |

来店ご予約
山口県周南市で価格が似ている物件はこちら
- 山口県
マイページ物件数 - 3,262件
最近見た物件
-
-

-
- 新築一戸建て
- 3,580万円
-
相模原市中央区青葉2丁目
-
JR横浜線淵野辺
-
-
-

-
- 土地
- 798万円
-
新潟市江南区亀田水道町4丁目
-
JR信越本線亀田
-
-
-

-
- 中古一戸建て
- 1,988万円
-
熊本市南区御幸笛田4丁目
-
JR豊肥本線平成
-
山口県新築一戸建て新着物件
-
-

-
- 新築一戸建て
- 3,870万円
-
下関市王喜本町2丁目
-
JR山陽本線小月駅
-
-
-

-
- 新築一戸建て
- 3,980万円
-
周南市秋月1丁目
-
JR山陽本線徳山駅
-
-
-

-
- 新築一戸建て
- 3,980万円
-
周南市秋月1丁目
-
JR山陽本線徳山駅
-
-
-

-
- 新築一戸建て
- 4,380万円
-
下関市川中本町1丁目
-
JR山陰本線綾羅木駅
-
-
-

-
- 新築一戸建て
- 4,350万円
-
下関市川中本町1丁目
-
JR山陰本線綾羅木駅
-
-
-

-
- 新築一戸建て
- 3,880万円
-
岩国市尾津町2丁目
-
JR山陽本線南岩国駅
-
-
-

-
- 新築一戸建て
- 3,780万円
-
岩国市尾津町2丁目
-
JR山陽本線南岩国駅
-
- お近くの店舗を探す
-
おすすめ物件
-
-

-
- 新築一戸建て
- 3,198万円
-
下関市川中本町
-
JR山陰本線綾羅木
-
-
-

-
- 新築一戸建て
- 2,480万円
-
防府市新田1丁目
-
JR山陽本線防府
-
-
-

-
- 新築一戸建て
- 2,998万円
-
防府市大字仁井令
-
JR山陽本線防府
-
-
-

-
- 新築一戸建て
- 3,398万円
-
下関市武久町1丁目
-
JR山陽本線幡生
-
-
-

-
- 新築一戸建て
- 2,698万円
-
宇部市大小路2丁目
-
JR宇部線東新川
-
-
-

-
- 新築一戸建て
- 2,598万円
-
防府市大字牟礼
-
JR山陽本線防府
-
-
-

-
- 新築一戸建て
- 2,998万円
-
宇部市草江3丁目
-
JR宇部線草江
-
-
-

-
- 新築一戸建て
- 3,980万円
-
下松市瑞穂町2丁目
-
JR山陽本線下松
-
-
-

-
- 新築一戸建て
- 3,880万円
-
下松市瑞穂町2丁目
-
JR山陽本線下松
-
-
-

-
- 新築一戸建て
- 2,998万円
-
防府市伊佐江町
-
JR山陽本線防府
-





















担当エージェント:松尾 翔
1階には、小上がりのある畳コーナー(下部収納付)があります。すぐ横になれる、みんながほっと一息つける空間です。
2階の主寝室には、ウォークインクローゼットがあります。 スーパーやドラッグストアも近くて嬉しいですね♪