鹿児島市田上台4丁目の新築戸建
掲載情報更新日:2026年05月02日 次回更新予定日:2026年05月16日
- 3,290万円
-
- 借入ご希望金額
万円 - 借入期間
年 - 借入金利
% - 月々のお支払い金額
円
- 借入ご希望金額
※ 月々のお支払例は目安の試算となりますので、実際の金額とは異なる場合がございます。詳しくは店舗までお問合わせください。
- 鹿児島市田上台4丁目
-
JR鹿児島本線『広木』 徒歩19分 (約1520m)
鹿児島市田上台4丁目一戸建て | 物件情報
長期優良住宅!国産ブランド桧を使った高級志向の新築モデルハウス販売中です!
※マウスを乗せると画像が切り替わります。
【ライフインフォメーション】
〇広木小学校まで徒歩約19分(約1.5km)
〇紫原中学校まで徒歩約23分(約1.8km)
〇コープ田上店まで徒歩約13分(約1.0km)
〇しまむら田上店まで徒歩約16分(約1.1km)
物件の設備
- 電気
- オール電化
- 上水道
- 公営水道
- 下水道
- 給湯
- 食器洗浄乾燥機
- IHクッキングヒータ
- 電気コンロ
- コンロ二口
- グリル
- システムキッチン
- バス
- オートバス
- バス1坪以上
- 追焚機能
- 浴室暖房
- 浴室乾燥機
- トイレ
- トイレ2箇所
- 温水洗浄便座
- 室内洗濯機置場
- 洗髪洗面化粧台
- エアコン
- 照明器具
- ダウンライト
- リビング階段
- 人感照明センサー
- 省エネ給湯器
- ディンプルキー
- モニタ付インターホン
- 火災警報器/報知機
- LDK15畳以上
- 2面採光
- 天井高2.5m以上
- 複層ガラス
- 全居室複層ガラス
- フローリング
- クッションフロア
- 24時間換気システム
- 網戸
- ウォークインクローゼット
- バルコニー
- ワイドバルコニー
- サンルーム
物件の特徴
- 南向
- 高断熱住宅
- 地盤調査済
- 耐震構造
- 前道6m以上
- 南側道路面す
- スーパーが近い
- 閑静な住宅街
- 2階建
- 角地
- 平坦地
- 整形地
- 外壁サイディング
- BELS/省エネ基準適合
- 省エネルギー対策
物件詳細情報
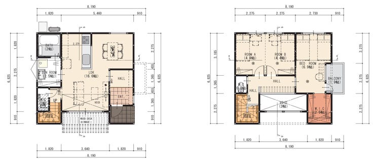
| 価格 | 3,290万円 | 間取り | 3LDK |
|---|---|---|---|
| 物件種別 | 新築一戸建て | ||
| 所在地 | 鹿児島県鹿児島市田上台4丁目 | ||
| アクセス |
|
||
| 建物面積 | 実85.28㎡ | 駐車場 | あり 普通:1台 軽:2台 |
| 築年月 | 2026年(令和8年)05月予定 | 建築確認 | 第鹿建1250841号 |
| 建物構造 | 木造 2階建 | 工法 | 軸組工法 |
| 主要採光 | 南向 | バルコニー | 東向3.11㎡ |
| 保証・評価 | |||
| 土地面積 | 公138.45㎡(41.88坪) | 接道 | 南側(公道)幅 約9.6m 間口 約11.96m |
| 私道 | セットバック | ||
| 地目 | 宅地 | 地勢 | 平坦 |
| 権利 | 所有権 |
||
| 都市計画 | 市街化区域 |
用途地域 | 2種低層 |
| 建ぺい/容積率 | 50% / 80% | 土地国土法 | |
| 許可番号 | 建築基準法 | ||
| 法令制限 | |||
| 小学区 | 広木小学校 徒歩19分 (約1500m) | 中学区 | 紫原中学校 徒歩23分 (約1800m) |
| 現況 | 未着工 | 引渡 | 未記入 |
| その他費用 | |||
| 周辺環境 | 広木小学校 徒歩21分 (約1630m) 紫原中学校 徒歩23分 (約1840m) コープ田上店 徒歩13分 (約990m) セブン-イレブン 鹿児島紫原7丁目店 徒歩18分 (約1370m) |
||
| 備考 | |||
| 物件番号 | 4507598 | 取引態様 | 売主 |
取扱店舗情報
| 電話番号 | 0995-73-3778 |
|---|---|
| 所在地 | 〒899-5431 鹿児島県姶良市西餅田134番地14 |
| 営業時間 | 8:30~17:30 |
| 定休日 | 水曜日、木曜日 |
| 宅建免許番号 | 鹿児島県知事(4)第5597号 |
| アクセス | 店舗への地図はこちら |

来店ご予約
鹿児島県鹿児島市で価格が似ている物件はこちら
![]()
![]()
-
- 新築一戸建て 2025.02.03
-
-
- 3,290万円
-
鹿児島市吉野町
-
菖蒲谷運動場前まで徒歩2分
- 4LDK
-
-
- 新築一戸建て 2025.02.03
-
-
- 3,220万円
-
鹿児島市吉野町
-
菖蒲谷運動場前まで徒歩2分
- 4LDK
-
-
- 新築一戸建て 2025.05.09
-
-
- 3,280万円
-
鹿児島市桜ヶ丘7丁目
-
JR指宿枕崎線「宇宿駅」まで車6分
- 3LDK
-
-
- 新築一戸建て 2025.05.13
-
-
- 3,380万円
-
鹿児島市紫原6丁目
-
JR指宿枕崎線「郡元駅」まで徒歩23分
- 3LDK
-
-
- 新築一戸建て 2025.08.23
-
-
- 3,390万円
-
鹿児島市伊敷台4丁目
-
市営伊敷ニュータウン東バス停まで徒歩4分
- 5LDK+S
-
-
- 新築一戸建て 2025.08.23
-
-
- 3,350万円
-
鹿児島市伊敷台4丁目
-
市営伊敷ニュータウン東バス停まで徒歩4分
- 4LDK+S
-
-
- 新築一戸建て 2025.08.28
-
-
- 3,300万円
-
鹿児島市吉野町
-
南国中別府バス停まで徒歩1分
- 4LDK
-
-
- 新築一戸建て 2025.08.28
-
-
- 3,200万円
-
鹿児島市吉野町
-
南国中別府バス停まで徒歩1分
- 3LDK
-
-
- 新築一戸建て 2025.08.28
-
-
- 3,350万円
-
鹿児島市吉野町
-
南国中別府バス停まで徒歩1分
- 4LDK
-
-
- 新築一戸建て 2025.08.28
-
-
- 3,300万円
-
鹿児島市吉野町
-
南国中別府バス停まで徒歩2分
- 4LDK
-
-
- 新築一戸建て 2025.08.28
-
-
- 3,350万円
-
鹿児島市吉野町
-
南国中別府バス停まで徒歩2分
- 4LDK
-
-
- 新築一戸建て 2025.08.28
-
-
- 3,200万円
-
鹿児島市吉野町
-
南国中別府バス停まで徒歩2分
- 3LDK
-
-
- 新築一戸建て 2025.08.28
-
-
- 3,300万円
-
鹿児島市吉野町
-
南国中別府まで徒歩3分
- 4LDK
-
-
- 新築一戸建て 2025.08.28
-
-
- 3,350万円
-
鹿児島市吉野町
-
南国中別府まで徒歩3分
- 4LDK
-
-
- 新築一戸建て 2025.08.28
-
-
- 3,200万円
-
鹿児島市吉野町
-
南国中別府まで徒歩2分
- 3LDK
-
-
- 新築一戸建て 2025.08.28
-
-
- 3,200万円
-
鹿児島市吉野町
-
中別府中まで徒歩3分
- 3LDK
-
-
- 新築一戸建て 2025.08.28
-
-
- 3,350万円
-
鹿児島市吉野町
-
中別府中まで徒歩3分
- 4LDK
-
-
- 新築一戸建て 2025.08.28
-
-
- 3,300万円
-
鹿児島市吉野町
-
中別府中まで徒歩3分
- 4LDK
-
-
- 新築一戸建て 2025.09.07
-
-
- 3,190万円
-
鹿児島市和田3丁目
-
JR指宿枕崎線「慈眼寺駅」まで徒歩18分
- 4LDK
-
-
- 新築一戸建て 2025.10.04
-
-
- 3,298万円
-
鹿児島市桜ヶ丘6丁目
-
鹿交桜ヶ丘六丁目公園前まで徒歩3分
- 3LDK
-
-
- 新築一戸建て 2025.10.04
-
-
- 3,298万円
-
鹿児島市桜ヶ丘6丁目
-
JR指宿枕崎線「宇宿駅」まで徒歩24分
- 3LDK+S
-
-
- 新築一戸建て 2025.10.04
-
-
- 3,298万円
-
鹿児島市桜ヶ丘6丁目
-
JR指宿枕崎線「宇宿駅」まで徒歩24分
- 3LDK
-
-
- 新築一戸建て 2025.10.10
-
-
- 3,380万円
-
鹿児島市城山1丁目
-
JR日豊本線「鹿児島駅」まで車10分
- 3LDK+S
-
-
- 新築一戸建て 2025.10.10
-
-
- 3,380万円
-
鹿児島市城山1丁目
-
市営座禅石公園バス停まで徒歩2分
- 3LDK
-
-
- 新築一戸建て 2025.10.10
-
-
- 3,380万円
-
鹿児島市城山1丁目
-
市電唐湊線「市役所前駅」まで徒歩25分
- 3LDK
-
-
- 新築一戸建て 2025.10.19
-
-
- 3,298万円
-
鹿児島市草牟田2丁目
-
JR日豊本線「鹿児島駅」まで車10分
- 3LDK
-
-
- 新築一戸建て 2025.10.19
-
-
- 3,298万円
-
鹿児島市草牟田2丁目
-
南国草牟田小前まで徒歩4分
- 3LDK
-
-
- 新築一戸建て 2025.10.21
-
-
- 3,298万円
-
鹿児島市草牟田2丁目
-
市営草牟田小学校前バス停まで徒歩5分
- 3LDK
-
-
- 新築一戸建て 2025.10.26
-
-
- 3,190万円
-
鹿児島市和田3丁目
-
JR指宿枕崎線「坂之上駅」まで徒歩18分
- 4LDK
-
-
- 新築一戸建て 2025.10.31
-
-
- 3,249万円
-
鹿児島市桜ヶ丘8丁目
-
JR指宿枕崎線「宇宿駅」まで徒歩13分
- 4LDK
-
-
- 新築一戸建て 2025.11.07
-
-
- 3,249万円
-
鹿児島市桜ヶ丘8丁目
-
JR指宿枕崎線「宇宿駅」まで徒歩14分
- 4LDK+S
-
-
- 新築一戸建て 2025.11.16
-
-
- 3,298万円
-
鹿児島市草牟田2丁目
-
市電唐湊線「水族館口駅」まで徒歩26分
- 3LDK
-
-
- 新築一戸建て 2025.11.17
-
-
- 3,380万円
-
鹿児島市東坂元4丁目
-
JR鹿児島本線「鹿児島駅」まで徒歩35分
- 4LDK
-
-
- 新築一戸建て 2025.12.07
-
-
- 3,250万円
-
鹿児島市田上6丁目
-
南国洗出まで徒歩6分
- 5LDK
-
-
- 新築一戸建て 2025.12.07
-
-
- 3,250万円
-
鹿児島市田上6丁目
-
南国洗出まで徒歩6分
- 4LDK+S
-
-
- 新築一戸建て 2025.12.13
-
-
- 3,380万円
-
鹿児島市小野4丁目
-
JR九州新幹線「鹿児島中央駅」まで車14分
- 3LDK+S
-
-
- 新築一戸建て 2025.12.13
-
-
- 3,380万円
-
鹿児島市小野4丁目
-
鹿交伊敷小野バス停まで徒歩3分
- 3LDK
-
-
- 新築一戸建て 2025.12.19
-
-
- 3,298万円
-
鹿児島市桜ヶ丘5丁目
-
JR指宿枕崎線「宇宿駅」まで徒歩24分
- 3LDK
-
-
- 新築一戸建て 2025.12.19
-
-
- 3,298万円
-
鹿児島市桜ヶ丘5丁目
-
鹿交桜ヶ丘五丁目まで徒歩2分
- 3LDK
-
-
- 新築一戸建て 2025.12.19
-
-
- 3,298万円
-
鹿児島市桜ヶ丘5丁目
-
鹿交桜ヶ丘五丁目まで徒歩2分
- 3LDK
-
-
- 新築一戸建て 2025.12.20
-
-
- 3,298万円
-
鹿児島市桜ヶ丘5丁目
-
JR指宿枕崎線「宇宿駅」まで徒歩24分
- 3LDK+S
-
-
- 新築一戸建て 2025.12.25
-
-
- 3,190万円
-
鹿児島市吉野町
-
南国特別支援学校前バス停まで徒歩8分
- 4LDK
-
-
- 新築一戸建て 2025.12.25
-
-
- 3,290万円
-
鹿児島市吉野町
-
南国特別支援学校前バス停まで徒歩8分
- 4LDK
-
-
- 新築一戸建て 2025.12.27
-
-
- 3,348万円
-
鹿児島市明和3丁目
-
南国明和小学校前まで徒歩3分
- 3LDK
-
-
- 新築一戸建て 2026.01.05
-
-
- 3,348万円
-
鹿児島市明和3丁目
-
JR九州新幹線「鹿児島中央駅」まで車12分
- 3LDK
-
-
- 新築一戸建て 2026.01.06
-
-
- 3,348万円
-
鹿児島市明和3丁目
-
南国明和小学校前バス停まで徒歩3分
- 3LDK
-
-
- 新築一戸建て 2026.01.08
-
-
- 3,190万円
-
鹿児島市西陵5丁目
-
南国西陵六丁目まで徒歩2分
- 5LDK+S
-
-
- 新築一戸建て 2026.01.09
-
-
- 3,190万円
-
鹿児島市西陵5丁目
-
南国西陵六丁目まで徒歩2分
- 5LDK+S
-
-
- 新築一戸建て 2026.01.13
-
-
- 3,190万円
-
鹿児島市西陵5丁目
-
南国西陵六丁目バス停まで徒歩2分
- 5LDK
-
-
- 新築一戸建て 2026.01.22
-
-
- 3,348万円
-
鹿児島市明和3丁目
-
JR鹿児島本線「鹿児島中央駅」まで徒歩52分
- 3LDK
-
-
- 新築一戸建て 2026.01.23
-
-
- 3,298万円
-
鹿児島市桜ヶ丘5丁目
-
JR指宿枕崎線「宇宿駅」まで徒歩26分
- 3LDK
-
-
- 新築一戸建て 2026.01.23
-
-
- 3,298万円
-
鹿児島市桜ヶ丘5丁目
-
JR指宿枕崎線「宇宿駅」まで徒歩26分
- 3LDK
-
-
- 新築一戸建て 2026.01.23
-
-
- 3,298万円
-
鹿児島市桜ヶ丘6丁目
-
6丁目公園前まで徒歩4分
- 3LDK
-
-
- 新築一戸建て 2026.01.30
-
-
- 3,290万円
-
鹿児島市和田3丁目
-
JR指宿枕崎線「慈眼寺駅」まで徒歩17分
- 4LDK
-
-
- 新築一戸建て 2026.01.31
-
-
- 3,280万円
-
鹿児島市田上台3丁目
-
JR鹿児島本線「広木駅」まで徒歩23分
- 4LDK
-
-
- 新築一戸建て 2026.02.16
-
-
- 3,390万円
-
鹿児島市坂之上7丁目
-
JR指宿枕崎線「坂之上駅」バス乗車7分 バス停「国際大学前」まで徒歩3分
- 4LDK+S
-
-
- 新築一戸建て 2026.02.21
-
-
- 3,380万円
-
鹿児島市東坂元4丁目
-
南国辻ヶ丘団地バス停まで徒歩2分
- 4LDK
-
-
- 新築一戸建て 2026.03.15
-
-
- 3,190万円
-
鹿児島市慈眼寺町
-
JR指宿枕崎線「慈眼寺駅」まで徒歩5分
- 3LDK+S
-
-
- 新築一戸建て 2026.03.16
-
-
- 3,249万円
-
鹿児島市桜ヶ丘8丁目
-
JR指宿枕崎線「宇宿駅」まで徒歩15分
- 4LDK+S
-
-
- 新築一戸建て 2026.03.17
-
-
- 3,380万円
-
鹿児島市星ヶ峯2丁目
-
鹿交星ヶ峯二丁目まで徒歩3分
- 3LDK
-
-
- 新築一戸建て 2026.03.17
-
-
- 3,380万円
-
鹿児島市星ヶ峯2丁目
-
JR鹿児島本線「広木駅」まで徒歩15分
- 3LDK
-
-
- 新築一戸建て 2026.04.04
-
-
- 3,380万円
-
鹿児島市田上5丁目
-
JR鹿児島本線「鹿児島中央駅」まで徒歩27分
- 4LDK+S
-
-
- 新築一戸建て 2026.04.07
-
-
- 3,280万円
-
鹿児島市桜ヶ丘1丁目
-
JR指宿枕崎線「宇宿駅」まで徒歩41分
- 4LDK+S
-
-
- 新築一戸建て 2026.04.07
-
-
- 3,280万円
-
鹿児島市桜ヶ丘1丁目
-
JR指宿枕崎線「宇宿駅」まで徒歩41分
- 4LDK+S
-
-
- 新築一戸建て 2026.04.07
-
-
- 3,280万円
-
鹿児島市桜ヶ丘1丁目
-
JR鹿児島本線「広木駅」まで車5分
- 4LDK+S
-
-
- 新築一戸建て 2026.04.07
-
-
- 3,280万円
-
鹿児島市桜ヶ丘1丁目
-
JR指宿枕崎線「宇宿駅」まで車5分
- 4LDK+S
-
-
- 新築一戸建て 2026.04.07
-
-
- 3,280万円
-
鹿児島市桜ヶ丘1丁目
-
JR指宿枕崎線「宇宿駅」まで車5分
- 4LDK+S
-
-
-
新築一戸建て
2026.04.10
-
-
- 3,280万円
-
鹿児島市桜ヶ丘1丁目
-
JR鹿児島本線「広木駅」まで車5分
- 4LDK+S
-
-
新築一戸建て
2026.04.10
-
-
新築一戸建て
2026.04.11
-
-
- 3,280万円
-
鹿児島市田上台3丁目
-
田上団地入口まで徒歩3分
- 4LDK
-
-
新築一戸建て
2026.04.11
-
-
新築一戸建て
2026.04.13
-
-
- 3,280万円
-
鹿児島市田上台3丁目
-
JR鹿児島本線「広木駅」まで徒歩23分
- 4LDK+S
-
-
新築一戸建て
2026.04.13
-
-
新築一戸建て
2026.04.18
-
-
- 3,198万円
-
鹿児島市皇徳寺台3丁目
-
JR鹿児島本線「鹿児島中央駅」バス乗車28分 バス停「皇徳寺西センター前」まで徒歩5分
- 3LDK
-
-
新築一戸建て
2026.04.18
-
-
新築一戸建て
2026.04.19
-
-
- 3,298万円
-
鹿児島市草牟田2丁目
-
鹿児島市営バス城山団地中央まで徒歩3分
- 3LDK
-
-
新築一戸建て
2026.04.19
-
-
新築一戸建て
2026.04.28
-
-
- 3,280万円
-
鹿児島市谷山中央5丁目
-
JR指宿枕崎線「慈眼寺駅」まで徒歩8分
- 3LDK+S
-
-
新築一戸建て
2026.04.28
-
-
新築一戸建て
2026.04.28
-
-
- 3,280万円
-
鹿児島市谷山中央5丁目
-
JR指宿枕崎線「慈眼寺駅」まで徒歩8分
- 3LDK+S
-
-
新築一戸建て
2026.04.28
-
-
新築一戸建て
2026.04.28
-
-
- 3,198万円
-
鹿児島市皇徳寺台3丁目
-
JR鹿児島本線「広木駅」まで車10分
- 3LDK+S
-
-
新築一戸建て
2026.04.28
-
-
新築一戸建て
2026.04.30
-
-
- 3,370万円
-
鹿児島市坂之上4丁目
-
JR指宿枕崎線「坂之上駅」まで徒歩10分
- 3LDK+S
-
-
新築一戸建て
2026.04.30
-
-
新築一戸建て
2026.05.05
-
-
- 3,280万円
-
鹿児島市田上台3丁目
-
鹿児島交通天神ヶ瀬戸まで徒歩7分
- 3LDK
-
-
新築一戸建て
2026.05.05
-
-
新築一戸建て
2026.05.05
-
-
- 3,249万円
-
鹿児島市桜ヶ丘8丁目
-
JR指宿枕崎線「宇宿駅」まで徒歩14分
- 4LDK
-
-
新築一戸建て
2026.05.05
- 鹿児島県
マイページ物件数 - 5,786件
最近見た物件
-
-

-
- 土地
- 1,133万円
-
伊予郡松前町大字北黒田
-
伊予鉄道郡中線地蔵町
-
-
-

-
- 土地
- 816.64万円
-
高知市北秦泉寺
-
とさでん交通 金谷橋バス停
-
-
-

-
- 土地
- 2億9,800万円
-
京田辺市三山木越前
-
JR片町線JR三山木
-
鹿児島県新築一戸建て新着物件
-
-

-
- 新築一戸建て
- 2,880万円
-
鹿児島市西陵2丁目
-
南国交通西陵2丁目
-
-
-

-
- 新築一戸建て
- 3,249万円
-
鹿児島市桜ヶ丘8丁目
-
JR指宿枕崎線宇宿駅
-
-
-

-
- 新築一戸建て
- 3,180万円
-
鹿児島市宇宿7丁目
-
鹿児島市営バス梶原迫
-
-
-

-
- 新築一戸建て
- 3,280万円
-
鹿児島市田上台3丁目
-
鹿児島交通天神ヶ瀬戸
-
-
-

-
- 新築一戸建て
- 3,980万円
-
鹿児島市武3丁目
-
JR鹿児島本線鹿児島中央駅
-
-
-

-
- 新築一戸建て
- 2,980万円
-
鹿児島市紫原3丁目
-
JR指宿枕崎線南鹿児島駅
-
-
-

-
- 新築一戸建て
- 2,780万円
-
鹿児島市紫原3丁目
-
JR指宿枕崎線南鹿児島駅
-
- お近くの店舗を探す
-
おすすめ物件
-
-

-
- 新築一戸建て
- 3,380万円
-
鹿児島市田上5丁目
-
JR鹿児島本線鹿児島中央
-
-
-

-
- 新築一戸建て
- 3,580万円
-
鹿児島市田上5丁目
-
JR日豊本線鹿児島中央
-
-
-

-
- 新築一戸建て
- 2,880万円
-
鹿児島市川上町
-
南国立平バス停
-
-
-

-
- 新築一戸建て
- 3,898万円
-
鹿児島市紫原6丁目
-
鹿交紫原七丁目
-
-
-

-
- 新築一戸建て
- 3,399万円
-
鹿児島市和田2丁目
-
JR指宿枕崎線坂之上
-
-
-

-
- 新築一戸建て
- 2,680万円
-
鹿児島市玉里団地3丁目
-
市営玉里団地北バス停
-
-
-

-
- 新築一戸建て
- 2,480万円
-
鹿児島市石谷町
-
南国健生苑バス停
-
-
-

-
- 新築一戸建て
- 2,980万円
-
鹿児島市東坂元4丁目
-
南国辻ヶ丘団地バス停
-
-
-

-
- 新築一戸建て
- 2,580万円
-
鹿児島市吉野町
-
南国中別府入口バス停
-
-
-

-
- 新築一戸建て
- 2,980万円
-
鹿児島市西坂元町
-
鹿交西坂元町公民館前
-










(事前に必ず予約してください)
時間/10:00~17:30
現地案内会(事前に必ずお問合せください)
時間/10:00~17:30(時間外でのご希望もお気軽にご相談ください)
ご相談の所要時間や内容は下記をご参考にしてください
◆現地・物件ご見学(20分~)
◆ご希望条件のご相談(15分~)
◆資金計画のご相談(15分~)
◆住宅ローンのお話(15分~)
◆土地・家の探し方のご相談(30分~)
〇現地ご見学会を随時受け付けております。
〇お客様のご都合に合わせて「知りたい情報だけ」という短時間のご案内も可能です!
〇場所がわからない方は、近くの分かりやすい場所からご一緒にご案内します♪
〇事前にこんな情報が欲しい!こんなことを聞いてみたい!といったお声などもお気軽にお寄せください!
※ Googleマップの位置は目安になります。当日は旗・看板等を目安にご来場ください