名古屋市港区惟信町4丁目の新築戸建
掲載情報更新日:2026年01月19日 次回更新予定日:2026年02月02日
- 3,190万円
-
- 借入ご希望金額
万円 - 借入期間
年 - 借入金利
% - 月々のお支払い金額
円
- 借入ご希望金額
※ 月々のお支払例は目安の試算となりますので、実際の金額とは異なる場合がございます。詳しくは店舗までお問合わせください。
- 名古屋市港区惟信町4丁目
-
名古屋臨海高速鉄道『荒子川公園』 徒歩22分 (約1730m)
名古屋市港区惟信町4丁目一戸建て | 物件情報
物件の設備
- 電気
- 上水道
- 下水道
- 都市ガス
- 浄水器
- 食器乾燥機
- 食器洗浄乾燥機
- コンロ三口
- カウンターキッチン
- システムキッチン
- オートバス
- 追焚機能
- 浴室暖房
- 浴室乾燥機
- 浴室に窓
- トイレ2箇所
- 温水洗浄便座
- 洗髪洗面化粧台
- ダウンライト
- 省エネ給湯器
- ディンプルキー
- モニタ付インターホン
- 火災警報器/報知機
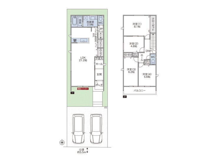
- LDK20畳以上
- 複層ガラス
- 全室フローリング
- シャッター雨戸
- 電動シャッター
- 24時間換気システム
- クローゼット
- 床下収納
- 全居室収納
- 庭
物件の特徴
- 南向
- 南側道路面す
- 2階建
- 外壁サイディング
物件詳細情報
| 価格 | 3,190万円 | 間取り | 4LDK |
|---|---|---|---|
| 物件種別 | 新築一戸建て | ||
| 所在地 | 愛知県名古屋市港区惟信町4丁目 | ||
| アクセス |
|
||
| 建物面積 | 駐車場 | あり 普通:2台 | |
| 築年月 | 2026年(令和8年)06月予定 | 建築確認 | 第KS125-0420-59436号 |
| 建物構造 | 木造 2階建 | 工法 | |
| 主要採光 | 南向 | バルコニー | |
| 保証・評価 | |||
| 土地面積 | 公128.89㎡(38.98坪) | 接道 | 南側(公道)幅 約5.5m |
| 私道 | セットバック | ||
| 地目 | 宅地 | 地勢 | |
| 権利 | 所有権 |
||
| 都市計画 | 用途地域 | 1種住居 | |
| 建ぺい/容積率 | 60% / 200% | 土地国土法 | |
| 許可番号 | 建築基準法 | ||
| 法令制限 | |||
| 小学区 | 神宮寺小学校 徒歩13分 (約1010m) | 中学区 | 宝神中学校 徒歩23分 (約1830m) |
| 現況 | 建築中 | 引渡 | 未記入 |
| その他費用 | |||
| 周辺環境 | 神宮寺小学校 徒歩13分 (約1010m) 宝神中学校 徒歩23分 (約1830m) いしん保育園 徒歩6分 (約470m) ポートウォークみなと 徒歩14分 (約1060m) ヤマナカ みなと当知店 徒歩15分 (約1180m) スギ薬局 油屋店 徒歩12分 (約950m) あおなみ線 荒子川公園駅 徒歩22分 (約1730m) 早瀬内科クリニック 徒歩4分 (約320m) 十六銀行 港支店 徒歩9分 (約690m) 神宮寺公園 徒歩16分 (約1220m) |
||
| 備考 | |||
| 物件番号 | 4513127 | 取引態様 | 媒介 |
取扱店舗情報
ハウスドゥ 荒子川公園 株式会社アーズコミュニケーションズ 店舗詳細ページへ
| 電話番号 | 052-655-6255 |
|---|---|
| 所在地 | 〒455-0815 愛知県名古屋市港区油屋町3丁目28番地3 エスポアクインズコート1階 |
| 営業時間 | 10:00~18:00 |
| 定休日 | 水曜日、年末年始 |
| 宅建免許番号 | 愛知県知事(1)第26233号 |
| アクセス | 店舗への地図はこちら |

来店ご予約
愛知県名古屋市港区で価格が似ている物件はこちら
- 愛知県
マイページ物件数 - 32,099件
最近見た物件
-
-

-
- 新築一戸建て
- 4,475万円
-
大津市大江2丁目
-
JR東海道線瀬田
-
-
-

-
- 中古マンション
- 1,550万円
-
札幌市中央区北三条西30丁目
-
札幌市東西線西28丁目
-
愛知県新築一戸建て新着物件
-
-

-
- 新築一戸建て
- 2,680万円
-
一宮市萩原町築込字野中
-
名鉄尾西線玉野駅
-
-
-

-
- 新築一戸建て
- 2,580万円
-
一宮市萩原町築込字野中
-
名鉄尾西線玉野駅
-
-
-

-
- 新築一戸建て
- 2,680万円
-
一宮市萩原町築込字野中
-
名鉄尾西線玉野駅
-
-
-

-
- 新築一戸建て
- 2,580万円
-
一宮市萩原町築込字野中
-
名鉄尾西線玉野駅
-
-
-

-
- 新築一戸建て
- 4,190万円
-
刈谷市今川町山ノ神
-
名鉄名古屋本線富士松駅
-
-
-

-
- 新築一戸建て
- 4,150万円
-
刈谷市今川町山ノ神
-
名鉄名古屋本線富士松駅
-
-
-

-
- 新築一戸建て
- 2,977万円
-
蒲郡市竹谷町井瀬木
-
JR東海道本線三河塩津駅
-
- お近くの店舗を探す
-
おすすめ物件
-
-

-
- 新築一戸建て
- 3,180万円
-
海部郡蟹江町桜2丁目
-
JR関西本線蟹江
-
-
-

-
- 新築一戸建て
- 2,290万円
-
津島市越津町字柳之内
-
名鉄津島線青塚
-
-
-

-
- 新築一戸建て
- 4,180万円
-
豊田市水源町1丁目
-
愛知環状鉄道三河豊田
-
-
-

-
- 新築一戸建て
- 3,290万円
-
小牧市大字二重堀
-
名鉄小牧線小牧原
-
-
-

-
- 新築一戸建て
- 2,899万円
-
清須市春日上高畑
-
JR東海道本線稲沢
-
-
-

-
- 新築一戸建て
- 4,590万円
-
日進市梅森台1丁目
-
名古屋市鶴舞線平針
-
-
-

-
- 新築一戸建て
- 3,990万円
-
大府市桃山町1丁目
-
JR東海道本線大府
-
-
-

-
- 新築一戸建て
- 3,590万円
-
半田市亀崎高根町8丁目
-
JR武豊線亀崎
-
-
-

-
- 新築一戸建て
- 3,380万円
-
犬山市大字塔野地字西中ノ切
-
名鉄広見線富岡前
-
-
-

-
- 新築一戸建て
- 3,480万円
-
清須市土器野本山
-
名鉄名古屋本線須ヶ口
-





