遠賀郡芦屋町正門町の新築戸建
NEW 12.11掲載情報更新日:2026年01月01日 次回更新予定日:2026年01月15日
- 2,298万円
-
- 借入ご希望金額
万円 - 借入期間
年 - 借入金利
% - 月々のお支払い金額
円
- 借入ご希望金額
※ 月々のお支払例は目安の試算となりますので、実際の金額とは異なる場合がございます。詳しくは店舗までお問合わせください。
- 遠賀郡芦屋町正門町
-
JR鹿児島本線『遠賀川』 車12分(約6.4km)
JR鹿児島本線『水巻』 車14分(約7.5km)
JR筑豊本線『折尾』 車17分(約7.1km)
市営バス『芦屋中学校前』 徒歩4分 (約260m)
遠賀郡芦屋町正門町一戸建て | 物件情報
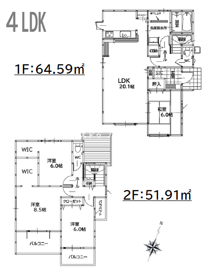
芦屋小学校・芦屋中学校エリア/新築戸建て/駐車場4台/リビング21帖/全室6帖以上/WIC/SIC
芦屋小学校・芦屋中学校エリアです。
小学校まで徒歩7分なのでご家族も安心してお見送りできます
朝の時間にゆとりが持てるのはいいですよね♪
リビング広々20帖!
家具のレイアウトもしやすいお部屋になってます
2階にはWICが2つありますので
ご家族世帯にも助かりますね
物件の設備
- 公営水道
- 下水道
- 個別プロパン
- 食器洗浄乾燥機
- コンロ三口
- カウンターキッチン
- バス
- 浴室暖房
- 浴室乾燥機
- トイレ
- トイレ2箇所
- 洗髪洗面化粧台
- LDK20畳以上
- 全居室6畳以上
- クローゼット
- ウォークインクローゼット
- ウォークインクローゼット2箇所
- 全居室収納
- シューズWIC
- バルコニー
物件の特徴
- 小学校徒歩10分以内
- 緑豊かな住宅地
- 閑静な住宅街
- 花火が見える
- 通風良好
- 陽当り良好
- 2階建
物件詳細情報
| 価格 | 2,298万円 | 間取り | 4LDK |
|---|---|---|---|
| 物件種別 | 新築一戸建て | ||
| 所在地 | 福岡県遠賀郡芦屋町正門町 1号棟 | ||
| アクセス |
|
||
| 建物面積 | 116.5㎡ | 駐車場 | あり 普通:4台 |
| 築年月 | 2025年(令和7年)11月築 | 建築確認 | 第KJH25-00918-1号 |
| 建物構造 | 木造 2階建 | 工法 | |
| 主要採光 | バルコニー | ||
| 保証・評価 | |||
| 土地面積 | 194.07㎡(58.70坪) | 接道 | 南東側(公道)幅 約4.0m 間口 約11.10m |
| 私道 | セットバック | ||
| 地目 | 雑種地 | 地勢 | |
| 権利 | 所有権 |
||
| 都市計画 | 用途地域 | 1種住居 | |
| 建ぺい/容積率 | 60% / 160% | 土地国土法 | |
| 許可番号 | 建築基準法 | ||
| 法令制限 | |||
| 小学区 | 芦屋小学校 徒歩7分 (約550m) | 中学区 | 芦屋中学校 徒歩6分 (約450m) |
| 現況 | 完工済 | 引渡 | 未記入 |
| その他費用 | |||
| 周辺環境 | 芦屋中学校 徒歩5分 (約350m) 芦屋小学校 徒歩8分 (約600m) 遠賀信用金庫 芦屋支店 徒歩5分 (約330m) 芦屋町中央公民館 徒歩6分 (約460m) 芦屋郵便局 徒歩8分 (約600m) ファミリーマート 芦屋基地店 徒歩10分 (約790m) 山鹿公民館 徒歩20分 (約1570m) ジョイフル 北遠賀店 徒歩26分 (約2060m) ドラッグストアコスモス 福岡芦屋店 徒歩29分 (約2250m) シャトレーゼ高須 徒歩45分 (約3570m) |
||
| 備考 | |||
| 物件番号 | 4522169 | 取引態様 | 媒介 |
取扱店舗情報
ハウスドゥ 八幡本城 株式会社Cross Road 店舗詳細ページへ
| 電話番号 | 093-647-0370 |
|---|---|
| 所在地 | 〒807-0801 福岡県北九州市八幡西区本城3453-3 |
| 営業時間 | 9:00~18:00(土曜日・日曜日は17:00まで) |
| 定休日 | 不定休 |
| 宅建免許番号 | 福岡県知事(1)第20212号 |
| アクセス | 店舗への地図はこちら |

来店ご予約
- 福岡県
マイページ物件数 - 8,985件
最近見た物件
-
-

-
- 土地
- 900万円
-
宇都宮市鶴田町
-
東武宇都宮線南宇都宮
-
-
-

-
- 新築一戸建て
- 3,480万円
-
城陽市寺田市ノ久保
-
JR奈良線城陽
-
-
-

-
- 中古一戸建て
- 2,420万円
-
鹿児島市下伊敷3丁目
-
JR鹿児島本線鹿児島中央
-
福岡県新築一戸建て新着物件
-
-

-
- 新築一戸建て
- 3,698万円
-
糟屋郡宇美町宇美東3丁目
-
JR鹿児島本線博多駅
-
-
-

-
- 新築一戸建て
- 4,898万円
-
大野城市乙金東1丁目
-
西鉄天神大牟田線桜並木駅
-
-
-

-
- 新築一戸建て
- 5,198万円
-
大野城市乙金東1丁目
-
西鉄天神大牟田線桜並木駅
-
-
-

-
- 新築一戸建て
- 4,480万円
-
福岡市南区若久6丁目
-
西鉄天神大牟田線大橋駅
-
-
-

-
- 新築一戸建て
- 4,580万円
-
福岡市南区若久6丁目
-
西鉄天神大牟田線大橋駅
-
-
-

-
- 新築一戸建て
- 2,898万円
-
中間市太賀2丁目
-
筑豊電気鉄道通谷駅
-
-
-

-
- 新築一戸建て
- 2,998万円
-
中間市太賀2丁目
-
筑豊電気鉄道通谷駅
-
- お近くの店舗を探す
-
おすすめ物件
-
-

-
- 新築一戸建て
- 5,500万円
-
福岡市早良区賀茂4丁目
-
福岡市七隈線賀茂
-
-
-

-
- 新築一戸建て
- 3,999万円
-
宗像市青葉台2丁目
-
JR鹿児島本線赤間
-
-
-

-
- 新築一戸建て
- 3,498万円
-
大野城市南ケ丘6丁目
-
JR鹿児島本線水城
-
-
-

-
- 新築一戸建て
- 4,798万円
-
糟屋郡粕屋町大字柚須
-
JR篠栗線柚須
-
-
-

-
- 新築一戸建て
- 3,680万円
-
福津市福間駅東2丁目
-
JR鹿児島本線福間
-
-
-

-
- 新築一戸建て
- 3,298万円
-
北九州市小倉南区八重洲町
-
西鉄バス蜷田若園三丁目停
-
-
-

-
- 新築一戸建て
- 3,988万円
-
福岡市早良区賀茂2丁目
-
福岡市七隈線賀茂
-
-
-

-
- 新築一戸建て
- 5,598万円
-
福岡市早良区次郎丸1丁目
-
福岡市七隈線次郎丸
-
-
-

-
- 新築一戸建て
- 4,298万円
-
北九州市小倉南区山手2丁目
-
北九州高速鉄道徳力公団前
-
-
-

-
- 新築一戸建て
- 3,098万円
-
宗像市原町
-
JR鹿児島本線東郷
-





完成次第ご案内可能ですので
お気軽にご連絡くださいませ
LINE・Instagram始めました♪♪ご対面や電話が苦手な方は
メッセージください♪
LINE ID:yahatahonjo2023
Instagram:yahatahonjo
まずは、お声がけくださいね♪