栄町17期 新築戸建
掲載情報更新日:2026年05月19日 次回更新予定日:2026年06月02日
- 3,990万円
-
- 借入ご希望金額
万円 - 借入期間
年 - 借入金利
% - 月々のお支払い金額
円
- 借入ご希望金額
※ 月々のお支払例は目安の試算となりますので、実際の金額とは異なる場合がございます。詳しくは店舗までお問合わせください。
- 松戸市栄町7丁目
-
JR千代田・常磐緩行線『馬橋』 徒歩11分 (約880m)
流鉄流山線『馬橋』 徒歩11分 (約880m)
栄町17期 新築戸建一戸建て | 物件情報
◆角地の3階建住宅 ◆商業施設も徒歩10分圏内 ◆複数路線利用可能
「松戸市は、「やさシティ、まつど。」を掲げ、子育てしやすい街づくりに取り組んでいます。アンケート調査により育児ニーズを拾い上げ、妊娠・出産・子育て、保育園・幼稚園、小学生・中学生など成長段階にあわせた支援を実施しています。妊娠期からさまざまな相談ができる「親子すこやかセンター」や、赤ちゃんとママパパが一緒に遊べる「おやこDE広場」や「子育て支援センター」の開設。保育所の一時預かり支援や、バスで指定の幼稚園への送迎をおこなう「送迎保育ステーション」を設置するなど、支援内容は実にさまざまです。
松戸市は、子ども医療費助成制度もあるので、0歳から中学校3年生の、医療費(通院・入院・調剤)の患者自己負担額との差額を市が助成してくれますし、深夜でも応対してくれる子どものための病院「夜間小児急病センター」があるのも安心です。
物件の設備
- 公営水道
- 公共下水
- 都市ガス
- コンロ三口
- カウンターキッチン
- システムキッチン
- ユニットバス
- オートバス
- 追焚機能
- 浴室暖房
- 浴室乾燥機
- 浴室に窓
- トイレ2箇所
- 温水洗浄便座
- 室内洗濯機置場
- 洗濯乾燥機
- モニタ付インターホン
- LDK15畳以上
- フローリング
- クローゼット2箇所
- ウォークインクローゼット
- 全居室収納
- シューズボックス
- 2面バルコニー
物件の特徴
- 前道6m以上
- スーパーが近い
- 通風良好
- 陽当り良好
- 3階建以上
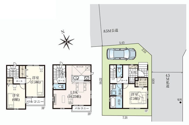
物件詳細情報
| 価格 | 3,990万円 | 間取り | 3LDK |
|---|---|---|---|
| 物件種別 | 新築一戸建て | ||
| 所在地 | 千葉県松戸市栄町7丁目 | ||
| アクセス |
|
||
| 建物面積 | 実98.12㎡ | 駐車場 | あり 普通:1台 |
| 築年月 | 2026年(令和8年)03月予定 | 建築確認 | 第HPAー25-12381-1号 |
| 建物構造 | 木造 3階建 | 工法 | |
| 主要採光 | 南西向 | バルコニー | |
| 保証・評価 | |||
| 土地面積 | 実74.46㎡(22.52坪) | 接道 | 北側(公道)幅 約8.5m 東側(私道)幅 約4.5m |
| 私道 | 別:実26.67㎡ | セットバック | |
| 地目 | 宅地 | 地勢 | |
| 権利 | 所有権 |
||
| 都市計画 | 市街化区域 |
用途地域 | 1種中高 |
| 建ぺい/容積率 | 60% / 200% | 土地国土法 | |
| 許可番号 | 建築基準法 | ||
| 法令制限 | 景観法 | ||
| 小学区 | 旭町小学校 徒歩13分 (約1000m) | 中学区 | 旭町中学校 徒歩15分 (約1200m) |
| 現況 | 建築中 | 引渡 | 期日指定:2026年03月 |
| その他費用 | |||
| 周辺環境 | 松戸馬橋西郵便局 徒歩4分 (約270m) セブンイレブン 松戸西馬橋広手町店 徒歩4分 (約280m) 朝日信用金庫 馬橋支店 徒歩5分 (約350m) くすりの福太郎 馬橋店 徒歩5分 (約380m) オリンピック 馬橋店 徒歩6分 (約420m) 馬橋西保育所 徒歩8分 (約620m) 東武ストア 馬橋店 徒歩10分 (約800m) 高木クリニック 徒歩14分 (約1050m) 旭町小学校 徒歩13分 (約1000m) 旭町中学校 徒歩15分 (約1200m) |
||
| 備考 | |||
| 物件番号 | 4523069 | 取引態様 | 媒介 |
取扱店舗情報
ハウスドゥ 馬橋駅前 株式会社マイエステート 店舗詳細ページへ
| 電話番号 | 047-382-5482 |
|---|---|
| 所在地 | 〒271-0047 千葉県松戸市西馬橋幸町36 |
| 営業時間 | 10:00~18:00 |
| 定休日 | 水曜日、年末年始 |
| 宅建免許番号 | 千葉県知事(1)第18010号 |
| アクセス | 店舗への地図はこちら |

来店ご予約
千葉県松戸市で価格が似ている物件はこちら
- 千葉県
マイページ物件数 - 2,081件
最近見た物件
-
-

-
- 中古一戸建て
- 980万円
-
流山市向小金1丁目
-
JR千代田・常磐緩行線南柏
-
-
-

-
- 新築一戸建て
- 3,290万円
-
熊本市東区沼山津3丁目
-
熊本市健軍線健軍町
-
-
-

-
- 新築一戸建て
- 2,580万円
-
一宮市時之島字堂山
-
名鉄犬山線江南
-
千葉県新築一戸建て新着物件
- お近くの店舗を探す
-
おすすめ物件
-
-

-
- 新築一戸建て
- 4,788万円
-
流山市江戸川台西1丁目
-
東武野田線江戸川台
-
-
-

-
- 新築一戸建て
- 5,388万円
-
習志野市袖ケ浦6丁目
-
JR総武・中央緩行線幕張本郷
-
-
-

-
- 新築一戸建て
- 4,098万円
-
習志野市東習志野6丁目
-
京成本線実籾
-
-
-

-
- 新築一戸建て
- 3,590万円
-
習志野市東習志野6丁目
-
京成本線実籾
-
-
-

-
- 新築一戸建て
- 5,190万円
-
松戸市上本郷
-
JR千代田・常磐緩行線北松戸
-
-
-

-
- 新築一戸建て
- 5,698万円
-
習志野市袖ケ浦4丁目
-
JR総武・中央緩行線幕張本郷
-
-
-

-
- 新築一戸建て
- 4,098万円
-
習志野市東習志野6丁目
-
京成本線実籾
-
-
-

-
- 新築一戸建て
- 3,480万円
-
成田市寺台
-
JR成田線成田
-
-
-

-
- 新築一戸建て
- 4,280万円
-
流山市鰭ケ崎
-
JR武蔵野線南流山
-
-
-

-
- 新築一戸建て
- 5,380万円
-
松戸市新松戸南2丁目
-
JR千代田・常磐緩行線馬橋
-



















担当エージェント:石原 孝彦
□■ハウスドゥ 馬橋駅前のおすすめポイント■□
◆複数路連利用可能は馬橋駅が徒歩11分です
◆2.3階にバルコニーがございます
◆陽当たり・通風良好な角地のお住まいです
松戸市は自然があふれる空間との調和が、ほどよく都会で暮らしやすいと感じる街です。江戸川河川敷にはウォーキングに最適な「水辺の健康エコロード」やポピーやコスモスなどの花が咲き乱れる「江戸川松戸フラワーライン」があります。また美しい庭園が魅力の「戸定が丘歴史公園」、あじさいの名所でもある「松戸中央公園」も。少し足をのばせば「21世紀の森と広場」など、自然に触れられる場所も多いです。