北名古屋市六ツ師宮西の新築戸建
掲載情報更新日:2026年05月13日 次回更新予定日:2026年05月27日
- 2,892万円
-
- 借入ご希望金額
万円 - 借入期間
年 - 借入金利
% - 月々のお支払い金額
円
- 借入ご希望金額
※ 月々のお支払例は目安の試算となりますので、実際の金額とは異なる場合がございます。詳しくは店舗までお問合わせください。
- 北名古屋市六ツ師宮西
-
名鉄犬山線『徳重・名古屋芸大』 徒歩25分 (約2000m)
名鉄犬山線『西春』 徒歩33分 (約2640m)
きたバス『「牟都志神社西」停』 徒歩3分 (約192m)
北名古屋市六ツ師宮西一戸建て | 物件情報
使いやすさ◎玄関横にファミクロ付きの新築【月々7万円台~購入可能です】師勝東小まで徒歩約11分
=========================
◇師勝東小学校:徒歩約11分
◇熊野中学校:徒歩約20分
◇六ツ師保育園:徒歩約2分
◇ナフコトミダ中央店:徒歩約8分
◇ココカラファインZipドラッグ白沢片場店:徒歩約7分
◆買い置きできる便利なパントリー
◆主寝室に大型ウィークインクローゼット付き
◆道路から距離がある、プライバシー性の高い延長敷地
=========================
\見るだけ聞くだけOK/
資金効率が良くなるローンの組み方教えます。
ネット未公開、水面下情報多数あります。
ほかのページで気になる物件もご相談ください。
物件の設備
- 電気
- 公営水道
- 浄化槽
- 個別浄化槽
- 都市ガス
- 食品庫
- コンロ三口
- カウンターキッチン
- システムキッチン
- バス1坪以上
- 浴室暖房
- 浴室乾燥機
- トイレ2箇所
- 温水洗浄便座
- 室内洗濯機置場
- 洗面所独立
- 照明器具
- モニタ付インターホン
- 火災警報器/報知機
- LDK15畳以上
- 全室2面採光
- 全室フローリング
- 24時間換気システム
- クローゼット2箇所
- ウォークインクローゼット2箇所
- 全居室収納
- シューズボックス
- ワイドバルコニー
物件の特徴
- 南向
- 耐震構造
- スーパーが近い
- 2階建
- 外壁サイディング
- 即入居可
物件詳細情報
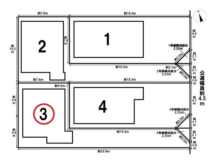
| 価格 | 2,892万円 | 間取り | 3LDK |
|---|---|---|---|
| 物件種別 | 新築一戸建て | ||
| 所在地 | 愛知県北名古屋市六ツ師宮西 4号棟 | ||
| アクセス |
|
||
| 建物面積 | 92.73㎡ | 駐車場 | あり 普通:2台 |
| 築年月 | 2026年(令和8年)03月築 | 建築確認 | HPA-25-11907-1 |
| 建物構造 | 木造 2階建 | 工法 | |
| 主要採光 | バルコニー | ||
| 保証・評価 | |||
| 分譲情報 | 【販売戸数】:4戸 |
||
| 土地面積 | 実130.79㎡(39.56坪) | 接道 | 南東側(公道)幅 約4.5m |
| 私道 | セットバック | ||
| 地目 | 畑 | 地勢 | |
| 権利 | 所有権 |
||
| 都市計画 | 市街化区域 |
用途地域 | 1種中高 |
| 建ぺい/容積率 | 60% / 200% | 土地国土法 | |
| 許可番号 | 建築基準法 | ||
| 法令制限 | 都市再生特別措置法・航空法・宅地造成工事規制区域・法22条区域 | ||
| 小学区 | 師勝東小学校 徒歩11分 (約850m) | 中学区 | 熊野中学校 徒歩20分 (約1600m) |
| 現況 | 完工済 | 引渡 | 即 |
| その他費用 | |||
| 周辺環境 | 【師勝東小学校】 徒歩12分 (約900m) 【北名古屋市立熊野中学校】 徒歩23分 (約1790m) 【六ツ師保育園】 徒歩2分 (約140m) 【ナフコトミダ中央店】 徒歩8分 (約600m) 【スーパーダイ新】 徒歩10分 (約750m) 【ココカラファインZipドラッグ白沢片場店】 徒歩7分 (約540m) 【山田クリニック】 徒歩7分 (約510m) 【師勝郵便局】 徒歩8分 (約630m) 【能田引免地児童遊園】 徒歩5分 (約370m) 【北名古屋市立井瀬木児童館】 徒歩7分 (約550m) |
||
| 備考 | ※ 各棟隅切部分協定地(覚書あり) ・【師勝東小学校】まで徒歩12分(約900m) ・【北名古屋市立熊野中学校】まで徒歩23分(約1790m) ・【六ツ師保育園】まで徒歩2分(約140m) ・【ナフコトミダ中央店】まで徒歩8分(約600m) ・【スーパーダイ新】まで徒歩10分(約750m) ・【ココカラファインZipドラッグ白沢片場店】まで徒歩7分(約540m) ・【山田クリニック】まで徒歩7分(約510m) ・【師勝郵便局】まで徒歩8分(約630m) ・【能田引免地児童遊園】まで徒歩5分(約370m) ・【北名古屋市立井瀬木児童館】まで徒歩7分(約550m) |
||
| 物件番号 | 4524404 | 取引態様 | 媒介 |
取扱店舗情報
ハウスドゥ 北区城北 ファミリアホームサービス株式会社 店舗詳細ページへ
| 電話番号 | 052-908-8088 |
|---|---|
| 所在地 | 〒462-0051 愛知県名古屋市北区中切町4丁目84-1 |
| 営業時間 | 10:00~18:00 |
| 定休日 | 水曜日・年末年始(水曜日が祝日の場合は営業) |
| 宅建免許番号 | 国土交通大臣(2)第9218号 |
| アクセス | 店舗への地図はこちら |

来店ご予約
愛知県北名古屋市で価格が似ている物件はこちら
- 愛知県
マイページ物件数 - 32,195件
最近見た物件
愛知県新築一戸建て新着物件
-
-

-
- 新築一戸建て
- 4,980万円
-
名古屋市千種区霞ケ丘1丁目
-
名古屋市名城線茶屋ヶ坂駅
-
-
-

-
- 新築一戸建て
- 4,290万円
-
名古屋市緑区兵庫2丁目
-
名古屋市桜通線徳重駅
-
-
-

-
- 新築一戸建て
- 4,490万円
-
刈谷市松坂町2丁目
-
名鉄三河線刈谷市駅
-
-
-

-
- 新築一戸建て
- 3,890万円
-
名古屋市緑区兵庫2丁目
-
名古屋市桜通線徳重駅
-
-
-

-
- 新築一戸建て
- 3,090万円
-
名古屋市港区佐野町3丁目
-
名古屋市名港線築地口駅
-
-
-

-
- 新築一戸建て
- 2,690万円
-
豊田市保見ケ丘2丁目
-
愛知環状鉄道保見駅
-
-
-

-
- 新築一戸建て
- 4,590万円
-
名古屋市瑞穂区船原町1丁目
-
JR東海道本線熱田駅
-
- お近くの店舗を探す
-
おすすめ物件
-
-

-
- 新築一戸建て
- 3,999万円
-
清須市西枇杷島町上新
-
名鉄犬山線下小田井
-
-
-

-
- 新築一戸建て
- 2,790万円
-
愛西市須依町前田面
-
名鉄尾西線佐屋
-
-
-

-
- 新築一戸建て
- 3,090万円
-
名古屋市守山区深沢1丁目
-
JR中央本線神領
-
-
-

-
- 新築一戸建て
- 3,080万円
-
小牧市多気西町
-
名鉄犬山線大山寺
-
-
-

-
- 新築一戸建て
- 6,980万円
-
名古屋市千種区春里町4丁目
-
名古屋市東山線本山
-
-
-

-
- 新築一戸建て
- 3,790万円
-
岡崎市伊賀町字愛宕山
-
愛知環状鉄道北岡崎
-
-
-

-
- 新築一戸建て
- 5,280万円
-
豊田市山之手9丁目
-
愛知環状鉄道三河豊田
-
-
-

-
- 新築一戸建て
- 4,980万円
-
名古屋市南区鳥栖1丁目
-
名古屋市桜通線桜本町
-
-
-

-
- 新築一戸建て
- 3,190万円
-
西尾市富山2丁目
-
名鉄西尾線福地
-
-
-

-
- 新築一戸建て
- 3,699万円
-
名古屋市守山区今尻町
-
名鉄瀬戸線印場
-










担当エージェント:飯塚 和希
《グラファーレの特徴》
「家族のいいな」をカタチにする、お客様だけの暮らしをご提案。
良質な住まいをもっと気軽に、住まいへの憧れを身近に感じていただき、安心と安全のある住まいを提供します。