守口市八雲東町2丁目 新築戸建
NEW 12.19掲載情報更新日:2025年12月20日 次回更新予定日:2026年01月03日
- 4,480万円
-
- 借入ご希望金額
万円 - 借入期間
年 - 借入金利
% - 月々のお支払い金額
円
- 借入ご希望金額
※ 月々のお支払例は目安の試算となりますので、実際の金額とは異なる場合がございます。詳しくは店舗までお問合わせください。
- 守口市八雲東町2丁目
-
大阪市谷町線『大日』 徒歩10分 (約730m)
大阪モノレール『大日』 徒歩11分 (約810m)
京阪本線『西三荘』 徒歩13分 (約1000m)
守口市八雲東町2丁目 新築戸建一戸建て | 物件情報
月々11.8万円~ 16帖の広々リビング 大日駅徒歩10分! 3沿線3駅利用! 即内見可!
☆月々11.8万円~
☆最寄駅(始発駅)から東梅田駅まで18分
☆3沿線3駅利用可
☆16帖LDK
☆駐車場1台!
☆近隣に学校、幼稚園、保育園、公園あり
☆複数スーパーあり
【内覧会開催中】
本日ご案内可能な場合もございます。
複数件併せてご内見も可能♪
他の掲載物件もまとめてご内見頂けます。気になる物件をお教え下さい。
☆0120ー684-571
お気軽にお電話ください♪
☆立地のポイント
【地下鉄谷町線/大日駅(始発駅)】徒歩約10分
【大阪モノレール/大日駅】徒歩約11分
【西三荘駅】徒歩約13分
物件の設備
- 電気
- 公営水道
- 下水道
- 都市ガス
- システムキッチン
- 追焚機能
- トイレ2箇所
- 室内洗濯機置場
- 洗髪洗面化粧台
- エアコン
- モニタ付インターホン
物件の特徴
- 2階建
- 即入居可
物件詳細情報
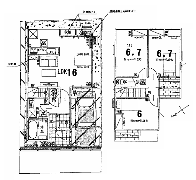
| 価格 | 4,480万円 | 間取り | 2LDK+S |
|---|---|---|---|
| 物件種別 | 新築一戸建て | ||
| 所在地 | 大阪府守口市八雲東町2丁目 | ||
| アクセス |
|
||
| 建物面積 | 81.36㎡ | 駐車場 | あり 普通:1台 |
| 築年月 | 2025年(令和7年)04月築 | 建築確認 | トラスト24-1860 |
| 建物構造 | 木造 2階建 | 工法 | |
| 主要採光 | 北西向 | バルコニー | |
| 保証・評価 | |||
| 土地面積 | 75.41㎡(22.81坪) | 接道 | 北西側(私道)幅 約5.0m 間口 約6.80m |
| 私道 | 含:14.43㎡ | セットバック | |
| 地目 | 宅地 | 地勢 | 平坦 |
| 権利 | 所有権 |
||
| 都市計画 | 市街化区域 |
用途地域 | 1種住居 |
| 建ぺい/容積率 | 70% / 200% | 土地国土法 | |
| 許可番号 | 建築基準法 | ||
| 法令制限 | 宅地造成工事規制区域 | ||
| 小学区 | 八雲東小学校 徒歩6分 (約450m) | 中学区 | 第一中学校 徒歩29分 (約2300m) |
| 現況 | 空 | 引渡 | 即 |
| その他費用 | |||
| 備考 | ・表題登記関連費用:110,000円(税込)別途要 ・長期優良住宅関連費用:110,000円(税込)別途要 ・造付バルコニー面積:約3.31㎡ ・大日・八雲東町地区防災街区整備地区計画 |
||
| 物件番号 | 4532445 | 取引態様 | 媒介 |
取扱店舗情報
| 電話番号 | 050-5805-9447 |
|---|---|
| 所在地 | 〒536-0006 大阪府大阪市城東区野江4丁目10-13 クリエイト野江内代1F |
| 営業時間 | 10:00~19:00 |
| 定休日 | なし |
| 宅建免許番号 | 国土交通大臣(1)第10706号 |
| アクセス | 店舗への地図はこちら |

来店ご予約
- 大阪府
マイページ物件数 - 16,040件
最近見た物件
-
-

-
- 新築一戸建て
- 4,290万円
-
東大和市高木2丁目
-
西武多摩湖線武蔵大和
-
-
-

-
- 土地
- 1,580万円
-
名古屋市港区船頭場1丁目
-
近鉄名古屋線伏屋
-
-
-

-
- 新築一戸建て
- 2,498万円
-
丸亀市津森町
-
JR予讃線丸亀
-
大阪府新築一戸建て新着物件
- お近くの店舗を探す
-
おすすめ物件
-
-

-
- 新築一戸建て
- 4,800万円
-
高槻市日吉台四番町
-
JR東海道線高槻
-
-
-

-
- 新築一戸建て
- 4,780万円
-
堺市北区百舌鳥本町2丁
-
JR阪和線百舌鳥
-
-
-

-
- 新築一戸建て
- 3,899万円
-
高槻市川西町1丁目
-
JR東海道線高槻
-
-
-

-
- 新築一戸建て
- 2,948万円
-
泉大津市松之浜町2丁目
-
南海電鉄本線松ノ浜
-
-
-

-
- 新築一戸建て
- 5,180万円
-
高槻市北昭和台町
-
阪急電鉄京都線総持寺
-
-
-

-
- 新築一戸建て
- 6,800万円
-
箕面市稲5丁目
-
北大阪急行南北線箕面船場阪大前
-
-
-

-
- 新築一戸建て
- 3,850万円
-
泉大津市昭和町
-
南海電鉄本線泉大津
-
-
-

-
- 新築一戸建て
- 3,880万円
-
茨木市橋の内3丁目
-
阪急電鉄京都線総持寺
-
-
-

-
- 新築一戸建て
- 3,680万円
-
高槻市津之江町2丁目
-
JR東海道線摂津富田
-
-
-

-
- 新築一戸建て
- 5,998万円
-
高槻市川西町3丁目
-
JR東海道線高槻
-












担当エージェント:尾関 親代
東梅田まで乗り換えなし18分の好立地!
通勤通学に便利な3沿線3駅利用可!
落ち着いた住環境でファミリー層にも単身者にも◎♪
住宅ローン相談会開催中です!
ぜひお気軽にお問い合わせください!