西尾市寺津町亀井の新築戸建
掲載情報更新日:2026年02月17日 次回更新予定日:2026年03月03日
- 2,190万円
-
- 借入ご希望金額
万円 - 借入期間
年 - 借入金利
% - 月々のお支払い金額
円
- 借入ご希望金額
※ 月々のお支払例は目安の試算となりますので、実際の金額とは異なる場合がございます。詳しくは店舗までお問合わせください。
- 西尾市寺津町亀井
-
名鉄西尾線『福地』 車9分(約4.6km)
名鉄三河線『碧南』 バス乗車16分 ふれんどバス 碧南高校(平坂港前・碧南駅経由) 寺津二ツ家 停 徒歩5分 (約400m)
名鉄西尾線『上横須賀』 車14分(約7.4km)
西尾市寺津町亀井一戸建て | 物件情報
\新登場/寺津小・寺津中/まずは資料請求大歓迎!キャンペーンも開催中♪
【ハウスドゥ幸田 独自のキャンペーン!】
2026/3/31までにご購入申込みのお客様限定!
エアコン1台設置!または豊富なオプションカタログから選べる「10万円分」プレゼント!
【イチオシポイント】
◎住宅性能評価取得!
◎防犯カメラ&モニター付きインターホン!防犯面◎
◎全居室複層ガラス・収納付き!
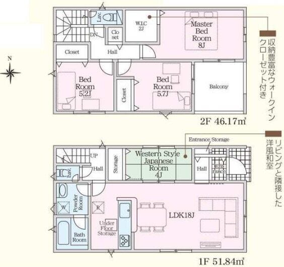
◎LDK18帖!リビングに隣接する洋風和室は、お子様の遊び場や客間としてお使いいただけます♪
【学校】
◎寺津小学校 徒歩約14分
◎寺津中学校 徒歩約14分
◎名鉄西尾線 福地駅
物件の設備
- 電気
- 上水道
- 公営水道
- 公共下水
- プロパンガス
- 個別プロパン
- 浄水器
- コンロ三口
- カウンターキッチン
- システムキッチン
- バス
- ユニットバス
- オートバス
- 追焚機能
- 浴室暖房
- 浴室乾燥機
- 浴室に窓
- トイレ
- トイレ2箇所
- 温水洗浄便座
- 室内洗濯機置場
- 洗髪洗面化粧台
- 洗面所独立
- 人感照明センサー
- ディンプルキー
- モニタ付インターホン
- 防犯カメラ
- 火災警報器/報知機
- LDK18畳以上
- 和室
- 2面採光
- 複層ガラス
- 全居室複層ガラス
- フローリング
- 24時間換気システム
- クローゼット
- クローゼット3箇所
- ウォークインクローゼット
- 床下収納
- 全居室収納
- シューズボックス
- ルーフバルコニー
物件の特徴
- 南向
- 地盤調査済
- 耐震構造
- 3沿線以上利用可
- 前道6m以上
- 閑静な住宅街
- 通風良好
- 陽当り良好
- 2階建
- 平坦地
- 外壁サイディング
- 建設住宅性能評価付
物件詳細情報
| 価格 | 2,190万円 | 間取り | 4LDK |
|---|---|---|---|
| 物件種別 | 新築一戸建て | ||
| 所在地 | 愛知県西尾市寺津町亀井 1号棟 | ||
| アクセス |
|
||
| 建物面積 | 公98.01㎡ | 駐車場 | あり 普通:2台 |
| 築年月 | 2026年(令和8年)02月予定 | 建築確認 | 第HPA-25-13170-1号 |
| 建物構造 | 木造 アスファルトシングル葺 2階建 | 工法 | |
| 主要採光 | バルコニー | 7.29㎡ | |
| 保証・評価 | 建設住宅性能評価書(新築時) |
||
| 分譲情報 | 【販売戸数】:2戸 【価格】:2,290万円 ~2,390万円 【土地面積】:156.62㎡ ~162.72㎡ |
||
| 土地面積 | 公162.72㎡(49.22坪) | 接道 | 東側(公道)幅 約8.0m 間口 約9.10m |
| 私道 | セットバック | ||
| 地目 | 宅地 | 地勢 | 平坦 |
| 権利 | 所有権 |
||
| 都市計画 | 市街化区域 |
用途地域 | 1種住居 |
| 建ぺい/容積率 | 60% / 200% | 土地国土法 | |
| 許可番号 | 建築基準法 | ||
| 法令制限 | 宅地造成及び特定盛土等規制法・法22条区域 | ||
| 小学区 | 寺津小学校 徒歩14分 (約1075m) | 中学区 | 寺津中学校 徒歩14分 (約1085m) |
| 現況 | 建築中 | 引渡 | 期日指定:2026年02月以降 |
| その他費用 | |||
| 周辺環境 | 寺津保育園 徒歩8分 (約630m) 寺津中学校 徒歩14分 (約1070m) 寺津小学校 徒歩15分 (約1180m) 三河工芸ガラス美術館 徒歩20分 (約1580m) いながき内科 徒歩23分 (約1840m) ファミリーマート矢田小南店 徒歩26分 (約2040m) 矢田保育園 徒歩27分 (約2160m) あすなろ児童クラブ 徒歩28分 (約2200m) 国森公園 徒歩31分 (約2430m) マックスバリュ西尾新在家店 徒歩41分 (約3210m) |
||
| 備考 | ◎子育てグリーン住宅 詳しくはお問い合わせくださいませ! |
||
| 物件番号 | 4532631 | 取引態様 | 媒介 |
取扱店舗情報
ハウスドゥ 幸田 株式会社アールクローバー 店舗詳細ページへ
| 電話番号 | 0564-73-1620 |
|---|---|
| 所在地 | 〒444-0117 愛知県額田郡幸田町大字相見字沖原69番地 アヴニール相見101号室 |
| 営業時間 | 9:00~18:00 |
| 定休日 | 水曜日 |
| 宅建免許番号 | 愛知県知事(1)第26226号 |
| アクセス | 店舗への地図はこちら |

来店ご予約
愛知県西尾市で価格が似ている物件はこちら
- 愛知県
マイページ物件数 - 32,001件
最近見た物件
-
-

-
- 中古一戸建て
- 4,300万円
-
松本市城山
-
JR大糸線北松本
-
愛知県新築一戸建て新着物件
-
-

-
- 新築一戸建て
- 2,490万円
-
あま市森1丁目
-
名鉄名古屋本線大里駅
-
-
-

-
- 新築一戸建て
- 2,290万円
-
あま市森1丁目
-
名鉄名古屋本線大里駅
-
-
-

-
- 新築一戸建て
- 2,690万円
-
あま市森1丁目
-
名鉄名古屋本線大里駅
-
-
-

-
- 新築一戸建て
- 3,910万円
-
名古屋市守山区川村町
-
ガイドウェイバス志段味線川村駅
-
-
-

-
- 新築一戸建て
- 4,090万円
-
名古屋市守山区川村町
-
ガイドウェイバス志段味線川村駅
-
-
-

-
- 新築一戸建て
- 3,090万円
-
丹羽郡大口町余野2丁目
-
名鉄犬山線柏森駅
-
-
-

-
- 新築一戸建て
- 3,290万円
-
丹羽郡大口町余野2丁目
-
名鉄犬山線柏森駅
-
- お近くの店舗を探す
-
おすすめ物件
-
-

-
- 新築一戸建て
- 6,180万円
-
名古屋市昭和区長戸町3丁目
-
名古屋市鶴舞線川名
-
-
-

-
- 新築一戸建て
- 2,680万円
-
愛西市草平町六下
-
名鉄尾西線六輪
-
-
-

-
- 新築一戸建て
- 2,690万円
-
清須市春日弐屋敷
-
JR東海道本線清洲
-
-
-

-
- 新築一戸建て
- 3,590万円
-
瀬戸市さつき台2丁目
-
愛知環状鉄道瀬戸市
-
-
-

-
- 新築一戸建て
- 2,780万円
-
弥富市五斗山3丁目
-
近鉄名古屋線佐古木
-
-
-

-
- 新築一戸建て
- 2,890万円
-
知多郡武豊町字土穴
-
名鉄河和線知多武豊
-
-
-

-
- 新築一戸建て
- 2,780万円
-
知多市金沢字郷中
-
名鉄常滑線新舞子
-
-
-

-
- 新築一戸建て
- 2,890万円
-
常滑市青海町6丁目
-
名鉄常滑線西ノ口
-
-
-

-
- 新築一戸建て
- 3,790万円
-
あま市甚目寺市場
-
名鉄津島線甚目寺
-
-
-

-
- 新築一戸建て
- 2,880万円
-
海部郡蟹江町宝4丁目
-
近鉄名古屋線近鉄蟹江
-




























【ハウスドゥ幸田 株式会社アクア】
■何を相談して良いか、わからなくても大丈夫♪
■皆様のライフプランに寄り添ったご提案♪
■自己資金0円で購入出来る方法♪
■月々の支払いでご不安な方も、お気軽にどうぞ♪