行橋市南大橋1丁目の新築戸建
掲載情報更新日:2026年04月10日 次回更新予定日:2026年04月24日
- 2,898万円
-
- 借入ご希望金額
万円 - 借入期間
年 - 借入金利
% - 月々のお支払い金額
円
- 借入ご希望金額
※ 月々のお支払例は目安の試算となりますので、実際の金額とは異なる場合がございます。詳しくは店舗までお問合わせください。
- 行橋市南大橋1丁目
-
JR日豊本線『南行橋』 徒歩11分 (約880m)
行橋市南大橋1丁目一戸建て | 物件情報
仲介手数料無料キャンペーン実施中♪(新築物件のみ)年度内のお引越しを考えるなら、今がチャンス♪
仲介手数料無料キャンペーン実施中♪(新築物件のみ)年度内のお引越しを考えるなら、今がチャンス♪
■行橋南小学校まで徒歩11分♪
■行橋中学校まで徒歩20分!!
■ゆめタウン南行橋店まで徒歩13分♪
■システムキッチンは食器洗い乾燥機付き♪
■パントリーもあるので、食材の保管もOK♪
■ウォークインクローゼットでお部屋スッキリ♪
■浴室乾燥機で雨の日も洗濯物が安心ですね!
■2階の洋室3部屋はお子様が成長しても使える広さです♪
■南面バルコニーで陽当たり良好♪
■アフターサポート10年!フラット35S対応!ZEH水準物件です♪
お家の購入はワクワクと不安の連続だと思います。その「不安」の部分を小さくしていくことが、私達の出番だと考えています!
内見したから購入しなきゃ・・・ではありません♪たくさん内見することが、購入の第一歩です!是非お気軽に予約してくださいね♪
物件の設備
- 電気
- 公営水道
- 浄化槽
- プロパンガス
- 個別プロパン
- 浄水器
- 食器乾燥機
- 食器洗浄乾燥機
- 食品庫
- コンロ三口
- カウンターキッチン
- システムキッチン
- オートバス
- 追焚機能
- 浴室暖房
- 浴室乾燥機
- トイレ2箇所
- 温水洗浄便座
- 室内洗濯機置場
- 洗髪洗面化粧台
- リビング階段
- ダブルロックキー
- モニタ付インターホン
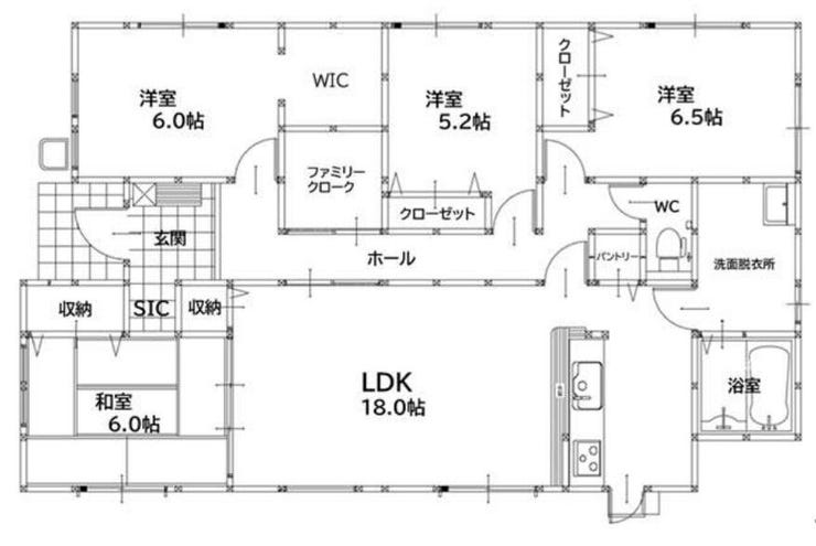
- LDK18畳以上
- 和室
- 複層ガラス
- シャッター雨戸
- ウォークインクローゼット
- 全居室収納
- シューズインクローク
物件の特徴
- 地盤調査済
- 閑静な住宅街
- 陽当り良好
- 2階建
- 建築確認完了検査済証
- フラット35
- S適合証明書
- フラット35Sに対応
物件詳細情報
| 価格 | 2,898万円 | 間取り | 4LDK |
|---|---|---|---|
| 物件種別 | 新築一戸建て | ||
| 所在地 | 福岡県行橋市南大橋1丁目 | ||
| アクセス |
|
||
| 建物面積 | 104.34㎡ | 駐車場 | あり 普通:3台 軽:1台 |
| 築年月 | 2026年(令和8年)02月予定 | 建築確認 | 第KJH25-01603-1号 |
| 建物構造 | 木造 2階建 | 工法 | |
| 主要採光 | バルコニー | ||
| 保証・評価 | フラット35S適合証明書 |
||
| 土地面積 | 233.03㎡(70.49坪) | 接道 | 南西側(公道)幅 約4.0m |
| 私道 | セットバック | ||
| 地目 | 宅地 | 地勢 | |
| 権利 | 所有権 |
||
| 都市計画 | 非線引区域 |
用途地域 | 1種住居 |
| 建ぺい/容積率 | 60% / 160% | 土地国土法 | |
| 許可番号 | 建築基準法 | ||
| 法令制限 | |||
| 小学区 | 行橋南小学校 徒歩11分 (約850m) | 中学区 | 行橋中学校 徒歩20分 (約1600m) |
| 現況 | 建築中 | 引渡 | 期日指定:2026年03月 |
| その他費用 | |||
| 備考 | 仲介手数料無料キャンペーン実施中♪(新築物件のみ)年度内のお引越しを考えるなら、今がチャンス♪ ■行橋南小学校まで徒歩11分♪ ■行橋中学校まで徒歩20分!! ■ゆめタウン南行橋店まで徒歩13分♪ ■システムキッチンは食器洗い乾燥機付き♪ ■パントリーもあるので、食材の保管もOK♪ ■ウォークインクローゼットでお部屋スッキリ♪ ■浴室乾燥機で雨の日も洗濯物が安心ですね! ■2階の洋室3部屋はお子様が成長しても使える広さです♪ ■南面バルコニーで陽当たり良好♪ ■アフターサポート10年!フラット35S対応!ZEH水準物件です♪ お家の購入はワクワクと不安の連続だと思います。その「不安」の部分を小さくしていくことが、私達の出番だと考えています! 内見したから購入しなきゃ・・・ではありません♪たくさん内見することが、購入の第一歩です!是非お気軽に予約してくださいね♪ |
||
| 物件番号 | 4541399 | 取引態様 | 媒介 |
取扱店舗情報
ハウスドゥ 片野四丁目 株式会社J factories 店舗詳細ページへ
| 電話番号 | 093-330-1255 |
|---|---|
| 所在地 | 〒802-0064 福岡県北九州市小倉北区片野四丁目19-8 ラクーレV片野 103号 |
| 営業時間 | 10:00~18:00 |
| 定休日 | 水曜日、年末年始 |
| 宅建免許番号 | 福岡県知事(1)第20904号 |
| アクセス | 店舗への地図はこちら |

来店ご予約
福岡県行橋市で価格が似ている物件はこちら
- 福岡県
マイページ物件数 - 8,384件
最近見た物件
-
-

-
- 新築一戸建て
- 3,698万円
-
北九州市八幡西区大字本城
-
JR筑豊本線本城
-
-
-

-
- 収益
- 1,088万円
-
和泉市室堂町
-
南海電鉄泉北線光明池
-
-
-

-
- 新築一戸建て
- 4,390万円
-
広島市東区曙4丁目
-
JR山陽新幹線広島
-
福岡県新築一戸建て新着物件
-
-

-
- 新築一戸建て
- 3,188万円
-
福津市津屋崎3丁目
-
JR鹿児島本線福間駅
-
-
-

-
- 新築一戸建て
- 2,988万円
-
福津市津屋崎3丁目
-
JR鹿児島本線福間駅
-
-
-

-
- 新築一戸建て
- 4,888万円
-
福岡市東区八田1丁目
-
JR香椎線土井駅
-
-
-

-
- 新築一戸建て
- 4,498万円
-
福岡市南区和田4丁目
-
西鉄天神大牟田線大橋駅
-
-
-

-
- 新築一戸建て
- 4,398万円
-
福岡市南区和田4丁目
-
西鉄天神大牟田線大橋駅
-
-
-

-
- 新築一戸建て
- 4,598万円
-
福岡市南区和田4丁目
-
西鉄天神大牟田線大橋駅
-
-
-

-
- 新築一戸建て
- 4,499万円
-
福岡市東区三苫2丁目
-
JR香椎線奈多駅
-
- お近くの店舗を探す
-
おすすめ物件
-
-

-
- 新築一戸建て
- 4,298万円
-
福岡市南区長住1丁目
-
西鉄天神大牟田線高宮
-
-
-

-
- 新築一戸建て
- 3,298万円
-
宗像市徳重
-
JR鹿児島本線教育大前
-
-
-

-
- 新築一戸建て
- 3,699万円
-
福津市福間南3丁目
-
JR鹿児島本線福間
-
-
-

-
- 新築一戸建て
- 4,398万円
-
福岡市南区長住1丁目
-
西鉄天神大牟田線高宮
-
-
-

-
- 新築一戸建て
- 4,098万円
-
那珂川市今光8丁目
-
JR博多南線博多南
-
-
-

-
- 新築一戸建て
- 2,690万円
-
直方市新町3丁目
-
平成筑豊鉄道南直方御殿口
-
-
-

-
- 新築一戸建て
- 3,698万円
-
古賀市花見南3丁目
-
JR鹿児島本線千鳥
-
-
-

-
- 新築一戸建て
- 3,498万円
-
宗像市原町
-
JR鹿児島本線東郷
-
-
-

-
- 新築一戸建て
- 3,098万円
-
宗像市ひかりヶ丘4丁目
-
JR鹿児島本線東郷
-
-
-

-
- 新築一戸建て
- 4,299万円
-
福岡市南区皿山1丁目
-
西鉄天神大牟田線高宮
-





担当エージェント:長島 孝憲
新築戸建、仲介手数料無料キャンペーン実施中♪
全国729店舗展開中のハウスドゥだから安心・丁寧なご案内♪物件のご案内から資金計画、ご契約までフルサポートさせて頂きます!平日・土日問わずご案内可能ですので、お気軽に御連絡下さいね!
不動産所有権移転登記、抵当権設定登記(住宅ローン購入時)、銀行手数料(住宅ローン購入時)、固定資産税等の税金、火災保険など…お家購入は諸費用があります!案内時に御説明OKです♪