新築戸建 倉敷市児島下の町 琴浦小学校・琴浦中学校エリア
掲載情報更新日:2026年03月11日 次回更新予定日:2026年03月25日
- 3,700万円
-
- 借入ご希望金額
万円 - 借入期間
年 - 借入金利
% - 月々のお支払い金額
円
- 借入ご希望金額
※ 月々のお支払例は目安の試算となりますので、実際の金額とは異なる場合がございます。詳しくは店舗までお問合わせください。
- 倉敷市児島下の町5丁目
-
JR本四備讃線『上の町』 徒歩14分 (約1120m)
新築戸建 倉敷市児島下の町 琴浦小学校・琴浦中学校エリア一戸建て | 物件情報
フラット35s対応!長期優良住宅申請あり!多様化するご家族のライフスタイルに寄り添う広々5LDK♪
◎ネットからご来店予約でQuoカード1000円分プレゼント
☆外構工事&照明・レースカーテン・エアコン2台付き♪
☆安心して暮らせる耐震・高断熱住宅♪
\*おすすめPOINT*/
■リビング横の和室がお子様からご両親、みんなに嬉しい♪
■水回り集中設計で生活しやすい♪
■全居室収納あり♪お部屋すっきりが叶います♪
■嬉しい南向きバルコニー♪
\*周辺環境*/
☆ニシナフードバスケット児島下の町店 徒歩8分(約570m)
☆セブンイレブン 倉敷児島山際店 徒歩7分(約490m)
☆琴浦西小学校 徒歩9分(約700m)
『全国700店舗展開の情報ネットワーク!』
◆物件見学・オープンハウス随時開催!◆
◇資金計画、住宅ローン、リフォーム、火災保険提案
◇弊社提携の金融機関や税理士による無料相談
◇店内キッズコーナー
◇ドリンクサービス充実
◎お一人、お子様を連れてのご来店歓迎!
\*ご予約・お問合せ*/
ハウスドゥ総社:0866-95-2775
お気軽にお問い合わせください♪
物件の設備
- 電気
- 上水道
- 公営水道
- 下水道
- 公共下水
- プロパンガス
- 個別プロパン
- 給湯
- 食器洗浄乾燥機
- カウンターキッチン
- バス
- バス1坪以上
- 追焚機能
- 浴室暖房
- 浴室乾燥機
- 浴室に窓
- トイレ
- トイレ2箇所
- 温水洗浄便座
- タンクレストイレ
- 室内洗濯機置場
- 洗髪洗面化粧台
- 洗面所独立
- エアコン2基
- 照明器具
- ダウンライト
- フットライト
- 人感照明センサー
- 省エネ給湯器
- EV車充電設備
- ディンプルキー
- ダブルロックキー
- 非接触型ICカードキー
- モニタ付インターホン
- LDK18畳以上
- 2面採光
- 複層ガラス
- 全居室複層ガラス
- フローリング
- クローゼット2箇所
- ウォークインクローゼット2箇所
- 全居室収納
- 昇降ウォール収納
- シューズボックス
物件の特徴
- 高断熱住宅
- ノンホルムアルデヒド
- 地盤調査済
- 耐震構造
- 制震構造
- 駅まで平坦
- スーパーが近い
- 市街地が近い
- 2階建
- 平坦地
- 区画整理地内
- 外壁サイディング
- 建築確認完了検査済証
- 新築
- 増改築設計図書
- フラット35Sに対応
物件詳細情報
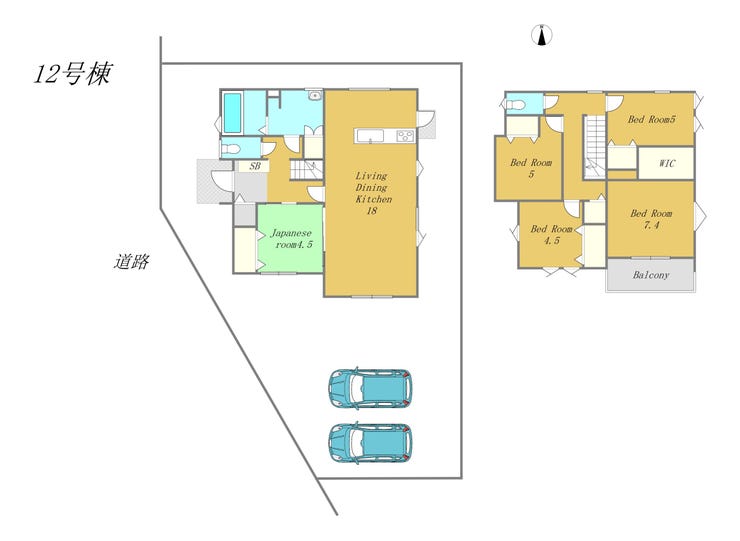
| 価格 | 3,700万円 | 間取り | 5LDK |
|---|---|---|---|
| 物件種別 | 新築一戸建て | ||
| 所在地 | 岡山県倉敷市児島下の町5丁目 12号棟 | ||
| アクセス |
|
||
| 建物面積 | 116.77㎡ | 駐車場 | あり 普通:3台 |
| 築年月 | 2025年(令和7年)08月築 | 建築確認 | 第HP04-3974995号 |
| 建物構造 | 木造 2階建 | 工法 | |
| 主要採光 | バルコニー | ||
| 保証・評価 | |||
| 土地面積 | 159.51㎡(48.25坪) | 接道 | 西側(公道)幅 約4.5m |
| 私道 | セットバック | ||
| 地目 | 宅地 | 地勢 | 平坦 |
| 権利 | 所有権 |
||
| 都市計画 | 市街化区域 |
用途地域 | 準工業 |
| 建ぺい/容積率 | 60% / 200% | 土地国土法 | |
| 許可番号 | 建築基準法 | ||
| 法令制限 | |||
| 小学区 | 琴浦西小学校 徒歩9分 (約700m) | 中学区 | 琴浦中学校 徒歩20分 (約1600m) |
| 現況 | 完工済 | 引渡 | 未記入 |
| その他費用 | |||
| 周辺環境 | ニシナフードバスケット児島下の町店 徒歩8分 (約570m) セブンイレブン 倉敷児島山際店 徒歩7分 (約490m) |
||
| 備考 | ・地デジ電波の受信が不安定な為、ケーブルTVへの契約推奨。 ・初期保証15年対象物件 完成後未入居物件 ウエノ歯科医院 徒歩8分 600m ニシナフードバスケット児島下の町店 徒歩8分 650m ディオマート 児島店 徒歩14分 1000m 下の町乳児保育園 徒歩17分1.1Km なんば小児科医院 徒歩22分1.5Km 中山公園 車3分1.6Km 田嶋内科 車7分3.4Km |
||
| 物件番号 | 4547768 | 取引態様 | 媒介 |
取扱店舗情報
| 電話番号 | 0866-95-2775 |
|---|---|
| 所在地 | 〒719-1131 岡山県総社市中央1丁目21-101 |
| 営業時間 | 10:00~18:00 |
| 定休日 | 火曜日、水曜日、年末年始 |
| 宅建免許番号 | 岡山県知事(2)第5846号 |
| アクセス | 店舗への地図はこちら |

来店ご予約
岡山県倉敷市で価格が似ている物件はこちら
- 岡山県
マイページ物件数 - 4,450件
岡山県新築一戸建て新着物件
- お近くの店舗を探す
-













★初めてお問い合わせいただくお客様へ
1.物件について詳細をご説明します。(オンライン可)
2.お客様のご希望をどうぞお聞かせください♪
3.今後の流れを具体的にご案内
所要時間:約30分~1時間
★物件を見に行こう
所要時間: 1時間~1時間半(移動時間を除く)
気になる物件をじっくりとご確認いただけます。
現地で実際に確かめてください♪
周辺環境など実際の生活を想定したご案内をします。
+‥‥▼お電話でのご予約、ご質問・ご要望はこちらまで▼‥‥+
TEL:0866-95-2775
ハウスドゥ 総社
◆ご売却◆
売却相談、査定も承っております。
相続やお住み替え、リースバック
不用品の処分や片付けも対応!
ご売却までの流れなどお気軽にご相談ください。