札幌市東区北二十七条東7丁目の新築戸建
NEW 01.10掲載情報更新日:2026年01月22日 次回更新予定日:2026年02月05日
- 4,180万円
-
- 借入ご希望金額
万円 - 借入期間
年 - 借入金利
% - 月々のお支払い金額
円
- 借入ご希望金額
※ 月々のお支払例は目安の試算となりますので、実際の金額とは異なる場合がございます。詳しくは店舗までお問合わせください。
- 札幌市東区北二十七条東7丁目
-
札幌市東豊線『元町』 徒歩18分 (約1440m)
札幌市東豊線『東区役所前』 バス乗車9分 中央バス 北26条東8丁目 停 徒歩3分 (約240m)
札幌市南北線『さっぽろ』 バス乗車22分 中央バス 北26条東8丁目 停 徒歩3分 (約240m)
札幌市東区北二十七条東7丁目一戸建て | 物件情報
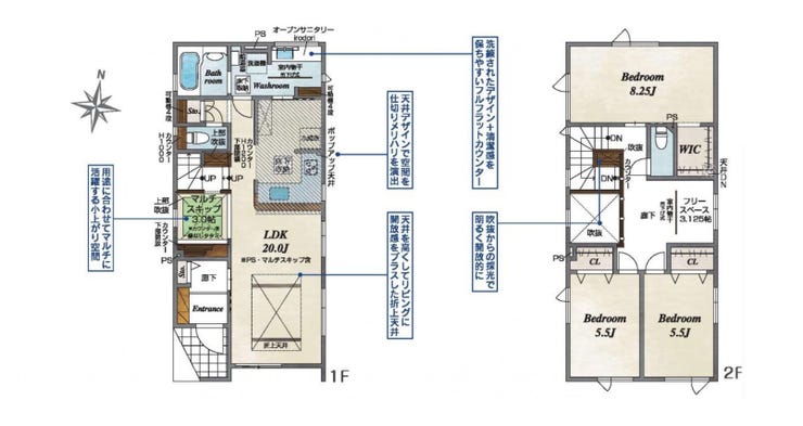
「空間を遊ぶ家。」~フリースペースも収納も、贅沢。一段上の、暮らし心地を~
.
\ 将来まで安心が続く、国が認めた高品質住宅 /
■ 地下鉄南北線・東豊線の2路線利用可
■ 乗り換え不要♪バス1本で札幌駅まで快適アクセス
■ 令和7年12月完成、新築ならではの清潔感で気持ちよく始める新生活
■ 車2台駐車可能な安心設計
■ 建坪31.6坪のちょうどいい3LDK+S
■ お子様の勉強スペースに便利なマルチスキップ
■ 家族と会話が弾む対面式キッチン
■ 混雑を避けられるトイレ2ヶ所
■ 2階フリースペースは物干し付きで家事楽々
■ ゆとりの約8.2帖主寝室と、子ども部屋に最適な約5.5帖洋室×2
■ 主寝室にはWICがあり、収納豊富
お気軽にお問い合わせください♪
物件の設備
- 電気
- 公営水道
- 公共下水
- 都市ガス
- 食器洗浄乾燥機
- コンロ三口
- カウンターキッチン
- システムキッチン
- 2WAYキッチン
- バス
- 浴室暖房
- 浴室乾燥機
- 浴室に窓
- トイレ
- トイレ2箇所
- 温水洗浄便座
- 高機能トイレ
- 室内洗濯機置場
- 洗髪洗面化粧台
- 洗面所独立
- ダウンライト
- リビング階段
- 省エネ給湯器
- モニタ付インターホン
- LDK20畳以上
- 全室2面採光
- 吹抜
- フローリング
- 全室フローリング
- クローゼット
- クローゼット3箇所
- ウォークインクローゼット
- 床下収納
- 全居室収納
物件の特徴
- 南向
- 2沿線利用可
- 小学校徒歩10分以内
- 前道6m以上
- 南側道路面す
- 整備された歩道
- スーパーが近い
- 閑静な住宅街
- 市街地が近い
- 通風良好
- 陽当り良好
- 2階建
- 平坦地
- 整形地
物件詳細情報
| 価格 | 4,180万円 | 間取り | 3LDK+S |
|---|---|---|---|
| 物件種別 | 新築一戸建て | ||
| 所在地 | 北海道札幌市東区北二十七条東7丁目1-27 | ||
| アクセス |
|
||
| 建物面積 | 公104.54㎡ | 駐車場 | あり 普通:2台 |
| 築年月 | 2025年(令和7年)12月築 | 建築確認 | 第R07SHC113823号 |
| 建物構造 | 木造 2階建 | 工法 | |
| 主要採光 | 南東向 | バルコニー | |
| 保証・評価 | |||
| 土地面積 | 公112.63㎡(34.07坪) | 接道 | 南側(公道)幅 約14.5m |
| 私道 | セットバック | ||
| 地目 | 宅地 | 地勢 | |
| 権利 | 所有権 |
||
| 都市計画 | 市街化区域 |
用途地域 | 2種中高 |
| 建ぺい/容積率 | 60% / 200% | 土地国土法 | |
| 許可番号 | 建築基準法 | ||
| 法令制限 | |||
| 小学区 | 北園小学校 徒歩9分 (約700m) | 中学区 | 北栄中学校 徒歩15分 (約1200m) |
| 現況 | 完工済 | 引渡 | 期日指定:2026年01月下旬 |
| その他費用 | |||
| 周辺環境 | ハッピー30条店 徒歩6分 (約430m) 東光ストア 美香保店 徒歩7分 (約500m) セイコーマート 北27条東店 徒歩2分 (約120m) ツルハドラッグ北26条店 徒歩12分 (約910m) 北園小学校 徒歩9分 (約700m) 北栄中学校 徒歩15分 (約1200m) 札幌北二十四条郵便局 徒歩6分 (約410m) 大学村の森 徒歩7分 (約530m) ローソン 札幌北25東七丁目店 徒歩2分 (約160m) 岩田皮膚科 徒歩4分 (約250m) |
||
| 備考 | |||
| 物件番号 | 4548398 | 取引態様 | 媒介 |
取扱店舗情報
| 電話番号 | 011-299-9256 |
|---|---|
| 所在地 | 〒007-0842 北海道札幌市東区北42条東16丁目1-1 |
| 営業時間 | 9:00~18:00 |
| 定休日 | 水曜日、年末年始 |
| 宅建免許番号 | 北海道知事石狩(2)第8906号 |
| アクセス | 店舗への地図はこちら |

来店ご予約
北海道札幌市東区で価格が似ている物件はこちら
- 北海道
マイページ物件数 - 6,082件
最近見た物件
北海道新築一戸建て新着物件
-
-

-
- 新築一戸建て
- 3,980万円
-
恵庭市駒場町1丁目
-
JR千歳線恵庭駅
-
-
-

-
- 新築一戸建て
- 3,490万円
-
札幌市東区本町一条6丁目
-
札幌市東豊線環状通東駅
-
-
-

-
- 新築一戸建て
- 4,780万円
-
札幌市西区西野四条7丁目
-
札幌市東西線宮の沢駅
-
-
-

-
- 新築一戸建て
- 2,360万円
-
帯広市東七条南19丁目
-
JR根室本線帯広駅
-
-
-

-
- 新築一戸建て
- 2,360万円
-
帯広市東六条南19丁目
-
JR根室本線帯広駅
-
-
-

-
- 新築一戸建て
- 2,684万円
-
帯広市西十二条北5丁目
-
JR根室本線帯広駅
-
-
-

-
- 新築一戸建て
- 2,684万円
-
帯広市西十二条北5丁目
-
JR根室本線帯広駅
-
- お近くの店舗を探す
-
おすすめ物件
-
-

-
- 新築一戸建て
- 2,642.50万円
-
帯広市西十九条南2丁目
-
JR根室本線柏林台
-
-
-

-
- 新築一戸建て
- 3,890万円
-
札幌市手稲区富丘一条7丁目
-
JR函館本線手稲
-
-
-

-
- 新築一戸建て
- 3,100万円
-
北見市東相内町
-
JR石北本線西北見
-
-
-

-
- 新築一戸建て
- 3,450万円
-
北見市中央三輪2丁目
-
JR石北本線西北見
-
-
-

-
- 新築一戸建て
- 3,490万円
-
札幌市北区北二十六条西15丁目
-
JR札沼線新川
-
-
-

-
- 新築一戸建て
- 3,790万円
-
札幌市手稲区富丘一条7丁目
-
JR函館本線手稲
-
-
-

-
- 新築一戸建て
- 4,580万円
-
札幌市豊平区福住二条9丁目
-
札幌市東豊線福住
-
-
-

-
- 新築一戸建て
- 4,630万円
-
札幌市西区西野四条2丁目
-
札幌市東西線発寒南
-
-
-

-
- 新築一戸建て
- 2,698万円
-
函館市花園町
-
函館市電本線湯川線函館アリーナ前
-

























担当エージェント:谷橋 力良
将来まで安心してお住まいいただける高性能住宅です。家事動線や収納力にも配慮し、毎日の暮らしやすさを大切にしました。ぜひ現地で、開放感と住み心地の良さをご体感ください。
お気軽にお問い合わせください!