名古屋市西区名西1丁目の新築戸建
掲載情報更新日:2026年03月15日 次回更新予定日:2026年03月29日
- 3,998万円
-
- 借入ご希望金額
万円 - 借入期間
年 - 借入金利
% - 月々のお支払い金額
円
- 借入ご希望金額
※ 月々のお支払例は目安の試算となりますので、実際の金額とは異なる場合がございます。詳しくは店舗までお問合わせください。
- 名古屋市西区名西1丁目
-
名鉄名古屋本線『栄生』 徒歩10分 (約800m)
名古屋市西区名西1丁目一戸建て | 物件情報
水曜日も営業しています! 営業時間外のご案内も柔軟に対応いたします お気軽にお問合せください♪
【不動産に関すお困りごとなら、どんなことでもご相談ください】 相談は無料です!!
◎買いたい方、売りたい方
◎現在のお住まい相談、リフォームの相談
◎住宅ローンで不安をお持ちの方や住宅ローンの見直し
【毎日お客様のご希望にあった物件見学ツアー開催可能です♪】
◎事前にご案内いただければスムーズにご案内できます!
◎平日・休日問わずいつでもご案内OK♪
◎お仕事が終わる時間が遅い方、不定休で急なお休みが取れた方、当日のご案内も可能です
◎お店の車でご案内できます♪送迎も可能です!
◎実際に足を運んで周辺環境の利便性や生活環境に関して比較することができます。
物件の特徴
- 前道6m以上
- 3階建以上
物件詳細情報
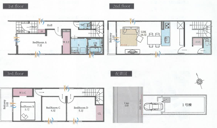
| 価格 | 3,998万円 | 間取り | 4LDK |
|---|---|---|---|
| 物件種別 | 新築一戸建て | ||
| 所在地 | 愛知県名古屋市西区名西1丁目 | ||
| アクセス |
|
||
| 建物面積 | 76.26㎡ | 駐車場 | あり |
| 築年月 | 2026年(令和8年)04月予定 | 建築確認 | 第KS125-0420-58696号 |
| 建物構造 | 木造 3階建 | 工法 | |
| 主要採光 | バルコニー | ||
| 保証・評価 | |||
| 分譲情報 | |||
| 土地面積 | 76.26㎡(23.06坪) | 接道 | 西側(公道)幅 約7.2m |
| 私道 | セットバック | ||
| 地目 | 宅地 | 地勢 | |
| 権利 | 所有権 |
||
| 都市計画 | 市街化区域 |
用途地域 | 近隣商業 |
| 建ぺい/容積率 | 80% / 200% | 土地国土法 | |
| 許可番号 | 建築基準法 | ||
| 法令制限 | |||
| 小学区 | 栄生小学校 徒歩9分 (約713m) | 中学区 | 天神山中学校 徒歩15分 (約1175m) |
| 現況 | 建築中 | 引渡 | 期日指定:2026年04月下旬 |
| その他費用 | |||
| 備考 | |||
| 物件番号 | 4550349 | 取引態様 | 媒介 |
取扱店舗情報
ハウスドゥ 中村公園駅西 株式会社クラウンエステート 店舗詳細ページへ
| 電話番号 | 052-526-0970 |
|---|---|
| 所在地 | 〒453-0054 愛知県名古屋市中村区鳥居西通2-8 |
| 営業時間 | 9:00~18:00 |
| 定休日 | 年末年始 |
| 宅建免許番号 | 愛知県知事(1)第25955号 |
| アクセス | 店舗への地図はこちら |

来店ご予約
愛知県名古屋市西区で価格が似ている物件はこちら
- 愛知県
マイページ物件数 - 32,408件
最近見た物件
-
-

-
- 中古一戸建て
- 820万円
-
土浦市烏山2丁目
-
JR常磐線土浦
-
-
-

-
- 土地
- 1,430万円
-
愛甲郡愛川町中津
-
小田急小田原線本厚木
-
-
-

-
- 新築一戸建て
- 2,790万円
-
熊本市東区月出7丁目
-
JR豊肥本線水前寺
-
愛知県新築一戸建て新着物件
-
-

-
- 新築一戸建て
- 4,680万円
-
名古屋市港区津金2丁目
-
名古屋市名港線東海通駅
-
-
-

-
- 新築一戸建て
- 3,192万円
-
名古屋市港区船頭場1丁目
-
名古屋市名港線東海通駅
-
-
-

-
- 新築一戸建て
- 3,292万円
-
名古屋市港区船頭場1丁目
-
名古屋市名港線東海通駅
-
-
-

-
- 新築一戸建て
- 3,292万円
-
名古屋市港区船頭場1丁目
-
名古屋市名港線東海通駅
-
-
-

-
- 新築一戸建て
- 4,980万円
-
名古屋市天白区元八事3丁目
-
名古屋市鶴舞線塩釜口駅
-
-
-

-
- 新築一戸建て
- 4,999万円
-
名古屋市中川区九重町
-
近鉄名古屋線黄金駅
-
-
-

-
- 新築一戸建て
- 4,999万円
-
名古屋市中川区九重町
-
近鉄名古屋線黄金駅
-
- お近くの店舗を探す
-
おすすめ物件
-
-

-
- 新築一戸建て
- 4,390万円
-
名古屋市瑞穂区鍵田町1丁目
-
名古屋市名城線新瑞橋
-
-
-

-
- 新築一戸建て
- 2,990万円
-
常滑市小倉町8丁目
-
名鉄常滑線大野町
-
-
-

-
- 新築一戸建て
- 2,490万円
-
あま市古道屋敷
-
名鉄津島線七宝
-
-
-

-
- 新築一戸建て
- 2,490万円
-
愛西市大井町浦田面
-
JR関西本線永和
-
-
-

-
- 新築一戸建て
- 2,680万円
-
知多市金沢字郷中
-
名鉄常滑線新舞子
-
-
-

-
- 新築一戸建て
- 4,590万円
-
日進市梅森台1丁目
-
名古屋市鶴舞線平針
-
-
-

-
- 新築一戸建て
- 4,099万円
-
名古屋市瑞穂区白砂町2丁目
-
名古屋市名城線瑞穂運動場東
-
-
-

-
- 新築一戸建て
- 3,180万円
-
名古屋市中川区戸田1丁目
-
JR関西本線春田
-
-
-

-
- 新築一戸建て
- 3,990万円
-
名古屋市南区呼続2丁目
-
名鉄名古屋本線呼続
-
-
-

-
- 新築一戸建て
- 2,680万円
-
弥富市東中地1丁目
-
JR関西本線弥富
-




【ハウスドゥグループ】
◎ 東証プライム上場企業、国内最大級の不動産FCを展開中
全ての不動産情報を公開、お客様に寄り添った提案を心掛けています
「安心」と「安全」な取引をモットーに店舗ネットワークを拡大、北海道から沖縄まで700店舗を展開中
【ハウスドゥ中村公園駅西】
見るだけ聞くだけOK!ハウスドゥ 中村公園駅西にお気軽にお問い合わせください!
メールでのお問合せの際は、物件について知りたい内容や希望の条件などを合わせて送っていただけますとよりお客様に寄り添ったご提案をさせて頂くことが可能です。