菊池郡大津町大字大津の新築戸建
NEW 01.18掲載情報更新日:2026年01月19日 次回更新予定日:2026年02月02日
- 3,398万円
-
- 借入ご希望金額
万円 - 借入期間
年 - 借入金利
% - 月々のお支払い金額
円
- 借入ご希望金額
※ 月々のお支払例は目安の試算となりますので、実際の金額とは異なる場合がございます。詳しくは店舗までお問合わせください。
- 菊池郡大津町大字大津
-
JR豊肥本線『肥後大津』 徒歩15分 (約1200m)
熊本電気鉄道『御代志』 車24分(約13.2km)
九州産交バス『引の水』 徒歩2分 (約160m)
菊池郡大津町大字大津一戸建て | 物件情報
《一気見ツアー今すぐOK》☆仲介手数料無料物件(107万円相当がお得!)お気軽にお問合せください♪
【内覧ツアー×最安値保証】ネットの物件、すべて当社で紹介可能!交渉力で「理想の価格」を叶えます
当社は通常かかる仲介手数料(物件価格の3%+6万円)が無料(例:3000万円の場合、90万円相当)
売主様への価格交渉も得意なので、どこよりもお安くご購入いただけるよう徹底サポートします!
他社様でお見積もりを取った後でも大丈夫!もっと安く買えるのでは?そんな悩みは当社が解決します
【内覧ツアー】
熊本県内全域の気になる物件をすべて当社でご内覧いただける『内覧ツアー』を実施中☆
新築・中古・中古マンションも!見学されたい物件を1日で内覧可能♪
窓口を一つに絞れるから、手間も時間もかかりません。
【最安値保証】
\最 安 値 徹 底 宣 言/
他社様よりも必ずお得にご購入いただけることをお約束します
当社ではオプション費用(エアコン、網戸、太陽光等)もお客様に代わり相見積もりします
トータルの費用が100万円以上変わることも!
全国700店舗以上展開!
ハウスドゥだからこその豊富な物件数・情報量でお客様のお家選びをトータルサポートいたします!
物件の設備
- 電気
- オール電化
- 公営水道
- 下水道
- 公共下水
- 給湯
- 浄水器
- 食器洗浄乾燥機
- IHクッキングヒータ
- コンロ三口
- グリル
- カウンターキッチン
- システムキッチン
- オープンキッチン
- バス
- ユニットバス
- オートバス
- バス1坪以上
- 追焚機能
- 浴室暖房
- 浴室乾燥機
- トイレ
- トイレ2箇所
- 室内洗濯機置場
- 洗髪洗面化粧台
- 洗面所独立
- 間接照明
- ダウンライト
- シーリングファン
- 省エネ給湯器
- ディンプルキー
- ダブルロックキー
- モニタ付インターホン
- 火災警報器/報知機
- LDK18畳以上
- 和室
- 吹抜
- 複層ガラス
- 全居室複層ガラス
- 一部フローリング
- 24時間換気システム
- 網戸
- クローゼット
- ウォークインクローゼット
- シューズインクローク
物件の特徴
- 2沿線利用可
- スーパーが近い
- 閑静な住宅街
- 通風良好
- 陽当り良好
- 2階建
- 角地
- 整形地
- 即入居可
- フラット35Sに対応
物件詳細情報
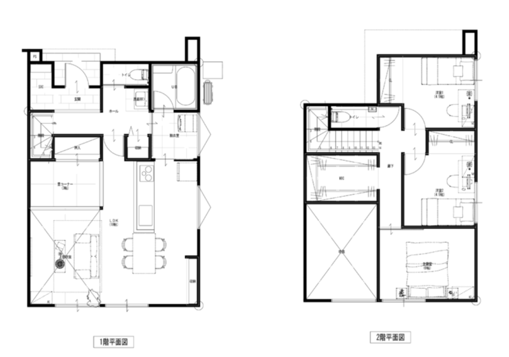
| 価格 | 3,398万円 | 間取り | 3LDK+S |
|---|---|---|---|
| 物件種別 | 新築一戸建て | ||
| 所在地 | 熊本県菊池郡大津町大字大津1465-1付近 2号地 | ||
| アクセス |
|
||
| 建物面積 | 99.57㎡ | 駐車場 | あり 普通:3台 |
| 築年月 | 2026年(令和8年)01月築 | 建築確認 | |
| 建物構造 | 木造 2階建 | 工法 | |
| 主要採光 | 南東向 | バルコニー | |
| 保証・評価 | |||
| 分譲情報 | |||
| 土地面積 | 141.54㎡(42.81坪) | 接道 | |
| 私道 | セットバック | ||
| 地目 | 宅地 | 地勢 | |
| 権利 | 所有権 |
||
| 都市計画 | 非線引区域 |
用途地域 | 1種中高 |
| 建ぺい/容積率 | 60% / 200% | 土地国土法 | |
| 許可番号 | 建築基準法 | ||
| 法令制限 | |||
| 小学区 | 大津小学校 徒歩11分 (約880m) | 中学区 | 大津中学校 徒歩15分 (約1160m) |
| 現況 | 完工済 | 引渡 | 即 |
| その他費用 | |||
| 周辺環境 | 大津小学校 徒歩11分 (約880m) 大津中学校 徒歩15分 (約1160m) おひさま保育園 徒歩5分 (約400m) セブン-イレブン 熊本大津店 徒歩15分 (約1150m) 鮮ど市場 大津店 徒歩8分 (約620m) のざわ医院 徒歩7分 (約540m) 大津郵便局 徒歩8分 (約620m) ドラッグストアコスモス 大津バイパス店 徒歩10分 (約740m) 美咲野1丁目西公園 徒歩13分 (約1000m) 大津町役場 徒歩12分 (約960m) |
||
| 備考 | ・大津小学校まで徒歩11分(約880m) ・大津中学校まで徒歩15分(約1160m) ・おひさま保育園まで徒歩5分(約400m) ・セブン-イレブン 熊本大津店まで徒歩15分(約1150m) ・鮮ど市場 大津店まで徒歩8分(約620m) ・のざわ医院まで徒歩7分(約540m) ・大津郵便局まで徒歩8分(約620m) ・ドラッグストアコスモス 大津バイパス店まで徒歩10分(約740m) ・美咲野1丁目西公園まで徒歩13分(約1000m) ・大津町役場まで徒歩12分(約960m) |
||
| 物件番号 | 4558472 | 取引態様 | 媒介 |
取扱店舗情報
ハウスドゥ 御幸田迎 株式会社Remado 店舗詳細ページへ
| 電話番号 | 096-243-3000 |
|---|---|
| 所在地 | 〒861-4108 熊本県熊本市南区幸田1丁目7-20 |
| 営業時間 | 9:30~18:00 |
| 定休日 | お盆、年末年始 |
| 宅建免許番号 | 熊本県知事(1)第5556号 |
| アクセス | 店舗への地図はこちら |

来店ご予約
熊本県菊池郡大津町で価格が似ている物件はこちら
- 熊本県
マイページ物件数 - 2,564件
最近見た物件
熊本県新築一戸建て新着物件
- お近くの店舗を探す
-
おすすめ物件
-
-

-
- 新築一戸建て
- 2,590万円
-
熊本市南区御幸笛田1丁目
-
JR豊肥本線南熊本
-
-
-

-
- 新築一戸建て
- 2,580万円
-
熊本市南区御幸笛田1丁目
-
JR豊肥本線南熊本
-
-
-

-
- 新築一戸建て
- 2,488万円
-
熊本市東区八反田1丁目
-
JR豊肥本線東海学園前
-
-
-

-
- 新築一戸建て
- 3,298万円
-
熊本市北区清水新地1丁目
-
熊本電気鉄道堀川
-
-
-

-
- 新築一戸建て
- 3,380万円
-
熊本市東区榎町
-
熊本市健軍線健軍町
-
-
-

-
- 新築一戸建て
- 3,198万円
-
合志市御代志
-
熊本電気鉄道御代志
-
-
-

-
- 新築一戸建て
- 2,998万円
-
熊本市南区幸田2丁目
-
JR豊肥本線平成
-

































担当エージェント:片山 久瑠実
【月々の支払い例】
3400万円借り入れの場合
月々68,451円(頭金・ボーナス払いなし)
金利0.780%の場合(SBI新生銀行、金利優遇有)
変動金利 返済期間50年
※あくまで一例。条件有。
【周辺環境】
・大津小学校まで徒歩11分(約880m)
・大津中学校まで徒歩15分(約1160m)
・おひさま保育園まで徒歩5分(約400m)
・セブン-イレブン 熊本大津店まで徒歩15分(約1150m)
・鮮ど市場 大津店まで徒歩8分(約620m)
・のざわ医院まで徒歩7分(約540m)
・大津郵便局まで徒歩8分(約620m)
・ドラッグストアコスモス 大津バイパス店まで徒歩10分(約740m)
・美咲野1丁目西公園まで徒歩13分(約1000m)
・大津町役場まで徒歩12分(約960m)
いつでもお気軽にご連絡ください☆彡
お問い合わせは『株式会社Remado』まで♪