調布市深大寺元町4丁目 新築戸建
NEW 01.19掲載情報更新日:2026年01月19日 次回更新予定日:2026年02月02日
- 5,290万円
-
- 借入ご希望金額
万円 - 借入期間
年 - 借入金利
% - 月々のお支払い金額
円
- 借入ご希望金額
※ 月々のお支払例は目安の試算となりますので、実際の金額とは異なる場合がございます。詳しくは店舗までお問合わせください。
- 調布市深大寺元町4丁目
-
京王線『調布』 バス乗車13分 神代植物公園前 停 徒歩7分 (約560m)
調布市深大寺元町4丁目 新築戸建一戸建て | 物件情報
■深大寺元町4丁目《限定1棟》 ■カースペース2台分あり ■3面採光で陽当り良好LDK
《Access》
・京王線「調布」駅 バス13分
・京王バス「神代植物公園前」停 徒歩7分
《Point》
・緑豊かで閑静な住宅街
・駐車も楽々カースペース付2台分♪(車種による)
・機能性を重視した間取り設計
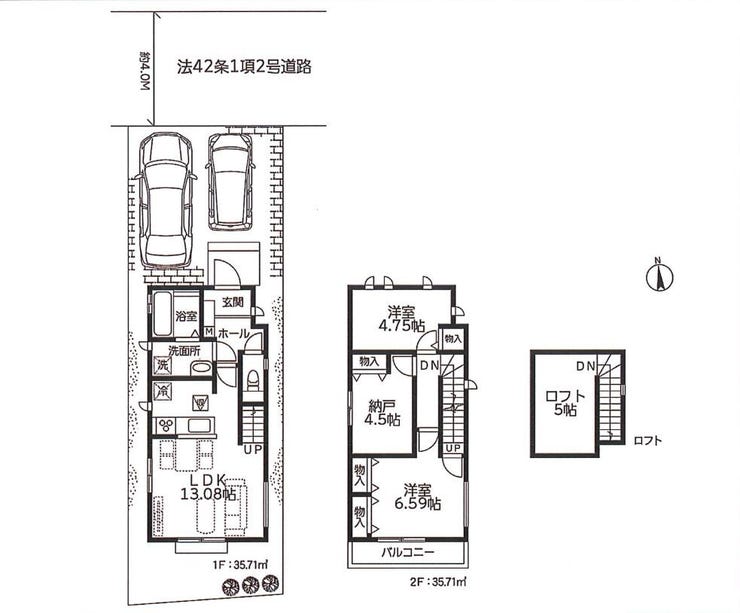
・2SLDK+ロフト
・南向き住戸 陽当り良好
・お庭スペースあり
◇Specification
・食器洗浄乾燥機
・浴室乾燥機
・1坪バス
・録画機能付きインターホン
・全室複層ガラス
・玄関断熱ドア
◎太陽光発電設備標準搭載
◎設計住宅性能評価書取得予定
◎建設住宅性能評価書取得予定
◆即日ご案内致します♪気軽にお問合せください♪
物件の設備
- 電気
- 公営水道
- 公共下水
- 都市ガス
- 給湯
- 浄水器
- 食器乾燥機
- 食器洗浄乾燥機
- コンロ三口
- グリル
- ガスコンロ付
- カウンターキッチン
- システムキッチン
- オープンキッチン
- バス
- オートバス
- バス1坪以上
- 追焚機能
- 浴室暖房
- 浴室乾燥機
- 浴室に窓
- トイレ
- 温水洗浄便座
- 室内洗濯機置場
- 洗髪洗面化粧台
- 洗面所独立
- リビング階段
- 太陽光発電システム
- 省エネ給湯器
- モニタ付インターホン
- 火災警報器/報知機
- ロフト
- 2面採光
- 3面採光
- 天井高2.5m以上
- 吹抜
- 複層ガラス
- 全居室複層ガラス
- フローリング
- 全室フローリング
- シャッター雨戸
- 24時間換気システム
- 網戸
- クローゼット
- クローゼット3箇所
- 納戸
- 床下収納
- 全居室収納
- シューズボックス
- 庭
- 南庭
物件の特徴
- 地盤調査済
- 耐震構造
- 緑豊かな住宅地
- 閑静な住宅街
- 周辺交通量少なめ
- 市街地が近い
- 都市近郊
- 眺望良好
- 通風良好
- 陽当り良好
- 2階建
- 前面棟無
- 平坦地
- 整形地
- 外壁サイディング
- フラット35Sに対応
物件詳細情報
| 価格 | 5,290万円 | 間取り | 2LDK+S |
|---|---|---|---|
| 物件種別 | 新築一戸建て | ||
| 所在地 | 東京都調布市深大寺元町4丁目 | ||
| アクセス |
|
||
| 建物面積 | 実71.42㎡ | 駐車場 | あり 普通:2台 |
| 築年月 | 2026年(令和8年)03月予定 | 建築確認 | 第HPA-25-12766-1号 |
| 建物構造 | 木造 2階建 | 工法 | |
| 主要採光 | 南向 | バルコニー | |
| 保証・評価 | |||
| 土地面積 | 実89.53㎡(27.08坪) | 接道 | 北側幅 約4.0m |
| 私道 | セットバック | ||
| 地目 | 宅地 | 地勢 | 平坦 |
| 権利 | 所有権 |
||
| 都市計画 | 市街化区域 |
用途地域 | 1種低層 |
| 建ぺい/容積率 | 40% / 80% | 土地国土法 | |
| 許可番号 | 建築基準法 | ||
| 法令制限 | |||
| 小学区 | 深大寺小学校 徒歩17分 (約1290m) | 中学区 | 調布中学校 徒歩15分 (約1150m) |
| 現況 | 建築中 | 引渡 | 期日指定:2026年03月中旬以降 |
| その他費用 | |||
| 周辺環境 | 神代植物公園 徒歩7分 (約510m) セブンイレブン調布富士見町店 徒歩11分 (約810m) ウェルパーク調布深大寺店 徒歩12分 (約940m) 保恵学園幼稚園 徒歩13分 (約1010m) 調布中学校 徒歩15分 (約1150m) 調布市立深大寺小学校 徒歩17分 (約1290m) マルエツ調布店 徒歩20分 (約1600m) |
||
| 備考 | |||
| 物件番号 | 4559621 | 取引態様 | 媒介 |
取扱店舗情報
ハウスドゥ 千歳船橋 R2-CONNECT株式会社 店舗詳細ページへ
| 電話番号 | 03-5799-7621 |
|---|---|
| 所在地 | 〒156-0054 東京都世田谷区桜丘5丁目47-19 |
| 営業時間 | 9:00~19:00 |
| 定休日 | 火曜日、水曜日 |
| 宅建免許番号 | 東京都知事(1)第107079号 |
| アクセス | 店舗への地図はこちら |

来店ご予約
東京都調布市で価格が似ている物件はこちら
- 東京都
マイページ物件数 - 5,142件
最近見た物件
-
-

-
- 中古マンション
- 2,280万円
-
松戸市常盤平3丁目
-
京成電鉄松戸線常盤平
-
-
-

-
- 中古マンション
- 1,790万円
-
北九州市門司区西海岸1丁目
-
JR鹿児島本線門司港
-
-
-

-
- 新築一戸建て
- 3,880万円
-
横須賀市長井1丁目
-
京急久里浜線三崎口
-
東京都新築一戸建て新着物件
-
-

-
- 新築一戸建て
- 8,299万円
-
世田谷区北烏山9丁目
-
京王線千歳烏山駅
-
-
-

-
- 新築一戸建て
- 8,699万円
-
世田谷区北烏山9丁目
-
京王線千歳烏山駅
-
-
-

-
- 新築一戸建て
- 8,699万円
-
世田谷区北烏山9丁目
-
京王線千歳烏山駅
-
-
-

-
- 新築一戸建て
- 6,190万円
-
狛江市元和泉2丁目
-
小田急小田原線和泉多摩川駅
-
-
-

-
- 新築一戸建て
- 5,580万円
-
日野市日野本町5丁目
-
JR中央本線日野駅
-
-
-

-
- 新築一戸建て
- 5,880万円
-
日野市日野本町5丁目
-
JR中央本線日野駅
-
-
-

-
- 新築一戸建て
- 5,290万円
-
日野市日野台2丁目
-
JR中央本線日野駅
-
- お近くの店舗を探す
-
おすすめ物件
-
-

-
- 新築一戸建て
- 1億4,500万円
-
世田谷区砧7丁目
-
小田急小田原線祖師ヶ谷大蔵
-
-
-

-
- 新築一戸建て
- 4,580万円
-
調布市上石原3丁目
-
京王線西調布
-
-
-

-
- 新築一戸建て
- 4,899万円
-
八王子市富士見町
-
JR八高線北八王子
-
-
-

-
- 新築一戸建て
- 5,999万円
-
国分寺市北町5丁目
-
西武国分寺線鷹の台
-
-
-

-
- 新築一戸建て
- 5,299万円
-
八王子市高尾町
-
JR中央本線高尾
-
-
-

-
- 新築一戸建て
- 4,990万円
-
調布市深大寺南町5丁目
-
京王線つつじヶ丘
-
-
-

-
- 新築一戸建て
- 1億399万円
-
世田谷区北烏山3丁目
-
京王線千歳烏山
-
-
-

-
- 新築一戸建て
- 6,499万円
-
調布市深大寺東町4丁目
-
京王線つつじヶ丘
-
-
-

-
- 新築一戸建て
- 8,799万円
-
練馬区東大泉7丁目
-
西武池袋・豊島線大泉学園
-
-
-

-
- 新築一戸建て
- 1億399万円
-
世田谷区北烏山3丁目
-
京王線千歳烏山
-



調布市の物件はハウスドゥ千歳船橋へお任せください。
物件、資金計画、周辺環境もご案内させて頂きます♪
資料請求、ご見学お気軽にお問合せください。