さいたま市桜区大字白鍬の新築戸建
NEW 01.20掲載情報更新日:2026年01月20日 次回更新予定日:2026年02月03日
- 3,590万円
-
- 借入ご希望金額
万円 - 借入期間
年 - 借入金利
% - 月々のお支払い金額
円
- 借入ご希望金額
※ 月々のお支払例は目安の試算となりますので、実際の金額とは異なる場合がございます。詳しくは店舗までお問合わせください。
- さいたま市桜区大字白鍬
-
JR埼京線『与野本町』 徒歩35分 (約2800m)
さいたま市桜区大字白鍬一戸建て | 物件情報
◇土地面積約30坪!◇カースペース1台◇4LDK◇住宅ローン相談乗ります!
まずは私たちにご連絡ください!どんな些細なことでも力になります!
◇住宅ローン相談◇
「他社で断られた」
「審査が通らない」
「返済をできるだけ抑えたい」
そんなお悩みもぜひお聞かせください。
お客様一人ひとりに寄り添い、これからの暮らしを見据えた“最適なご提案”をいたします。
◇現地見学会開催中◇
平日や仕事終わりの夜でも「今日見てみたい!」そんなときでもOK♪
お電話1本でスタッフがすぐに駆けつけます!
048-762-8871こちらから
◇ご案内方法◇
ご来店いただかなくても、現地待ち合わせ・自宅、最寄りまでの送迎サービスで柔軟に対応!周辺環境や他にも見たい物件もあわせてご案内できます!
◇ご来店方法◇
ナビで「ハウスドゥさいたま北宿通り」で検索♪
ローソンストア100に駐車場に4台駐車可能!
手ぶらでOK!キッズスペース完備でお子様ずれでも問題なし!
◇売却査定相談◇
「急な転勤」「相続による売却」「金銭的な理由」など住まいの売却をそれぞれです。
仲介はもちろんのこと、弊社独自のネットワークで買取案件もご相談できます!
物件の設備
- 電気
- 公営水道
- 下水道
- 公共下水
- 都市ガス
- 給湯
- 浄水器
- コンロ三口
- ガスコンロ付
- カウンターキッチン
- システムキッチン
- ユニットバス
- オートバス
- バスサイズ1620
- 追焚機能
- 浴室暖房
- 浴室乾燥機
- トイレ
- 温水洗浄便座
- 高機能トイレ
- 室内洗濯機置場
- 洗髪洗面化粧台
- モニタ付インターホン
- LDK15畳以上
- クローゼット3箇所
- ウォークインクローゼット
- 床下収納
- 全居室収納
- シューズボックス
物件の特徴
- 耐震構造
- 2階建
- 即入居可
物件詳細情報
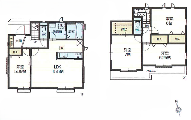
| 価格 | 3,590万円 | 間取り | 4LDK |
|---|---|---|---|
| 物件種別 | 新築一戸建て | ||
| 所在地 | 埼玉県さいたま市桜区大字白鍬 | ||
| アクセス |
|
||
| 建物面積 | 実93.77㎡ | 駐車場 | あり 普通:1台 |
| 築年月 | 2025年(令和7年)12月築 | 建築確認 | |
| 建物構造 | 木造 2階建 | 工法 | |
| 主要採光 | 南向 | バルコニー | |
| 保証・評価 | |||
| 土地面積 | 実100.23㎡(30.31坪) | 接道 | 北側(公道)幅 約4.2m |
| 私道 | セットバック | ||
| 地目 | 宅地 | 地勢 | |
| 権利 | 所有権 |
||
| 都市計画 | 市街化区域 |
用途地域 | 2種中高 |
| 建ぺい/容積率 | 60% / 200% | 土地国土法 | |
| 許可番号 | 建築基準法 | ||
| 法令制限 | |||
| 小学区 | 神田小学校 徒歩7分 (約540m) | 中学区 | 八王子中学校 徒歩9分 (約700m) |
| 現況 | 空 | 引渡 | 即 |
| その他費用 | |||
| 備考 | |||
| 物件番号 | 4561921 | 取引態様 | 媒介 |
取扱店舗情報
ハウスドゥ さいたま北宿通り 株式会社アークウェイホーム 店舗詳細ページへ
| 電話番号 | 048-762-8871 |
|---|---|
| 所在地 | 〒336-0907 埼玉県さいたま市緑区道祖土1丁目26-5 |
| 営業時間 | 9:00~18:00 |
| 定休日 | 水曜日 |
| 宅建免許番号 | 埼玉県知事(1)第25521号 |
| アクセス | 店舗への地図はこちら |

来店ご予約
埼玉県さいたま市桜区で価格が似ている物件はこちら
- 埼玉県
マイページ物件数 - 3,132件
最近見た物件
-
-

-
- 新築一戸建て
- 2,580万円
-
亀山市羽若町
-
JR関西本線亀山
-
埼玉県新築一戸建て新着物件
-
-

-
- 新築一戸建て
- 3,590万円
-
さいたま市桜区大字白鍬
-
JR埼京線与野本町駅
-
-
-

-
- 新築一戸建て
- 2,980万円
-
さいたま市岩槻区城南1丁目
-
東武野田線岩槻駅
-
-
-

-
- 新築一戸建て
- 5,190万円
-
さいたま市西区三橋6丁目
-
JR川越線西大宮駅
-
-
-

-
- 新築一戸建て
- 3,490万円
-
さいたま市見沼区大字御蔵
-
JR東北本線大宮駅
-
-
-

-
- 新築一戸建て
- 3,590万円
-
さいたま市見沼区大字御蔵
-
JR東北本線大宮駅
-
-
-

-
- 新築一戸建て
- 3,890万円
-
さいたま市桜区大字下大久保
-
JR埼京線南与野駅
-
-
-

-
- 新築一戸建て
- 3,990万円
-
さいたま市桜区大字下大久保
-
JR埼京線南与野駅
-
- お近くの店舗を探す
-
おすすめ物件
-
-

-
- 新築一戸建て
- 3,290万円
-
吉川市大字保
-
JR武蔵野線吉川
-
-
-

-
- 新築一戸建て
- 2,780万円
-
上尾市大字大谷本郷
-
JR高崎線上尾
-
-
-

-
- 新築一戸建て
- 3,190万円
-
戸田市笹目7丁目
-
都営三田線西高島平
-
-
-

-
- 新築一戸建て
- 3,080万円
-
越谷市大成町7丁目
-
JR武蔵野線越谷レイクタウン
-
-
-

-
- 新築一戸建て
- 3,698万円
-
蕨市南町4丁目
-
JR京浜東北・根岸線西川口
-
-
-

-
- 新築一戸建て
- 3,100万円
-
東松山市新宿町
-
東武東上線東松山
-
-
-

-
- 新築一戸建て
- 4,380万円
-
戸田市笹目2丁目
-
JR埼京線戸田
-
-
-

-
- 新築一戸建て
- 3,480万円
-
戸田市笹目5丁目
-
JR埼京線武蔵浦和
-
-
-

-
- 新築一戸建て
- 3,190万円
-
三郷市彦成1丁目
-
JR武蔵野線新三郷
-
-
-

-
- 新築一戸建て
- 3,680万円
-
越谷市東越谷6丁目
-
東武伊勢崎・大師線越谷
-






担当エージェント:笠井 航汰
~☆☆当日で案内可能な物件☆☆~さいたまの土地、戸建て、マンションのご相談はハウスドゥさいたま北宿通りにお気軽にお問い合わせ下さい!!