甲府市千塚
NEW 01.21掲載情報更新日:2026年01月21日 次回更新予定日:2026年02月04日
- 2,880万円
-
- 借入ご希望金額
万円 - 借入期間
年 - 借入金利
% - 月々のお支払い金額
円
- 借入ご希望金額
※ 月々のお支払例は目安の試算となりますので、実際の金額とは異なる場合がございます。詳しくは店舗までお問合わせください。
- 甲府市千塚4丁目
-
JR中央本線『甲府』 車14分(約km)
JR中央本線『甲府』 バス乗車16分 千塚西 停 徒歩8分 (約640m)
甲府市千塚一戸建て | 物件情報
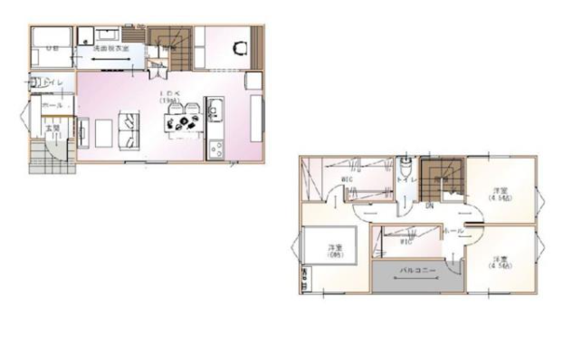
〇STK施工の3LDK新築物件!リビング19帖の開放的な間取りで家族の時間をお楽しみいただけます♪
ハウスドゥ 甲府昭和通りでは、お客様の住まい探しのお手伝いを致します。
売主様のご都合により、ネット広告の載せられない希少な物件も多数、
自社HP、店舗内にてお客様のご条件に合った物件を全てご紹介させいただきます。
ご条件に合った物件が見つからないお客様、探し始めで物件情報が欲しいお客様、
住宅ローン、住宅購入にかかる諸費用などまた、相続の相談や問題、
リフォーム、建築のご相談など、住宅のことなら全て、親切丁寧にご対応させていただきます!
もちろん見るだけ、聞くだけ全て無料です♪
ハウスドゥ 甲府昭和通り(TEL:055-287-8666)まで、お気軽にご相談、お問い合わせください。
物件の設備
- 電気
- 上水道
- 公営水道
- 私設水道
- 下水道
- 公共下水
- プロパンガス
- 給湯
- 食器洗浄乾燥機
- コンロ三口
- システムキッチン
- 独立キッチン
- バス
- オートバス
- 追焚機能
- 浴室乾燥機
- トイレ
- トイレ2箇所
- 温水洗浄便座
- 高機能トイレ
- 室内洗濯機置場
- 洗面所独立
- モニタ付オートロック
- 火災警報器/報知機
- LDK18畳以上
- 出窓
- 複層ガラス
- 網戸
- クローゼット
- 庭
物件の特徴
- 緑豊かな住宅地
- 周辺交通量少なめ
- 市街地が近い
- 山が見える
- 通風良好
- 陽当り良好
- 2階建
- 即入居可
物件詳細情報
| 価格 | 2,880万円 | 間取り | 3LDK |
|---|---|---|---|
| 物件種別 | 新築一戸建て | ||
| 所在地 | 山梨県甲府市千塚4丁目 | ||
| アクセス |
|
||
| 建物面積 | 公97.7㎡ | 駐車場 | あり |
| 築年月 | 2025年(令和7年)08月築 | 建築確認 | 第240990号 |
| 建物構造 | 木造 2階建 | 工法 | |
| 主要採光 | バルコニー | ||
| 保証・評価 | |||
| 土地面積 | 公227.06㎡(68.68坪) | 接道 | |
| 私道 | セットバック | ||
| 地目 | 宅地 | 地勢 | |
| 権利 | 所有権 |
||
| 都市計画 | 市街化区域 |
用途地域 | 1種中高 |
| 建ぺい/容積率 | 60% / 200% | 土地国土法 | |
| 許可番号 | 建築基準法 | ||
| 法令制限 | |||
| 小学区 | 千塚小学校 徒歩14分 (約1100m) | 中学区 | 北西中学校 徒歩11分 (約850m) |
| 現況 | 空 | 引渡 | 即 |
| その他費用 | |||
| 備考 | |||
| 物件番号 | 4562280 | 取引態様 | 媒介 |
取扱店舗情報
ハウスドゥ 甲府昭和通り 株式会社ドミール 店舗詳細ページへ
| 電話番号 | 055-287-8666 |
|---|---|
| 所在地 | 〒409-3866 山梨県中巨摩郡昭和町西条4309番1 |
| 営業時間 | 9:00~18:30 |
| 定休日 | 年中無休(年末年始を除く) |
| 宅建免許番号 | 山梨県知事(3)第2284号 |
| アクセス | 店舗への地図はこちら |

























担当エージェント:前田 泰知
ハウスドゥ 甲府昭和通り、エージェントの前田と申します。
私たちは、お客様に山梨県内の物件をご紹介でき、お客様の条件に合った物件をより多くの物件の中から選んで
頂く為に日々、山梨県内の新築建売住宅、中古建売住宅、マンション、土地などの物件情報の収集活動をしております。
又、売主様のご都合により、ネット広告などに載せられない希少な物件も多数、店舗内にて全てご紹介致します。
不動産購入時にかかる諸費用、住宅ローン、リフォーム、相続の相談など、
今までの経験を活かし様々な解決策をお客様と一緒に考え、ご提案させて頂きます。
お客様に分かりやすく、丁寧に説明し実際に抱えている不動産に関するお悩みなどを
解決させて頂くことが、私共の得意としているところです。
県内の全ての物件の中からお客様のご条件に合った物件をお探しするお手伝いをさせて頂くことを目標に
社員一同日々、活動しております。 是非、お気軽にご相談下さい。 まずは、ご連絡をお待ちしております。
ハウスドゥ 甲府昭和通り 055-287-8666 (前田宛まで)