神埼郡吉野ヶ里町三津 9号棟
掲載情報更新日:2026年03月31日 次回更新予定日:2026年04月14日
- 2,798万円
-
- 借入ご希望金額
万円 - 借入期間
年 - 借入金利
% - 月々のお支払い金額
円
- 借入ご希望金額
※ 月々のお支払例は目安の試算となりますので、実際の金額とは異なる場合がございます。詳しくは店舗までお問合わせください。
- 神埼郡吉野ヶ里町三津
-
JR長崎本線『吉野ヶ里公園』 徒歩43分 (約3440m)
JR長崎本線『神埼』 徒歩60分 (約4800m)
JR長崎本線『佐賀』 車28分(約20.5km)
神埼郡吉野ヶ里町三津 9号棟一戸建て | 物件情報
2026年4月下旬完成予定/車4台/収納充実4LDK/ご来場特典あり♪
お家探しを始めたばかりで、
「何をしたらいいかわからない」という方も、
ゆっくり時間をかけてご相談いただけます。ご安心ください!
■ご案内について
店内の混雑をさけ、安心してご相談いただくため、
ご来店前のご予約をお願いしております。
ご希望の場所へお迎え、弊社へのご来店等ご相談ください。
■ご見学のお問合せ・ご相談
◎物件が未完成の場合、類似物件のご見学も可能です。
◎当日の物件へのご案内も可能です。ご相談下さい。
■住宅ローンについて
店頭で住宅ローン、資金計画のご相談、
住宅ローンのお申込みもお手伝いさせていただきます。
■ご売却について
売却のご相談・査定も無料で受付中です。
■キッズスペースもございます
お子様が退屈しないお遊びスペースがあります!
お菓子やジュースをお渡ししております。
是非ご家族でお越し下さい♪
なんでもお気軽にお申しつけくださいませ。
物件の設備
- 電気
- 公営水道
- 公共下水
- 側溝
- プロパンガス
- 個別プロパン
- 給湯
- 浄水器
- 食器乾燥機
- 食器洗浄乾燥機
- コンロ三口
- カウンターキッチン
- システムキッチン
- バス
- ユニットバス
- オートバス
- バス1坪以上
- 追焚機能
- 浴室暖房
- 浴室乾燥機
- トイレ2箇所
- 温水洗浄便座
- 室内洗濯機置場
- 洗面所独立
- ダウンライト
- ディンプルキー
- ダブルロックキー
- モニタ付インターホン
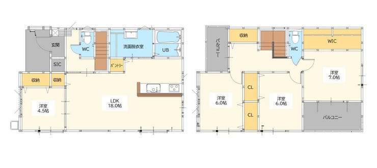
- LDK18畳以上
- 複層ガラス
- フローリング
- 全室フローリング
- シャッター雨戸
- クローゼット
- ウォークインクローゼット
- 全居室収納
- シューズボックス
- シューズインクローク
- バルコニー
- 2面バルコニー
- ワイドバルコニー
- 庭
物件の特徴
- 前道6m以上
- 緑豊かな住宅地
- スーパーが近い
- 閑静な住宅街
- 市街地が近い
- 通風良好
- 陽当り良好
- 2階建
- 整形地
- フラット35
- S適合証明書
- フラット35Sに対応
物件詳細情報
| 価格 | 2,798万円 | 間取り | 4LDK |
|---|---|---|---|
| 物件種別 | 新築一戸建て | ||
| 所在地 | 佐賀県神埼郡吉野ヶ里町三津279-1 | ||
| アクセス |
|
||
| 建物面積 | 公111.34㎡ | 駐車場 | あり 普通:4台 |
| 築年月 | 2026年(令和8年)04月予定 | 建築確認 | 第R07SHC126319号 |
| 建物構造 | 木造 2階建 | 工法 | |
| 主要採光 | 南向 | バルコニー | |
| 保証・評価 | フラット35S適合証明書 |
||
| 土地面積 | 公220.78㎡(66.78坪) | 接道 | 北側(公道)幅 約6.0m 西側(公道)幅 約6.0m |
| 私道 | セットバック | ||
| 地目 | 宅地 | 地勢 | |
| 権利 | 所有権 |
||
| 都市計画 | 非線引区域 |
用途地域 | 指定無 |
| 建ぺい/容積率 | 60% / 200% | 土地国土法 | |
| 許可番号 | 建築基準法 | ||
| 法令制限 | |||
| 小学区 | 東脊振小学校 徒歩15分 (約1200m) | 中学区 | 東脊振中学校 徒歩13分 (約1000m) |
| 現況 | 建築中 | 引渡 | 期日指定:2026年05月下旬 |
| その他費用 | |||
| 周辺環境 | 東背振小学校 徒歩15分 (約1200m) たちばな 徒歩14分 (約1070m) 東背振中学校 徒歩12分 (約1000m) 丸安 徒歩17分 (約1340m) ファミリーマート東脊振インター店 徒歩21分 (約1670m) ロータス 徒歩22分 (約1750m) 吉野ケ里公園駅 徒歩43分 (約3400m) スシロー吉野ケ里店 徒歩36分 (約2860m) セリア アクロスプラザ吉野ヶ里店 徒歩46分 (約3610m) |
||
| 備考 | |||
| 物件番号 | 4562313 | 取引態様 | 媒介 |
取扱店舗情報
ハウスドゥ 佐賀兵庫北 株式会社栗原木材店 店舗詳細ページへ
| 電話番号 | 0952-20-0725 |
|---|---|
| 所在地 | 〒849-0919 佐賀県佐賀市兵庫北7丁目18-2 |
| 営業時間 | 9:30~18:30 |
| 定休日 | 火曜日、水曜日 |
| 宅建免許番号 | 国土交通大臣(1)第010320号 |
| アクセス | 店舗への地図はこちら |

来店ご予約
佐賀県神埼郡吉野ヶ里町で価格が似ている物件はこちら
- 佐賀県
マイページ物件数 - 1,583件
最近見た物件
-
-

-
- 土地
- 300万円
-
鹿児島市坂之上8丁目
-
JR指宿枕崎線坂之上
-
-
-

-
- 土地
- 240万円
-
豊橋市駒形町字南欠下
-
豊橋鉄道渥美線高師
-
-
-

-
- 収益
- 1,800万円
-
川口市青木1丁目
-
埼玉高速鉄道川口元郷
-
佐賀県新築一戸建て新着物件
-
-

-
- 新築一戸建て
- 3,049万円
-
佐賀市木原3丁目
-
JR長崎本線佐賀駅
-
-
-

-
- 新築一戸建て
- 3,299万円
-
佐賀市木原1丁目
-
バス停「中原眼科前」
-
-
-

-
- 新築一戸建て
- 3,599万円
-
佐賀市木原1丁目
-
バス停「中原眼科前」
-
-
-

-
- 新築一戸建て
- 3,198万円
-
佐賀市本庄町大字本庄
-
バス停「ちやの木」
-
-
-

-
- 新築一戸建て
- 3,298万円
-
佐賀市本庄町大字本庄
-
バス停「ちやの木」
-
-
-

-
- 新築一戸建て
- 3,198万円
-
佐賀市本庄町大字本庄
-
JR長崎本線佐賀駅
-
-
-

-
- 新築一戸建て
- 3,298万円
-
佐賀市本庄町大字本庄
-
JR長崎本線佐賀駅
-
- お近くの店舗を探す
-
おすすめ物件
-
-

-
- 新築一戸建て
- 3,298万円
-
鳥栖市姫方町
-
JR鹿児島本線田代
-
-
-

-
- 新築一戸建て
- 2,798万円
-
鳥栖市鎗田町
-
JR鹿児島本線田代
-
-
-

-
- 新築一戸建て
- 2,498万円
-
鳥栖市田代外町
-
JR鹿児島本線田代
-
-
-

-
- 新築一戸建て
- 2,798万円
-
鳥栖市宿町
-
JR鹿児島本線鳥栖
-
-
-

-
- 新築一戸建て
- 2,798万円
-
鳥栖市曽根崎町
-
JR鹿児島本線鳥栖
-
-
-

-
- 新築一戸建て
- 3,799万円
-
鳥栖市宿町
-
JR九州新幹線新鳥栖
-
-
-

-
- 新築一戸建て
- 3,300万円
-
三養基郡上峰町大字前牟田字上米多
-
JR長崎本線吉野ヶ里公園
-
-
-

-
- 新築一戸建て
- 2,698万円
-
三養基郡みやき町大字白壁
-
JR長崎本線中原
-
-
-

-
- 新築一戸建て
- 3,680万円
-
佐賀市本庄町大字袋
-
バス停「八田橋」
-
-
-

-
- 新築一戸建て
- 3,299万円
-
神埼郡吉野ヶ里町豆田
-
JR長崎本線吉野ヶ里公園
-














担当エージェント:福田 拓也
【ご成約特典】
体験型カタログギフト「EXETIME Part5(5万7860円)」をプレゼント!!
人気温泉旅館や五つ星ホテルでの宿泊、
高級レストランのディナー、貸し切りクルーズなど
掲載商品は500点以上!
欲しいものが見つかりますよ(*^-^*)
詳細はお気軽に問い合わせください♪
■東脊振小学校まで徒歩15分/東脊振中学校まで徒歩13分
■車4台駐車
◎ファミリーカー+趣味+来客用もOK!
■バルコニー2カ所に完備
◎布団+洗濯物も干せる余裕があります!
■18帖超えリビング
◎ソファやダイニングを置いても余裕たっぷり~
‘‘家族時間重視の方‘‘向け!
■オール洋室の居室
◎畳なし、すべての部屋が洋室仕様!
家具の配置もラクラク、現代的でスタイリッシュな暮らしに◎
■料理・洗濯・お風呂が直結
◎水回り集約で、毎日の家事時間が驚くほど短縮♪