北九州市八幡西区本城東6丁目の新築戸建
NEW 01.21掲載情報更新日:2026年01月21日 次回更新予定日:2026年02月04日
- 3,598万円
-
- 借入ご希望金額
万円 - 借入期間
年 - 借入金利
% - 月々のお支払い金額
円
- 借入ご希望金額
※ 月々のお支払例は目安の試算となりますので、実際の金額とは異なる場合がございます。詳しくは店舗までお問合わせください。
- 北九州市八幡西区本城東6丁目
-
JR筑豊本線『本城』 徒歩8分 (約600m)
JR鹿児島本線『折尾』 車7分(約2.4km)
JR鹿児島本線『陣原』 車5分(約2.0km)
市営バス『本城中学校前』 徒歩2分 (約140m)
北九州市八幡西区本城東6丁目一戸建て | 物件情報
赤坂小学校・本城通学校エリア/新築戸建て/4LDK/WIC/バルコニー2つ/パントリー/全居室収納
・北九州市立本城中学校まで徒歩5分(約340m)
・北九州市立赤坂小学校まで徒歩10分(約750m)
・ジョイフル本城店まで徒歩4分(約260m)
・ファミリーマート 八幡本城東店まで徒歩7分(約490m)
・本城駅まで徒歩11分(約850m)
・星和台東公園まで徒歩10分(約770m)
・マツモトキヨシ北九州本城店まで徒歩12分(約910m)
・折尾中央団地郵便局まで徒歩14分(約1060m)
・モスバーガー八幡本城店まで徒歩14分(約1110m)
・折尾本城郵便局まで徒歩11分(約880m)
物件の設備
- 上水道
- 下水道
- 側溝
- 都市ガス
- カウンターキッチン
- システムキッチン
- バス
- トイレ2箇所
- 室内洗濯機置場
- 室内物干機
- 火災警報器/報知機
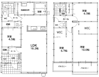
- LDK18畳以上
- 全室フローリング
- シャッター雨戸
- 電動シャッター
- クローゼット
- ウォークインクローゼット2箇所
- 全居室収納
- シューズボックス
- バルコニー
- 2面バルコニー
物件の特徴
- 小学校徒歩10分以内
- 前道6m以上
- 閑静な住宅街
- 陽当り良好
- 2階建
物件詳細情報
| 価格 | 3,598万円 | 間取り | 4LDK |
|---|---|---|---|
| 物件種別 | 新築一戸建て | ||
| 所在地 | 福岡県北九州市八幡西区本城東6丁目 2号棟 | ||
| アクセス |
|
||
| 建物面積 | 115.09㎡ | 駐車場 | あり 普通:3台 |
| 築年月 | 2026年(令和8年)01月築 | 建築確認 | 第KJH25-01477-1号 |
| 建物構造 | 木造 2階建 | 工法 | |
| 主要採光 | バルコニー | ||
| 保証・評価 | |||
| 土地面積 | 184.04㎡(55.67坪) | 接道 | 北東側幅 約13.0m |
| 私道 | セットバック | ||
| 地目 | 宅地 | 地勢 | |
| 権利 | 所有権 |
||
| 都市計画 | 市街化区域 |
用途地域 | 1種住居 |
| 建ぺい/容積率 | 60% / 200% | 土地国土法 | |
| 許可番号 | 建築基準法 | ||
| 法令制限 | |||
| 小学区 | 赤坂小学校 徒歩5分 (約400m) | 中学区 | 本城中学校 徒歩5分 (約400m) |
| 現況 | 建築中 | 引渡 | 未記入 |
| その他費用 | |||
| 周辺環境 | 北九州市立本城中学校 徒歩5分 (約340m) 北九州市立赤坂小学校 徒歩10分 (約750m) ジョイフル本城店 徒歩4分 (約260m) ファミリーマート 八幡本城東店 徒歩7分 (約490m) 本城駅 徒歩11分 (約850m) 星和台東公園 徒歩10分 (約770m) マツモトキヨシ北九州本城店 徒歩12分 (約910m) 折尾中央団地郵便局 徒歩14分 (約1060m) モスバーガー八幡本城店 徒歩14分 (約1110m) 折尾本城郵便局 徒歩11分 (約880m) |
||
| 備考 | |||
| 物件番号 | 4562338 | 取引態様 | 媒介 |
取扱店舗情報
ハウスドゥ 八幡本城 株式会社Cross Road 店舗詳細ページへ
| 電話番号 | 093-647-0370 |
|---|---|
| 所在地 | 〒807-0801 福岡県北九州市八幡西区本城3453-3 |
| 営業時間 | 9:00~18:00(土曜日・日曜日は17:00まで) |
| 定休日 | 不定休 |
| 宅建免許番号 | 福岡県知事(1)第20212号 |
| アクセス | 店舗への地図はこちら |

来店ご予約
福岡県北九州市八幡西区で価格が似ている物件はこちら
- 福岡県
マイページ物件数 - 9,087件
最近見た物件
-
-

-
- 新築一戸建て
- 2,695万円
-
一宮市西大海道字柏木
-
JR東海道本線尾張一宮
-
-
-

-
- 中古一戸建て
- 680万円
-
東大阪市下小阪1丁目
-
近鉄難波・奈良線河内小阪
-
-
-

-
- 新築一戸建て
- 2,390万円
-
大垣市津村町1丁目
-
樽見鉄道東大垣
-
福岡県新築一戸建て新着物件
-
-

-
- 新築一戸建て
- 4,198万円
-
太宰府市青山3丁目
-
西鉄太宰府線西鉄五条駅
-
-
-

-
- 新築一戸建て
- 4,498万円
-
大野城市緑ケ丘2丁目
-
JR鹿児島本線水城駅
-
-
-

-
- 新築一戸建て
- 3,380万円
-
遠賀郡水巻町吉田西2丁目
-
JR鹿児島本線水巻駅
-
-
-

-
- 新築一戸建て
- 3,280万円
-
遠賀郡水巻町吉田西2丁目
-
JR鹿児島本線水巻駅
-
-
-

-
- 新築一戸建て
- 3,698万円
-
北九州市若松区大井戸町
-
JR筑豊本線若松駅
-
-
-

-
- 新築一戸建て
- 4,699万円
-
福岡市東区名島4丁目
-
西鉄貝塚線名島駅
-
-
-

-
- 新築一戸建て
- 3,130万円
-
遠賀郡水巻町吉田西2丁目
-
JR鹿児島本線水巻駅
-
- お近くの店舗を探す
-
おすすめ物件
-
-

-
- 新築一戸建て
- 3,298万円
-
北九州市小倉南区中貫2丁目
-
西鉄バス貫入口停
-
-
-

-
- 新築一戸建て
- 4,398万円
-
福岡市早良区重留1丁目
-
福岡市七隈線野芥
-
-
-

-
- 新築一戸建て
- 4,198万円
-
福岡市早良区干隈5丁目
-
福岡市七隈線野芥
-
-
-

-
- 新築一戸建て
- 3,488万円
-
春日市白水池2丁目
-
JR鹿児島本線春日
-
-
-

-
- 新築一戸建て
- 2,998万円
-
北九州市小倉南区北方3丁目
-
北九州高速鉄道北方
-
-
-

-
- 新築一戸建て
- 4,398万円
-
福岡市東区美和台7丁目
-
西鉄貝塚線三苫
-
-
-

-
- 新築一戸建て
- 3,299万円
-
古賀市花見東3丁目
-
JR鹿児島本線千鳥
-
-
-

-
- 新築一戸建て
- 3,198万円
-
宗像市ひかりヶ丘1丁目
-
JR鹿児島本線東郷
-
-
-

-
- 新築一戸建て
- 2,688万円
-
北九州市八幡西区本城東6丁目
-
JR筑豊本線本城
-
-
-

-
- 新築一戸建て
- 3,098万円
-
福岡市南区和田2丁目
-
西鉄天神大牟田線大橋
-





LINE・Instagram始めました♪♪
ご対面や電話が苦手な方は
メッセージください♪
LINE ID:yahatahonjo2023
Instagram:yahatahonjo