宮崎市清武町岡3丁目の新築戸建
掲載情報更新日:2026年04月17日 次回更新予定日:2026年05月01日
- 3,700万円
-
- 借入ご希望金額
万円 - 借入期間
年 - 借入金利
% - 月々のお支払い金額
円
- 借入ご希望金額
※ 月々のお支払例は目安の試算となりますので、実際の金額とは異なる場合がございます。詳しくは店舗までお問合わせください。
- 宮崎市清武町岡3丁目
-
JR日豊本線『清武』 徒歩19分 (約1470m)
JR日豊本線『加納』 徒歩57分 (約4510m)
JR日豊本線『日向沓掛』 徒歩71分 (約5620m)
宮崎市清武町岡3丁目一戸建て | 物件情報
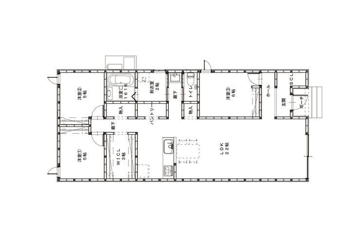
清武小・中徒歩圏 南道路の平屋新築3LDK
◆ 南側道路×前面6mで日当たり良好
明るく開放感のある立地。平屋でも光がしっかり入ります。
◆ ワンフロアで暮らしやすい平屋3LDK
家事動線が短く、将来も安心して住める間取りです。
◆ オール電化+省エネ設備搭載
IH・食洗機・浴室乾燥機付きで家事の負担を軽減。
◆ 駐車3台可能のゆとりある敷地
来客時やご家族で車を複数所有しても安心です。
◆ 清武小・中学校が徒歩圏内
通学しやすく、子育て世帯にも選ばれやすい立地です。
物件の設備
- オール電化
- 公営水道
- 公共下水
- 食器洗浄乾燥機
- IHクッキングヒータ
- カウンターキッチン
- システムキッチン
- 追焚機能
- 浴室乾燥機
- 温水洗浄便座
- 省エネ給湯器
- モニタ付インターホン
- 複層ガラス
- ウォークインクローゼット
物件の特徴
- 前道6m以上
- 南側道路面す
- 閑静な住宅街
- 陽当り良好
物件詳細情報
| 価格 | 3,700万円 | 間取り | 3LDK |
|---|---|---|---|
| 物件種別 | 新築一戸建て | ||
| 所在地 | 宮崎県宮崎市清武町岡3丁目 B号地/2区画 | ||
| アクセス |
|
||
| 建物面積 | 公91.09㎡ | 駐車場 | あり 普通:3台 |
| 築年月 | 2025年(令和7年)08月築 | 建築確認 | R07SHC104715号 |
| 建物構造 | 木造 1階建 | 工法 | |
| 主要採光 | バルコニー | ||
| 保証・評価 | |||
| 分譲情報 | 【販売戸数】:2戸 |
||
| 土地面積 | 公191.49㎡(57.92坪) | 接道 | 南側(公道)幅 約6.0m 間口 約17.40m |
| 私道 | セットバック | ||
| 地目 | 宅地 | 地勢 | |
| 権利 | 所有権 |
||
| 都市計画 | 市街化区域 |
用途地域 | 2種住居 |
| 建ぺい/容積率 | 60% / 200% | 土地国土法 | |
| 許可番号 | 建築基準法 | ||
| 法令制限 | |||
| 小学区 | 清武小学校 徒歩11分 (約870m) | 中学区 | 清武中学校 徒歩9分 (約670m) |
| 現況 | 空 | 引渡 | 相談 |
| その他費用 | |||
| 周辺環境 | 清武中学校 徒歩9分 (約670m) 清武小学校 徒歩11分 (約870m) 宮崎太陽銀行 清武支店 徒歩11分 (約880m) 宮崎銀行 清武支店 徒歩13分 (約1040m) Aコープ 清武店 徒歩14分 (約1050m) セブンイレブン 清武町役場前店 徒歩13分 (約1040m) アサヒランドリー 宮崎清武店 徒歩20分 (約1530m) ファミリーマート 清武新町店 徒歩20分 (約1560m) セブンイレブン 清武木原 徒歩16分 (約1270m) タイヨー 清武店 徒歩26分 (約2030m) |
||
| 備考 | |||
| 物件番号 | 4565604 | 取引態様 | 媒介 |
取扱店舗情報
| 電話番号 | 0985-86-7336 |
|---|---|
| 所在地 | 〒889-1607 宮崎県宮崎市清武町加納3丁目16 メモワールII101号室 |
| 営業時間 | 9:00~20:00 |
| 定休日 | 不定休 |
| 宅建免許番号 | 宮崎県知事(1)第4995号 |
| アクセス | 店舗への地図はこちら |

来店ご予約
宮崎県宮崎市で価格が似ている物件はこちら
- 宮崎県
マイページ物件数 - 1,524件
最近見た物件
-
-

-
- 土地
- 880万円
-
生駒郡三郷町城山台4丁目
-
近鉄生駒線信貴山下
-
-
-

-
- 土地
- 1,114万円
-
彦根市平田町
-
近江鉄道本線彦根口
-
-
-

-
- 新築一戸建て
- 2,780万円
-
木津川市木津清水
-
JR関西本線木津
-
宮崎県新築一戸建て新着物件
-
-

-
- 新築一戸建て
- 7,780万円
-
宮崎市船塚2丁目
-
JR日豊本線宮崎神宮駅
-
-
-

-
- 新築一戸建て
- 2,280万円
-
宮崎市田野町乙
-
JR日豊本線田野駅
-
-
-

-
- 新築一戸建て
- 2,180万円
-
宮崎市田野町乙
-
JR日豊本線田野駅
-
-
-

-
- 新築一戸建て
- 2,980万円
-
宮崎市和知川原3丁目
-
宮商前
-
-
-

-
- 新築一戸建て
- 2,980万円
-
宮崎市和知川原3丁目
-
JR日豊本線宮崎駅
-
-
-

-
- 新築一戸建て
- 4,435万円
-
宮崎市柳丸町
-
JR日豊本線宮崎神宮駅
-
-
-

-
- 新築一戸建て
- 2,280万円
-
宮崎市田野町乙
-
JR日豊本線田野駅
-
- お近くの店舗を探す
-























担当エージェント:小玉 賢太
南道路で日当たりの良い平屋新築住宅です。
清武小・中学校が徒歩圏内で、生活施設も揃った立地。
家事動線の良さと将来の住みやすさを重視する方におすすめです。