調布市入間町1丁目 新築戸建 D号棟
NEW 01.31掲載情報更新日:2026年01月31日 次回更新予定日:2026年02月14日
- 1億380万円
-
- 借入ご希望金額
万円 - 借入期間
年 - 借入金利
% - 月々のお支払い金額
円
- 借入ご希望金額
※ 月々のお支払例は目安の試算となりますので、実際の金額とは異なる場合がございます。詳しくは店舗までお問合わせください。
- 調布市入間町1丁目
-
小田急小田原線『成城学園前』 徒歩19分 (約1520m)
京王線『仙川』 徒歩20分 (約1600m)
小田急小田原線『成城学園前』 バス乗車10分 南入間町 停 徒歩3分 (約240m)
調布市入間町1丁目 新築戸建 D号棟一戸建て | 物件情報
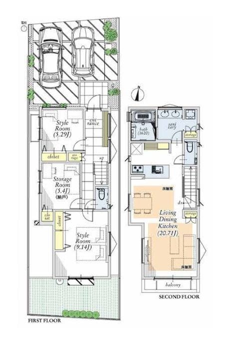
■芝生のお庭付♪長期優良住宅 ■2LDK+納戸+カースペース2台分
《Access》
・小田急線「成城学園前駅」歩19分
その他バス10分「南入間町停」歩3分
・京王線「仙川駅」歩20分
《Point》
・入間町1丁目閑静立地に佇む全6棟
・カースペース2台分(車種による)
・長期優良住宅
・芝生の庭付
・防犯カメラ設置
・機能性を重視した間取り設計
・LDK約20.71帖のゆとりある間取り
・リビング最高天井高約3.3m
・LDK3面採光・南向き 日当たり・通風良好
・2ボウル洗面化粧台
・納戸で豊富な収納が可能
■お気軽にお問い合わせください♪
物件の設備
- 電気
- 公営水道
- 公共下水
- 都市ガス
- 給湯
- 浄水器
- 食器洗浄乾燥機
- コンロ三口
- グリル
- ガスコンロ付
- カウンターキッチン
- システムキッチン
- オープンキッチン
- バス
- オートバス
- バスサイズ1620
- バス1坪以上
- 追焚機能
- 浴室暖房
- 浴室乾燥機
- 浴室に窓
- トイレ
- トイレ2箇所
- 温水洗浄便座
- 室内洗濯機置場
- 洗面所独立
- 床暖房
- リビング階段
- 省エネ給湯器
- モニタ付インターホン
- 防犯カメラ
- 火災警報器/報知機
- LDK20畳以上
- 2面採光
- 3面採光
- 天井高3m以上
- 複層ガラス
- 全居室複層ガラス
- フローリング
- 全室フローリング
- シャッター雨戸
- 24時間換気システム
- クローゼット
- クローゼット3箇所
- 納戸
- シューズボックス
- 庭
- 南庭
物件の特徴
- 南向
- 地盤調査済
- 耐震構造
- 2沿線利用可
- 総合病院徒歩10分以内
- 緑豊かな住宅地
- スーパーが近い
- 閑静な住宅街
- 周辺交通量少なめ
- 市街地が近い
- 都市近郊
- 眺望良好
- 通風良好
- 陽当り良好
- 2階建
- 前面棟無
- 平坦地
- 整形地
- 即入居可
- フラット35Sに対応
- 間取変更可能
物件詳細情報
| 価格 | 1億380万円 | 間取り | 2LDK+S |
|---|---|---|---|
| 物件種別 | 新築一戸建て | ||
| 所在地 | 東京都調布市入間町1丁目 D号棟 | ||
| アクセス |
|
||
| 建物面積 | 実99.56㎡ | 駐車場 | あり 普通:2台 |
| 築年月 | 2025年(令和7年)08月築 | 建築確認 | HPA-25-00699-1号 |
| 建物構造 | 木造 2階建 | 工法 | |
| 主要採光 | 南向 | バルコニー | |
| 保証・評価 | |||
| 分譲情報 | 【販売戸数】:4戸 【価格】:9,980万円 ~10,580万円 |
||
| 土地面積 | 実125.33㎡(37.91坪) | 接道 | 北側(公道)幅 約4.8m 間口 約6.20m |
| 私道 | セットバック | ||
| 地目 | 宅地 | 地勢 | 平坦 |
| 権利 | 所有権 |
||
| 都市計画 | 市街化区域 |
用途地域 | 1種低層 |
| 建ぺい/容積率 | 40% / 80% | 土地国土法 | |
| 許可番号 | 建築基準法 | ||
| 法令制限 | |||
| 小学区 | 若葉小学校 徒歩16分 (約1270m) | 中学区 | 第四中学校 徒歩17分 (約1330m) |
| 現況 | 完工済 | 引渡 | 即 |
| その他費用 | セコム使用料:3,100円/月 |
||
| 周辺環境 | 西友_入間町 徒歩3分 (約180m) セブンイレブン世田谷成城8丁目店 徒歩4分 (約260m) 成城つくしんぼ保育園 徒歩6分 (約410m) 成城郵便局 徒歩6分 (約430m) 社団法人至誠会第二病院 徒歩8分 (約590m) 島忠ホームズ仙川店 徒歩16分 (約1210m) ファッションセンターしまむらホームズ仙川店 徒歩16分 (約1210m) 調布市立若葉小学校 徒歩16分 (約1270m) 調布市立第四中学校 徒歩17分 (約1330m) |
||
| 備考 | |||
| 物件番号 | 4579792 | 取引態様 | 媒介 |
取扱店舗情報
ハウスドゥ 千歳船橋 R2-CONNECT株式会社 店舗詳細ページへ
| 電話番号 | 03-5799-7621 |
|---|---|
| 所在地 | 〒156-0054 東京都世田谷区桜丘5丁目47-19 |
| 営業時間 | 9:00~19:00 |
| 定休日 | 火曜日、水曜日 |
| 宅建免許番号 | 東京都知事(1)第107079号 |
| アクセス | 店舗への地図はこちら |

来店ご予約
東京都調布市で価格が似ている物件はこちら
- 東京都
マイページ物件数 - 5,152件
東京都新築一戸建て新着物件
- お近くの店舗を探す
-
おすすめ物件
-
-

-
- 新築一戸建て
- 2,780万円
-
八王子市川口町
-
JR中央本線八王子
-
-
-

-
- 新築一戸建て
- 2,880万円
-
八王子市川口町
-
JR中央本線八王子
-
-
-

-
- 新築一戸建て
- 2,480万円
-
八王子市川口町
-
JR中央本線八王子
-
-
-

-
- 新築一戸建て
- 3,490万円
-
八王子市狭間町
-
JR中央本線高尾
-
-
-

-
- 新築一戸建て
- 3,080万円
-
八王子市大楽寺町
-
JR中央本線西八王子
-
-
-

-
- 新築一戸建て
- 6,499万円
-
調布市深大寺東町4丁目
-
京王線つつじヶ丘
-
-
-

-
- 新築一戸建て
- 6,499万円
-
調布市深大寺東町4丁目
-
京王線つつじヶ丘
-
-
-

-
- 新築一戸建て
- 1億4,500万円
-
世田谷区砧7丁目
-
小田急小田原線祖師ヶ谷大蔵
-
-
-

-
- 新築一戸建て
- 5,999万円
-
国分寺市北町5丁目
-
西武国分寺線鷹の台
-
-
-

-
- 新築一戸建て
- 2,480万円
-
八王子市川口町
-
JR中央本線八王子
-










◆家事同線や機能性を重視、高性能住宅をぜひ一度、ご覧ください◆
◆即日ご案内致します♪気軽にお問合せください♪