新築戸建 南区中尾2丁目第5 1号棟
NEW 02.05掲載情報更新日:2026年02月05日 次回更新予定日:2026年02月19日
- 3,388万円
-
- 借入ご希望金額
万円 - 借入期間
年 - 借入金利
% - 月々のお支払い金額
円
- 借入ご希望金額
※ 月々のお支払例は目安の試算となりますので、実際の金額とは異なる場合がございます。詳しくは店舗までお問合わせください。
- 福岡市南区中尾2丁目
-
西鉄天神大牟田線『大橋』 徒歩37分 (約2900m)
西鉄天神大牟田線『高宮』 徒歩37分 (約2900m)
JR鹿児島本線『竹下』 徒歩47分 (約3700m)
新築戸建 南区中尾2丁目第5 1号棟一戸建て | 物件情報
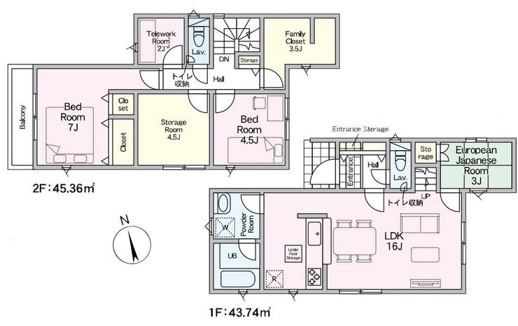
◎小学校徒歩約9分♪ ◎3SLDK+ファミクロ+テレワークルーム
◆クオカード計3000円プレゼント!(2026年3月末日まで)
来場予約で500円、ご成約で2500円、計3000円のお渡しとなります。
◎小学校徒歩約9分♪
◎3SLDK+ファミクロ+テレワークルーム
●住宅ローン、頭金のない方、ご相談承ります!
●まとめて複数物件ご案内可能です♪
まずはお気軽にお電話ください!
☆「新築」「中古」「マンション」「土地」なんでもご相談ください☆
いろんな不動産会社や銀行、リフォーム業者に行かなくても大丈夫!
ハウスドゥ博多の森が皆さんのお悩みをワンストップで解決いたします♪
【ハウスドゥ博多の森の特徴】
①他の気になる物件も同日に見学できるように手配!
②どんな物件(中古物件、新築、マンション、土地)もご案内対応!
③リフォームや建物検査(インスペクション)のご相談もOK!
④住宅ローンは数社一括で事前審査できるので時短&金利が比較可能!
当社ではお客様の立場に寄り添いベストで丁寧なご提案をいたします。
物件の設備
- 電気
- 上水道
- 公営水道
- 下水道
- 公共下水
- 側溝
- 都市ガス
- 浄水器
- コンロ三口
- カウンターキッチン
- システムキッチン
- オートバス
- 追焚機能
- 浴室暖房
- 浴室乾燥機
- 浴室に窓
- トイレ2箇所
- 温水洗浄便座
- 洗髪洗面化粧台
- フットライト
- リビング階段
- 人感照明センサー
- 省エネ給湯器
- モニタ付インターホン
- 防犯カメラ
- 火災警報器/報知機
- LDK15畳以上
- 和室
- 複層ガラス
- 全居室複層ガラス
- 24時間換気システム
- クローゼット
- クローゼット2箇所
- ウォークインクローゼット
- 納戸
- 床下収納
- シューズボックス
- 庭
物件の特徴
- 小学校徒歩10分以内
- 前道6m以上
- 閑静な住宅街
- 陽当り良好
- 2階建
物件詳細情報
| 価格 | 3,388万円 | 間取り | 3LDK+S |
|---|---|---|---|
| 物件種別 | 新築一戸建て | ||
| 所在地 | 福岡県福岡市南区中尾2丁目 1号棟 | ||
| アクセス |
|
||
| 建物面積 | 89.1㎡ | 駐車場 | あり 普通:1台 軽:1台 |
| 築年月 | 2026年(令和8年)03月予定 | 建築確認 | 第R07SHC121520号 |
| 建物構造 | 木造 2階建 | 工法 | |
| 主要採光 | バルコニー | ||
| 保証・評価 | |||
| 土地面積 | 実115.66㎡(34.98坪) | 接道 | 西側(公道)幅 約6.1m |
| 私道 | セットバック | ||
| 地目 | 宅地 | 地勢 | |
| 権利 | 所有権 |
||
| 都市計画 | 市街化区域 |
用途地域 | 1種低層 |
| 建ぺい/容積率 | 50% / 80% | 土地国土法 | |
| 許可番号 | 建築基準法 | ||
| 法令制限 | |||
| 小学区 | 東花畑小学校 徒歩13分 (約976m) | 中学区 | 花畑中学校 徒歩25分 (約1970m) |
| 現況 | 建築中 | 引渡 | 未記入 |
| その他費用 | |||
| 周辺環境 | マルキョウ中尾店 徒歩4分 (約320m) 福岡銀行屋形原支店 徒歩6分 (約410m) かなざわクリニック 徒歩7分 (約550m) 福岡中尾郵便局 徒歩7分 (約550m) セブン-イレブン 福岡中尾3丁目店 徒歩9分 (約650m) ローソン 福岡野多目三丁目店 徒歩9分 (約680m) サニー若久店 徒歩10分 (約730m) 慈光会若久病院 徒歩10分 (約730m) 大賀薬局 若久店 徒歩10分 (約730m) ダイキョーバリュー 野多目店 徒歩11分 (約840m) |
||
| 備考 | |||
| 物件番号 | 4585311 | 取引態様 | 媒介 |
取扱店舗情報
| 電話番号 | 092-405-0821 |
|---|---|
| 所在地 | 〒811-2207 福岡県糟屋郡志免町南里1丁目12-20 |
| 営業時間 | 9:00~18:00 |
| 定休日 | 水曜日 |
| 宅建免許番号 | 福岡県知事(14)第3825号 |
| アクセス | 店舗への地図はこちら |

来店ご予約
福岡県福岡市南区で価格が似ている物件はこちら
- 福岡県
マイページ物件数 - 9,053件
最近見た物件
-
-

-
- 新築一戸建て
- 2,588万円
-
熊本市北区高平3丁目
-
熊本電気鉄道亀井
-
-
-

-
- 新築一戸建て
- 3,580万円
-
松原市北新町6丁目
-
近鉄南大阪線布忍
-
-
-

-
- 中古マンション
- 1,790万円
-
仙台市青葉区春日町
-
仙台市営地下鉄南北線勾当台公園
-
福岡県新築一戸建て新着物件
-
-

-
- 新築一戸建て
- 3,598万円
-
宗像市原町
-
JR鹿児島本線赤間駅
-
-
-

-
- 新築一戸建て
- 3,498万円
-
宗像市原町
-
JR鹿児島本線赤間駅
-
-
-

-
- 新築一戸建て
- 3,498万円
-
宗像市原町
-
JR鹿児島本線赤間駅
-
-
-

-
- 新築一戸建て
- 3,388万円
-
福岡市東区高美台2丁目
-
JR鹿児島本線福工大前駅
-
-
-

-
- 新築一戸建て
- 4,780万円
-
糟屋郡志免町王子2丁目
-
JR香椎線須恵駅
-
-
-

-
- 新築一戸建て
- 2,298万円
-
三潴郡大木町大字侍島
-
西鉄天神大牟田線八丁牟田駅
-
-
-

-
- 新築一戸建て
- 6,998万円
-
福岡市西区姪の浜1丁目
-
福岡市空港線姪浜駅
-
- お近くの店舗を探す
-
おすすめ物件
-
-

-
- 新築一戸建て
- 4,788万円
-
大野城市下大利3丁目
-
JR鹿児島本線水城
-
-
-

-
- 新築一戸建て
- 3,298万円
-
福津市福間南5丁目
-
JR鹿児島本線福間
-
-
-

-
- 新築一戸建て
- 3,298万円
-
福津市福間南3丁目
-
JR鹿児島本線福間
-
-
-

-
- 新築一戸建て
- 3,198万円
-
福津市光陽台6丁目
-
JR鹿児島本線東福間
-
-
-

-
- 新築一戸建て
- 4,298万円
-
北九州市小倉南区山手2丁目
-
北九州高速鉄道徳力公団前
-
-
-

-
- 新築一戸建て
- 2,898万円
-
宗像市東郷5丁目
-
JR鹿児島本線東郷
-
-
-

-
- 新築一戸建て
- 3,180万円
-
福津市福間南4丁目
-
JR鹿児島本線福間
-
-
-

-
- 新築一戸建て
- 4,198万円
-
福岡市南区弥永2丁目
-
JR博多南線博多南
-
-
-

-
- 新築一戸建て
- 2,598万円
-
宗像市ひかりヶ丘4丁目
-
JR鹿児島本線東郷
-
-
-

-
- 新築一戸建て
- 4,998万円
-
福岡市東区美和台3丁目
-
西鉄貝塚線三苫
-





☆「新築」「中古」「マンション」「土地」なんでもご相談ください☆
いろんな不動産会社や銀行、リフォーム業者に行かなくても大丈夫!
ハウスドゥ博多の森が皆さんのお悩みをワンストップで解決いたします♪
【ハウスドゥ博多の森の特徴】
①他の気になる物件も同日に見学できるように手配!
②どんな物件(中古物件、新築、マンション、土地)もご案内対応!
③リフォームや建物検査(インスペクション)のご相談もOK!
④住宅ローンは数社一括で事前審査できるので時短&金利が比較可能!
当社ではお客様の立場に寄り添いベストで丁寧なご提案をいたします。