星和台2丁目1期 2号棟 新築戸建YK
NEW 02.12掲載情報更新日:2026年02月10日 次回更新予定日:2026年02月24日
- 3,198万円
-
- 借入ご希望金額
万円 - 借入期間
年 - 借入金利
% - 月々のお支払い金額
円
- 借入ご希望金額
※ 月々のお支払例は目安の試算となりますので、実際の金額とは異なる場合がございます。詳しくは店舗までお問合わせください。
- 大分市星和台2丁目
-
JR豊肥本線『敷戸』 徒歩17分 (約1360m)
星和台2丁目1期 2号棟 新築戸建YK一戸建て | 物件情報
★星和台 新築戸建 ★小学校徒歩8分 ★収納豊富 ★閑静な住宅街 ★ファミリー世帯に!
●モダンなデザインの外壁♪
●全室収納あり^^
●ウォークインクローゼットあり!
●閑静な住宅街
●敷戸小学校まで徒歩8分♪
●ファミリー世帯におススメ物件!!
物件の設備
- 電気
- 公営水道
- 公共下水
- 都市ガス
- 食器洗浄乾燥機
- システムキッチン
- 追焚機能
- 浴室乾燥機
- トイレ2箇所
- モニタ付インターホン
- 複層ガラス
- フローリング
- 24時間換気システム
- ウォークインクローゼット
- 床下収納
物件の特徴
- 前道6m以上
- 閑静な住宅街
- 2階建
物件詳細情報
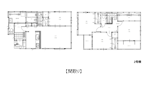
| 価格 | 3,198万円 | 間取り | 4LDK |
|---|---|---|---|
| 物件種別 | 新築一戸建て | ||
| 所在地 | 大分県大分市星和台2丁目 | ||
| アクセス |
|
||
| 建物面積 | 104.09㎡ | 駐車場 | あり 普通:1台 軽:2台 |
| 築年月 | 2026年(令和8年)01月築 | 建築確認 | 第R07SHC118895号 |
| 建物構造 | 木造 2階建 | 工法 | |
| 主要採光 | バルコニー | ||
| 保証・評価 | |||
| 土地面積 | 公131.04㎡(39.63坪) | 接道 | 南西側(公道)幅 約8.9m |
| 私道 | セットバック | 無 | |
| 地目 | 宅地 | 地勢 | 平坦 |
| 権利 | 所有権 |
||
| 都市計画 | 市街化区域 |
用途地域 | 1種低層 |
| 建ぺい/容積率 | 50% / 100% | 土地国土法 | |
| 許可番号 | 建築基準法 | ||
| 法令制限 | |||
| 小学区 | 敷戸小学校 徒歩8分 (約589m) | 中学区 | 稙田東中学校 徒歩5分 (約347m) |
| 現況 | 建築中 | 引渡 | 未記入 |
| その他費用 | |||
| 周辺環境 | 敷戸小学校 徒歩8分 (約589m) 稙田東中学校 徒歩5分 (約347m) 敷戸駅 徒歩17分 (約1360m) |
||
| 備考 | |||
| 物件番号 | 4595441 | 取引態様 | 媒介 |
取扱店舗情報
ハウスドゥ 東別府 株式会社ソーリン不動産 店舗詳細ページへ
| 電話番号 | 0977-25-7700 |
|---|---|
| 所在地 | 〒874-0945 大分県別府市浜町17番2号 |
| 営業時間 | 9:30~17:30 |
| 定休日 | 水曜日、祝日、年末年始 |
| 宅建免許番号 | 大分県知事(1)第3465号 |
| アクセス | 店舗への地図はこちら |

来店ご予約
大分県大分市で価格が似ている物件はこちら
![]()
![]()
-
- 新築一戸建て 2024.11.16
-
-
- 3,100万円
-
大分市浜中
-
JR日豊本線「坂ノ市駅」まで徒歩12分
- 3LDK
-
-
- 新築一戸建て 2025.01.12
-
-
- 3,250万円
-
大分市大字皆春
-
JR日豊本線「鶴崎駅」まで車5分
- 4LDK
-
-
- 新築一戸建て 2025.01.12
-
-
- 3,150万円
-
大分市久原中央3丁目
-
JR日豊本線「坂ノ市駅」まで徒歩12分
- 4LDK
-
-
- 新築一戸建て 2025.01.12
-
-
- 3,150万円
-
大分市久原中央3丁目
-
JR日豊本線「坂ノ市駅」まで徒歩12分
- 4LDK+S
-
-
- 新築一戸建て 2025.01.13
-
-
- 3,250万円
-
大分市大字皆春
-
JR日豊本線「鶴崎駅」まで徒歩19分
- 4LDK
-
-
- 新築一戸建て 2025.03.15
-
-
- 3,150万円
-
大分市久原中央4丁目
-
JR日豊本線「坂ノ市駅」まで徒歩19分
- 4LDK
-
-
- 新築一戸建て 2025.06.08
-
-
- 3,098万円
-
大分市大字光吉
-
JR豊肥本線「敷戸駅」まで徒歩25分
- 4LDK
-
-
- 新築一戸建て 2025.06.08
-
-
- 3,298万円
-
大分市大字光吉
-
JR豊肥本線「敷戸駅」まで徒歩25分
- 4LDK
-
-
- 新築一戸建て 2025.06.13
-
-
- 3,150万円
-
大分市久原中央3丁目
-
JR日豊本線「坂ノ市駅」まで徒歩12分
- 4LDK
-
-
- 新築一戸建て 2025.06.13
-
-
- 3,100万円
-
大分市浜中
-
JR日豊本線「坂ノ市駅」まで徒歩11分
- 3LDK
-
-
- 新築一戸建て 2025.06.16
-
-
- 3,298万円
-
大分市光吉台2丁目
-
JR豊肥本線「敷戸駅」まで徒歩23分
- 4LDK
-
-
- 新築一戸建て 2025.06.19
-
-
- 3,150万円
-
大分市久原中央3丁目
-
JR日豊本線「坂ノ市駅」まで徒歩12分
- 4LDK+S
-
-
- 新築一戸建て 2025.06.21
-
-
- 3,280万円
-
大分市大字関園
-
JR日豊本線「鶴崎駅」まで徒歩47分
- 4LDK
-
-
- 新築一戸建て 2025.07.29
-
-
- 3,290万円
-
大分市大字光吉
-
JR豊肥本線「敷戸駅」まで徒歩22分
- 4LDK
-
-
- 新築一戸建て 2025.07.29
-
-
- 3,290万円
-
大分市大字光吉
-
JR豊肥本線「敷戸駅」まで徒歩22分
- 4LDK
-
-
- 新築一戸建て 2025.08.16
-
-
- 3,180万円
-
大分市大字荏隈
-
JR久大本線「南大分駅」まで徒歩18分
- 4LDK
-
-
- 新築一戸建て 2025.08.16
-
-
- 3,130万円
-
大分市大字荏隈
-
JR久大本線「南大分駅」まで徒歩18分
- 4LDK
-
-
- 新築一戸建て 2025.08.16
-
-
- 3,198万円
-
大分市ふじが丘西1丁目
-
JR豊肥本線「敷戸駅」まで徒歩33分
- 4LDK
-
-
- 新築一戸建て 2025.08.26
-
-
- 3,180万円
-
大分市大字荏隈
-
JR久大本線「南大分駅」まで徒歩17分
- 4LDK
-
-
- 新築一戸建て 2025.08.26
-
-
- 3,130万円
-
大分市大字荏隈
-
JR久大本線「南大分駅」まで徒歩17分
- 4LDK
-
-
- 新築一戸建て 2025.09.16
-
-
- 3,188万円
-
大分市明野西2丁目
-
JR日豊本線「牧駅」まで車7分
- 3LDK+S
-
-
- 新築一戸建て 2025.09.19
-
-
- 3,290万円
-
大分市大字片島
-
JR豊肥本線「滝尾駅」まで徒歩12分
- 4LDK
-
-
- 新築一戸建て 2025.09.19
-
-
- 3,188万円
-
大分市明野西2丁目
-
JR日豊本線「牧駅」まで徒歩23分
- 3LDK+S
-
-
- 新築一戸建て 2025.09.20
-
-
- 3,290万円
-
大分市大字片島
-
JR豊肥本線「滝尾駅」まで徒歩11分
- 4LDK
-
-
- 新築一戸建て 2025.09.20
-
-
- 3,290万円
-
大分市大字片島
-
JR豊肥本線「滝尾駅」まで徒歩12分
- 4LDK
-
-
- 新築一戸建て 2025.10.20
-
-
- 3,188万円
-
大分市明野西2丁目
-
JR日豊本線「牧駅」まで徒歩23分
- 3LDK
-
-
- 新築一戸建て 2025.10.21
-
-
- 3,130万円
-
大分市大字寒田
-
JR豊肥本線「敷戸駅」まで徒歩19分
- 4LDK
-
-
- 新築一戸建て 2025.10.24
-
-
- 3,098万円
-
大分市花高松2丁目
-
JR日豊本線「高城駅」まで車4分
- 4LDK
-
-
- 新築一戸建て 2025.10.25
-
-
- 3,190万円
-
大分市萩原1丁目
-
JR日豊本線「牧駅」まで徒歩14分
- 4LDK
-
-
- 新築一戸建て 2025.10.25
-
-
- 3,190万円
-
大分市萩原1丁目
-
JR日豊本線「牧駅」まで徒歩14分
- 4LDK
-
-
- 新築一戸建て 2025.10.26
-
-
- 3,190万円
-
大分市萩原1丁目
-
JR日豊本線「牧駅」まで徒歩14分
- 4LDK
-
-
- 新築一戸建て 2025.10.26
-
-
- 3,190万円
-
大分市萩原1丁目
-
JR日豊本線「牧駅」まで徒歩14分
- 4LDK
-
-
- 新築一戸建て 2025.10.30
-
-
- 3,290万円
-
大分市大字片島
-
JR豊肥本線「滝尾駅」まで徒歩12分
- 4LDK
-
-
- 新築一戸建て 2025.10.31
-
-
- 3,147万円
-
大分市ふじが丘東2丁目
-
JR豊肥本線「敷戸駅」まで車6分
- 3LDK
-
-
- 新築一戸建て 2025.11.01
-
-
- 3,198万円
-
大分市星和台2丁目
-
JR豊肥本線「敷戸駅」まで徒歩17分
- 4LDK
-
-
- 新築一戸建て 2025.11.01
-
-
- 3,198万円
-
大分市星和台2丁目
-
JR豊肥本線「敷戸駅」まで徒歩17分
- 4LDK
-
-
- 新築一戸建て 2025.11.03
-
-
- 3,190万円
-
大分市萩原1丁目
-
JR日豊本線「牧駅」まで徒歩14分
- 4LDK
-
-
- 新築一戸建て 2025.11.03
-
-
- 3,190万円
-
大分市萩原1丁目
-
JR日豊本線「牧駅」まで徒歩14分
- 4LDK
-
-
- 新築一戸建て 2025.12.01
-
-
- 3,098万円
-
大分市明磧町1丁目
-
JR久大本線「南大分駅」まで徒歩13分
- 4LDK
-
-
- 新築一戸建て 2025.12.11
-
-
- 3,098万円
-
大分市大字鴛野
-
JR豊肥本線「敷戸駅」まで徒歩15分
- 4LDK
-
-
- 新築一戸建て 2025.12.11
-
-
- 3,198万円
-
大分市大字鴛野
-
JR豊肥本線「敷戸駅」まで徒歩15分
- 4LDK
-
-
- 新築一戸建て 2025.12.12
-
-
- 3,290万円
-
大分市大字片島
-
JR豊肥本線「滝尾駅」まで徒歩12分
- 4LDK
-
-
- 新築一戸建て 2025.12.16
-
-
- 3,297万円
-
大分市下郡山の手
-
JR日豊本線「牧駅」まで徒歩28分
- 3LDK
-
-
- 新築一戸建て 2025.12.16
-
-
- 3,297万円
-
大分市下郡山の手
-
JR日豊本線「牧駅」まで車6分
- 3LDK
-
-
- 新築一戸建て 2025.12.18
-
-
- 3,098万円
-
大分市花高松2丁目
-
JR日豊本線「高城駅」まで徒歩18分
- 4LDK
-
-
- 新築一戸建て 2025.12.18
-
-
- 3,098万円
-
大分市明磧町1丁目
-
JR久大本線「南大分駅」まで徒歩12分
- 4LDK
-
-
- 新築一戸建て 2025.12.20
-
-
- 3,098万円
-
大分市大字鴛野
-
JR豊肥本線「敷戸駅」まで徒歩14分
- 4LDK
-
-
- 新築一戸建て 2025.12.20
-
-
- 3,198万円
-
大分市大字鴛野
-
JR豊肥本線「敷戸駅」まで徒歩14分
- 4LDK
-
-
- 新築一戸建て 2025.12.20
-
-
- 3,150万円
-
大分市久原中央4丁目
-
JR日豊本線「坂ノ市駅」まで徒歩20分
- 4LDK
-
-
- 新築一戸建て 2025.12.20
-
-
- 3,298万円
-
大分市大字光吉
-
光吉台まで徒歩3分
- 4LDK
-
-
- 新築一戸建て 2025.12.22
-
-
- 3,098万円
-
大分市大字光吉
-
光吉公園前まで徒歩2分
- 4LDK
-
-
- 新築一戸建て 2025.12.22
-
-
- 3,298万円
-
大分市大字光吉
-
光吉公園前まで徒歩2分
- 4LDK
-
-
- 新築一戸建て 2025.12.22
-
-
- 3,098万円
-
大分市横塚2丁目
-
JR日豊本線「坂ノ市駅」まで徒歩17分
- 4LDK
-
-
- 新築一戸建て 2025.12.22
-
-
- 3,098万円
-
大分市横塚2丁目
-
JR日豊本線「坂ノ市駅」まで徒歩17分
- 4LDK
-
-
- 新築一戸建て 2025.12.22
-
-
- 3,147万円
-
大分市ふじが丘東2丁目
-
JR豊肥本線「敷戸駅」まで徒歩30分
- 3LDK
-
-
-
新築一戸建て
2026.01.16
-
-
- 3,180万円
-
大分市大字猪野
-
JR日豊本線「高城駅」まで徒歩34分
- 3LDK
-
-
新築一戸建て
2026.01.16
-
-
新築一戸建て
2026.01.23
-
-
- 3,290万円
-
大分市南太平寺2丁目
-
JR久大本線「古国府駅」まで徒歩12分
- 4LDK
-
-
新築一戸建て
2026.01.23
-
-
新築一戸建て
2026.01.25
-
-
- 3,290万円
-
大分市南太平寺2丁目
-
JR久大本線「古国府駅」まで徒歩13分
- 4LDK
-
-
新築一戸建て
2026.01.25
-
-
新築一戸建て
2026.01.27
-
-
- 3,197万円
-
大分市大字羽田
-
JR豊肥本線「滝尾駅」まで徒歩17分
- 3LDK
-
-
新築一戸建て
2026.01.27
-
-
新築一戸建て
2026.01.30
-
-
- 3,180万円
-
大分市大字津守
-
JR豊肥本線「滝尾駅」まで徒歩4分
- 3LDK
-
-
新築一戸建て
2026.01.30
-
-
新築一戸建て
2026.02.01
-
-
- 3,290万円
-
大分市南太平寺2丁目
-
JR久大本線「古国府駅」まで徒歩12分
- 4LDK
-
-
新築一戸建て
2026.02.01
-
-
新築一戸建て
2026.02.06
-
-
- 3,098万円
-
大分市明磧町1丁目
-
JR久大本線「南大分駅」まで徒歩14分
- 4LDK
-
-
新築一戸建て
2026.02.06
-
-
新築一戸建て
2026.02.06
-
-
- 3,098万円
-
大分市大字光吉
-
JR豊肥本線「敷戸駅」まで徒歩25分
- 4LDK
-
-
新築一戸建て
2026.02.06
-
-
新築一戸建て
2026.02.06
-
-
- 3,298万円
-
大分市大字光吉
-
JR豊肥本線「敷戸駅」まで徒歩25分
- 4LDK
-
-
新築一戸建て
2026.02.06
-
-
新築一戸建て
2026.02.06
-
-
- 3,198万円
-
大分市ふじが丘西1丁目
-
JR豊肥本線「敷戸駅」まで徒歩37分
- 4LDK
-
-
新築一戸建て
2026.02.06
-
-
新築一戸建て
2026.02.09
-
-
- 3,298万円
-
大分市ふじが丘東3丁目
-
JR豊肥本線「敷戸駅」まで徒歩31分
- 4LDK
-
-
新築一戸建て
2026.02.09
-
-
新築一戸建て
2026.02.09
-
-
- 3,180万円
-
大分市大字旦野原
-
JR豊肥本線「大分大学前駅」まで徒歩23分
- 4LDK
-
-
新築一戸建て
2026.02.09
-
-
新築一戸建て
2026.02.12
-
-
- 3,198万円
-
大分市星和台2丁目
-
JR豊肥本線「敷戸駅」まで徒歩17分
- 4LDK
-
-
新築一戸建て
2026.02.12
- 大分県
マイページ物件数 - 2,148件
最近見た物件
-
-

-
- 中古一戸建て
- 740万円
-
堺市堺区香ヶ丘町4丁
-
南海電鉄高野線浅香山
-
大分県新築一戸建て新着物件
-
-

-
- 新築一戸建て
- 2,698万円
-
大分市横尾東町1丁目
-
JR日豊本線鶴崎駅
-
-
-

-
- 新築一戸建て
- 2,398万円
-
大分市横尾東町1丁目
-
JR日豊本線鶴崎駅
-
-
-

-
- 新築一戸建て
- 3,198万円
-
大分市星和台2丁目
-
JR豊肥本線敷戸駅
-
-
-

-
- 新築一戸建て
- 2,998万円
-
大分市大字森町
-
JR日豊本線鶴崎駅
-
-
-

-
- 新築一戸建て
- 3,198万円
-
大分市星和台2丁目
-
JR豊肥本線敷戸駅
-
-
-

-
- 新築一戸建て
- 3,498万円
-
大分市ふじが丘西1丁目
-
JR豊肥本線敷戸駅
-
-
-

-
- 新築一戸建て
- 3,798万円
-
大分市今津留2丁目
-
JR日豊本線大分駅
-
- お近くの店舗を探す
-
おすすめ物件
-
-

-
- 新築一戸建て
- 3,490万円
-
大分市大字下郡ゆめが丘
-
JR豊肥本線滝尾
-
-
-

-
- 新築一戸建て
- 3,950万円
-
大分市横尾東町1丁目
-
JR日豊本線鶴崎
-
-
-

-
- 新築一戸建て
- 2,388万円
-
大分市三川上1丁目
-
JR日豊本線鶴崎
-
-
-

-
- 新築一戸建て
- 3,420万円
-
大分市久原中央3丁目
-
JR日豊本線坂ノ市
-
-
-

-
- 新築一戸建て
- 4,330万円
-
大分市大字駄原
-
JR日豊本線西大分
-
-
-

-
- 新築一戸建て
- 2,788万円
-
大分市賀来新川2丁目
-
JR久大本線賀来
-
-
-

-
- 新築一戸建て
- 3,890万円
-
大分市花津留2丁目
-
JR日豊本線牧
-
-
-

-
- 新築一戸建て
- 2,188万円
-
大分市徳島3丁目
-
JR日豊本線鶴崎
-
-
-

-
- 新築一戸建て
- 2,988万円
-
大分市松が丘1丁目
-
JR久大本線南大分
-
-
-

-
- 新築一戸建て
- 3,390万円
-
大分市大字佐野
-
JR日豊本線坂ノ市
-




〇大分県の戸建、マンション、土地のご購入・ご売却・査定の事なら【ハウスドゥ東別府】へお任せ下さい♪
地域密着だからこその情報量で物件をご提案させて頂きます。
〇インターネット未掲載の物件も御座います(^^)
〇住宅ローンや各種税金の相談も承っております。お気軽にお問合せ下さい。
お問合せ先TEL【0977-25-7700】 FAX【0977-25-7788】
〇Instagram【sourinfudousan_beppu】でさまざまな情報を掲載しております。#ソーリン不動産 で検索、フォローして下さいね(^-^)
お店はキッズスペースを完備♪明るくオシャレな内装になっております♪