下松市瑞穂町2丁目の新築戸建
掲載情報更新日:2026年04月04日 次回更新予定日:2026年04月18日
- 3,980万円
-
- 借入ご希望金額
万円 - 借入期間
年 - 借入金利
% - 月々のお支払い金額
円
- 借入ご希望金額
※ 月々のお支払例は目安の試算となりますので、実際の金額とは異なる場合がございます。詳しくは店舗までお問合わせください。
- 下松市瑞穂町2丁目
-
JR山陽本線『下松』 徒歩31分 (約2460m)
下松市瑞穂町2丁目一戸建て | 物件情報
ホビールームをご用意!お子様との思い出を多く作れるお家です。
下松瑞穂町に2026年7月新築住宅が完成予定!1階リビング横に4.75帖のホビールームがあります!ガス乾燥機付(リンナイ乾太君)洗濯のストレスは”ゼロ”近づきます!駐車スペースは普通車1台、軽自動車3台分が確保され、来客時や将来のお子様の駐車スペースもご心配いりません。
物件の設備
- 電気
- 公営水道
- 都市ガス
- 食器洗浄乾燥機
- 食品庫
- コンロ三口
- システムキッチン
- オートバス
- 浴室乾燥機
- 浴室に窓
- トイレ2箇所
- 温水洗浄便座
- 室内洗濯機置場
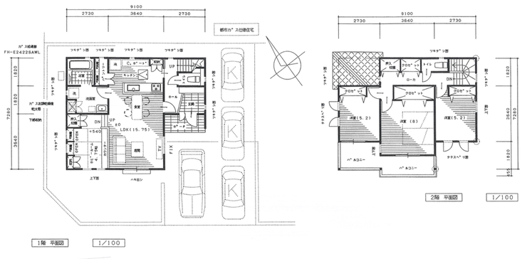
- LDK15畳以上
- 複層ガラス
- クローゼット3箇所
- バルコニー
- 庭
物件の特徴
- 閑静な住宅街
- 陽当り良好
- 2階建
- 平坦地
- フラット35Sに対応
物件詳細情報
| 価格 | 3,980万円 | 間取り | 4LDK |
|---|---|---|---|
| 物件種別 | 新築一戸建て | ||
| 所在地 | 山口県下松市瑞穂町2丁目 1 | ||
| アクセス |
|
||
| 建物面積 | 104.33㎡ | 駐車場 | あり 普通:1台 軽:3台 |
| 築年月 | 2026年(令和8年)07月予定 | 建築確認 | R7 建確建住セ岩第0331号 |
| 建物構造 | 木造 2階建 | 工法 | |
| 主要採光 | バルコニー | ||
| 保証・評価 | |||
| 分譲情報 | 【販売戸数】:2戸 【価格】:3,880万円 ~3,980万円 |
||
| 土地面積 | 163.99㎡(49.60坪) | 接道 | |
| 私道 | セットバック | ||
| 地目 | 宅地 | 地勢 | |
| 権利 | 所有権 |
||
| 都市計画 | 市街化区域 |
用途地域 | 1種住居 |
| 建ぺい/容積率 | 60% / 200% | 土地国土法 | |
| 許可番号 | 建築基準法 | ||
| 法令制限 | |||
| 小学区 | 公集小学校 徒歩9分 (約660m) | 中学区 | 末武中学校 徒歩21分 (約1670m) |
| 現況 | 建築中 | 引渡 | 期日指定:2026年07月以降 |
| その他費用 | |||
| 周辺環境 | 下松市立公集小学校 徒歩9分 (約660m) 下松市立末武中学校 徒歩21分 (約1670m) アイグラン保育園潮音 徒歩6分 (約460m) 下松市立潮音保育園 徒歩7分 (約560m) ダイソー 下松末武店 徒歩3分 (約240m) セブン-イレブン 下松潮音町店 徒歩5分 (約360m) ウォンツ 下松店 徒歩5分 (約350m) Aプライス下松店 徒歩8分 (約580m) 西村ジョイ 下松店 徒歩10分 (約730m) 瑞穂町一丁目公園 徒歩6分 (約480m) |
||
| 備考 | ◇◆ハウスドゥ光◆◇ セルリアンステージ下松瑞穂町二丁目 1号棟 ■この物件の良い所■ ○ホビールームでお子様との思い出づくり♪ 〇広々駐車スペース♪ 〇ガス乾燥機「乾太君」付き♪ ○大型商業施設近隣の好立地♪ ○前面道路は交通量少なく安心♪ ○小学校まで660mで小さなお子様の通学も安心♪ ○スーパーなど近隣で生活に便利な立地♪ ■充実の標準装備■ 〇ZEH水準省エネ住宅 〇断熱等級5で快適住環境 〇制震ダンパーで地震の揺れを軽減 〇都市ガスエコジョーズで排気熱を再利用 〇全居室LOW-Eペアガラス採用 〇フラット35S(金利Aプラン)対応 〇防犯対策もばっちり電子錠玄関 〇雨の日の洗濯や冬の入浴時にありがたい浴室暖房乾燥機付 ■周辺環境■ 〇公集小学校まで徒歩9分(約660m) ○末武中学校まで徒歩21分(約1670m |
||
| 物件番号 | 4613139 | 取引態様 | 媒介 |
取扱店舗情報
| 電話番号 | 0833-44-7712 |
|---|---|
| 所在地 | 〒743-0021 山口県光市浅江5丁目14-18 |
| 営業時間 | 9:00~18:00 |
| 定休日 | 水曜日、祝日 |
| 宅建免許番号 | 山口県知事(1)第3902号 |
| アクセス | 店舗への地図はこちら |

来店ご予約
山口県下松市で価格が似ている物件はこちら
- 山口県
マイページ物件数 - 3,261件
最近見た物件
-
-

-
- 土地
- 1,980万円
-
松山市朝日ケ丘2丁目
-
伊予鉄道高浜線衣山
-
-
-

-
- 中古マンション
- 2,980万円
-
仙台市青葉区柏木2丁目
-
JR仙山線北山
-
-
-

-
- 新築一戸建て
- 2,320万円
-
岐阜市西川手7丁目
-
名鉄名古屋本線岐南
-
山口県新築一戸建て新着物件
-
-

-
- 新築一戸建て
- 3,690万円
-
下関市一の宮本町2丁目
-
JR山陽本線新下関駅
-
-
-

-
- 新築一戸建て
- 2,080万円
-
光市光井5丁目
-
JR山陽本線光駅
-
-
-

-
- 新築一戸建て
- 3,480万円
-
周南市久米中央4丁目
-
JR山陽本線櫛ヶ浜駅
-
-
-

-
- 新築一戸建て
- 2,480万円
-
周南市松保町
-
JR山陽本線徳山駅
-
-
-

-
- 新築一戸建て
- 3,480万円
-
周南市久米中央4丁目
-
JR山陽本線櫛ヶ浜駅
-
-
-

-
- 新築一戸建て
- 4,380万円
-
周南市梅園町3丁目
-
JR山陽本線徳山駅
-
-
-

-
- 新築一戸建て
- 3,480万円
-
周南市久米中央4丁目
-
JR山陽本線櫛ヶ浜駅
-
- お近くの店舗を探す
-
おすすめ物件
-
-

-
- 新築一戸建て
- 2,598万円
-
防府市大字牟礼
-
JR山陽本線防府
-
-
-

-
- 新築一戸建て
- 2,180万円
-
防府市沖今宿1丁目
-
JR山陽本線防府
-
-
-

-
- 新築一戸建て
- 3,880万円
-
下松市瑞穂町2丁目
-
JR山陽本線下松
-
-
-

-
- 新築一戸建て
- 2,598万円
-
防府市大字牟礼
-
JR山陽本線防府
-
-
-

-
- 新築一戸建て
- 2,998万円
-
宇部市草江3丁目
-
JR宇部線草江
-
-
-

-
- 新築一戸建て
- 3,980万円
-
下松市瑞穂町2丁目
-
JR山陽本線下松
-
-
-

-
- 新築一戸建て
- 3,098万円
-
宇部市東梶返2丁目
-
JR宇部線東新川
-
-
-

-
- 新築一戸建て
- 2,698万円
-
宇部市大小路2丁目
-
JR宇部線東新川
-
-
-

-
- 新築一戸建て
- 2,998万円
-
防府市大字仁井令
-
JR山陽本線防府
-
-
-

-
- 新築一戸建て
- 3,198万円
-
山口市円政寺町
-
JR山口線上山口
-




