横塚2丁目1期1号棟 新築戸建YK
NEW 03.05掲載情報更新日:2026年03月05日 次回更新予定日:2026年03月19日
- 2,998万円
-
- 借入ご希望金額
万円 - 借入期間
年 - 借入金利
% - 月々のお支払い金額
円
- 借入ご希望金額
※ 月々のお支払例は目安の試算となりますので、実際の金額とは異なる場合がございます。詳しくは店舗までお問合わせください。
- 大分市横塚2丁目
-
JR日豊本線『坂ノ市』 徒歩20分 (約1600m)
横塚2丁目1期1号棟 新築戸建YK一戸建て | 物件情報
★大分市横塚 新築物件 ★LDK+和室22.5帖 ★収納豊富 ★ファミリー世帯に!
大分市横塚に新築物件登場!
LDK+和室ひろびろ22.5帖♪
収納豊富で片付け楽々★
ファミリー世帯におすすめです!
物件の設備
- 電気
- 公営水道
- 浄化槽
- プロパンガス
- 食器洗浄乾燥機
- システムキッチン
- 追焚機能
- 浴室乾燥機
- トイレ2箇所
- モニタ付インターホン
- LDK18畳以上
- 複層ガラス
- フローリング
- 24時間換気システム
- ウォークインクローゼット
- 床下収納
物件の特徴
- 前道6m以上
- 閑静な住宅街
- 2階建
物件詳細情報
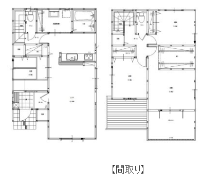
| 価格 | 2,998万円 | 間取り | 4LDK |
|---|---|---|---|
| 物件種別 | 新築一戸建て | ||
| 所在地 | 大分県大分市横塚2丁目 1号棟 | ||
| アクセス |
|
||
| 建物面積 | 105.16㎡ | 駐車場 | あり 普通:3台 |
| 築年月 | 2026年(令和8年)03月予定 | 建築確認 | 第R07SHC123374号 |
| 建物構造 | 木造 2階建 | 工法 | |
| 主要採光 | バルコニー | ||
| 保証・評価 | |||
| 土地面積 | 141.04㎡(42.66坪) | 接道 | 南西側(公道)幅 約6.0m 間口 約8.80m |
| 私道 | セットバック | ||
| 地目 | 宅地 | 地勢 | 平坦 |
| 権利 | 所有権 |
||
| 都市計画 | 市街化区域 |
用途地域 | 2種中高 |
| 建ぺい/容積率 | 60% / 200% | 土地国土法 | |
| 許可番号 | 建築基準法 | ||
| 法令制限 | |||
| 小学区 | 大在東小学校 徒歩14分 (約1100m) | 中学区 | 大在中学校 徒歩37分 (約2900m) |
| 現況 | 建築中 | 引渡 | 未記入 |
| その他費用 | |||
| 周辺環境 | 大在東小学校 徒歩14分 (約1100m) 大在中学校 徒歩37分 (約2900m) 坂ノ市駅 徒歩20分 (約1600m) |
||
| 備考 | |||
| 物件番号 | 4624006 | 取引態様 | 媒介 |
取扱店舗情報
ハウスドゥ 東別府 株式会社ソーリン不動産 店舗詳細ページへ
| 電話番号 | 0977-25-7700 |
|---|---|
| 所在地 | 〒874-0945 大分県別府市浜町17番2号 |
| 営業時間 | 9:30~17:30 |
| 定休日 | 水曜日、祝日、年末年始 |
| 宅建免許番号 | 大分県知事(1)第3465号 |
| アクセス | 店舗への地図はこちら |

来店ご予約
大分県大分市で価格が似ている物件はこちら
- 大分県
マイページ物件数 - 2,125件
最近見た物件
-
-

-
- 中古一戸建て
- 2,980万円
-
木更津市八幡台3丁目
-
JR内房線木更津
-
-
-

-
- 新築一戸建て
- 2,090万円
-
三重郡菰野町大字千草
-
近鉄湯の山線湯の山温泉
-
-
-

-
- 新築一戸建て
- 4,390万円
-
名古屋市名東区猪子石2丁目
-
名古屋市東山線本郷
-
大分県新築一戸建て新着物件
- お近くの店舗を探す
-
おすすめ物件
-
-

-
- 新築一戸建て
- 3,990万円
-
大分市古ケ鶴2丁目
-
JR日豊本線牧
-
-
-

-
- 新築一戸建て
- 3,890万円
-
大分市花津留2丁目
-
JR日豊本線牧
-
-
-

-
- 新築一戸建て
- 3,420万円
-
大分市久原中央3丁目
-
JR日豊本線坂ノ市
-
-
-

-
- 新築一戸建て
- 3,950万円
-
大分市横尾東町1丁目
-
JR日豊本線鶴崎
-
-
-

-
- 新築一戸建て
- 3,680万円
-
大分市庄境
-
JR日豊本線大在
-
-
-

-
- 新築一戸建て
- 1,888万円
-
大分市徳島1丁目
-
JR日豊本線鶴崎
-
-
-

-
- 新築一戸建て
- 3,480万円
-
大分市大字丹川
-
JR日豊本線坂ノ市
-
-
-

-
- 新築一戸建て
- 2,488万円
-
大分市横田1丁目
-
JR日豊本線大在
-
-
-

-
- 新築一戸建て
- 2,188万円
-
大分市徳島3丁目
-
JR日豊本線鶴崎
-
-
-

-
- 新築一戸建て
- 4,280万円
-
由布市挾間町下市
-
JR久大本線向之原
-










〇大分県の戸建、マンション、土地のご購入・ご売却・査定の事なら【ハウスドゥ東別府】へお任せ下さい♪
地域密着だからこその情報量で物件をご提案させて頂きます。
〇インターネット未掲載の物件も御座います(^^)
〇住宅ローンや各種税金の相談も承っております。お気軽にお問合せ下さい。
お問合せ先TEL【0977-25-7700】 FAX【0977-25-7788】
〇Instagram【sourinfudousan_beppu】でさまざまな情報を掲載しております。#ソーリン不動産 で検索、フォローして下さいね(^-^)
お店はキッズスペースを完備♪明るくオシャレな内装になっております♪