八王子市泉町 全12棟・8区画19号棟 新築分譲住宅
掲載情報更新日:2026年04月27日 次回更新予定日:2026年05月11日
- 3,280万円
-
- 借入ご希望金額
万円 - 借入期間
年 - 借入金利
% - 月々のお支払い金額
円
- 借入ご希望金額
※ 月々のお支払例は目安の試算となりますので、実際の金額とは異なる場合がございます。詳しくは店舗までお問合わせください。
- 八王子市泉町
-
JR中央本線『西八王子』 バス乗車23分 四谷並木橋 停 徒歩2分 (約160m)
八王子市泉町 全12棟・8区画19号棟 新築分譲住宅一戸建て | 物件情報
【新築仲介手数料無料のハウスドゥ立川北】八王子市 泉町全 12棟 19号棟
こちらの物件は【ハウスドゥ立川北限定のゼロキャンペーン対象物件】です。ご購入の際の仲介手数料が【無料】の0円です。中古住宅ご購入のお客様には【Wキャンペーン対象物件】でギフト券をプレゼント!大変お得なキャンペーンなのでぜひご利用ください。さらにローンシュミレーションからライフプランの設計も【無料】で作成いたします。賢く買うならハウスドゥ 立川北で検索!
物件の設備
- 電気
- 公営水道
- 公共下水
- 都市ガス
- 浄水器
- コンロ三口
- カウンターキッチン
- システムキッチン
- ユニットバス
- バス1坪以上
- 追焚機能
- 浴室乾燥機
- 浴室に窓
- トイレ2箇所
- 温水洗浄便座
- 室内洗濯機置場
- 洗髪洗面化粧台
- 洗面所独立
- 太陽光発電システム
- カードキー
- ディンプルキー
- モニタ付インターホン
- 火災警報器/報知機
- LDK20畳以上
- 2面採光
- 全居室複層ガラス
- フローリング
- 24時間換気システム
- ウォークインクローゼット
- 床下収納
- 全居室収納
- シューズWIC
- シューズインクローク
- ワイドバルコニー
物件の特徴
- スーパーが近い
- 閑静な住宅街
- 市街地が近い
- 都市近郊
- 通風良好
- 2階建
- 整形地
- 外壁サイディング
- バリアフリー
- 建設住宅性能評価付
- 設計住宅性能評価付
- 建築確認完了検査済証
- 新築
- 増改築設計図書
- フラット35Sに対応
物件詳細情報
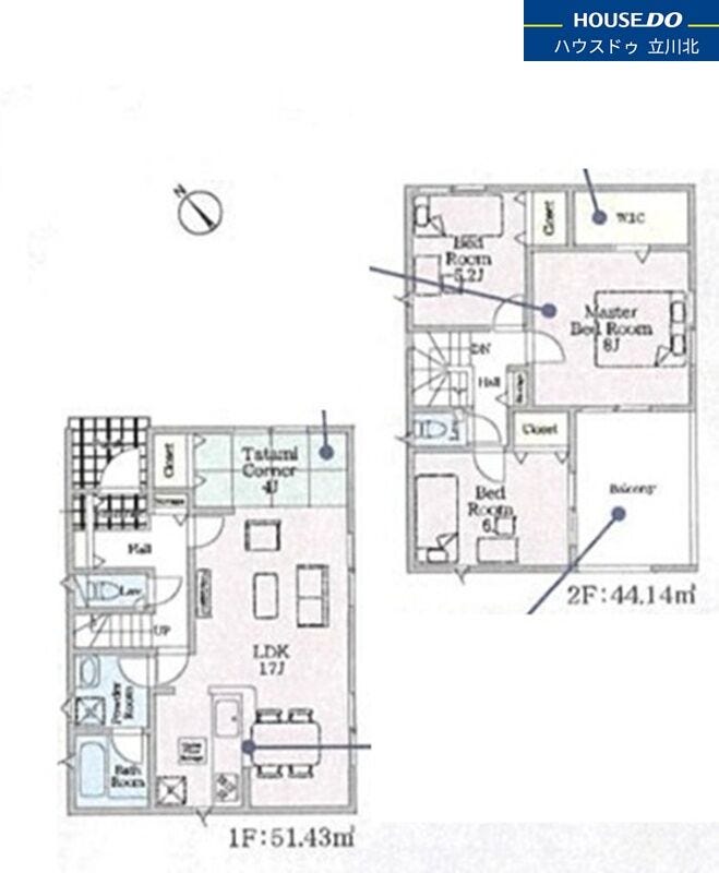
| 価格 | 3,280万円 | 間取り | 3LDK+S |
|---|---|---|---|
| 物件種別 | 新築一戸建て | ||
| 所在地 | 東京都八王子市泉町1911-32【仲介手数料0円】キャンペーン対象物件 19号棟 | ||
| アクセス |
|
||
| 建物面積 | 95.5㎡ | 駐車場 | あり 普通:2台 |
| 築年月 | 2026年(令和8年)04月築 | 建築確認 | 第KBI-SGM25-10-5253号 |
| 建物構造 | 木造 2階建 | 工法 | |
| 主要採光 | 南西向 | バルコニー | |
| 保証・評価 | 設計住宅性能評価書・建設住宅性能評価書(新築時) |
||
| 分譲情報 | 【販売戸数】:12戸 |
||
| 土地面積 | 140㎡(42.35坪) | 接道 | 北東側(私道)幅 約5.0m 間口 約10.10m |
| 私道 | 別:631.91㎡(持分 1/20) | セットバック | |
| 地目 | 宅地 | 地勢 | |
| 権利 | 所有権 |
||
| 都市計画 | 市街化区域 |
用途地域 | 1種低層(一部準工業 含む) |
| 建ぺい/容積率 | 40%(一部60% 含む) / 80%(一部200% 含む) | 土地国土法 | |
| 許可番号 | 建築基準法 | ||
| 法令制限 | 都市再生特別地区・景観法・航空法・宅地造成工事規制区域・高さ最高限度有・公園:220.08㎡ 持分1/20 | ||
| 小学区 | 元八王子東小学校 徒歩15分 (約1200m) | 中学区 | 四谷中学校 徒歩8分 (約579m) |
| 現況 | 建築中 | 引渡 | 期日指定:2026年04月 |
| その他費用 | |||
| 備考 | スーパーオザム八王子諏訪店・・・徒歩約7分/ベルクフォルテ八王子店・・・徒歩約7分/ローソン八王子四谷町店・・・徒歩約5分/クリエイトSD八王子四谷店・・・徒歩約5分/八王子川口東郵便局・・・徒歩約12分 | ||
| 物件番号 | 4639868 | 取引態様 | 媒介 |
取扱店舗情報
ハウスドゥ 立川北 株式会社シティリノベーション 店舗詳細ページへ
| 電話番号 | 042-537-9361 |
|---|---|
| 所在地 | 〒190-0004 東京都立川市柏町3-19-14 フレンテ1F |
| 営業時間 | 9:00~18:00 |
| 定休日 | GW、夏季、冬季 |
| 宅建免許番号 | 東京都知事(2)第100954号 |
| アクセス | 店舗への地図はこちら |

来店ご予約
東京都八王子市で価格が似ている物件はこちら
- 東京都
マイページ物件数 - 5,897件
最近見た物件
-
-

-
- 土地
- 1,271万円
-
高松市上林町
-
高松琴平電鉄琴平線仏生山
-
-
-

-
- 新築一戸建て
- 4,780万円
-
福岡市東区美和台5丁目
-
西鉄貝塚線三苫
-
-
-

-
- 新築一戸建て
- 4,298万円
-
福岡市博多区金の隈2丁目
-
西鉄天神大牟田線雑餉隈
-
東京都新築一戸建て新着物件
-
-

-
- 新築一戸建て
- 6,190万円
-
国分寺市東戸倉1丁目
-
西武国分寺線恋ヶ窪駅
-
-
-

-
- 新築一戸建て
- 5,590万円
-
国分寺市東戸倉1丁目
-
西武国分寺線恋ヶ窪駅
-
-
-

-
- 新築一戸建て
- 7,390万円
-
江戸川区北小岩3丁目
-
京成本線江戸川駅
-
-
-

-
- 新築一戸建て
- 6,390万円
-
江戸川区北小岩3丁目
-
京成本線江戸川駅
-
-
-

-
- 新築一戸建て
- 3,780万円
-
足立区宮城1丁目
-
日暮里舎人ライナー足立小台駅
-
-
-

-
- 新築一戸建て
- 4,380万円
-
立川市西砂町2丁目
-
西武拝島線西武立川駅
-
-
-

-
- 新築一戸建て
- 3,980万円
-
立川市西砂町2丁目
-
西武拝島線西武立川駅
-
- お近くの店舗を探す
-
おすすめ物件
-
-

-
- 新築一戸建て
- 5,399万円
-
日野市多摩平3丁目
-
JR中央本線豊田
-
-
-

-
- 新築一戸建て
- 6,960万円
-
足立区南花畑1丁目
-
つくばエクスプレス六町
-
-
-

-
- 新築一戸建て
- 3,480万円
-
八王子市犬目町
-
JR中央本線八王子
-
-
-

-
- 新築一戸建て
- 8,799万円
-
練馬区東大泉7丁目
-
西武池袋・豊島線大泉学園
-
-
-

-
- 新築一戸建て
- 6,199万円
-
調布市深大寺東町4丁目
-
京王線つつじヶ丘
-
-
-

-
- 新築一戸建て
- 5,199万円
-
八王子市鹿島
-
多摩モノレール松が谷
-
-
-

-
- 新築一戸建て
- 1億3,950万円
-
世田谷区砧7丁目
-
小田急小田原線祖師ヶ谷大蔵
-
-
-

-
- 新築一戸建て
- 4,580万円
-
八王子市楢原町
-
JR中央本線西八王子
-
-
-

-
- 新築一戸建て
- 5,899万円
-
八王子市兵衛2丁目
-
JR横浜線八王子みなみ野
-
-
-

-
- 新築一戸建て
- 1億980万円
-
練馬区東大泉3丁目
-
西武池袋・豊島線大泉学園
-




担当エージェント:板谷 和友樹
ハウスドゥ立川北のホームページをご覧頂きありがとうございます。
お客様の多くがお家を買うのに不安があるかと思われます。ハウスドゥではお客様の不安や問題解決に一つ一つ誠心誠意お答えいたします。また、お家探しに役立つ多くの物件に関する情報を掲載しております。
ハウスドゥ立川北ではお客様お一人お一人にあったご提案を心がけており、ローンシュミレーションや人工知能を使ったライフプランの作成(要予約)を行いお客様の不安を解決いたします
■頭金は必要なのか?
■ローンは払っていけるのか?
■どのタイミングで住み替えや引越しが出来るのか?etc
お気軽に相談できるハウスドゥ立川北へお問い合わせ下さい
◆ご予約方法◆
直接お電話ください。【0120-537-936】
メールでのご予約も承ります。お気軽にご来店ください。
物件によっては事前に鍵の手配が必要な場合がありますので、お早目にご連絡をいただけるとご案内がスムーズです。
◆ご案内方法◆
①最寄駅や周辺地での待ち合わせ②ハウスドゥ立川北へのご来店などご相談ください。