南花畑1丁目 新築分譲住宅 1号棟
NEW 03.27掲載情報更新日:2026年03月27日 次回更新予定日:2026年04月10日
- 7,540万円
-
- 借入ご希望金額
万円 - 借入期間
年 - 借入金利
% - 月々のお支払い金額
円
- 借入ご希望金額
※ 月々のお支払例は目安の試算となりますので、実際の金額とは異なる場合がございます。詳しくは店舗までお問合わせください。
- 足立区南花畑1丁目
-
つくばエクスプレス『六町』 徒歩11分 (約880m)
南花畑1丁目 新築分譲住宅 1号棟一戸建て | 物件情報
物件の設備
- バルコニー
物件の特徴
- 南側道路面す
- 3階建以上
物件詳細情報
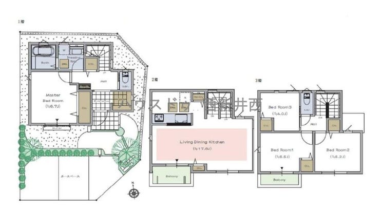
| 価格 | 7,540万円 | 間取り | 4LDK |
|---|---|---|---|
| 物件種別 | 新築一戸建て | ||
| 所在地 | 東京都足立区南花畑1丁目 1号棟 | ||
| アクセス |
|
||
| 建物面積 | 99.35㎡ | 駐車場 | あり 普通:1台 |
| 築年月 | 2026年(令和8年)02月築 | 建築確認 | |
| 建物構造 | 木造 3階建 | 工法 | |
| 主要採光 | バルコニー | ||
| 保証・評価 | |||
| 土地面積 | 87.07㎡(26.33坪) | 接道 | 南側(私道)幅 約5.0m |
| 私道 | セットバック | ||
| 地目 | 宅地 | 地勢 | |
| 権利 | 所有権 |
||
| 都市計画 | 市街化区域 |
用途地域 | 準工業 |
| 建ぺい/容積率 | 60% / 200% | 土地国土法 | |
| 許可番号 | 建築基準法 | ||
| 法令制限 | |||
| 小学区 | 花畑小学校 徒歩7分 (約550m) | 中学区 | 第十三中学校 徒歩7分 (約550m) |
| 現況 | 完工済 | 引渡 | 相談 |
| その他費用 | |||
| 備考 | |||
| 物件番号 | 4654083 | 取引態様 | 媒介 |
取扱店舗情報
| 電話番号 | 03-5647-8880 |
|---|---|
| 所在地 | 〒123-0863 東京都足立区谷在家1-2-7 |
| 営業時間 | 9:30~18:00 |
| 定休日 | 火曜日、水曜日 |
| 宅建免許番号 | 東京都知事(4)第91879号 |
| アクセス | 店舗への地図はこちら |

来店ご予約
東京都足立区で価格が似ている物件はこちら
- 東京都
マイページ物件数 - 5,527件
東京都新築一戸建て新着物件
- お近くの店舗を探す
-
おすすめ物件
-
-

-
- 新築一戸建て
- 4,799万円
-
足立区花畑7丁目
-
東武伊勢崎・大師線谷塚
-
-
-

-
- 新築一戸建て
- 2,580万円
-
八王子市大楽寺町
-
JR中央本線西八王子
-
-
-

-
- 新築一戸建て
- 4,590万円
-
八王子市上柚木
-
京王相模原線南大沢
-
-
-

-
- 新築一戸建て
- 5,699万円
-
日野市多摩平3丁目
-
JR中央本線豊田
-
-
-

-
- 新築一戸建て
- 4,499万円
-
八王子市大和田町3丁目
-
京王線京王八王子
-
-
-

-
- 新築一戸建て
- 2,999万円
-
八王子市諏訪町
-
JR中央本線西八王子
-
-
-

-
- 新築一戸建て
- 3,080万円
-
八王子市西寺方町
-
JR中央本線高尾
-
-
-

-
- 新築一戸建て
- 4,980万円
-
八王子市北野町
-
京王線北野
-
-
-

-
- 新築一戸建て
- 4,499万円
-
八王子市大和田町3丁目
-
京王線京王八王子
-
-
-

-
- 新築一戸建て
- 3,790万円
-
八王子市楢原町
-
JR中央本線西八王子
-










