小平市回田町の新築戸建
NEW 04.24掲載情報更新日:2026年04月24日 次回更新予定日:2026年05月08日
- 5,180万円
-
- 借入ご希望金額
万円 - 借入期間
年 - 借入金利
% - 月々のお支払い金額
円
- 借入ご希望金額
※ 月々のお支払例は目安の試算となりますので、実際の金額とは異なる場合がございます。詳しくは店舗までお問合わせください。
- 小平市回田町
-
西武多摩湖線『一橋学園』 徒歩21分 (約1640m)
JR中央本線『武蔵小金井』 バス乗車15分 回田町 停 徒歩2分 (約160m)
小平市回田町一戸建て | 物件情報
耐震等級3×制震ダンパー×太陽光発電。地震に強く、光熱費を抑える。小平市回田町に誕生する1棟の住まい
■家族を守る安心の構造
・消防署などの防災拠点と同等の「耐震等級3」を取得。
・「制震ダンパー」を搭載し、繰り返しの揺れからも建物を守ります。
・第三者機関が厳格にチェックする「住宅性能表示(建設・設計)」取得済みです。
■共働き世帯を支える家計のゆとり
・「太陽光発電システム」を標準搭載。日中の電気を自給自足し、月々の支払いを軽減します。
・「断熱等性能等級5」の気密性で、夏は涼しく冬は暖かい、エアコン効率の良い暮らしを実現。
・ZEH基準を満たした省エネ住宅です。
■ゆとりある空間設計
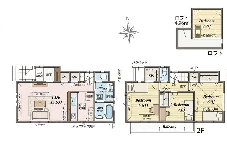
・リビング上部は「折上天井」を採用。縦の空間を広げ、開放感をプラスしました。
・4.96帖のロフト付き。季節ものや趣味の道具もすっきり片付きます。
・バルコニーは2部屋から出入り可能で、洗濯物の取り込みもスムーズです。
■子育てに専念できる環境
・小平市立鈴木小学校まで徒歩7分(約540m)。低学年のお子様も歩きやすい距離。
・いなげや小平回田店まで徒歩4分(約260m)。お仕事帰りの買い出しも10分以内で完結します。
物件の設備
- 電気
- 公営水道
- 公共下水
- 都市ガス
- 食器洗浄乾燥機
- コンロ三口
- システムキッチン
- バス
- オートバス
- バス1坪以上
- 浴室暖房
- 浴室乾燥機
- 浴室に窓
- トイレ
- トイレ2箇所
- 室内洗濯機置場
- 洗髪洗面化粧台
- 洗面所独立
- 太陽光発電システム
- ロフト
- LDK15畳以上
- 2面採光
- フローリング
- 全室フローリング
- クローゼット3箇所
- ウォークインクローゼット
- 床下収納
- 全居室収納
- シューズボックス
- 2WAYバルコニー
物件の特徴
- 南向
- 2階建
- BELS/省エネ基準適合
物件詳細情報
| 価格 | 5,180万円 | 間取り | 3LDK |
|---|---|---|---|
| 物件種別 | 新築一戸建て | ||
| 所在地 | 東京都小平市回田町 | ||
| アクセス |
|
||
| 建物面積 | 公79.52㎡ | 駐車場 | あり 普通:1台 |
| 築年月 | 2026年(令和8年)07月予定 | 建築確認 | 第R08SHC102917号 |
| 建物構造 | 木造 2階建 | 工法 | |
| 主要採光 | 南向 | バルコニー | |
| 保証・評価 | |||
| 土地面積 | 公99.67㎡(30.15坪) | 接道 | 西側(私道)幅 約4.0m |
| 私道 | 別:公16.00㎡(持分 1/1) | セットバック | |
| 地目 | 宅地 | 地勢 | |
| 権利 | 所有権 |
||
| 都市計画 | 市街化区域 |
用途地域 | 1種低層 |
| 建ぺい/容積率 | 40% / 80% | 土地国土法 | |
| 許可番号 | 建築基準法 | ||
| 法令制限 | 高度地区・景観法・法22条区域 | ||
| 小学区 | 鈴木小学校 徒歩6分 (約480m) | 中学区 | 小平第三中学校 徒歩20分 (約1540m) |
| 現況 | 建築中 | 引渡 | 期日指定:2026年08月下旬 |
| その他費用 | |||
| 周辺環境 | ウェルパーク薬局小平回田店 徒歩1分 (約70m) 回田町第2公園 徒歩1分 (約70m) いなげや小平回田店 徒歩5分 (約330m) 小平回田町郵便局 徒歩6分 (約460m) 小平市立鈴木小学校 徒歩6分 (約480m) りそな銀行小平東出張所 徒歩9分 (約680m) 小平市消防団第8分団 徒歩8分 (約630m) 小平警察署学園東交番 徒歩12分 (約910m) 小平市立小平第3中学校 徒歩20分 (約1540m) 小平中央リハビリテーション病院 徒歩15分 (約1200m) |
||
| 備考 | ・耐震等級3+制震ダンパー取得 ・住宅性能表示建設+設計 断熱等性能等級5取得 ・BELS取得物件 ・太陽光発電 太陽光発電システムについては、東京ガスが提供するサービス契約(イグニチャー ソーラーフラットプランwith東栄住宅)となります。サービス契約期間:10年間。月額サービス料:5,400円 /月(税込)(補助金適用になる場合、月額サービス料:0円)※詳細につきましては、営業担当者にお問い合わ せください。 お気軽にお問い合わせください |
||
| 物件番号 | 4690388 | 取引態様 | 媒介 |
取扱店舗情報
ハウスドゥ 小平青梅街道駅東 株式会社サニーエステート 店舗詳細ページへ
| 電話番号 | 042-313-6808 |
|---|---|
| 所在地 | 〒187-0042 東京都小平市仲町652-3 マ・メゾンビル1階 |
| 営業時間 | 9:30~18:00 |
| 定休日 | 火曜日、水曜日 |
| 宅建免許番号 | 東京都知事(1)第113474号 |
| アクセス | 店舗への地図はこちら |

来店ご予約
東京都小平市で価格が似ている物件はこちら
- 東京都
マイページ物件数 - 5,881件
最近見た物件
東京都新築一戸建て新着物件
-
-

-
- 新築一戸建て
- 6,790万円
-
調布市富士見町3丁目
-
京王線西調布駅
-
-
-

-
- 新築一戸建て
- 5,180万円
-
小平市回田町
-
西武多摩湖線一橋学園駅
-
-
-

-
- 新築一戸建て
- 6,490万円
-
調布市富士見町3丁目
-
京王線西調布駅
-
-
-

-
- 新築一戸建て
- 6,290万円
-
調布市富士見町3丁目
-
京王線西調布駅
-
-
-

-
- 新築一戸建て
- 6,390万円
-
調布市富士見町3丁目
-
京王線西調布駅
-
-
-

-
- 新築一戸建て
- 6,890万円
-
調布市富士見町3丁目
-
京王線西調布駅
-
-
-

-
- 新築一戸建て
- 4,590万円
-
小平市回田町
-
西武多摩湖線一橋学園駅
-
- お近くの店舗を探す
-
おすすめ物件
-
-

-
- 新築一戸建て
- 5,399万円
-
日野市多摩平3丁目
-
JR中央本線豊田
-
-
-

-
- 新築一戸建て
- 5,699万円
-
八王子市追分町
-
JR中央本線西八王子
-
-
-

-
- 新築一戸建て
- 8,799万円
-
練馬区東大泉7丁目
-
西武池袋・豊島線大泉学園
-
-
-

-
- 新築一戸建て
- 6,960万円
-
足立区南花畑1丁目
-
つくばエクスプレス六町
-
-
-

-
- 新築一戸建て
- 5,280万円
-
足立区中央本町4丁目
-
東武伊勢崎・大師線梅島
-
-
-

-
- 新築一戸建て
- 6,199万円
-
調布市深大寺東町4丁目
-
京王線つつじヶ丘
-
-
-

-
- 新築一戸建て
- 3,580万円
-
八王子市犬目町
-
JR中央本線八王子
-
-
-

-
- 新築一戸建て
- 5,599万円
-
日野市多摩平3丁目
-
JR中央本線豊田
-
-
-

-
- 新築一戸建て
- 4,999万円
-
八王子市子安町1丁目
-
JR中央本線八王子
-
-
-

-
- 新築一戸建て
- 6,199万円
-
調布市深大寺東町4丁目
-
京王線つつじヶ丘
-








担当エージェント:【営業】栗原 渉
共働きの忙しい日々の中で、住まいに求めるものは「安全性」と「家計への優しさ」ではないでしょうか。
こちらの物件は、耐震性能と制震技術を組み合わせることで、万が一の震災時にも家族の居場所を守り抜く設計となっています。
また、光熱費が高騰する昨今において、太陽光発電と高い断熱性能は、住み始めてからの生活費に直結する大きなメリットです。浮いたお金を習い事や家族旅行に充てるなど、暮らしの質を高めることができます。
周辺は第一種低層住居専用地域の閑静な住宅街。スーパーやドラッグストアが徒歩5分圏内に揃い、生活動線が非常にコンパクトにまとまっています。
現在、同エリアでこれだけの性能を備えた新築分譲住宅は限られており、早期の終了が予想されます。まずは現地で、光の入り方や周辺の静かさを体感してみませんか。
ご案内時には、周辺の類似物件との性能比較や、太陽光発電による具体的な光熱費削減シミュレーションを提示いたします。将来の資産価値についても、根拠に基づいた説明をさせていただきます。