松山市北井門5丁目の新築戸建
NEW 04.25掲載情報更新日:2026年04月25日 次回更新予定日:2026年05月09日
- 3,499万円
-
- 借入ご希望金額
万円 - 借入期間
年 - 借入金利
% - 月々のお支払い金額
円
- 借入ご希望金額
※ 月々のお支払例は目安の試算となりますので、実際の金額とは異なる場合がございます。詳しくは店舗までお問合わせください。
- 松山市北井門5丁目
-
『椿団地前』 徒歩8分 (約640m)
松山市北井門5丁目一戸建て | 物件情報
物件の設備
- 電気
- オール電化
- 上水道
- 浄化槽
- LDK15畳以上
- ウォークインクローゼット
- バルコニー
- 南面バルコニー
物件の特徴
- 2階建
物件詳細情報
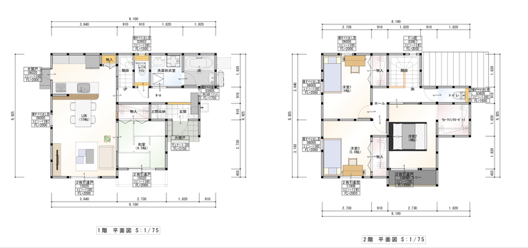
| 価格 | 3,499万円 | 間取り | 4LDK |
|---|---|---|---|
| 物件種別 | 新築一戸建て | ||
| 所在地 | 愛媛県松山市北井門5丁目 | ||
| アクセス |
|
||
| 建物面積 | 公96.05㎡ | 駐車場 | あり 普通:2台 軽:1台 |
| 築年月 | 2026年(令和8年)09月予定 | 建築確認 | 第2026建確-0164号 |
| 建物構造 | 木造 2階建 | 工法 | |
| 主要採光 | 南向 | バルコニー | 南向2.50㎡ |
| 保証・評価 | |||
| 土地面積 | 公155.77㎡(47.12坪) | 接道 | 東側(私道)幅 約4.0m 間口 約6.27m |
| 私道 | セットバック | ||
| 地目 | 宅地 | 地勢 | |
| 権利 | 所有権 |
||
| 都市計画 | 市街化区域 |
用途地域 | 1種低層 |
| 建ぺい/容積率 | 50% / 80% | 土地国土法 | |
| 許可番号 | 建築基準法 | ||
| 法令制限 | |||
| 小学区 | 中学区 | ||
| 現況 | 建築中 | 引渡 | 期日指定:2026年10月以降 |
| その他費用 | 上水道負担金:385000円・浄化槽申請費用:170610円 |
||
| 周辺環境 | 南中学校 徒歩14分 (約1080m) JR市坪駅 徒歩28分 (約2210m) マクドナルド松山南店 徒歩32分 (約2520m) 洋服の青山 松山店 徒歩32分 (約2550m) |
||
| 備考 | |||
| 物件番号 | 4691469 | 取引態様 | 媒介 |
取扱店舗情報
ハウスドゥ 松山富久 リビング・ハーモニー株式会社 店舗詳細ページへ
| 電話番号 | 089-971-0077 |
|---|---|
| 所在地 | 〒791-8034 愛媛県松山市富久町430-2 |
| 営業時間 | 10:00~18:00 |
| 定休日 | 火曜日、水曜日、GW、お盆、年末年始 |
| 宅建免許番号 | 愛媛県知事(1)第5862号 |
| アクセス | 店舗への地図はこちら |

来店ご予約
愛媛県松山市で価格が似ている物件はこちら
- 愛媛県
マイページ物件数 - 3,688件
最近見た物件
-
-

-
- 新築一戸建て
- 6,298万円
-
相模原市南区御園1丁目
-
小田急小田原線相模大野
-
-
-

-
- 新築一戸建て
- 4,080万円
-
伊勢原市高森2丁目
-
小田急小田原線愛甲石田
-
-
-

-
- 中古マンション
- 3,280万円
-
大阪市此花区島屋6丁目
-
JR桜島線ユニバーサルシティ
-
愛媛県新築一戸建て新着物件
- お近くの店舗を探す
-








