姫路市四郷町東阿保の新築戸建
NEW 04.26掲載情報更新日:2026年04月26日 次回更新予定日:2026年05月10日
- 2,380万円
-
- 借入ご希望金額
万円 - 借入期間
年 - 借入金利
% - 月々のお支払い金額
円
- 借入ご希望金額
※ 月々のお支払例は目安の試算となりますので、実際の金額とは異なる場合がございます。詳しくは店舗までお問合わせください。
- 姫路市四郷町東阿保
-
JR山陽本線『東姫路』 徒歩25分 (約2000m)
姫路市四郷町東阿保一戸建て | 物件情報
物件の設備
- 電気
- オール電化
- 公営水道
- 公共下水
- カウンターキッチン
- システムキッチン
- ユニットバス
- 浴室暖房
- 浴室乾燥機
- トイレ2箇所
- 温水洗浄便座
- 室内洗濯機置場
- 洗髪洗面化粧台
- 人感照明センサー
- モニタ付インターホン
- 防犯カメラ
- 複層ガラス
物件の特徴
- 2階建
物件詳細情報
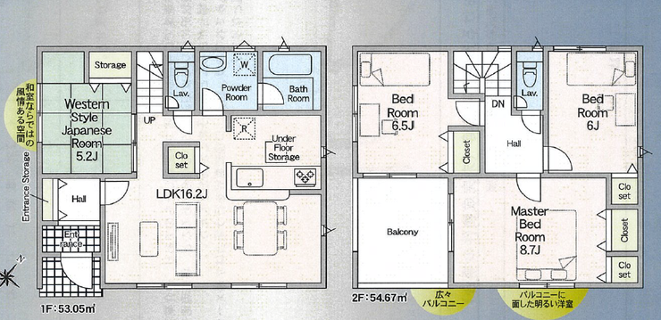
| 価格 | 2,380万円 | 間取り | 4LDK |
|---|---|---|---|
| 物件種別 | 新築一戸建て | ||
| 所在地 | 兵庫県姫路市四郷町東阿保 3号棟 | ||
| アクセス |
|
||
| 建物面積 | 107.72㎡ | 駐車場 | あり 普通:1台 |
| 築年月 | 2026年(令和8年)07月予定 | 建築確認 | 第R08SHC105167号 |
| 建物構造 | 木造 2階建 | 工法 | |
| 主要採光 | バルコニー | ||
| 保証・評価 | |||
| 分譲情報 | 【販売戸数】:3戸 |
||
| 土地面積 | 165.13㎡(49.95坪) | 接道 | |
| 私道 | セットバック | ||
| 地目 | 宅地 | 地勢 | |
| 権利 | 所有権 |
||
| 都市計画 | 市街化区域 |
用途地域 | 1種低層 |
| 建ぺい/容積率 | 50% / 100% | 土地国土法 | |
| 許可番号 | 建築基準法 | ||
| 法令制限 | |||
| 小学区 | 四郷学院 徒歩24分 (約1868m) | 中学区 | 四郷中学校 徒歩24分 (約1868m) |
| 現況 | 建築中 | 引渡 | 未記入 |
| その他費用 | |||
| 備考 | |||
| 物件番号 | 4692144 | 取引態様 | 媒介 |
取扱店舗情報
| 電話番号 | 079-263-8520 |
|---|---|
| 所在地 | 〒671-0255 兵庫県姫路市花田町小川6-1 |
| 営業時間 | 9:30~18:30 |
| 定休日 | 水曜日・お盆・年末年始 |
| 宅建免許番号 | 兵庫県知事(5)第451126号 |
| アクセス | 店舗への地図はこちら |

来店ご予約
兵庫県姫路市で価格が似ている物件はこちら
- 兵庫県
マイページ物件数 - 3,161件
最近見た物件
-
-

-
- 土地
- 3,450万円
-
京都市伏見区深草願成町
-
京阪本線鳥羽街道
-
-
-

-
- 土地
- 890万円
-
倉敷市玉島阿賀崎5丁目
-
JR山陽本線新倉敷
-
-
-

-
- 中古マンション
- 5,580万円
-
練馬区石神井台7丁目
-
西武新宿線武蔵関
-
兵庫県新築一戸建て新着物件
-
-

-
- 新築一戸建て
- 3,880万円
-
明石市大久保町山手台1丁目
-
JR山陽本線大久保駅
-
-
-

-
- 新築一戸建て
- 4,080万円
-
明石市大久保町山手台1丁目
-
JR山陽本線大久保駅
-
-
-

-
- 新築一戸建て
- 2,480万円
-
明石市二見町西二見
-
山陽電鉄本線西二見駅
-
-
-

-
- 新築一戸建て
- 3,280万円
-
姫路市南八代町
-
山陽電鉄本線山陽姫路駅
-
-
-

-
- 新築一戸建て
- 3,780万円
-
明石市大久保町西脇
-
JR山陽本線大久保駅
-
-
-

-
- 新築一戸建て
- 2,380万円
-
姫路市四郷町東阿保
-
JR山陽本線東姫路駅
-
-
-

-
- 新築一戸建て
- 2,280万円
-
姫路市四郷町東阿保
-
JR山陽本線東姫路駅
-
- お近くの店舗を探す
-








