アルファステイツ笹沖 倉敷市笹沖の新築マンション
掲載情報更新日:2025年12月27日 次回更新予定日:2026年01月10日
- 3,860万円
-
- 借入ご希望金額
万円 - 借入期間
年 - 借入金利
% - 月々のお支払い金額
円
- 借入ご希望金額
※ 月々のお支払例は目安の試算となりますので、実際の金額とは異なる場合がございます。詳しくは店舗までお問合わせください。
- 倉敷市笹沖
-
両備バス・下電バス『ゆめタウン倉敷』 徒歩4分 (約320m)
倉敷市笹沖マンション | 物件情報
物件の設備
- 公営水道
- 公共下水
- 浄水器
- システムキッチン
- 浴室乾燥機
- 温水洗浄便座
- 高機能トイレ
- ディンプルキー
- モニタ付インターホン
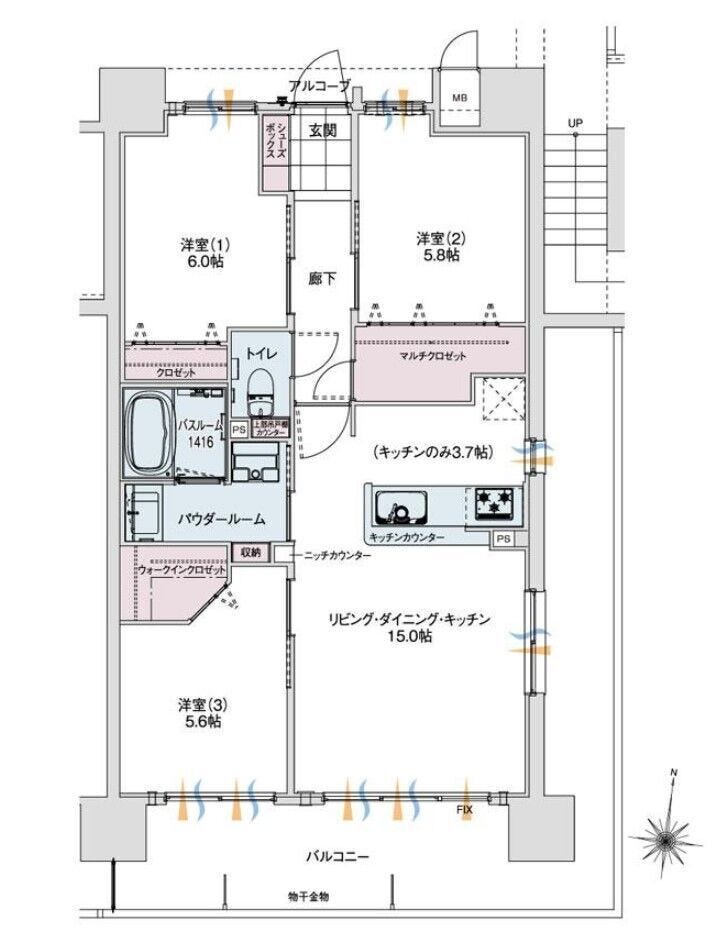
- LDK15畳以上
- 全室フローリング
- ウォークインクローゼット
- ウォークスルークローゼット
- 収納スペース
- シューズボックス
- バルコニー
- 2面バルコニー
- 南面バルコニー
- エレベーター
- バイク置場
- アルコーブ
物件の特徴
- 南向
- 陽当り良好
- 平坦地
物件詳細情報
| 価格 | 3,860万円 | 間取り | 3LDK |
|---|---|---|---|
| 物件種別 | 新築マンション | ||
| 所在地 | 岡山県倉敷市笹沖 | ||
| アクセス |
|
||
| 専有面積 | 73.15㎡ | 所在階 | 10階建/3階部分 |
| 主要採光 | 南向 | バルコニー | 南向24.29㎡ |
| その他 | |||
| 権利 | |||
| 保証・評価 | |||
| 総戸数 | 63戸 | 面積 | |
| 築年月 | 2026年(令和8年)05月予定 | 建物構造 | RC |
| 施工会社 | |||
| 管理会社 | 管理方式 | 全部委託 なし(不在) | |
| 駐車場 | 【駐車場】空有 【バイク置き場】空有 料金:1000円/月 |
||
| 都市計画 | 市街化区域 |
用途地域 | 1種中高 |
| 建ぺい/容積率 | 60% / 200% | 土地国土法 | |
| 法令制限 | |||
| 小学区 | 葦高小学校 徒歩14分 (約1080m) | 中学区 | |
| 現況 | 未完成 | 引渡 | 期日指定:2026年07月上旬 |
| 管理費 | 8,500円/月 | 修繕積立金 | 5,000円/月 |
| その他費用 | 修繕積立基金:374000円・災害積立基金:10000円 災害積立金:300円/月 |
||
| 周辺環境 | 倉敷市立葦高小学校 徒歩16分 (約1240m) 倉敷市立新田中学校 徒歩13分 (約1030m) 倉敷市立葦高幼稚園 徒歩15分 (約1200m) ファミリーマート 倉敷笹沖西店 徒歩7分 (約490m) ザ・ビッグ 倉敷店 徒歩6分 (約480m) ザグザグ 笹沖店 徒歩5分 (約400m) ゆめタウン倉敷 徒歩1分 (約70m) 倉敷成人病センター 徒歩21分 (約1630m) 倉敷市役所内郵便局 徒歩12分 (約950m) 百十四銀行 倉敷支店 徒歩5分 (約390m) |
||
| 備考 | |||
| 物件番号 | 4490451 | 取引態様 | 媒介 |
取扱店舗情報
ハウスドゥ 倉敷駅東 株式会社アールイープロジェクト 店舗詳細ページへ
| 電話番号 | 086-424-6400 |
|---|---|
| 所在地 | 〒710-0003 岡山県倉敷市平田681-4 |
| 営業時間 | 9:00~18:00 |
| 定休日 | 水曜日、年末年始 |
| 宅建免許番号 | 岡山県知事(2)第5855号 |
| アクセス | 店舗への地図はこちら |

来店ご予約
岡山県倉敷市で価格が似ている物件はこちら
- 岡山県
マイページ物件数 - 4,502件
最近見た物件
-
-

-
- 土地
- 3,100万円
-
福岡市南区屋形原1丁目
-
西鉄天神大牟田線大橋
-
-
-

-
- 新築一戸建て
- 1億499万円
-
世田谷区給田1丁目
-
京王線仙川
-
-
-

-
- 新築一戸建て
- 3,398万円
-
北九州市門司区大里本町2丁目
-
JR鹿児島本線門司
-
- お近くの店舗を探す
-




































![【マルチクロゼット】[2WAY動線]リビング・ダイニング・キッチン(廊下)側と洋室側の両方から出入りできるマルチクロゼット。家族分の衣類をかけることができるハンガーパイプをご用意。](https://cdn.housedo.com/img/ieurikai/estate/0449/04490451/04490451exterior34L.jpg)
