草津市野村4丁目1期1号棟
NEW 10.23掲載情報更新日:2025年10月23日 次回更新予定日:2025年11月06日
- 3,648万円
-
- 借入ご希望金額
万円 - 借入期間
年 - 借入金利
% - 月々のお支払い金額
円
- 借入ご希望金額
※ 月々のお支払例は目安の試算となりますので、実際の金額とは異なる場合がございます。詳しくは店舗までお問合わせください。
- 草津市野村4丁目
-
JR東海道線『草津』 徒歩22分 (約1760m)
JR東海道線『南草津』 徒歩46分 (約3610m)
草津市野村4丁目1期1号棟一戸建て | 物件情報
★駐車2台可
★北角地で解放感あり
★LDK続き間洋室22.3帖!
★スーパー・コンビニ・公園など徒歩11分圏内!
物件の設備
- 電気
- 公営水道
- 都市ガス
- 浄水器
- カウンターキッチン
- システムキッチン
- バス1坪以上
- 浴室乾燥機
- 浴室に窓
- トイレ2箇所
- 温水洗浄便座
- 洗髪洗面化粧台
- 省エネ給湯器
- モニタ付インターホン
- LDK18畳以上
- 複層ガラス
- 全室フローリング
- クローゼット
- ウォークインクローゼット
- 床下収納
- 全居室収納
- シューズボックス
物件の特徴
- 閑静な住宅街
- 市街地が近い
- 陽当り良好
- 2階建
- 角地
- 整形地
- 省エネルギー対策
- 即入居可
- フラット35Sに対応
物件詳細情報
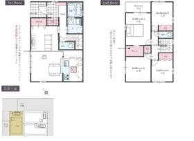
| 価格 | 3,648万円 | 間取り | 5LDK+S |
|---|---|---|---|
| 物件種別 | 新築一戸建て | ||
| 所在地 | 滋賀県草津市野村4丁目 | ||
| アクセス |
|
||
| 建物面積 | 105.16㎡ | 駐車場 | あり |
| 築年月 | 2025年(令和7年)05月築 | 建築確認 | KS123-0410-56831号 |
| 建物構造 | 木造 2階建 | 工法 | |
| 主要採光 | バルコニー | ||
| 保証・評価 | |||
| 土地面積 | 公131.68㎡(39.83坪) | 接道 | 北東側(公道)幅 約4.0m 間口 約10.20m 北西側(私道)幅 約4.0m 間口 約11.60m |
| 私道 | セットバック | ||
| 地目 | 宅地 | 地勢 | |
| 権利 | 所有権 |
||
| 都市計画 | 市街化区域 |
用途地域 | 1種住居 |
| 建ぺい/容積率 | 60% / 160% | 土地国土法 | |
| 許可番号 | 建築基準法 | ||
| 法令制限 | 法22条区域 | ||
| 小学区 | 笠縫小学校 徒歩12分 (約890m) | 中学区 | 松原中学校 徒歩16分 (約1250m) |
| 現況 | 完工済 | 引渡 | 即 |
| その他費用 | |||
| 周辺環境 | クスリのアオキ 草津野村店 徒歩3分 (約210m) ドラッグユタカ 西草津店 徒歩11分 (約870m) 草津市立笠縫小学校 徒歩12分 (約890m) 草津市立松原中学校 徒歩16分 (約1250m) JR草津駅 徒歩22分 (約1750m) |
||
| 備考 | ※TVアンテナ・網戸・照明・カーテンレール等はオプションとなります。 ※地盤20年保証 ※建物10年瑕疵保険つき ※フラット35S(Bタイプ)利用可:別途申請手数料必要 |
||
| 物件番号 | 4460710 | 取引態様 | 媒介 |
取扱店舗情報
ハウスドゥ 瀬田国道1号 株式会社コスギエッグ 店舗詳細ページへ
| 電話番号 | 077-548-6608 |
|---|---|
| 所在地 | 〒520-2141 滋賀県大津市大江2丁目17番地30号 |
| 営業時間 | 9:00~18:00 |
| 定休日 | 水曜日 |
| 宅建免許番号 | 滋賀県知事(1)第4058号 |
| アクセス | 店舗への地図はこちら |

来店ご予約
滋賀県草津市で価格が似ている物件はこちら
- 滋賀県
マイページ物件数 - 2,804件
滋賀県新築一戸建て新着物件
- お近くの店舗を探す
-
おすすめ物件
-
-

-
- 新築一戸建て
- 4,988万円
-
大津市国分1丁目
-
JR東海道線石山
-
-
-

-
- 新築一戸建て
- 4,298万円
-
京都市山科区北花山中道町
-
京都市営地下鉄東西線御陵
-
-
-

-
- 新築一戸建て
- 3,690万円
-
近江八幡市加茂町
-
JR東海道線近江八幡
-
-
-

-
- 新築一戸建て
- 3,590万円
-
近江八幡市安土町常楽寺
-
JR東海道線安土
-
-
-

-
- 新築一戸建て
- 2,790万円
-
大津市向陽町
-
JR湖西線小野
-
-
-

-
- 新築一戸建て
- 3,095万円
-
草津市矢橋町
-
JR東海道線南草津
-
-
-

-
- 新築一戸建て
- 3,598万円
-
守山市播磨田町
-
JR東海道線守山
-































