中古マンション フローレンス中山下グランドアーク 4** 岡山市北区中山下2丁目の中古マンション
掲載情報更新日:2026年04月16日 次回更新予定日:2026年04月30日
- 3,100万円
-
- 借入ご希望金額
万円 - 借入期間
年 - 借入金利
% - 月々のお支払い金額
円
- 借入ご希望金額
※ 月々のお支払例は目安の試算となりますので、実際の金額とは異なる場合がございます。詳しくは店舗までお問合わせください。
- 岡山市北区中山下2丁目
-
岡山電軌清輝橋線『田町』 徒歩2分 (約160m)
岡山市北区中山下2丁目マンション | 物件情報
オーナーチェンジ物件
岡山中心部の商業施設にとても近いマンション
物件の設備
- 下水道
- 都市ガス
- 給湯
- 浴室乾燥機
- 室内洗濯機置場
- 洗髪洗面化粧台
- 洗面所独立
- 収納スペース
- バルコニー
- 来客用パーキング
- エレベーター
物件の特徴
- 管理人日勤
- 即入居可
- ペット相談
物件詳細情報
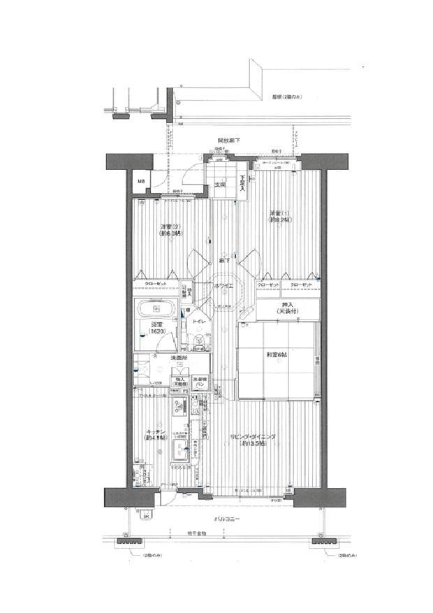
| 価格 | 3,100万円 | 間取り | 3LDK |
|---|---|---|---|
| 物件種別 | 中古マンション(収益) | ||
| 所在地 | 岡山県岡山市北区中山下2丁目 | ||
| アクセス |
|
||
| 専有面積 | 内法 88.58㎡ | 所在階 | 15階建/4階部分 |
| 主要採光 | 東向 | バルコニー | 東向12.73㎡ |
| その他 | |||
| 権利 | 所有権 |
||
| 保証・評価 | |||
| リフォーム | |||
| 総戸数 | 113戸 | 面積 | 敷地:2029.08㎡ 建築:1059.70㎡ |
| 築年月 | 2008年(平成20年)02月築 | 建物構造 | RC |
| 施工会社 | |||
| 管理会社 | 章栄管理株式会社 | 管理方式 | 全部委託 日勤管理 管理組合あり |
| 駐車場 | |||
| 都市計画 | 市街化区域 |
用途地域 | 商業 |
| 建ぺい/容積率 | 80% / 600% | 土地国土法 | |
| 法令制限 | |||
| 小学区 | 岡山中央小学校 徒歩17分 (約1300m) | 中学区 | 岡山中央中学校 徒歩17分 (約1300m) |
| 現況 | 賃貸中 | 引渡 | 即 |
| 管理費 | 7,000円/月 | 修繕積立金 | 5,310円/月 |
| その他費用 | |||
| 収益情報 | 表面利回り:5.41% 家賃収入:0円 |
||
| 周辺環境 | 清輝橋駅 徒歩13分 (約1000m) 岡山市立岡山中央小学校 徒歩18分 (約1370m) 岡山市立岡山中央中学校 徒歩14分 (約1110m) あいら保育園 岡山駅前 徒歩24分 (約1920m) 天満屋ハピーズ 昭和町店 徒歩23分 (約1770m) セブンイレブン岡山田町店 徒歩5分 (約400m) ウエルシア岡山東島田店 徒歩20分 (約1590m) 岡山大学病院 徒歩22分 (約1740m) トマト銀行 本店 徒歩22分 (約1760m) |
||
| 備考 | *オーナーチェンジ物件 | ||
| 物件番号 | 4219265 | 取引態様 | 媒介 |
※利回りとは、当該不動産の1年間の予定賃料収入の不動産取得対価に対する割合であり、公租公課その他当該物件を維持するために必要な費用の控除前のものです。また、予定賃料収入が確実に得られる事を保証するものではありません。
※利回り、想定年収に関する詳しい内容は、直接店舗までお問い合わせ下さい。
取扱店舗情報
ハウスドゥ 岡山駅西口 株式会社アールイープロジェクト 店舗詳細ページへ
| 電話番号 | 086-239-8621 |
|---|---|
| 所在地 | 〒700-0025 岡山県岡山市北区寿町1-3 ウエストサイドオカヤマ1階 |
| 営業時間 | 9:00~18:00 |
| 定休日 | 水曜日 |
| 宅建免許番号 | 岡山県知事(2)第5855号 |
| アクセス | 店舗への地図はこちら |

来店ご予約
- 岡山県
マイページ物件数 - 4,663件
最近見た物件
-
-

-
- 中古一戸建て
- 3,850万円
-
山口市吉敷上東2丁目
-
JR山口線矢原
-
-
-

-
- 土地
- 700万円
-
福津市福間南2丁目
-
JR鹿児島本線福間
-
-
-

-
- 中古一戸建て
- 2,755万円
-
高浜市春日町1丁目
-
名鉄三河線三河高浜
-
岡山県事業用・収益物件新着物件
- お近くの店舗を探す
-
おすすめ物件
-
-

-
- 収益
- 9,200万円
-
岡山市北区青江4丁目
-
JR宇野線備前西市
-
-
-

-
- 収益
- 6,000万円
-
岡山市北区大安寺南町1丁目
-
JR吉備線大安寺
-









