事業用1棟売りアパート ソルーナ熊本駅東
掲載情報更新日:2026年04月10日 次回更新予定日:2026年04月24日
- 2億500万円
-
- 借入ご希望金額
万円 - 借入期間
年 - 借入金利
% - 月々のお支払い金額
円
- 借入ご希望金額
※ 月々のお支払例は目安の試算となりますので、実際の金額とは異なる場合がございます。詳しくは店舗までお問合わせください。
- 熊本市中央区西阿弥陀寺町
-
JR豊肥本線『熊本』 徒歩14分 (約1120m)
熊本市健軍線『祗園橋』 徒歩4分 (約320m)
事業用1棟売りアパート ソルーナ熊本駅東の収益物件 | 物件情報
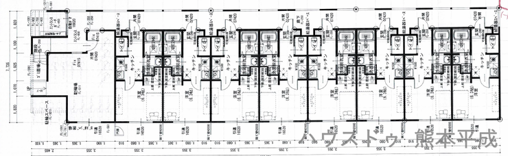
物件は投資用R7年1月新築アパートです。熊本駅まで徒歩14分。1R×17部屋
☆◆予約見学でギフトカード最大2万円プレゼント◆☆収益物件におすすめ!熊本駅周辺エリアです。五福小学校まで徒歩3分!
物件の設備
- 電気
- 上水道
- 下水道
- 公共下水
- プロパンガス
- 給湯
- バス
- トイレ
- 温水洗浄便座
- 室内洗濯機置場
- 洗髪洗面化粧台
- エアコン
- CATVインターネット
- オートロック
- モニタ付オートロック
- フローリング
- クローゼット
物件詳細情報
| 価格 | 2億500万円 | 間取り | 1R |
|---|---|---|---|
| 物件種別 | 事業用(アパート・収益・一棟所有) | ||
| 所在地 | 熊本県熊本市中央区西阿弥陀寺町 | ||
| アクセス |
|
||
| 建物面積 | 公383.12㎡ | 駐車場 | |
| 築年月 | 2025年(令和7年)01月築 | ||
| 建物構造 | 木造 2階建 | 工法 | |
| 主要採光 | バルコニー | ||
| 保証・評価 | |||
| リフォーム | |||
| 土地面積 | 公336.05㎡(101.65坪) | 接道 | 北側(公道)幅 約5.4m 間口 約9.38m |
| 私道 | セットバック | ||
| 地目 | 宅地 | 地勢 | 平坦 |
| 権利 | 所有権 |
||
| 都市計画 | 市街化区域 |
用途地域 | 商業 |
| 建ぺい/容積率 | 80% / 330% | 土地国土法 | |
| 許可番号 | 建築基準法 | ||
| 法令制限 | 文化財保護法・景観法・航空法・準防火地域 | ||
| 小学区 | 五福小学校 徒歩3分 (約230m) | 中学区 | 藤園中学校 徒歩34分 (約2700m) |
| 現況 | 賃貸中 | 引渡 | 相談 |
| その他費用 | |||
| 収益情報 | 表面利回り:4.82% 家賃収入:9,900,000円 |
||
| 周辺環境 | 五福小学校 徒歩4分 (約260m) 向山幼稚園 徒歩13分 (約980m) 熊本駅 徒歩12分 (約890m) 一新幼稚園 徒歩12分 (約890m) 第一高等学校 徒歩14分 (約1110m) |
||
| 備考 | |||
| 物件番号 | 4247911 | 取引態様 | 専任媒介 |
※利回りとは、当該不動産の1年間の予定賃料収入の不動産取得対価に対する割合であり、公租公課その他当該物件を維持するために必要な費用の控除前のものです。また、予定賃料収入が確実に得られる事を保証するものではありません。
※利回り、想定年収に関する詳しい内容は、直接店舗までお問い合わせ下さい。
取扱店舗情報
ハウスドゥ 熊本平成 新日本不動産株式会社 店舗詳細ページへ
| 電話番号 | 096-200-7031 |
|---|---|
| 所在地 | 〒860-0822 熊本県熊本市中央区本山町212-1 |
| 営業時間 | 9時~18時 |
| 定休日 | 無し |
| 宅建免許番号 | 熊本県知事(1)第5743号 |
| アクセス | 店舗への地図はこちら |

来店ご予約
- 熊本県
マイページ物件数 - 3,056件
最近見た物件
-
-

-
- 土地
- 3,580万円
-
八尾市山本町2丁目
-
近鉄大阪線河内山本
-
-
-

-
- 新築一戸建て
- 3,280万円
-
摂津市鳥飼西2丁目
-
大阪モノレール南摂津
-
-
-

-
- 中古一戸建て
- 300万円
-
美唄市東五条北6丁目
-
JR函館本線美唄
-
熊本県事業用・収益物件新着物件
-
-

-
- 収益
- 2,400万円
-
熊本市東区上南部3丁目
-
JR豊肥本線武蔵塚駅
-
- お近くの店舗を探す
-




















担当エージェント:田中 来樹
☆◆予約見学でギフトカード最大2万円プレゼント◆☆
人気の熊本駅周辺エリアに収益不動産のアパートがR7年1月に完成いたしました。
★ご来店特典実施中★来店・口コミいただいたお客様へ選べるギフトカード「2000円」プレゼント中です。ご来店をお待ちしております。