港区芝浦3丁目の収益物件
掲載情報更新日:2026年03月02日 次回更新予定日:2026年03月16日
- 2,280万円
-
- 借入ご希望金額
万円 - 借入期間
年 - 借入金利
% - 月々のお支払い金額
円
- 借入ご希望金額
※ 月々のお支払例は目安の試算となりますので、実際の金額とは異なる場合がございます。詳しくは店舗までお問合わせください。
- 港区芝浦3丁目
-
JR山手線『田町』 徒歩4分 (約320m)
都営三田線『三田』 徒歩9分 (約720m)
都営浅草線『三田』 徒歩9分 (約720m)
港区芝浦3丁目の収益物件 | 物件情報
物件の設備
- 公営水道
- 都市ガス
- コンロ一口
- バス
- ユニットバス
- トイレ
- B/T同室
- 収納スペース
- バルコニー
物件の特徴
- 管理人日勤
物件詳細情報
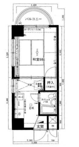
| 価格 | 2,280万円 | 間取り | 1K |
|---|---|---|---|
| 物件種別 | 事業用(マンション・収益・区分所有) | ||
| 所在地 | 東京都港区芝浦3丁目 | ||
| アクセス |
|
||
| 専有面積 | 壁芯 21.00㎡ | 所在階 | 10階建/8階部分 |
| 主要採光 | 北向 | バルコニー | 北向2.00㎡ |
| その他 | |||
| 権利 | 所有権 |
||
| 保証・評価 | |||
| リフォーム | |||
| 総戸数 | 面積 | ||
| 築年月 | 1980年(昭和55年)10月築 | 建物構造 | SRC |
| 施工会社 | |||
| 管理会社 | ファシリティーパートナーズ | 管理方式 | 全部委託 日勤管理 |
| 駐車場 | |||
| 都市計画 | 用途地域 | 商業(一部準工業 含む) | |
| 建ぺい/容積率 | 土地国土法 | ||
| 法令制限 | |||
| 小学区 | 芝浦小学校 徒歩6分 (約450m) | 中学区 | 港南中学校 徒歩20分 (約1600m) |
| 現況 | 賃貸中 | 引渡 | 相談 |
| 管理費 | 6,590円/月 | 修繕積立金 | 7,406円/月 |
| その他費用 | その他費用:2000円/月 |
||
| 収益情報 | 表面利回り:5.36% 家賃収入:1,224,000円 |
||
| 備考 | |||
| 物件番号 | 4266887 | 取引態様 | 媒介 |
※利回りとは、当該不動産の1年間の予定賃料収入の不動産取得対価に対する割合であり、公租公課その他当該物件を維持するために必要な費用の控除前のものです。また、予定賃料収入が確実に得られる事を保証するものではありません。
※利回り、想定年収に関する詳しい内容は、直接店舗までお問い合わせ下さい。
取扱店舗情報
| 電話番号 | 03-5544-9070 |
|---|---|
| 所在地 | 〒106-0032 東京都港区六本木5丁目18番2号 大昌第2ビル6階 |
| 営業時間 | 10:00~18:00 |
| 定休日 | 水曜日、日曜日、年末年始 |
| 宅建免許番号 | 東京都知事(1)第111695号 |
| アクセス | 店舗への地図はこちら |

来店ご予約
東京都港区で価格が似ている物件はこちら
- 東京都
マイページ物件数 - 5,102件
東京都事業用・収益物件新着物件
-
-

-
- 収益
- 5,999万円
-
渋谷区桜丘町
-
JR山手線渋谷駅
-
-
-

-
- 収益
- 1億3,500万円
-
港区三田5丁目
-
東京メトロ南北線白金高輪駅
-
-
-

-
- 事業用
- 2億4,000万円
-
練馬区石神井台3丁目
-
西武池袋・豊島線大泉学園駅
-
-
-

-
- 収益
- 3,880万円
-
港区南麻布2丁目
-
東京メトロ南北線麻布十番駅
-
-
-

-
- 収益
- 2,180万円
-
港区白金台3丁目
-
東京メトロ南北線白金台駅
-
-
-

-
- 事業用
- 8,200万円
-
中野区新井2丁目
-
JR中央本線中野駅
-
-
-

-
- 収益
- 3,280万円
-
千代田区飯田橋1丁目
-
JR総武・中央緩行線飯田橋駅
-
- お近くの店舗を探す
-
おすすめ物件
-
-

-
- 収益
- 2,780万円
-
足立区大谷田4丁目
-
東京メトロ千代田線北綾瀬
-
-
-

-
- 収益
- 7,450万円
-
大田区南蒲田1丁目
-
京急本線京急蒲田
-
-
-

-
- 収益
- 750万円
-
葛飾区金町3丁目
-
JR千代田・常磐緩行線金町
-
-
-

-
- 事業用
- 3,980万円
-
三戸郡南部町大字小向字小田沢
-
青い森鉄道諏訪ノ平
-
-
-

-
- 収益
- 2,080万円
-
江戸川区東葛西1丁目
-
東京メトロ東西線葛西
-











