エステムコート新大阪Xザ・ゲート
掲載情報更新日:2025年11月07日 次回更新予定日:2025年11月21日
- 1,520万円
-
- 借入ご希望金額
万円 - 借入期間
年 - 借入金利
% - 月々のお支払い金額
円
- 借入ご希望金額
※ 月々のお支払例は目安の試算となりますので、実際の金額とは異なる場合がございます。詳しくは店舗までお問合わせください。
- 大阪市東淀川区東中島3丁目
-
阪急電鉄京都線『崇禅寺』 徒歩7分 (約560m)
大阪市御堂筋線『新大阪』 徒歩10分 (約800m)
阪急電鉄千里線『柴島』 徒歩10分 (約750m)
エステムコート新大阪Xザ・ゲートマンション | 物件情報
オーナーチェンジ物件!収益物件にいかがでしょうか♪ ☆駅7分×1R×21.94㎡☆
オーナーチェンジ物件
*現況家賃:月額59,000円(年額:708,000円)
*表面利回り:4.45%
☆新大阪駅まで徒歩約10分
☆3沿線3駅利用可
☆陽当たり良好!
☆複数スーパーあり
☆0120ー684-571
お気軽にお電話ください♪
☆立地のポイント
【崇禅寺駅】徒歩約7分
【新大阪駅】徒歩約10分
【柴島駅】徒歩約10分
物件の設備
- 公営水道
- 下水道
- 都市ガス
- システムキッチン
- 浴室乾燥機
- 温水洗浄便座
- 室内洗濯機置場
- エアコン
- オートロック
- モニタ付インターホン
- 火災警報器/報知機
- 収納スペース
- バルコニー
- 南面バルコニー
- 宅配BOX
- エレベーター
- 駐輪場
物件の特徴
- 管理人日勤
- 2沿線利用可
- 24時間ゴミ出可
- 即入居可
- ペット相談
物件詳細情報
| 価格 | 1,520万円 | 間取り | 1K |
|---|---|---|---|
| 物件種別 | 中古マンション(収益) | ||
| 所在地 | 大阪府大阪市東淀川区東中島3丁目 | ||
| アクセス |
|
||
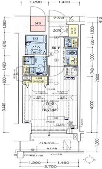
| 専有面積 | 壁芯 21.94㎡ | 所在階 | 15階建/6階部分 |
| 主要採光 | 南向 | バルコニー | 南向3.65㎡ |
| その他 | |||
| 権利 | 所有権 |
||
| 保証・評価 | |||
| リフォーム | |||
| 総戸数 | 211戸 | 面積 | |
| 築年月 | 2015年(平成27年)08月築 | 建物構造 | RC |
| 施工会社 | 岩出建設株式会社 | ||
| 管理会社 | エステム管理サービス | 管理方式 | 全部委託 日勤管理 管理組合あり |
| 駐車場 | 【駐輪場】あり |
||
| 都市計画 | 用途地域 | 商業 | |
| 建ぺい/容積率 | 土地国土法 | ||
| 法令制限 | |||
| 小学区 | 啓発小学校 徒歩7分 (約550m) | 中学区 | 中島中学校 徒歩8分 (約600m) |
| 現況 | 賃貸中 | 引渡 | 即 |
| 管理費 | 4,000円/月 | 修繕積立金 | 1,800円/月 |
| その他費用 | |||
| 収益情報 | 表面利回り:4.65% 家賃収入:708,000円 |
||
| 備考 | オーナーチェンジ物件 *現況家賃:月額59,000円(年額:708,000円) *表面利回り:4.45% |
||
| 物件番号 | 4353821 | 取引態様 | 媒介 |
※利回りとは、当該不動産の1年間の予定賃料収入の不動産取得対価に対する割合であり、公租公課その他当該物件を維持するために必要な費用の控除前のものです。また、予定賃料収入が確実に得られる事を保証するものではありません。
※利回り、想定年収に関する詳しい内容は、直接店舗までお問い合わせ下さい。
取扱店舗情報
| 電話番号 | 050-5805-9447 |
|---|---|
| 所在地 | 〒536-0006 大阪府大阪市城東区野江4丁目10-13 クリエイト野江内代1F |
| 営業時間 | 10:00~19:00 |
| 定休日 | なし |
| 宅建免許番号 | 国土交通大臣(1)第10706号 |
| アクセス | 店舗への地図はこちら |

来店ご予約
- 大阪府
マイページ物件数 - 15,707件
最近見た物件
-
-

-
- 土地
- 650万円
-
高知市神田
-
とさでん交通伊野線上町二丁目
-
-
-

-
- 新築一戸建て
- 3,790万円
-
名古屋市守山区天子田2丁目
-
名鉄瀬戸線大森・金城学院前
-
-
-

-
- 新築一戸建て
- 3,298万円
-
小郡市大保
-
西鉄天神大牟田線大保
-
大阪府事業用・収益物件新着物件
-
-

-
- 収益
- 8,250万円
-
大阪市生野区田島6丁目
-
JR関西本線東部市場前駅
-
-
-

-
- 事業用
- 4,180万円
-
豊中市岡町南3丁目
-
阪急電鉄宝塚線岡町駅
-
-
-

-
- 収益
- 1億5,500万円
-
大阪市此花区梅香2丁目
-
阪神電鉄阪神なんば線千鳥橋駅
-
-
-

-
- 収益
- 1億円
-
吹田市岸部中3丁目
-
JR東海道線岸辺駅
-
-
-

-
- 収益
- 5,500万円
-
堺市北区北長尾町1丁
-
JR阪和線堺市駅
-
-
-

-
- 事業用
- 5,000万円
-
堺市堺区中向陽町1丁
-
南海電鉄高野線堺東駅
-
-
-

-
- 収益
- 2,300万円
-
大阪市淀川区十三元今里1丁目
-
阪急電鉄京都線十三駅
-
- お近くの店舗を探す
-
おすすめ物件
-
-

-
- 収益
- 2,350万円
-
吹田市江坂町5丁目
-
北大阪急行南北線緑地公園
-
-
-

-
- 収益
- 5,200万円
-
岸和田市小松里町
-
JR阪和線下松
-
-
-

-
- 収益
- 5,200万円
-
岸和田市小松里町
-
JR阪和線下松
-
-
-

-
- 収益
- 3,780万円
-
大阪市東住吉区今川2丁目
-
JR関西本線東部市場前
-







担当エージェント:尾関 親代
現在賃貸中の為、投資用不動産としていかがでしょうか!
新大阪まで徒歩10分の好立地!
通勤通学に便利な3沿線3駅利用可!
便利な住環境で単身者に◎♪
ぜひお気軽にお問い合わせください!