豊中市庄内東町6丁目の中古戸建
掲載情報更新日:2025年12月07日 次回更新予定日:2025年12月21日
- 760万円
-
- 借入ご希望金額
万円 - 借入期間
年 - 借入金利
% - 月々のお支払い金額
円
- 借入ご希望金額
※ 月々のお支払例は目安の試算となりますので、実際の金額とは異なる場合がございます。詳しくは店舗までお問合わせください。
- 豊中市庄内東町6丁目
-
阪急電鉄宝塚線『庄内』 徒歩12分 (約900m)
豊中市庄内東町6丁目一戸建て | 物件情報
家賃¥64,000で賃貸中!南向きバルコニーにつき陽当たり良好!
◎家賃64,000円で賃貸中
◎利回り約10パーセント、年間収入768,000円
◎阪急宝塚線「庄内」から徒歩10分
◎南向きバルコニーにつき陽当たり良好
物件の設備
- 電気
- 上水道
- 下水道
- 都市ガス
- ユニットバス
- 浴室に窓
- トイレ
- 和室
- フローリング
物件の特徴
- 2階建
物件詳細情報
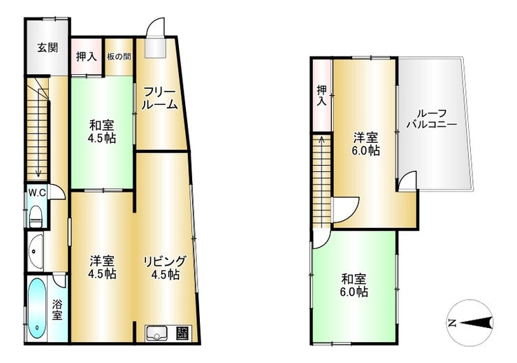
| 価格 | 760万円 | 間取り | 4K |
|---|---|---|---|
| 物件種別 | 中古一戸建て(収益) | ||
| 所在地 | 大阪府豊中市庄内東町6丁目 | ||
| アクセス |
|
||
| 建物面積 | 45.44㎡ | 駐車場 | なし |
| 築年月 | 1958年(昭和33年)01月築 | ||
| 建物構造 | 木造 2階建 | 工法 | |
| 主要採光 | 南向 | バルコニー | |
| 保証・評価 | |||
| リフォーム | |||
| 土地面積 | 公71.9㎡(21.74坪) | 接道 | |
| 私道 | セットバック | ||
| 地目 | 宅地 | 地勢 | 平坦 |
| 権利 | 所有権 |
||
| 都市計画 | 市街化区域 |
用途地域 | 準工業 |
| 建ぺい/容積率 | 60% / 200% | 土地国土法 | 届出不要 |
| 許可番号 | 建築基準法 | ||
| 法令制限 | 準防火地域 | ||
| 小学区 | 中学区 | 庄内さくら学園中学校 徒歩15分 (約1140m) | |
| 現況 | 賃貸中 | 引渡 | 相談 |
| その他費用 | |||
| 収益情報 | 想定利回り:10.00% 想定家賃収入:760,000円 | ||
| 周辺環境 | イオンタウン豊中庄内 徒歩6分 (約470m) 小林医院 徒歩8分 (約620m) ファミリーマート 豊中大黒町店 徒歩11分 (約810m) ツルハドラッグ 豊中庄内南店 徒歩11分 (約860m) デイリーカナートイズミヤ 庄内店 徒歩9分 (約720m) サンディ 庄内南店 徒歩11分 (約860m) スギドラッグ 豊中庄内店 徒歩13分 (約970m) 豊中市立庄内南小学校 徒歩14分 (約1100m) 大黒町公園 徒歩13分 (約1000m) 阪急電鉄宝塚線 庄内駅 徒歩12分 (約900m) |
||
| 備考 | |||
| 物件番号 | 4359012 | 取引態様 | 媒介 |
※利回りとは、当該不動産の1年間の予定賃料収入の不動産取得対価に対する割合であり、公租公課その他当該物件を維持するために必要な費用の控除前のものです。また、予定賃料収入が確実に得られる事を保証するものではありません。
※利回り、想定年収に関する詳しい内容は、直接店舗までお問い合わせ下さい。
取扱店舗情報
ハウスドゥ 豊中上野 株式会社アマネハウジング 店舗詳細ページへ
| 電話番号 | 06-6842-7837 |
|---|---|
| 所在地 | 〒560-0013 大阪府豊中市上野東1丁目1-97 |
| 営業時間 | 9:30~20:00 |
| 定休日 | 毎週水曜日・年末年始 |
| 宅建免許番号 | 大阪府知事(1)第65576号 |
| アクセス | 店舗への地図はこちら |

来店ご予約
- 大阪府
マイページ物件数 - 16,163件
最近見た物件
-
-

-
- 土地
- 650万円
-
大分市雄城台
-
JR久大本線南大分
-
-
-

-
- 土地
- 300万円
-
北見市北上
-
JR石北本線北見
-
-
-

-
- 新築一戸建て
- 2,699万円
-
海部郡大治町大字八ツ屋字裏畑
-
名古屋市東山線中村公園
-
大阪府事業用・収益物件新着物件
-
-

-
- 収益
- 8,000万円
-
大阪市都島区都島南通1丁目
-
JR大阪環状線桜ノ宮駅
-
-
-

-
- 収益
- 8,250万円
-
大阪市生野区田島6丁目
-
JR関西本線東部市場前駅
-
-
-

-
- 事業用
- 4,180万円
-
豊中市岡町南3丁目
-
阪急電鉄宝塚線岡町駅
-
-
-

-
- 収益
- 1億5,500万円
-
大阪市此花区梅香2丁目
-
阪神電鉄阪神なんば線千鳥橋駅
-
-
-

-
- 収益
- 1億円
-
吹田市岸部中3丁目
-
JR東海道線岸辺駅
-
-
-

-
- 事業用
- 1,300万円
-
吹田市朝日町
-
JR東海道線吹田駅
-
-
-

-
- 事業用
- 3,000万円
-
大阪市旭区高殿4丁目
-
大阪市谷町線関目高殿駅
-
- お近くの店舗を探す
-
おすすめ物件
-
-

-
- 収益
- 2,350万円
-
吹田市江坂町5丁目
-
北大阪急行南北線緑地公園
-
-
-

-
- 収益
- 2,000万円
-
大阪市西成区千本北2丁目
-
南海汐見橋線西天下茶屋
-
-
-

-
- 収益
- 5,200万円
-
岸和田市小松里町
-
JR阪和線下松
-
-
-

-
- 収益
- 1,850万円
-
大阪市東淀川区東中島2丁目
-
阪急電鉄京都線崇禅寺
-
-
-

-
- 収益
- 3,780万円
-
大阪市東住吉区今川2丁目
-
JR関西本線東部市場前
-



担当エージェント:佐々木 洋一
◇お家探しに不安をお持ちのお客様へ◇
ハウスドゥでは豊富な物件量でお応えします!
物件に関するご質問はもちろん、ご購入の流れや資金面でのご相談等ございましたらいつでもお気軽にハウスドゥ豊中上野にご相談下さい♪