松山市姫原3丁目の事業用物件
掲載情報更新日:2026年04月08日 次回更新予定日:2026年04月22日
- 1億3,000万円
-
- 借入ご希望金額
万円 - 借入期間
年 - 借入金利
% - 月々のお支払い金額
円
- 借入ご希望金額
※ 月々のお支払例は目安の試算となりますので、実際の金額とは異なる場合がございます。詳しくは店舗までお問合わせください。
- 松山市姫原3丁目
-
伊予鉄道本町線『本町六丁目』 車8分(約2.1km)
伊予鉄道高浜線『衣山』 車8分(約2.5km)
『姫原 バス停』 徒歩6分 (約480m)
松山市姫原3丁目の事業用物件 | 物件情報
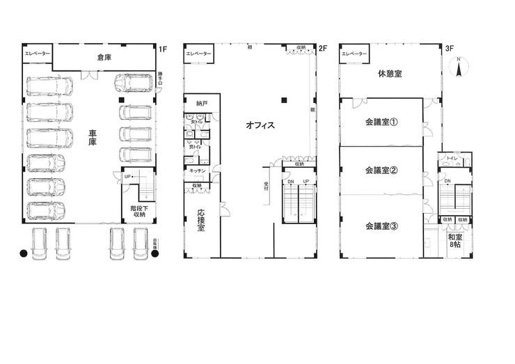
■平成建築 ■鉄骨造3階建の1棟ビル ■太陽光パネル20kW搭載 ■駐車場:36台
■太陽光パネル20kW搭載
■敷地面積詳細
【敷地南】甲429-3、16(宅地):397.92㎡
【敷地北】甲436・甲437合併2(宅地):348.03㎡
■駐車場:敷地内駐車場:14台・敷地外駐車場:22台
物件の設備
- 電気
- 上水道
- 浄化槽
- プロパンガス
物件の特徴
- 事務所使用可
物件詳細情報
| 価格 | 1億3,000万円 | 間取り | |
|---|---|---|---|
| 物件種別 | 事業用(事務所・一棟所有) | ||
| 所在地 | 愛媛県松山市姫原3丁目 | ||
| アクセス |
|
||
| 建物面積 | 880.81㎡ | 駐車場 | |
| 築年月 | 1997年(平成9年)03月築 | ||
| 建物構造 | 鉄骨 鋼板葺 3階建 | 工法 | |
| 主要採光 | バルコニー | ||
| 保証・評価 | |||
| リフォーム | |||
| 土地面積 | 公745.95㎡(225.64坪) | 接道 | 東側(公道)幅 約4.0m 間口 約4.00m 南側(私道)幅 約7.0m 間口 約16.00m 北側(公道)幅 約1.7m 西側(公道)幅 約3.0m |
| 私道 | セットバック | ||
| 地目 | 宅地 | 地勢 | |
| 権利 | 所有権 |
||
| 都市計画 | 市街化区域 |
用途地域 | 商業 |
| 建ぺい/容積率 | 80% / 400% | 土地国土法 | |
| 許可番号 | 建築基準法 | ||
| 法令制限 | |||
| 小学区 | 姫山小学校 徒歩12分 (約900m) | 中学区 | 勝山中学校 徒歩28分 (約2200m) |
| 現況 | 空 | 引渡 | 相談 |
| その他費用 | |||
| 収益情報 | |||
| 周辺環境 | 姫山小学校 徒歩12分 (約900m) 勝山中学校 徒歩28分 (約2200m) くすりのレデイ 問屋町店 徒歩6分 (約480m) セブンイレブン 松山問屋町店 徒歩7分 (約560m) しらさぎ薬局 問屋町店 徒歩7分 (約530m) ダイソー フジ姫原店 徒歩10分 (約780m) フジ 姫原店 徒歩11分 (約810m) セブンスター 東長戸店 徒歩9分 (約680m) ザ・ビッグ 松山山越店 徒歩10分 (約800m) ドラッグストアmac 久万ノ台店 徒歩11分 (約870m) |
||
| 備考 | ■太陽光パネル20kW搭載 ■敷地面積詳細 【敷地南】甲429-3、16(宅地):397.92㎡ 【敷地北】甲436・甲437合併2(宅地):348.03㎡ ■駐車場:敷地内駐車場:14台・敷地外駐車場:22台 ■北側敷地は狭隘協議必要(買主負担) |
||
| 物件番号 | 4406542 | 取引態様 | 媒介 |
取扱店舗情報
ハウスドゥ!松山北店 株式会社D'sエステート 店舗詳細ページへ
| 電話番号 | 089-925-2149 |
|---|---|
| 所在地 | 〒791-8013 愛媛県松山市山越6丁目2-21 |
| 営業時間 | 9:00~18:00 |
| 定休日 | 年末年始 |
| 宅建免許番号 | 愛媛県知事(4)第5043号 |
| アクセス | 店舗への地図はこちら |


























ご見学可能です。お気軽にお問い合わせ下さいませ。