事業用一括 店舗 吹上1丁目
掲載情報更新日:2025年12月29日 次回更新予定日:2026年01月12日
- 1,380万円
-
- 借入ご希望金額
万円 - 借入期間
年 - 借入金利
% - 月々のお支払い金額
円
- 借入ご希望金額
※ 月々のお支払例は目安の試算となりますので、実際の金額とは異なる場合がございます。詳しくは店舗までお問合わせください。
- 八戸市吹上1丁目
-
市営・南部バス『吹上バス停』 徒歩2分 (約90m)
事業用一括 店舗 吹上1丁目の事業用物件 | 物件情報
駐車5台可能な2階建店舗です♪
≪周辺環境≫
▽村井内科クリニックまで徒歩2分(約110m)
▽八戸パークホテルまで徒歩2分(約150m)
▽八戸病院まで徒歩6分(約440m)
物件の見学をご希望の方は【見学予約する】
物件の詳細を知りたい方は【資料請求・お問合せ】よりお気軽にお問合せくださいませ♪
物件の設備
- 上水道
- 公営水道
- 下水道
- 公共下水
物件詳細情報
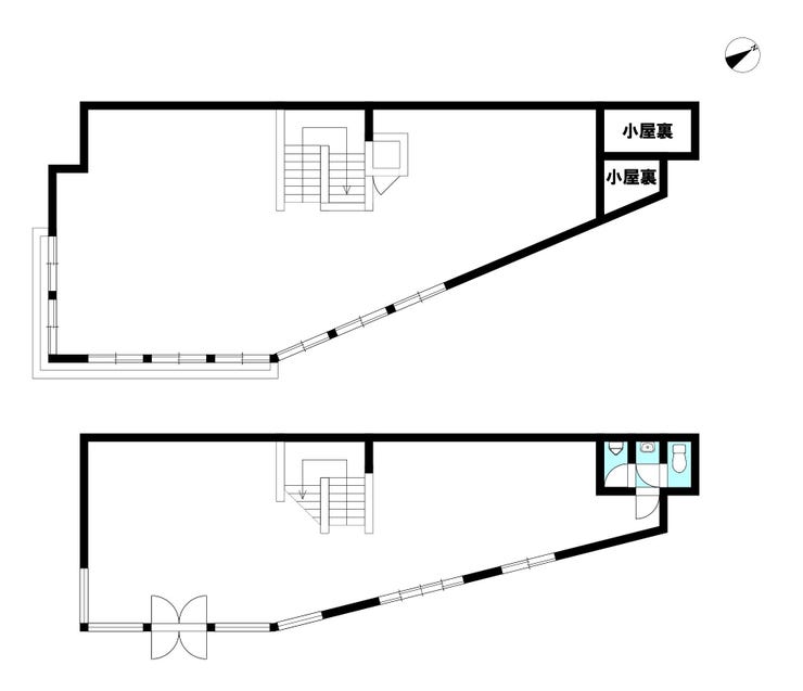
| 価格 | 1,380万円 | 間取り | |
|---|---|---|---|
| 物件種別 | 事業用(店舗・一棟所有) | ||
| 所在地 | 青森県八戸市吹上1丁目 | ||
| アクセス |
|
||
| 建物面積 | 247.01㎡ | 駐車場 |
カースペース |
| 築年月 | 1972年(昭和47年)11月築 | ||
| 建物構造 | 軽量鉄骨 スレート葺 2階建 | 工法 | |
| 主要採光 | バルコニー | ||
| 保証・評価 | |||
| リフォーム | |||
| 土地面積 | 公261.9㎡(79.22坪) | 接道 | |
| 私道 | セットバック | ||
| 地目 | 宅地 | 地勢 | |
| 権利 | 所有権 |
||
| 都市計画 | 市街化区域 |
用途地域 | 商業 |
| 建ぺい/容積率 | 80% / 400% | 土地国土法 | |
| 許可番号 | 建築基準法 | ||
| 法令制限 | 準防火地域 | ||
| 小学区 | 吹上小学校 徒歩1分 (約30m) | 中学区 | 第一中学校 徒歩5分 (約360m) |
| 現況 | 空 | 引渡 | 相談 |
| その他費用 | |||
| 収益情報 | |||
| 周辺環境 | 八戸市立吹上小学校 徒歩1分 (約30m) 八戸市立第一中学校 徒歩5分 (約360m) ハッピー・ドラッグ 八戸吹上店 徒歩9分 (約660m) セブン-イレブン 八戸吹上五丁目店 徒歩9分 (約710m) よこまちストア 吹上店 徒歩12分 (約910m) さくら野百貨店 八戸店 徒歩12分 (約920m) ユニバース 南類家店 徒歩12分 (約930m) 青森みちのく銀行 南類家支店 徒歩13分 (約970m) |
||
| 備考 | ※1990年(平成2年)8月:1階一部、2階増築(増築部分未登記) | ||
| 物件番号 | 4415610 | 取引態様 | 媒介 |
取扱店舗情報
ハウスドゥ 八戸下長 株式会社といず不動産 店舗詳細ページへ
| 電話番号 | 0178-51-6420 |
|---|---|
| 所在地 | 〒039-1164 青森県八戸市下長3丁目13番26号 |
| 営業時間 | 9:30~18:00 |
| 定休日 | 水曜日 |
| 宅建免許番号 | 青森県知事(3)第3406号 |
| アクセス | 店舗への地図はこちら |

来店ご予約
青森県八戸市で価格が似ている物件はこちら
- 青森県
マイページ物件数 - 2,113件
最近見た物件
-
-

-
- 中古一戸建て
- 2,980万円
-
宇都宮市若松原3丁目
-
JR東北本線雀宮
-
-
-

-
- 中古一戸建て
- 3,390万円
-
安曇野市穂高有明
-
JR大糸線有明
-
-
-

-
- 中古マンション
- 1,580万円
-
広島市東区牛田早稲田4丁目
-
牛田早稲田団地バス停
-
青森県事業用・収益物件新着物件
-
-

-
- 事業用
- 3,900万円
-
十和田市東二十三番町
-
循環バス三木野公園前バス停
-
- お近くの店舗を探す
-




















◇◆◇ハウスドゥ 八戸下長 といず不動産◇◆◇
お客様にあった住宅ローン返済プラン&銀行住宅ローンをご提案!
ハウスドゥ 八戸下長へお気軽にお問い合わせください♪
■ご内覧ご希望の際は、平日・夜間・祝日問わずご対応致します!!
事前にご連絡を頂き、内覧予約頂く事で即対応可能です♪
■■■住宅ローンに関して■■■
現在お借入れのある方、就労一年未満の方、自己資金無しでお考えの方、
買換え・借換えの方、、etc
全てお気軽にご相談下さい!!
住宅ローンはお客様に最適の金融機関を選定する事により、条件が大きく変わります。
金利0.1%違うだけで総支払金額が大きく変わります。
返済プラン・返済シュミレーションもお気軽にご相談下さい♪
ご購入後の税金・住宅給付金に関しても全て細かくご説明させて頂きます!
融資承認実績へ自信あります!金利に関しても最善の優遇金利を!!
エージェントがお客様一人ひとりに合ったご提案をさせていただきます!
まずはお気軽にお問い合わせください!