名古屋市南区豊田4丁目 店舗付き住宅
NEW 11.04掲載情報更新日:2025年11月11日 次回更新予定日:2025年11月25日
- 6,000万円
-
- 借入ご希望金額
万円 - 借入期間
年 - 借入金利
% - 月々のお支払い金額
円
- 借入ご希望金額
※ 月々のお支払例は目安の試算となりますので、実際の金額とは異なる場合がございます。詳しくは店舗までお問合わせください。
- 名古屋市南区豊田4丁目
-
名鉄常滑線『道徳』 徒歩3分 (約240m)
名鉄常滑線『豊田本町』 徒歩16分 (約1280m)
名鉄常滑線『大江』 徒歩16分 (約1280m)
名古屋市南区豊田4丁目 店舗付き住宅の事業用物件 | 物件情報
駅近3分・店舗併用住宅!【月々16万円台~購入可能です】豊田小学校まで徒歩約5分
=========================
◇豊田小学校:徒歩約5分
◇大江中学校:徒歩約5分
◇平和堂ビバモール名古屋南店:徒歩約13分
◇のりクリニック:徒歩約6分
◇道徳公園:徒歩約7分
「家族に優しい住環境」
◆スーパー・学校・駅が徒歩5分圏内
◆道徳駅 徒歩3分!アクセス良好
=========================
\見るだけ聞くだけOK/
資金効率が良くなるローンの組み方教えます。
ネット未公開、水面下情報多数あります。
ほかのページで気になる物件もご相談ください。
物件の設備
- 電気
- 都市ガス
- 給湯
- コンロ三口
- グリル
- ガスコンロ付
- システムキッチン
- バス
- ユニットバス
- オートバス
- シャワー
- トイレ
- トイレ2箇所
- 温水洗浄便座
- B/T別室
- 室内洗濯機置場
- 洗髪洗面化粧台
- 洗面所独立
- 室内物干機
- エアコン4基以上
- 照明器具
- 火災警報器/報知機
- シャッター雨戸
- 電動シャッター
- 網戸
- クローゼット
- 収納スペース
- 押入
- 天袋
物件詳細情報
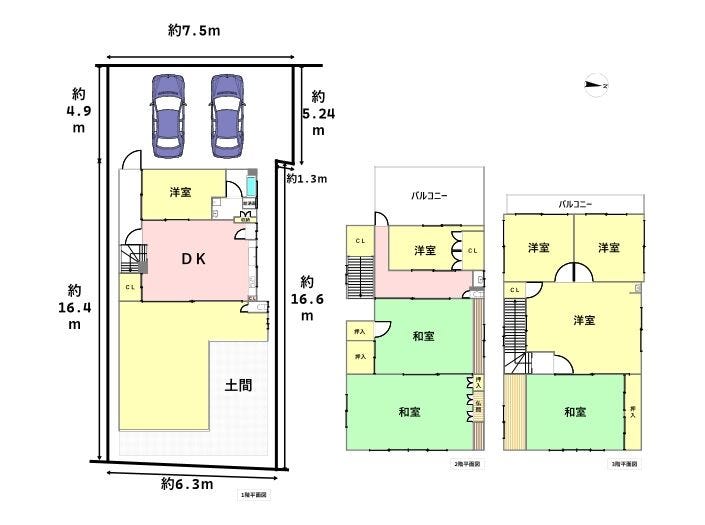
| 価格 | 6,000万円 | 間取り | 8DK |
|---|---|---|---|
| 物件種別 | 事業用(店舗付住宅・一棟所有) | ||
| 所在地 | 愛知県名古屋市南区豊田4丁目 | ||
| アクセス |
|
||
| 建物面積 | 199.87㎡ | 駐車場 |
カーポート |
| 築年月 | 1976年(昭和51年)08月築 | ||
| 建物構造 | RC 3階建 | 工法 | |
| 主要採光 | バルコニー | ||
| 保証・評価 | |||
| リフォーム | |||
| 土地面積 | 144.3㎡(43.65坪) | 接道 | |
| 私道 | セットバック | ||
| 地目 | 宅地 | 地勢 | |
| 権利 | 所有権 |
||
| 都市計画 | 市街化区域 |
用途地域 | 近隣商業 |
| 建ぺい/容積率 | 80% / 300% | 土地国土法 | |
| 許可番号 | 建築基準法 | ||
| 法令制限 | 準防火地域・緑化地域・絶対高45m高度地区 | ||
| 小学区 | 豊田小学校 徒歩5分 (約360m) | 中学区 | 大江中学校 徒歩5分 (約340m) |
| 現況 | 空 | 引渡 | 相談 |
| その他費用 | |||
| 収益情報 | |||
| 周辺環境 | 名古屋市立豊田小学校 徒歩5分 (約360m) 名古屋市立大江中学校 徒歩5分 (約340m) 道徳和光幼稚園 徒歩9分 (約670m) みなみほいくえん 徒歩8分 (約620m) 平和堂ビバモール名古屋南店 徒歩13分 (約970m) V・ドラッグ 名古屋豊田店 徒歩10分 (約770m) アピタ名古屋南店 徒歩5分 (約360m) のりクリニック 徒歩6分 (約420m) 名古屋道徳本町郵便局 徒歩2分 (約140m) 道徳公園 徒歩7分 (約510m) |
||
| 備考 | 【最寄バス停】名古屋市営バス「元塩町」停 徒歩約4分 ※その他法令上の制限:都市機能誘導区域内・居住誘導区域内(要安全配慮区域)※内観リフォーム歴有 |
||
| 物件番号 | 4476381 | 取引態様 | 専任 |
取扱店舗情報
ハウスドゥ 南区道徳 ファミリアホームサービス株式会社 店舗詳細ページへ
| 電話番号 | 052-613-7555 |
|---|---|
| 所在地 | 〒457-0841 愛知県名古屋市南区豊田4-5-21 |
| 営業時間 | 10:00~18:00 |
| 定休日 | 水曜日・年末年始(水曜日が祝日の場合は営業) |
| 宅建免許番号 | 国土交通大臣(2)第9218号 |
| アクセス | 店舗への地図はこちら |

来店ご予約
- 愛知県
マイページ物件数 - 30,203件
愛知県事業用・収益物件新着物件
-
-

-
- 収益
- 1億9,500万円
-
豊田市四郷町森前
-
愛知環状鉄道四郷駅
-
-
-

-
- 収益
- 3,340万円
-
江南市高屋町御日塚
-
名鉄犬山線江南駅
-
-
-

-
- 収益
- 4,980万円
-
刈谷市新田町6丁目
-
名鉄名古屋本線一ツ木駅
-
-
-

-
- 収益
- 1億6,500万円
-
稲沢市稲沢町北島
-
名鉄名古屋本線国府宮駅
-
-
-

-
- 収益
- 5,500万円
-
名古屋市南区平子2丁目
-
名古屋市桜通線鶴里駅
-
-
-

-
- 事業用
- 6,000万円
-
名古屋市南区豊田4丁目
-
名鉄常滑線道徳駅
-
-
-

-
- 事業用
- 4,980万円
-
名古屋市緑区藤塚2丁目
-
名古屋市桜通線徳重駅
-
- お近くの店舗を探す
-
おすすめ物件
-
-

-
- 事業用
- 2,980万円
-
豊川市蔵子2丁目
-
名鉄名古屋本線小田渕
-
-
-

-
- 収益
- 760万円
-
名古屋市千種区今池南
-
名古屋市東山線今池
-
-
-

-
- 収益
- 1,050万円
-
名古屋市千種区向陽1丁目
-
名古屋市東山線池下
-
-
-

-
- 事業用
- 500万円
-
一宮市大和町宮地花池字下り松
-
名鉄名古屋本線妙興寺
-
-
-

-
- 収益
- 1,400万円
-
豊田市美里5丁目
-
名鉄三河線豊田市
-
-
-

-
- 収益
- 1,980万円
-
名古屋市西区名駅2丁目
-
名古屋市東山線亀島
-
-
-

-
- 事業用
- 1,980万円
-
山県市岩佐
-
長良川鉄道松森
-
-
-

-
- 収益
- 720万円
-
名古屋市千種区今池3丁目
-
名古屋市桜通線今池
-






































担当エージェント:福嶋 健人
《平日もご案内可能です♪》
地域密着店の私達は、周辺環境、相場、
お得な住宅ローンプランなど丁寧にご案内できます。