ブリリアタワー高崎アルファレジデンシア 高崎市東町の中古マンション
NEW 11.07掲載情報更新日:2025年11月11日 次回更新予定日:2025年11月25日
- 3,500万円
-
- 借入ご希望金額
万円 - 借入期間
年 - 借入金利
% - 月々のお支払い金額
円
- 借入ご希望金額
※ 月々のお支払例は目安の試算となりますので、実際の金額とは異なる場合がございます。詳しくは店舗までお問合わせください。
- 高崎市東町
-
JR上越新幹線『高崎』 徒歩3分 (約240m)
JR高崎線『高崎』 徒歩6分 (約480m)
高崎市東町マンション | 物件情報
高崎駅直結の築浅タワー。安定収益と資産価値が魅力の優良投資物件。
『ブリリアタワー高崎アルファレジデンシア』は、JR・新幹線「高崎」駅へペデストリアンデッキで直結する駅近タワーレジデンスです。群馬の経済・文化の中心であり、都市機能と自然の調和が取れた高崎の中枢に位置し、高崎タカシマヤやLABI1高崎などの大型商業施設、コンビニ・飲食店も徒歩圏内に揃う利便性の高い立地です。2020年築・清水建設施工の安心品質、ホテルライクな内廊下設計、床暖房・ディスポーザー・食洗機など先進の設備を完備。オーナーチェンジ物件であり、駅直結という圧倒的な資産性と、築浅・高品質の安定運用が見込める本物件は、今後も高崎エリアの発展とともに価値向上が期待できる優良投資マンションです。
物件の設備
- 都市ガス
- ディスポーザー
- コンロ三口
- グリル
- システムキッチン
- オートバス
- 追焚機能
- 浴室暖房
- 浴室乾燥機
- トイレ
- 温水洗浄便座
- タンクレストイレ
- 床暖房
- エアコン
- インターネット接続可
- CATVインターネット
- ウォークインクローゼット
- シューズインクローク
- 宅配BOX
- エレベーター2基
物件の特徴
- 管理人日勤
物件詳細情報
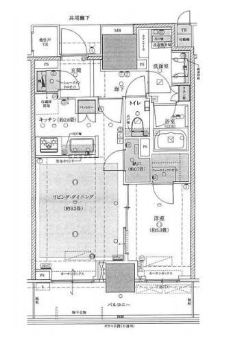
| 価格 | 3,500万円 | 間取り | 1LDK |
|---|---|---|---|
| 物件種別 | 中古マンション(収益) | ||
| 所在地 | 群馬県高崎市東町 | ||
| アクセス |
|
||
| 専有面積 | 壁芯 45.47㎡ | 所在階 | 28階建/5階部分 |
| 主要採光 | 東向 | バルコニー | |
| その他 | |||
| 権利 | 所有権 |
||
| 保証・評価 | |||
| リフォーム | |||
| 総戸数 | 222戸 | 面積 | 敷地:3542.91㎡ 建築:2289.24㎡ |
| 築年月 | 2020年(令和2年)03月築 | 建物構造 | RC |
| 施工会社 | 清水建設、冬木工業 | ||
| 管理会社 | 東京建物アメニティサポート | 管理方式 | 全部委託 日勤管理 |
| 駐車場 | |||
| 都市計画 | 市街化区域 |
用途地域 | 商業 |
| 建ぺい/容積率 | 90% / 800% | 土地国土法 | |
| 法令制限 | |||
| 小学区 | 中学区 | ||
| 現況 | 賃貸中 | 引渡 | 相談 |
| 管理費 | 17,900円/月 | 修繕積立金 | 3,970円/月 |
| その他費用 | 町会費:200円/月 インターネット:1665円/月 |
||
| 収益情報 | |||
| 周辺環境 | ローソンイーサイト高崎店 徒歩1分 (約60m) JR高崎駅西口 徒歩1分 (約60m) ヤマダデンキLABI1LIFESELECT高崎 徒歩4分 (約250m) ローソン高崎栄町店 徒歩8分 (約580m) 城東コミュニティ防災センター 徒歩8分 (約580m) 栄町児童公園 徒歩8分 (約580m) 高崎芸術劇場 徒歩8分 (約580m) 群馬銀行高崎栄町支店 徒歩8分 (約580m) |
||
| 備考 | 利回り:4.45% 年間予定賃料収入:156万円 ◇◇周辺環境◇◇ 高崎タカシマヤ:582m セブンイレブン高崎東町店:63m ロイヤルホスト高崎駅前店:151m ヤマダデンキLABI1LIFE SELECT高崎:219m 高崎市立高松中学校:1,246m 高崎市役所:1,334m セントラルウェルネスクラブ24高崎:31m |
||
| 物件番号 | 4478798 | 取引態様 | 媒介 |
※利回りとは、当該不動産の1年間の予定賃料収入の不動産取得対価に対する割合であり、公租公課その他当該物件を維持するために必要な費用の控除前のものです。また、予定賃料収入が確実に得られる事を保証するものではありません。
※利回り、想定年収に関する詳しい内容は、直接店舗までお問い合わせ下さい。
取扱店舗情報
ハウスドゥ 高崎倉賀野 株式会社未来ワーク 店舗詳細ページへ
| 電話番号 | 027-386-4447 |
|---|---|
| 所在地 | 〒370-1201 群馬県高崎市倉賀野町4573-1 |
| 営業時間 | 10:00~18:00 |
| 定休日 | 水曜日 |
| 宅建免許番号 | 群馬県知事(1)第7819号 |
| アクセス | 店舗への地図はこちら |

来店ご予約
- 群馬県
マイページ物件数 - 2,524件
最近見た物件
-
-

-
- 中古一戸建て
- 1,500万円
-
鹿児島市春山町
-
JR鹿児島本線上伊集院
-
-
-

-
- 新築一戸建て
- 3,890万円
-
名古屋市守山区大森北1丁目
-
名鉄瀬戸線印場
-
-
-

-
- 中古マンション
- 1,550万円
-
札幌市中央区北三条西30丁目
-
札幌市東西線西28丁目
-
- お近くの店舗を探す
-










担当エージェント:田村 彩
感謝を忘れず頂いたご縁に一生懸命対応させていただきます♪お気軽にご相談ください♪