西条市明屋敷の土地
掲載情報更新日:2025年09月26日 次回更新予定日:2025年10月10日
※ 月々のお支払例は目安の試算となりますので、実際の金額とは異なる場合がございます。詳しくは店舗までお問合わせください。
- 西条市明屋敷
-
JR予讃線『伊予西条』 バス乗車6分 せとうちバス 百軒巷 停 徒歩4分 (約310m)
- 取扱会社:ハウスドゥ いよ西条 株式会社いえてつ
-
-

- ■お電話はこちら
0897-66-7788
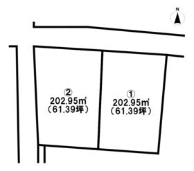
西条市明屋敷の分譲地 | 分譲区画
-
取扱会社
ハウスドゥ いよ西条
-
-
- ■お電話はこちら
0897-66-7788
愛媛県西条市で価格が似ている物件はこちら


-
-
土地
2018.04.29
-
-
- 1,500万円
-
西条市神拝甲
-
JR予讃線「伊予西条駅」まで徒歩10分
-
497.00m2

-
-
土地
2020.03.23
-
-
- 1,356.70万円
-
西条市小松町新屋敷
-
JR予讃線「伊予小松駅」まで徒歩18分
-
1794.00m2

-
-
土地
2021.09.25
-
-
- 1,490万円
-
西条市大町
-
JR予讃線「伊予西条駅」まで徒歩6分
-
339.31m2

-
-
土地
2023.06.26
-
-
- 1,500万円
-
西条市三芳
-
JR予讃線「伊予三芳駅」まで徒歩14分
-
1839.83m2

-
-
土地
2024.06.15
-
-
- 1,400万円
-
西条市大町
-
JR予讃線「伊予西条駅」まで徒歩7分
-
420.74m2

-
-
土地
2024.08.24
-

-
-
土地
2024.09.14
-
-
- 1,380万円
-
西条市大町
-
JR予讃線「伊予西条駅」まで徒歩6分
-
382.18m2

-
-
土地
2024.11.29
-

-
-
土地
2025.02.21
-

-
-
土地
2025.03.11
-

愛媛県西条市の
土地
一覧から探す
愛媛県西条市で種別を変更して探す