川越市神明町の土地
掲載情報更新日:2026年04月02日 次回更新予定日:2026年04月16日
- 1,380万円
-
- 借入ご希望金額
万円 - 借入期間
年 - 借入金利
% - 月々のお支払い金額
円
- 借入ご希望金額
※ 月々のお支払例は目安の試算となりますので、実際の金額とは異なる場合がございます。詳しくは店舗までお問合わせください。
- 川越市神明町
-
東武東上線『川越市』 徒歩30分 (約2350m)
東武東上線『川越』 バス乗車20分 神明町車庫 停 徒歩5分 (約400m)
川越市神明町土地 | 物件情報
川越市神明町 売土地
物件の特徴
- 建築条件無
物件詳細情報
| 価格 | 1,380万円 | 坪単価 | 坪49.8万円 |
|---|---|---|---|
| 物件種別 | 土地 | ||
| 所在地 | 埼玉県川越市神明町 | ||
| アクセス |
|
||
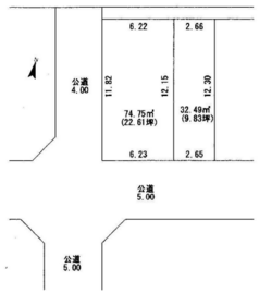
| 土地面積 | 公91.69㎡(27.73坪) | 接道 | |
| 私道 | セットバック | ||
| 最適用途 | 住宅用地 | 造成完了時期 | |
| 地目 | 宅地 | 地勢 | |
| 権利 | 所有権 |
||
| 都市計画 | 市街化区域 |
用途地域 | 準工業 |
| 建ぺい/容積率 | 60% / 200% | 土地国土法 | |
| 許可番号 | 建築基準法 | ||
| 法令制限 | |||
| 小学区 | 川越小学校 徒歩19分 (約1450m) | 中学区 | 初雁中学校 徒歩15分 (約1200m) |
| 現況 | 古家付 | 引渡 | 相談 |
| 建築条件 | 建築条件なし | ||
| その他費用 | |||
| 周辺環境 | 川越小学校 徒歩19分 (約1450m) 初雁中学校 徒歩15分 (約1200m) ルンビニ幼稚園 徒歩8分 (約600m) 川越市立神明町保育園 徒歩9分 (約650m) マミーマート神明町店 徒歩7分 (約500m) ヤオコー川越山田店 徒歩10分 (約750m) ファミリマート川越神明町店 徒歩1分 (約80m) サンドラッグ川越石原店 徒歩3分 (約200m) 川越宮元郵便局 徒歩10分 (約800m) パシオス川越山田店 徒歩10分 (約750m) |
||
| 備考 | ■現況渡し ■都市ガス:引込無し ■本物件上に未登記建物(物置)が存しております。 |
||
| 物件番号 | 4166360 | 取引態様 | 専任媒介 |
取扱店舗情報
| 電話番号 | 049-249-5800 |
|---|---|
| 所在地 | 〒350-1117 埼玉県川越市広栄町4-16 |
| 営業時間 | 10:00-19:00 |
| 定休日 | 火曜日・水曜日 |
| 宅建免許番号 | 埼玉県知事(14)第4714号 |
| アクセス | 店舗への地図はこちら |

来店ご予約
埼玉県川越市で価格が似ている物件はこちら
- 埼玉県
マイページ物件数 - 3,653件
最近見た物件
-
-

-
- 土地
- 753.20万円
-
安城市和泉町下之切
-
あんくるバスマーメイドパレス停
-
-
-

-
- 土地
- 950万円
-
八戸市大字白銀町字八森
-
東ケ丘バス停
-
埼玉県土地新着物件
-
-

-
- 土地
- 500万円
-
入間市大字小谷田
-
西武池袋・豊島線仏子駅
-
-
-

-
- 土地
- 3,490万円
-
吉川市きよみ野2丁目
-
JR武蔵野線吉川駅
-
-
-

-
- 土地
- 590万円
-
蓮田市大字江ケ崎
-
JR東北本線蓮田駅
-
-
-

-
- 土地
- 3億円
-
川口市大字新堀
-
日暮里舎人ライナー
-
-
-

-
- 土地
- 2,180万円
-
川口市大字赤井
-
埼玉高速鉄道鳩ヶ谷駅
-
-
-

-
- 土地
- 2,170万円
-
さいたま市見沼区大字小深作
-
東武野田線七里駅
-
-
-

-
- 土地
- 2,990万円
-
さいたま市北区吉野町2丁目
-
JR高崎線宮原駅
-
- お近くの店舗を探す
-
おすすめ物件
-
-

-
- 土地
- 3,980万円
-
さいたま市大宮区大成町2丁目
-
埼玉新都市交通鉄道博物館(大成)
-
-
-

-
- 土地
- 2,280万円
-
上尾市大字壱丁目
-
JR高崎線上尾
-
-
-

-
- 土地
- 500万円
-
比企郡滑川町大字羽尾
-
東武東上線森林公園
-
-
-

-
- 土地
- 1,200万円
-
加須市北下新井
-
湘南新宿ライン宇須栗橋
-
-
-

-
- 土地
- 2,450万円
-
川越市豊田町2丁目
-
西武新宿線南大塚
-
-
-

-
- 土地
- 2,400万円
-
新座市畑中3丁目
-
JR武蔵野線北朝霞
-
-
-

-
- 土地
- 500万円
-
邑楽郡大泉町仙石2丁目
-
東武小泉線西小泉
-
-
-

-
- 土地
- 780万円
-
加須市阿佐間
-
湘南新宿ライン宇須栗橋
-
-
-

-
- 土地
- 580万円
-
加須市馬内
-
東武伊勢崎・大師線加須
-
-
-

-
- 土地
- 1,880万円
-
桶川市大字上日出谷
-
JR高崎線桶川
-


