八田3丁目 売地
掲載情報更新日:2025年11月24日 次回更新予定日:2025年12月08日
- 2,500万円
-
- 借入ご希望金額
万円 - 借入期間
年 - 借入金利
% - 月々のお支払い金額
円
- 借入ご希望金額
※ 月々のお支払例は目安の試算となりますので、実際の金額とは異なる場合がございます。詳しくは店舗までお問合わせください。
- 福岡市東区八田3丁目
-
JR香椎線『舞松原』 徒歩14分 (約1120m)
西鉄バス『八田小学校前』 徒歩5分 (約400m)
八田3丁目 売地土地 | 物件情報
物件の特徴
- 南側道路面す
- 閑静な住宅街
- 陽当り良好
- 更地渡
- 建築条件無
物件詳細情報
| 価格 | 2,500万円 | 坪単価 | 坪68.3万円 |
|---|---|---|---|
| 物件種別 | 土地 | ||
| 所在地 | 福岡県福岡市東区八田3丁目 2号地 | ||
| アクセス |
|
||
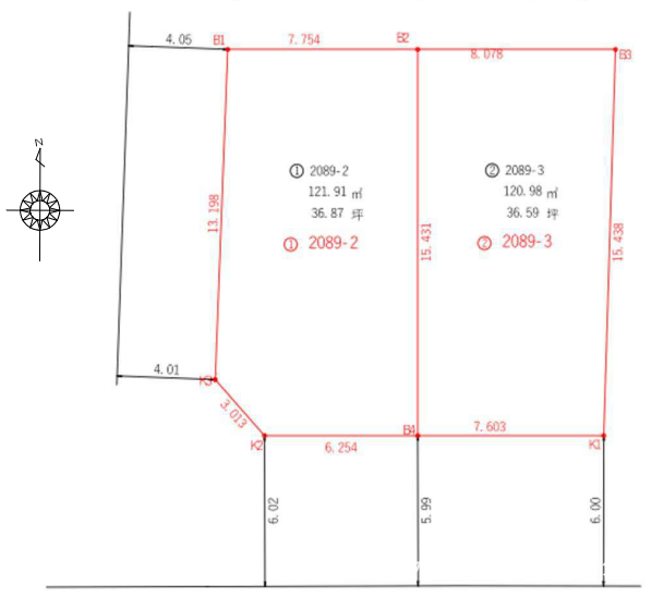
| 土地面積 | 120.98㎡(36.59坪) | 接道 | 南側(公道)幅 約5.9m 西側(公道)幅 約4.0m |
| 私道 | セットバック | ||
| 最適用途 | 造成完了時期 | ||
| 地目 | 宅地 | 地勢 | |
| 権利 | 所有権 |
||
| 都市計画 | 市街化区域 |
用途地域 | 1種低層 |
| 建ぺい/容積率 | 50% / 80% | 土地国土法 | |
| 許可番号 | 建築基準法 | ||
| 法令制限 | 日影制限有・法22条区域・絶対高さ制限10m | ||
| 小学区 | 八田小学校 徒歩6分 (約410m) | 中学区 | 多々良中央中学校 徒歩13分 (約1010m) |
| 現況 | 更地 | 引渡 | 期日指定:2025年10月(更地渡し) |
| 建築条件 | 建築条件なし | ||
| その他費用 | |||
| 周辺環境 | 安田クリニック 徒歩5分 (約400m) 八田小学校 徒歩6分 (約410m) エフコープ 舞松原店 徒歩7分 (約500m) あかつき保育園 徒歩8分 (約590m) セブン-イレブン 福岡八田2丁目店 徒歩7分 (約490m) ココカラファイン セガミ薬品舞松原店 徒歩6分 (約480m) 福岡八田郵便局 徒歩7分 (約510m) サニー 八田店 徒歩12分 (約940m) アピアリ八田 徒歩10分 (約780m) 多々良中央中学校 徒歩13分 (約1010m) |
||
| 備考 | ※造成、ブロック施工等はお客様負担となります。 | ||
| 物件番号 | 4293063 | 取引態様 | 媒介 |
取扱店舗情報
ハウスドゥ 福岡流通センター 有限会社セゾン 店舗詳細ページへ
| 電話番号 | 092-260-7722 |
|---|---|
| 所在地 | 〒813-0034 福岡県福岡市東区多の津4丁目9-1 103 |
| 営業時間 | 9:00~19:00 |
| 定休日 | 年末年始、GW、お盆休み |
| 宅建免許番号 | 福岡県知事(1)第20006号 |
| アクセス | 店舗への地図はこちら |

来店ご予約
福岡県福岡市東区で価格が似ている物件はこちら
- 福岡県
マイページ物件数 - 9,109件
最近見た物件
-
-

-
- 土地
- 2,990万円
-
豊橋市向草間町字北新切
-
豊橋鉄道渥美線高師
-
-
-

-
- 新築一戸建て
- 4,399万円
-
名古屋市緑区神沢1丁目
-
名古屋市桜通線神沢
-
-
-

-
- 中古マンション
- 2,199万円
-
安城市三河安城町1丁目
-
JR東海道本線三河安城
-
福岡県土地新着物件
-
-

-
- 土地
- 1,200万円
-
小郡市上西鯵坂
-
西鉄天神大牟田線端間駅
-
-
-

-
- 土地
- 1,560万円
-
福岡市南区柏原1丁目
-
JR博多南線博多南駅
-
-
-

-
- 土地
- 4,500万円
-
春日市日の出町6丁目
-
JR鹿児島本線南福岡駅
-
-
-

-
- 土地
- 1,136万円
-
遠賀郡岡垣町山田峠3丁目
-
JR鹿児島本線海老津駅
-
-
-

-
- 土地
- 751万円
-
遠賀郡岡垣町山田峠3丁目
-
JR鹿児島本線海老津駅
-
-
-

-
- 土地
- 850万円
-
北九州市若松区浜町3丁目
-
JR筑豊本線若松駅
-
-
-

-
- 土地
- 1,056万円
-
遠賀郡岡垣町山田峠3丁目
-
JR鹿児島本線海老津駅
-
- お近くの店舗を探す
-
おすすめ物件
-
-

-
- 土地
- 1,998万円
-
北九州市小倉北区上到津1丁目
-
JR日豊本線南小倉
-
-
-

-
- 土地
- 4,780万円
-
北九州市小倉北区三郎丸3丁目
-
JR日豊本線城野
-
-
-

-
- 土地
- 700万円
-
北九州市小倉南区湯川新町2丁目
-
JR日豊本線安部山公園
-
-
-

-
- 土地
- 2,500万円
-
北九州市小倉南区横代北町4丁目
-
JR日田彦山線石田
-
-
-

-
- 土地
- 3,800万円
-
北九州市小倉南区山手3丁目
-
北九州高速鉄道企救丘
-
-
-

-
- 土地
- 3,280万円
-
北九州市八幡西区永犬丸3丁目
-
筑豊電気鉄道三ヶ森
-
-
-

-
- 土地
- 2,300万円
-
北九州市門司区東本町1丁目
-
JR鹿児島本線門司港
-
-
-

-
- 土地
- 1,200万円
-
築上郡築上町大字築城
-
JR日豊本線築城
-
-
-

-
- 土地
- 1,080万円
-
直方市知古2丁目
-
筑豊電気鉄道筑豊直方
-
-
-

-
- 土地
- 700万円
-
北九州市若松区大井戸町
-
JR筑豊本線若松
-







