伊勢崎市山王町の土地
掲載情報更新日:2026年03月23日 次回更新予定日:2026年04月06日
※ 月々のお支払例は目安の試算となりますので、実際の金額とは異なる場合がございます。詳しくは店舗までお問合わせください。
- 伊勢崎市山王町
-
東武伊勢崎・大師線『新伊勢崎』 徒歩54分 (約4300m)
- 取扱会社:ハウスドゥ 伊勢崎連取 株式会社インキュービック
-
-

- ■お電話はこちら
0270-50-0213
伊勢崎市山王町土地 | 物件情報
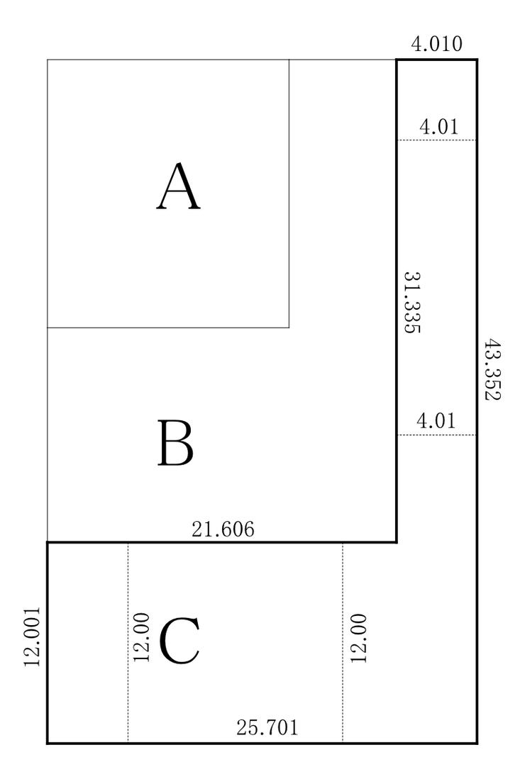
【区画図】
図面と異なる場合は現況優先

【外観】
現地写真(2025年6月撮影)
- 取扱会社
ハウスドゥ 伊勢崎連取
-
-
- ■お電話はこちら
0270-50-0213
物件の設備
物件の特徴
物件詳細情報
| 価格 |
590万円 |
坪単価 |
坪4.5万円 |
| 物件種別 |
土地 |
| 所在地 |
群馬県伊勢崎市山王町 |
| アクセス |
- 東武伊勢崎・大師線『新伊勢崎』 徒歩54分 (約4300m)
|
| 土地面積 |
公433.59㎡(131.16坪) |
接道 |
|
| 私道 |
|
セットバック |
|
| 最適用途 |
|
造成完了時期 |
|
| 地目 |
畑 |
地勢 |
|
| 権利 |
所有権
|
| 都市計画 |
調整区域
|
用途地域 |
指定無 |
| 建ぺい/容積率 |
70%
/ 200%
|
土地国土法 |
|
| 許可番号 |
|
建築基準法 |
|
| 法令制限 |
|
| 小学区 |
名和小学校 徒歩19分 (約1500m) |
中学区 |
第二中学校 徒歩11分 (約850m) |
| 現況 |
更地 |
引渡 |
未記入 |
| 建築条件 |
建築条件なし |
| その他費用 |
|
| 周辺環境 |
伊勢崎市みらい公園 徒歩7分 (約490m) 太陽保育園 徒歩10分 (約790m) 伊勢崎市立第二中学校 徒歩13分 (約1000m) 伊勢崎市立名和幼稚園 徒歩13分 (約1040m) セブン-イレブン 伊勢崎堀口町店 徒歩16分 (約1240m) ドラッグストア マツモトキヨシ 伊勢崎美茂呂店 徒歩20分 (約1580m) カワチ薬品 伊勢崎南店 徒歩24分 (約1900m) ベルク 伊勢崎美茂呂店 徒歩20分 (約1550m) |
| 備考 |
農転・開発費用別途 買主負担 |
| 物件番号 |
4305146 |
取引態様 |
媒介 |
取扱店舗情報
群馬県伊勢崎市で価格が似ている物件はこちら


-
-
土地
2025.06.17
-
-
- 530万円
-
伊勢崎市下触町
-
JR両毛線「国定駅」まで徒歩54分
-
363.00m2

-
-
土地
2025.06.17
-

-
-
土地
2025.06.17
-
-
- 600万円
-
伊勢崎市美茂呂町
-
東武伊勢崎・大師線「新伊勢崎駅」まで徒歩27分
-
188.43m2

-
-
土地
2025.06.17
-
-
- 650万円
-
伊勢崎市太田町
-
JR両毛線「伊勢崎駅」まで徒歩9分
-
178.26m2

-
-
土地
2025.06.18
-

-
-
土地
2025.06.18
-

-
-
土地
2025.06.18
-
-
- 650万円
-
伊勢崎市長沼町
-
東武伊勢崎・大師線「剛志駅」まで徒歩53分
-
312.00m2

-
-
土地
2025.06.18
-
-
- 580万円
-
伊勢崎市境伊与久
-
東武伊勢崎・大師線「剛志駅」まで徒歩7分
-
509.35m2

-
-
土地
2025.06.19
-
-
- 610万円
-
伊勢崎市八斗島町
-
JR両毛線「伊勢崎駅」まで徒歩87分
-
236.61m2

-
-
土地
2025.06.20
-
-
- 680万円
-
伊勢崎市境中島
-
東武伊勢崎・大師線「境町駅」まで徒歩19分
-
608.26m2

-
-
土地
2025.06.20
-

-
-
土地
2025.06.21
-
-
- 555万円
-
伊勢崎市境女塚
-
JR両毛線「伊勢崎駅」まで徒歩124分
-
272.28m2

-
-
土地
2025.06.21
-

-
-
土地
2025.07.08
-
-
- 550万円
-
伊勢崎市境
-
東武伊勢崎・大師線「境町駅」まで徒歩5分
-
1280.96m2

-
-
土地
2026.01.08
-
-
- 640万円
-
伊勢崎市八斗島町
-
JR両毛線「伊勢崎駅」まで徒歩87分
-
165.29m2

-
-
土地
2026.01.29
-

-
-
土地
2026.02.06
-
-
- 550万円
-
伊勢崎市日乃出町
-
JR両毛線「伊勢崎駅」まで車10分
-
312.49m2

-
-
土地
2026.02.06
-
-
- 650万円
-
伊勢崎市日乃出町
-
東武伊勢崎・大師線「新伊勢崎駅」まで徒歩28分
-
295.00m2

-
-
土地
2026.02.06
-
-
- 590万円
-
伊勢崎市日乃出町
-
東武伊勢崎・大師線「新伊勢崎駅」まで徒歩28分
-
269.53m2

-
-
土地
2026.02.06
-
-
- 580万円
-
伊勢崎市豊城町
-
東武伊勢崎・大師線「伊勢崎駅」まで徒歩38分
-
371.33m2

-
-
土地
2026.02.06
-
-
- 580万円
-
伊勢崎市豊城町
-
東武伊勢崎・大師線「新伊勢崎駅」まで徒歩33分
-
241.19m2

-
-
土地
2026.02.06
-
-
- 515万円
-
伊勢崎市馬見塚町
-
東武伊勢崎・大師線「剛志駅」まで徒歩29分
-
235.84m2

-
-
土地
2026.02.06
-
-
- 490万円
-
伊勢崎市韮塚町
-
東武伊勢崎・大師線「新伊勢崎駅」まで徒歩37分
-
284.00m2

-
-
土地
2026.02.07
-
-
- 600万円
-
伊勢崎市日乃出町
-
JR両毛線「伊勢崎駅」まで徒歩44分
-
318.25m2

-
-
土地
2026.02.22
-
-
- 540万円
-
伊勢崎市境伊与久
-
東武伊勢崎・大師線「剛志駅」まで徒歩20分
-
394.37m2

群馬県伊勢崎市の
土地
一覧から探す
群馬県伊勢崎市で種別を変更して探す