泉佐野市高松北2丁目の土地
掲載情報更新日:2026年02月20日 次回更新予定日:2026年03月06日
- 950万円
-
- 借入ご希望金額
万円 - 借入期間
年 - 借入金利
% - 月々のお支払い金額
円
- 借入ご希望金額
※ 月々のお支払例は目安の試算となりますので、実際の金額とは異なる場合がございます。詳しくは店舗までお問合わせください。
- 泉佐野市高松北2丁目
-
南海電鉄本線『泉佐野』 徒歩7分 (約560m)
南海電鉄関西空港線『泉佐野』 徒歩7分 (約560m)
JR関西空港線『りんくうタウン』 徒歩22分 (約1760m)
泉佐野市高松北2丁目土地 | 物件情報
物件の設備
- 上水道
- 側溝
- 汲取
- プロパンガス
- 個別プロパン
物件の特徴
- 小学校徒歩10分以内
- スーパーが近い
- 陽当り良好
- 平坦地
- 建築条件無
物件詳細情報
| 価格 | 950万円 | 坪単価 | 坪37.5万円 |
|---|---|---|---|
| 物件種別 | 土地 | ||
| 所在地 | 大阪府泉佐野市高松北2丁目 | ||
| アクセス |
|
||
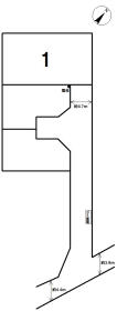
| 土地面積 | 公83.83㎡(25.35坪) | 接道 | 西側(公道)幅 約4.7m 間口 約5.50m |
| 私道 | セットバック | ||
| 最適用途 | 住宅用地 | 造成完了時期 | |
| 地目 | 宅地 | 地勢 | 平坦 |
| 権利 | 所有権 |
||
| 都市計画 | 市街化区域 |
用途地域 | 1種住居 |
| 建ぺい/容積率 | 60% / 200% | 土地国土法 | 届出不要 |
| 許可番号 | 建築基準法 | ||
| 法令制限 | 宅地造成工事規制区域・法22条区域・道路斜線制限・隣地斜線制限 | ||
| 小学区 | 第二小学校 徒歩1分 (約38m) | 中学区 | 佐野中学校 徒歩22分 (約1700m) |
| 現況 | 古家付 | 引渡 | 相談(現況渡し) |
| 建築条件 | 建築条件なし | ||
| その他費用 | |||
| 備考 | ■建築条件なし!お好きな工務店・ハウスメーカーで建築できます ■コンビニ・スーパー徒歩10分圏内♪ ■第二小学校…徒歩約1分!通学も安心です ■上水道は南東側約30m先の埋設管より南側の道路から前面道路を経由して引込されておりますが、私設管(5件分)となります。 |
||
| 物件番号 | 4359576 | 取引態様 | 媒介 |
取扱店舗情報
ハウスドゥ 熊取・泉佐野北 株式会社ルート1 店舗詳細ページへ
| 電話番号 | 072-493-8089 |
|---|---|
| 所在地 | 〒590-0458 大阪府泉南郡熊取町朝代西3丁目749-3 |
| 営業時間 | 10:00-19:00 |
| 定休日 | 水曜日・第一火曜日・年末年始 |
| 宅建免許番号 | 大阪府知事(3)第56748号 |
| アクセス | 店舗への地図はこちら |

来店ご予約
大阪府泉佐野市で価格が似ている物件はこちら
- 大阪府
マイページ物件数 - 17,527件
大阪府土地新着物件
-
-

-
- 土地
- 2,450万円
-
高槻市津之江北町
-
JR東海道線高槻駅
-
-
-

-
- 土地
- 3,180万円
-
茨木市南春日丘5丁目
-
大阪モノレール彩都阪大病院前駅
-
-
-

-
- 土地
- 300万円
-
茨木市郡3丁目
-
JR東海道線茨木駅
-
-
-

-
- 土地
- 1,260万円
-
堺市西区浜寺石津町西4丁
-
南海電鉄本線石津川駅
-
-
-

-
- 土地
- 1,480万円
-
泉南郡田尻町嘉祥寺
-
南海電鉄本線羽倉崎駅
-
-
-

-
- 土地
- 780万円
-
泉佐野市旭町
-
南海電鉄本線泉佐野駅
-
-
-

-
- 土地
- 5,100万円
-
大東市幸町
-
JR片町線住道駅
-
- お近くの店舗を探す
-
おすすめ物件
-
-

-
- 土地
- 1,490万円
-
大阪市住吉区墨江1丁目
-
南海電鉄本線住吉大社
-
-
-

-
- 土地
- 1,680万円
-
大阪市住吉区長居西2丁目
-
JR阪和線長居
-
-
-

-
- 土地
- 1,100万円
-
大阪市住之江区安立1丁目
-
南海電鉄本線住ノ江
-
-
-

-
- 土地
- 4,880万円
-
羽曳野市河原城
-
近鉄南大阪線古市
-
-
-

-
- 土地
- 3,180万円
-
羽曳野市羽曳が丘西1丁目
-
近鉄南大阪線道明寺
-
-
-

-
- 土地
- 1,290万円
-
高槻市下田部町1丁目
-
阪急電鉄京都線高槻市
-
-
-

-
- 土地
- 1,980万円
-
河内長野市千代田台町
-
南海電鉄高野線千代田
-
-
-

-
- 土地
- 990万円
-
河内長野市南青葉台
-
南海電鉄高野線三日市町
-
-
-

-
- 土地
- 1,980万円
-
和泉市太町
-
JR阪和線北信太
-
-
-

-
- 土地
- 1,880万円
-
泉大津市松之浜町1丁目
-
南海電鉄本線松ノ浜
-










