川崎市多摩区長沢1丁目の土地
掲載情報更新日:2025年10月24日 次回更新予定日:2025年11月07日
- 2,555万円
- 
                    - 借入ご希望金額
 万円
-  借入期間
 年
-  借入金利
 %
-  月々のお支払い金額
 円
 
- 借入ご希望金額
※ 月々のお支払例は目安の試算となりますので、実際の金額とは異なる場合がございます。詳しくは店舗までお問合わせください。
- 川崎市多摩区長沢1丁目
- 
                    小田急小田原線『生田』 徒歩18分 (約1440m)
 
川崎市多摩区長沢1丁目土地 | 物件情報
             
        
            ◆閑静な住宅地
◆日当たり良好
◆更地渡し・お好きなハウスメーカーで建築可能        
物件の設備
- 公営水道
- 公共下水
物件の特徴
- スーパーが近い
- 閑静な住宅街
- 陽当り良好
- 更地渡
- 建築条件無
物件詳細情報
| 価格 | 2,555万円 | 坪単価 | 坪100.0万円 | 
|---|---|---|---|
| 物件種別 | 土地 | ||
| 所在地 | 神奈川県川崎市多摩区長沢1丁目1-13 | ||
| アクセス | 
 | ||
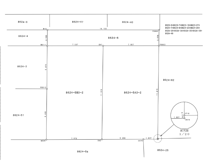
| 土地面積 | 実84.47㎡(25.55坪) | 接道 | 北側(私道)幅 約4.0m | 
| 私道 | 別:実14.30㎡ | セットバック | |
| 最適用途 | 住宅用地 | 造成完了時期 | |
| 地目 | 宅地 | 地勢 | 雛段 | 
| 権利 | 所有権 | ||
| 都市計画 | 市街化区域 | 用途地域 | 1種住居 | 
| 建ぺい/容積率 | 60% / 200% | 土地国土法 | 届出不要 | 
| 許可番号 | 建築基準法 | ||
| 法令制限 | 高度地区・準防火地域・日影制限有 | ||
| 小学区 | 中学区 | ||
| 現況 | 古家付 | 引渡 | 相談(更地渡し) | 
| 建築条件 | 建築条件なし | ||
| その他費用 | |||
| 周辺環境 | いなげや川崎生田店 徒歩4分 (約320m) セビンイレブン川崎東長沢店 徒歩7分 (約490m) 多摩警察署長沢交番 徒歩9分 (約710m) ハックドラッグ長沢店 徒歩11分 (約840m) 西三田幼稚園 徒歩11分 (約850m) 南生田中学校 徒歩13分 (約990m) 南生田小学校 徒歩15分 (約1140m) | ||
| 備考 | 更地渡し | ||
| 物件番号 | 4397707 | 取引態様 | 媒介 | 
取扱店舗情報
ハウスドゥ 向ヶ丘遊園 株式会社パワーラッシュ 店舗詳細ページへ
| 電話番号 | 044-299-8081 | 
|---|---|
| 所在地 | 〒214-0014 神奈川県川崎市多摩区登戸2777-2 N100ビル201号室 | 
| 営業時間 | 9:00~18:00 | 
| 定休日 | 水曜日、年末年始 | 
| 宅建免許番号 | 神奈川県知事(1)第32601号 | 
| アクセス | 店舗への地図はこちら | 

来店ご予約
神奈川県川崎市多摩区で価格が似ている物件はこちら
- 神奈川県
 マイページ物件数
- 3,191件
最近見た物件
- 
                        - 
									                                     
- 
                                - 収益
- 1,780万円
- 
                                        
                                            練馬区錦1丁目 
- 
                                        東武東上線上板橋 
 
 
- 
									                                    
- 
                        - 
									                                     
- 
                                - 土地
- 7,080万円
- 
                                        
                                            調布市西つつじケ丘4丁目 
- 
                                        京王線つつじヶ丘 
 
 
- 
									                                    
- 
                        - 
									                                     
- 
                                - 土地
- 1,680万円
- 
                                        
                                            名古屋市緑区有松町大字桶狭間字高根 
- 
                                        名鉄名古屋本線有松 
 
 
- 
									                                    
神奈川県土地新着物件
- お近くの店舗を探す
- 
            
            
            
おすすめ物件
- 
				- 
														 
- 
						- 土地
- 2,480万円
- 
								
									相模原市中央区上溝1丁目 
- 
								JR横浜線橋本 
 
 
- 
														
- 
				- 
														 
- 
						- 土地
- 670万円
- 
								
									厚木市及川 
- 
								小田急小田原線本厚木 
 
 
- 
														
- 
				- 
														 
- 
						- 土地
- 1,580万円
- 
								
									平塚市西真土3丁目 
- 
								JR東海道本線平塚 
 
 
- 
														
- 
				- 
														 
- 
						- 土地
- 780万円
- 
								
									平塚市広川 
- 
								JR東海道本線平塚 
 
 
- 
														
 
     
                         
                         
                         
                    







 
                 
                 
             
                    

 
                                            





 
						 
						