川崎市多摩区長沢1丁目の土地
掲載情報更新日:2025年10月24日 次回更新予定日:2025年11月07日
- 4,911万円
-
- 借入ご希望金額
万円 - 借入期間
年 - 借入金利
% - 月々のお支払い金額
円
- 借入ご希望金額
※ 月々のお支払例は目安の試算となりますので、実際の金額とは異なる場合がございます。詳しくは店舗までお問合わせください。
- 川崎市多摩区長沢1丁目
-
小田急小田原線『生田』 徒歩18分 (約1440m)
小田急小田原線『読売ランド前』 徒歩29分 (約2320m)
小田急小田原線『向ヶ丘遊園』 徒歩36分 (約2880m)
川崎市多摩区長沢1丁目土地 | 物件情報
◆アパート用地最適
◆陽当たり良好
◆お好きなハウスメーカーで建築可能
◆現況渡し
物件の設備
- 電気
- 公営水道
- 公共下水
- 都市ガス
物件の特徴
- スーパーが近い
- 閑静な住宅街
- 陽当り良好
- 建築条件無
物件詳細情報
| 価格 | 4,911万円 | 坪単価 | 坪96.1万円 |
|---|---|---|---|
| 物件種別 | 土地 | ||
| 所在地 | 神奈川県川崎市多摩区長沢1丁目 | ||
| アクセス |
|
||
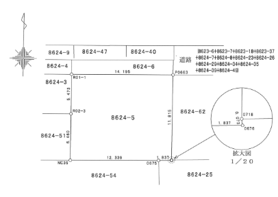
| 土地面積 | 実168.96㎡(51.11坪) | 接道 | 北側(私道)幅 約4.0m |
| 私道 | 別:実28.80㎡ | セットバック | |
| 最適用途 | アパート用地 | 造成完了時期 | |
| 地目 | 宅地 | 地勢 | |
| 権利 | 所有権 |
||
| 都市計画 | 市街化区域 |
用途地域 | 1種中高 |
| 建ぺい/容積率 | 60% / 200% | 土地国土法 | 届出不要 |
| 許可番号 | 建築基準法 | ||
| 法令制限 | 高度地区・準防火地域・日影制限有 | ||
| 小学区 | 中学区 | ||
| 現況 | 古家付 | 引渡 | 相談(現況渡し) |
| 建築条件 | 建築条件なし | ||
| その他費用 | |||
| 周辺環境 | いなげや川崎生田店 徒歩4分 (約320m) セビンイレブン川崎東長沢店 徒歩7分 (約490m) 多摩警察署長沢交番 徒歩9分 (約710m) ローソン長沢三丁目店 徒歩11分 (約880m) 川崎長沢郵便局 徒歩10分 (約800m) 南生田中学校 徒歩13分 (約990m) 南生田小学校 徒歩15分 (約1140m) |
||
| 備考 | |||
| 物件番号 | 4409697 | 取引態様 | 媒介 |
取扱店舗情報
ハウスドゥ 向ヶ丘遊園 株式会社パワーラッシュ 店舗詳細ページへ
| 電話番号 | 044-299-8081 |
|---|---|
| 所在地 | 〒214-0014 神奈川県川崎市多摩区登戸2777-2 N100ビル201号室 |
| 営業時間 | 9:00~18:00 |
| 定休日 | 水曜日、年末年始 |
| 宅建免許番号 | 神奈川県知事(1)第32601号 |
| アクセス | 店舗への地図はこちら |

来店ご予約
- 神奈川県
マイページ物件数 - 3,191件
最近見た物件
-
-

-
- 土地
- 1,990万円
-
清須市西枇杷島町城並3丁目
-
名鉄犬山線中小田井
-
-
-

-
- 中古マンション
- 5,380万円
-
名古屋市東区泉3丁目
-
名古屋市桜通線高岳
-
-
-

-
- 土地
- 1,800万円
-
鹿児島市坂之上2丁目
-
JR指宿枕崎線坂之上
-
神奈川県土地新着物件
- お近くの店舗を探す
-
おすすめ物件
-
-

-
- 土地
- 670万円
-
厚木市及川
-
小田急小田原線本厚木
-
-
-

-
- 土地
- 2,480万円
-
相模原市中央区上溝1丁目
-
JR横浜線橋本
-
-
-

-
- 土地
- 780万円
-
平塚市広川
-
JR東海道本線平塚
-
-
-

-
- 土地
- 1,580万円
-
平塚市西真土3丁目
-
JR東海道本線平塚
-










