宇都宮市西川田南1丁目の土地
NEW 10.04掲載情報更新日:2025年10月04日 次回更新予定日:2025年10月18日
- 1,600万円
-
- 借入ご希望金額
万円 - 借入期間
年 - 借入金利
% - 月々のお支払い金額
円
- 借入ご希望金額
※ 月々のお支払例は目安の試算となりますので、実際の金額とは異なる場合がございます。詳しくは店舗までお問合わせください。
- 宇都宮市西川田南1丁目
-
東武宇都宮線『西川田』 徒歩15分 (約1200m)
宇都宮市西川田南1丁目土地 | 物件情報
物件の設備
- 上水道
- 下水道
物件の特徴
- 小学校徒歩10分以内
- 前道6m以上
- 角地
- 平坦地
- 即引渡可
- 建築条件無
物件詳細情報
価格 | 1,600万円 | 坪単価 | 坪17.7万円 |
---|---|---|---|
物件種別 | 土地 | ||
所在地 | 栃木県宇都宮市西川田南1丁目 | ||
アクセス |
|
||
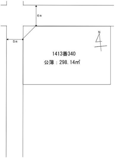
土地面積 | 公298.14㎡(90.18坪) | 接道 | 西側(公道)幅 約5.0m 北側(公道)幅 約6.0m |
私道 | セットバック | ||
最適用途 | 造成完了時期 | ||
地目 | 宅地 | 地勢 | 平坦 |
権利 | 所有権 |
||
都市計画 | 市街化区域 |
用途地域 | 1種中高 |
建ぺい/容積率 | 60% / 200% | 土地国土法 | |
許可番号 | 建築基準法 | ||
法令制限 | |||
小学区 | 姿川第一小学校 徒歩10分 (約762m) | 中学区 | 若松原中学校 徒歩29分 (約2264m) |
現況 | 更地 | 引渡 | 即(現況渡し) |
建築条件 | 建築条件なし | ||
その他費用 | |||
備考 | 現況有姿での販売になります。 | ||
物件番号 | 4435747 | 取引態様 | 媒介 |
取扱店舗情報
電話番号 | 028-678-2888 |
---|---|
所在地 | 〒320-0826 栃木県宇都宮市西原町466-1 |
営業時間 | 10:00~18:30 |
定休日 | 水曜日 |
宅建免許番号 | 栃木県知事(2)第5075号 |
アクセス | 店舗への地図はこちら |
来店ご予約
栃木県宇都宮市で価格が似ている物件はこちら
-
- 土地 2020.07.12
-
-
- 1,600万円
-
宇都宮市鶴田町
-
東武宇都宮線「南宇都宮駅」まで徒歩22分
- 396.00m2
-
-
- 土地 2021.07.27
-
-
- 1,500万円
-
宇都宮市上籠谷町
-
バス停「鐺山南」徒歩まで徒歩3分
- 1124.01m2
-
-
- 土地 2021.07.29
-
-
- 1,500万円
-
宇都宮市上籠谷町
-
バス停「鐺山南」徒歩まで徒歩3分
- 1124.01m2
-
-
- 土地 2021.11.23
-
-
- 1,570万円
-
宇都宮市天神2丁目
-
東武宇都宮線「東武宇都宮駅」まで徒歩18分
- 246.38m2
-
-
- 土地 2022.12.09
-
-
- 1,595万円
-
宇都宮市下岡本町
-
関東バス「釜井台団地中央」徒歩まで徒歩7分
- 217.66m2
-
-
- 土地 2022.12.19
-
-
- 1,595万円
-
宇都宮市下岡本町
-
関東バス「釜井台団地中央」徒歩まで徒歩7分
- 217.66m2
-
-
- 土地 2023.06.11
-
-
- 1,500万円
-
宇都宮市鶴田町
-
東武宇都宮線「東武宇都宮駅」まで徒歩40分
- 228.00m2
-
-
- 土地 2023.07.20
-
-
- 1,500万円
-
宇都宮市鶴田町
-
東武宇都宮線「東武宇都宮駅」まで徒歩40分
- 228.00m2
-
-
- 土地 2023.07.27
-
-
- 1,500万円
-
宇都宮市鶴田町
-
東武宇都宮線「東武宇都宮駅」まで徒歩40分
- 228.00m2
-
-
- 土地 2023.08.08
-
-
- 1,540万円
-
宇都宮市鶴田町
-
JR日光線「鶴田駅」まで徒歩16分
- 213.02m2
-
-
- 土地 2023.09.18
-
-
- 1,670万円
-
宇都宮市今泉新町
-
JR東北本線「宇都宮駅」バス乗車5分 バス停「関東バス今泉新町」まで徒歩3分
- 245.82m2
-
-
- 土地 2023.09.18
-
-
- 1,670万円
-
宇都宮市今泉新町
-
JR東北本線「宇都宮駅」バス乗車5分 バス停「関東バス今泉新町」まで徒歩3分
- 245.82m2
-
-
- 土地 2024.04.29
-
-
- 1,700万円
-
宇都宮市若松原1丁目
-
JR東北本線「雀宮駅」まで徒歩17分
- 332.00m2
-
-
- 土地 2024.06.04
-
-
- 1,560万円
-
宇都宮市石井町
-
湘南新宿ライン宇須「宇都宮駅」まで徒歩57分
- 1057.74m2
-
-
- 土地 2024.06.14
-
-
- 1,640万円
-
宇都宮市兵庫塚3丁目
-
湘南新宿ライン宇須「雀宮駅」まで徒歩32分
- 288.39m2
-
-
- 土地 2024.08.05
-
-
- 1,600万円
-
宇都宮市戸祭台
-
東武宇都宮線「東武宇都宮駅」まで徒歩40分
- 231.00m2
-
-
- 土地 2024.11.16
-
-
- 1,550万円
-
宇都宮市緑4丁目
-
東武宇都宮線「西川田駅」まで徒歩14分
- 205.92m2
-
-
- 土地 2024.11.17
-
-
- 1,670万円
-
宇都宮市兵庫塚1丁目
-
東武宇都宮線「西川田駅」まで徒歩22分
- 172.30m2
-
-
- 土地 2024.11.17
-
-
- 1,670万円
-
宇都宮市兵庫塚1丁目
-
東武宇都宮線「西川田駅」まで徒歩22分
- 184.15m2
-
-
- 土地 2024.12.21
-
-
- 1,580万円
-
宇都宮市西川田南1丁目
-
東武宇都宮線「西川田駅」バス乗車8分 バス停「西川田南」まで徒歩6分
- 230.23m2
-
-
- 土地 2025.01.11
-
-
- 1,560万円
-
宇都宮市花園町
-
東武宇都宮線「南宇都宮駅」まで徒歩9分
- 155.23m2
-
-
- 土地 2025.01.12
-
-
- 1,560万円
-
宇都宮市花園町
-
東武宇都宮線「南宇都宮駅」まで徒歩9分
- 155.23m2
-
-
- 土地 2025.01.23
-
-
- 1,700万円
-
宇都宮市西一の沢町
-
東武宇都宮線「東武宇都宮駅」まで徒歩33分
- 338.16m2
-
-
- 土地 2025.02.04
-
-
- 1,676万円
-
宇都宮市宮原3丁目
-
東武宇都宮線「南宇都宮駅」まで徒歩10分
- 178.83m2
-
-
- 土地 2025.02.13
-
-
- 1,590万円
-
宇都宮市江曽島1丁目
-
東武宇都宮線「江曾島駅」まで徒歩13分
- 172.36m2
-
-
- 土地 2025.02.23
-
-
- 1,550万円
-
宇都宮市宮山田町
-
JR東北本線「蒲須坂駅」まで徒歩102分
- 1985.91m2
-
-
- 土地 2025.02.24
-
-
- 1,630万円
-
宇都宮市天神2丁目
-
JR東北本線「宇都宮駅」まで徒歩18分
- 152.42m2
-
-
- 土地 2025.03.02
-
-
- 1,570万円
-
宇都宮市天神2丁目
-
東武宇都宮線「東武宇都宮駅」まで徒歩18分
- 246.38m2
-
-
- 土地 2025.03.04
-
-
- 1,570万円
-
宇都宮市天神2丁目
-
東武宇都宮線「東武宇都宮駅」まで徒歩18分
- 246.38m2
-
-
- 土地 2025.03.08
-
-
- 1,650万円
-
宇都宮市御幸ケ原町
-
JR東北本線「岡本駅」まで徒歩29分
- 216.91m2
-
-
- 土地 2025.03.10
-
-
- 1,650万円
-
宇都宮市御幸ケ原町
-
JR東北本線「岡本駅」まで徒歩29分
- 216.91m2
-
-
- 土地 2025.03.17
-
-
- 1,599万円
-
宇都宮市中岡本町
-
JR東北本線「岡本駅」まで徒歩24分
- 184.03m2
-
-
- 土地 2025.03.17
-
-
- 1,532万円
-
宇都宮市中岡本町
-
JR東北本線「岡本駅」まで徒歩24分
- 191.00m2
-
-
- 土地 2025.03.22
-
-
- 1,500万円
-
宇都宮市砥上町
-
JR日光線「鶴田駅」まで徒歩18分
- 232.09m2
-
-
- 土地 2025.03.27
-
-
- 1,500万円
-
宇都宮市白沢町
-
JR東北本線「岡本駅」まで徒歩45分
- 295.00m2
-
-
- 土地 2025.03.29
-
-
- 1,500万円
-
宇都宮市白沢町
-
JR東北本線「岡本駅」まで徒歩45分
- 295.00m2
-
-
- 土地 2025.04.12
-
-
- 1,690万円
-
宇都宮市上欠町
-
JR日光線「鶴田駅」まで徒歩48分
- 847.15m2
-
-
- 土地 2025.04.12
-
-
- 1,650万円
-
宇都宮市細谷町
-
東武宇都宮線「東武宇都宮駅」バス乗車18分 バス停「中道」まで徒歩4分
- 244.00m2
-
-
- 土地 2025.04.12
-
-
- 1,600万円
-
宇都宮市砥上町
-
東武宇都宮線「東武宇都宮駅」バス乗車15分 バス停「野尻」まで徒歩15分
- 304.09m2
-
-
- 土地 2025.04.12
-
-
- 1,650万円
-
宇都宮市細谷町
-
東武宇都宮線「東武宇都宮駅」バス乗車18分 バス停「中道」まで徒歩4分
- 244.00m2
-
-
- 土地 2025.04.12
-
-
- 1,600万円
-
宇都宮市砥上町
-
東武宇都宮線「東武宇都宮駅」バス乗車15分 バス停「野尻」まで徒歩15分
- 304.09m2
-
-
- 土地 2025.04.22
-
-
- 1,580万円
-
宇都宮市中戸祭町
-
東武宇都宮線「東武宇都宮駅」まで徒歩41分
- 211.18m2
-
-
- 土地 2025.04.22
-
-
- 1,592.40万円
-
宇都宮市滝の原3丁目
-
JR日光線「鶴田駅」まで徒歩13分
- 169.83m2
-
-
- 土地 2025.04.22
-
-
- 1,505万円
-
宇都宮市滝の原3丁目
-
JR日光線「鶴田駅」まで徒歩13分
- 177.74m2
-
-
- 土地 2025.04.22
-
-
- 1,623万円
-
宇都宮市滝の原3丁目
-
JR日光線「鶴田駅」まで徒歩13分
- 214.64m2
-
-
- 土地 2025.05.09
-
-
- 1,600万円
-
宇都宮市戸祭台
-
東武宇都宮線「東武宇都宮駅」まで車13分
- 231.00m2
-
-
- 土地 2025.05.16
-
-
- 1,500万円
-
宇都宮市下栗町
-
JR東北本線「宇都宮駅」まで徒歩49分
- 181.69m2
-
-
- 土地 2025.05.19
-
-
- 1,530万円
-
宇都宮市御幸ケ原町
-
JR東北本線「岡本駅」まで徒歩40分
- 169.63m2
-
-
- 土地 2025.05.22
-
-
- 1,530万円
-
宇都宮市御幸ケ原町
-
JR東北本線「岡本駅」まで徒歩40分
- 169.63m2
-
-
- 土地 2025.05.26
-
-
- 1,657万円
-
宇都宮市上戸祭町
-
東武宇都宮線「東武宇都宮駅」バス乗車10分 バス停「関東バス長岡街道入口」まで徒歩5分
- 202.88m2
-
-
- 土地 2025.06.11
-
-
- 1,600万円
-
宇都宮市鶴田町
-
JR日光線「鶴田駅」まで徒歩20分
- 396.00m2
-
-
- 土地 2025.07.05
-
-
- 1,580万円
-
宇都宮市中戸祭町
-
JR東北本線「宇都宮駅」まで車17分
- 211.18m2
-
-
- 土地 2025.07.17
-
-
- 1,600万円
-
宇都宮市滝の原3丁目
-
JR日光線「鶴田駅」まで徒歩15分
- 270.66m2
-
-
- 土地 2025.07.19
-
-
- 1,580万円
-
宇都宮市針ヶ谷町
-
東武宇都宮線「安塚駅」まで徒歩31分
- 273.37m2
-
-
- 土地 2025.08.02
-
-
- 1,650万円
-
宇都宮市細谷町
-
東武宇都宮線「東武宇都宮駅」まで車14分
- 244.00m2
-
-
- 土地 2025.08.09
-
-
- 1,540万円
-
宇都宮市鶴田町
-
東武宇都宮線「東武宇都宮駅」まで車12分
- 213.02m2
-
-
- 土地 2025.08.17
-
-
- 1,510万円
-
宇都宮市鶴田町
-
JR日光線「鶴田駅」まで徒歩12分
- 205.29m2
-
-
- 土地 2025.08.18
-
-
- 1,600万円
-
宇都宮市中岡本町
-
JR東北本線「岡本駅」まで徒歩20分
- 2127.00m2
-
-
- 土地 2025.08.19
-
-
- 1,600万円
-
宇都宮市中岡本町
-
JR東北本線「岡本駅」まで徒歩23分
- 2127.00m2
-
-
- 土地 2025.08.23
-
-
- 1,690万円
-
宇都宮市日の出2丁目
-
東武宇都宮線「南宇都宮駅」まで徒歩7分
- 159.42m2
-
-
- 土地 2025.08.24
-
-
- 1,600万円
-
宇都宮市中岡本町
-
JR東北本線「岡本駅」まで徒歩23分
- 2127.00m2
-
-
- 土地 2025.08.28
-
-
- 1,570万円
-
宇都宮市駒生町
-
東武宇都宮線「東武宇都宮駅」まで車13分
- 208.23m2
-
-
- 土地 2025.08.28
-
-
- 1,560万円
-
宇都宮市駒生町
-
東武宇都宮線「東武宇都宮駅」まで車13分
- 206.67m2
-
-
- 土地 2025.08.30
-
-
- 1,500万円
-
宇都宮市鶴田町
-
東武宇都宮線「東武宇都宮駅」まで車10分
- 228.00m2
-
-
- 土地 2025.08.30
-
-
- 1,680万円
-
宇都宮市中岡本町
-
JR東北本線「岡本駅」まで徒歩1分
- 160.24m2
-
-
- 土地 2025.09.02
-
-
- 1,640万円
-
宇都宮市下川俣町
-
JR東北本線「宇都宮駅」まで車13分
- 173.00m2
-
-
- 土地 2025.09.04
-
-
- 1,506万円
-
宇都宮市上桑島町
-
宇都宮芳賀ライト線「平石駅」まで徒歩53分
- 301.81m2
-
-
- 土地 2025.09.05
-
-
- 1,680万円
-
宇都宮市滝の原1丁目
-
東武宇都宮線「南宇都宮駅」まで徒歩17分
- 132.23m2
-
-
- 土地 2025.09.06
-
-
- 1,502.20万円
-
宇都宮市西川田2丁目
-
東武宇都宮線「西川田駅」まで徒歩9分
- 217.82m2
-
-
-
土地
2025.09.07
-
-
- 1,500万円
-
宇都宮市中岡本町
-
JR東北本線「岡本駅」まで徒歩11分
- 140.63m2
-
-
土地
2025.09.07
-
-
土地
2025.09.07
-
-
- 1,500万円
-
宇都宮市宝木本町
-
東武宇都宮線「東武宇都宮駅」バス乗車19分 バス停「弁天橋」まで徒歩6分
- 330.65m2
-
-
土地
2025.09.07
-
-
土地
2025.09.07
-
-
- 1,680万円
-
宇都宮市簗瀬町
-
JR東北本線「宇都宮駅」まで徒歩34分
- 186.84m2
-
-
土地
2025.09.07
-
-
土地
2025.09.08
-
-
- 1,580万円
-
宇都宮市御幸ケ原町
-
JR東北本線「岡本駅」まで徒歩33分
- 337.87m2
-
-
土地
2025.09.08
-
-
土地
2025.09.09
-
-
- 1,690万円
-
宇都宮市日の出2丁目
-
東武宇都宮線「南宇都宮駅」まで徒歩3分
- 159.42m2
-
-
土地
2025.09.09
-
-
土地
2025.09.12
-
-
- 1,550万円
-
宇都宮市大曽1丁目
-
JR東北本線「宇都宮駅」バス乗車12分 バス停「大曽1丁目」まで徒歩3分
- 128.21m2
-
-
土地
2025.09.12
-
-
土地
2025.09.13
-
-
- 1,680万円
-
宇都宮市簗瀬町
-
JR東北本線「宇都宮駅」まで徒歩34分
- 186.84m2
-
-
土地
2025.09.13
-
-
土地
2025.09.14
-
-
- 1,650万円
-
宇都宮市西2丁目
-
東武宇都宮線「東武宇都宮駅」まで徒歩9分
- 181.35m2
-
-
土地
2025.09.14
-
-
土地
2025.09.15
-
-
- 1,577.60万円
-
宇都宮市宝木町1丁目
-
JR東北本線「宇都宮駅」まで徒歩45分
- 200.46m2
-
-
土地
2025.09.15
-
-
土地
2025.09.26
-
-
- 1,547万円
-
宇都宮市西2丁目
-
東武宇都宮線「東武宇都宮駅」まで徒歩8分
- 284.30m2
-
-
土地
2025.09.26
-
-
土地
2025.09.27
-
-
- 1,650万円
-
宇都宮市西2丁目
-
東武宇都宮線「東武宇都宮駅」まで徒歩10分
- 181.35m2
-
-
土地
2025.09.27
-
-
土地
2025.09.27
-
-
- 1,580万円
-
宇都宮市下川俣町
-
JR東北本線「岡本駅」まで車10分
- 178.62m2
-
-
土地
2025.09.27
-
-
土地
2025.09.27
-
-
- 1,580万円
-
宇都宮市下川俣町
-
JR東北本線「岡本駅」まで車10分
- 178.61m2
-
-
土地
2025.09.27
-
-
土地
2025.09.27
-
-
- 1,580万円
-
宇都宮市下川俣町
-
JR東北本線「岡本駅」まで車10分
- 222.95m2
-
-
土地
2025.09.27
-
-
土地
2025.09.29
-
-
- 1,640万円
-
宇都宮市鶴田町
-
東武宇都宮線「東武宇都宮駅」まで車10分
- 138.82m2
-
-
土地
2025.09.29
-
-
土地
2025.10.06
-
-
- 1,559万円
-
宇都宮市中岡本町
-
JR東北本線「岡本駅」まで徒歩24分
- 184.05m2
-
-
土地
2025.10.06
- 栃木県
マイページ物件数 - 6,421件
栃木県土地新着物件
- お近くの店舗を探す
-
おすすめ物件
-
-
-
- 土地
- 1,250万円
-
河内郡上三川町大字上三川
-
湘南新宿ライン宇須石橋
-
-
-
-
- 土地
- 2,100万円
-
宇都宮市西川田町
-
東武宇都宮線西川田
-
-
-
-
- 土地
- 1,200万円
-
宇都宮市新富町
-
湘南新宿ライン宇須雀宮
-
-
-
-
- 土地
- 1,180万円
-
宇都宮市宝木町2丁目
-
関東バス「山崎街道入口」
-
-
-
-
- 土地
- 680万円
-
真岡市並木町3丁目
-
真岡鉄道真岡
-
-
-
-
- 土地
- 750万円
-
河内郡上三川町大字西汗
-
関東バス【ゆうがお公園】
-
-
-
-
- 土地
- 840万円
-
芳賀郡益子町大字長堤
-
真岡鉄道益子
-
-
-
-
- 土地
- 2,391万円
-
宇都宮市中戸祭町
-
東武宇都宮線東武宇都宮
-
-
-
-
- 土地
- 690万円
-
鹿沼市磯町
-
JR日光線鹿沼
-
-
-
-
- 土地
- 650万円
-
宇都宮市大和3丁目
-
関東バス市営球場入口
-