宇都宮市砥上町の土地
掲載情報更新日:2025年10月26日 次回更新予定日:2025年11月09日
- 1,300万円
-
- 借入ご希望金額
万円 - 借入期間
年 - 借入金利
% - 月々のお支払い金額
円
- 借入ご希望金額
※ 月々のお支払例は目安の試算となりますので、実際の金額とは異なる場合がございます。詳しくは店舗までお問合わせください。
- 宇都宮市砥上町
-
JR日光線『鶴田』 徒歩18分 (約1400m)
宇都宮市砥上町土地 | 物件情報
物件の設備
- 電気
- 公営水道
- 公共下水
- プロパンガス
物件の特徴
- 小学校徒歩10分以内
- セットバック要
- 閑静な住宅街
- 平坦地
- 整形地
- 更地渡
- 建築条件無
物件詳細情報
| 価格 | 1,300万円 | 坪単価 | 坪18.5万円 |
|---|---|---|---|
| 物件種別 | 土地 | ||
| 所在地 | 栃木県宇都宮市砥上町 | ||
| アクセス |
|
||
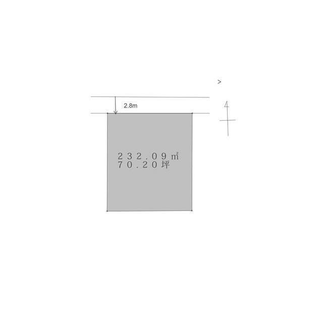
| 土地面積 | 公232.09㎡(70.20坪) | 接道 | 北側(私道)幅 約2.8m |
| 私道 | 別:102.00㎡(持分 1/3) | セットバック | 要 |
| 最適用途 | 住宅用地 | 造成完了時期 | |
| 地目 | 宅地 | 地勢 | 平坦 |
| 権利 | 所有権 |
||
| 都市計画 | 市街化区域 |
用途地域 | 1種住居 |
| 建ぺい/容積率 | 60% / 200% | 土地国土法 | |
| 許可番号 | 建築基準法 | ||
| 法令制限 | 景観法・法22条区域 | ||
| 小学区 | 姿川第二小学校 徒歩5分 (約333m) | 中学区 | 宮の原中学校 徒歩13分 (約972m) |
| 現況 | 古家付 | 引渡 | 相談(更地渡し) |
| 建築条件 | 建築条件なし | ||
| その他費用 | |||
| 備考 | ・上水道のメーター口径をアップさせる際は、私管の所有者より、許可をもらう必要が御座います。 ・道路の中心より約2mセットバックが必要となります。 ・境界復元 売主負担 ・契約不適合責任免責 |
||
| 物件番号 | 4199680 | 取引態様 | 媒介 |
取扱店舗情報
| 電話番号 | 028-678-2888 |
|---|---|
| 所在地 | 〒320-0826 栃木県宇都宮市西原町466-1 |
| 営業時間 | 10:00~18:30 |
| 定休日 | 水曜日 |
| 宅建免許番号 | 栃木県知事(2)第5075号 |
| アクセス | 店舗への地図はこちら |

来店ご予約
栃木県宇都宮市で価格が似ている物件はこちら
![]()
![]()
-
- 土地 2016.06.26
-
-
- 1,400万円
-
宇都宮市上戸祭1丁目
-
関東バス『若草町』まで徒歩4分
- 330.57m2
-
-
- 土地 2016.06.26
-
-
- 1,400万円
-
宇都宮市上戸祭1丁目
-
関東バス『若草町』まで徒歩4分
- 330.57m2
-
-
- 土地 2020.02.08
-
-
- 1,380万円
-
宇都宮市野沢町
-
関東バス【野沢寺前】徒歩まで徒歩5分
- 354.00m2
-
-
- 土地 2020.10.23
-
-
- 1,380万円
-
宇都宮市野沢町
-
バス停 『野沢寺前』徒歩まで徒歩4分
- 354.00m2
-
-
- 土地 2021.01.12
-
-
- 1,250万円
-
宇都宮市細谷町
-
関東バス【県営細谷住宅前】徒歩まで徒歩5分
- 274.90m2
-
-
- 土地 2021.01.14
-
-
- 1,250万円
-
宇都宮市細谷町
-
関東バス【県営細谷住宅前】徒歩まで徒歩5分
- 274.90m2
-
-
- 土地 2021.05.15
-
-
- 1,380万円
-
宇都宮市道場宿町
-
JRバスバス停「道場宿局前」まで徒歩1分
- 324.59m2
-
-
- 土地 2021.06.24
-
-
- 1,200万円
-
宇都宮市針ヶ谷町
-
東武宇都宮線「安塚駅」まで徒歩16分
- 714.00m2
-
-
- 土地 2021.06.25
-
-
- 1,200万円
-
宇都宮市針ヶ谷町
-
東武宇都宮線「安塚駅」まで徒歩16分
- 714.00m2
-
-
- 土地 2021.08.19
-
-
- 1,350万円
-
宇都宮市南町
-
JR東北本線「雀宮駅」まで徒歩23分
- 220.33m2
-
-
- 土地 2021.08.21
-
-
- 1,350万円
-
宇都宮市南町
-
JR東北本線「雀宮駅」まで徒歩23分
- 220.33m2
-
-
- 土地 2022.04.08
-
-
- 1,380万円
-
宇都宮市道場宿町
-
宇都宮芳賀ライト線「ゆいの杜西駅」まで徒歩18分
- 324.59m2
-
-
- 土地 2022.05.31
-
-
- 1,350万円
-
宇都宮市平松本町
-
JR東北本線「宇都宮駅」まで徒歩28分
- 158.56m2
-
-
- 土地 2022.06.05
-
-
- 1,350万円
-
宇都宮市平松本町
-
JR東北本線「宇都宮駅」まで徒歩28分
- 158.56m2
-
-
- 土地 2022.07.01
-
-
- 1,200万円
-
宇都宮市双葉2丁目
-
東武宇都宮線「江曾島駅」まで徒歩4分
- 133.39m2
-
-
- 土地 2022.07.03
-
-
- 1,200万円
-
宇都宮市双葉2丁目
-
東武宇都宮線「江曾島駅」まで徒歩3分
- 133.39m2
-
-
- 土地 2023.01.24
-
-
- 1,290万円
-
宇都宮市東峰町
-
JR東北新幹線「宇都宮駅」バス乗車13分 バス停「関東バス「こえご」」まで徒歩5分
- 166.04m2
-
-
- 土地 2023.02.02
-
-
- 1,400万円
-
宇都宮市白沢町
-
JR東北本線「岡本駅」まで徒歩35分
- 552.00m2
-
-
- 土地 2023.02.02
-
-
- 1,400万円
-
宇都宮市白沢町
-
JR東北本線「岡本駅」まで徒歩35分
- 552.00m2
-
-
- 土地 2023.03.03
-
-
- 1,300万円
-
宇都宮市一ノ沢町
-
東武宇都宮線「東武宇都宮駅」まで徒歩41分
- 209.40m2
-
-
- 土地 2023.03.03
-
-
- 1,300万円
-
宇都宮市一ノ沢町
-
東武宇都宮線「東武宇都宮駅」まで徒歩41分
- 209.40m2
-
-
- 土地 2023.04.08
-
-
- 1,200万円
-
宇都宮市下岡本町
-
JR烏山線「岡本駅」まで徒歩9分
- 230.21m2
-
-
- 土地 2023.04.09
-
-
- 1,300万円
-
宇都宮市中里町
-
旧ユッピー中里バス停まで徒歩5分
- 548.08m2
-
-
- 土地 2023.04.16
-
-
- 1,300万円
-
宇都宮市中里町
-
旧ユッピー中里バス停まで徒歩5分
- 548.08m2
-
-
- 土地 2023.04.20
-
-
- 1,200万円
-
宇都宮市双葉2丁目
-
東武宇都宮線「江曾島駅」まで徒歩5分
- 133.39m2
-
-
- 土地 2023.05.27
-
-
- 1,350万円
-
宇都宮市南町
-
湘南新宿ライン宇須「雀宮駅」まで徒歩24分
- 220.33m2
-
-
- 土地 2023.07.29
-
-
- 1,250万円
-
宇都宮市宮原4丁目
-
東武宇都宮線「南宇都宮駅」まで徒歩5分
- 301.47m2
-
-
- 土地 2023.07.31
-
-
- 1,250万円
-
宇都宮市宮原4丁目
-
東武宇都宮線「南宇都宮駅」まで徒歩5分
- 301.47m2
-
-
- 土地 2023.07.31
-
-
- 1,250万円
-
宇都宮市宮原4丁目
-
東武宇都宮線「南宇都宮駅」まで徒歩5分
- 301.47m2
-
-
- 土地 2023.08.07
-
-
- 1,380万円
-
宇都宮市緑3丁目
-
東武宇都宮線「西川田駅」まで徒歩15分
- 258.08m2
-
-
- 土地 2023.08.08
-
-
- 1,380万円
-
宇都宮市緑3丁目
-
東武宇都宮線「西川田駅」まで徒歩15分
- 258.08m2
-
-
- 土地 2023.08.22
-
-
- 1,350万円
-
宇都宮市平松本町
-
JR東北新幹線「宇都宮駅」まで徒歩28分
- 158.56m2
-
-
- 土地 2023.11.04
-
-
- 1,300万円
-
宇都宮市緑3丁目
-
東武宇都宮線「西川田駅」まで徒歩20分
- 258.08m2
-
-
- 土地 2023.11.30
-
-
- 1,340万円
-
宇都宮市川田町
-
東武宇都宮線「江曾島駅」まで徒歩34分
- 195.56m2
-
-
- 土地 2023.12.01
-
-
- 1,340万円
-
宇都宮市川田町
-
東武宇都宮線「江曾島駅」まで徒歩34分
- 195.56m2
-
-
- 土地 2024.01.07
-
-
- 1,200万円
-
宇都宮市若草5丁目
-
東武宇都宮線「東武宇都宮駅」まで徒歩56分
- 199.19m2
-
-
- 土地 2024.01.08
-
-
- 1,290万円
-
宇都宮市鶴田町
-
関東バス「明保小東口」まで徒歩7分
- 340.00m2
-
-
- 土地 2024.01.11
-
-
- 1,290万円
-
宇都宮市鶴田町
-
関東バス「明保小東口」まで徒歩7分
- 340.00m2
-
-
- 土地 2024.05.20
-
-
- 1,200万円
-
宇都宮市新富町
-
湘南新宿ライン宇須「雀宮駅」まで徒歩16分
- 172.56m2
-
-
- 土地 2024.06.07
-
-
- 1,390万円
-
宇都宮市冬室町
-
バス停関白まで徒歩5分
- 1421.48m2
-
-
- 土地 2024.06.08
-
-
- 1,390万円
-
宇都宮市冬室町
-
バス停関白まで徒歩5分
- 1421.48m2
-
-
- 土地 2024.08.03
-
-
- 1,280万円
-
宇都宮市岩曽町
-
JR烏山線「岡本駅」まで徒歩39分
- 198.49m2
-
-
- 土地 2024.10.05
-
-
- 1,300万円
-
宇都宮市上野町
-
JR東北本線「岡本駅」まで徒歩18分
- 202.70m2
-
-
- 土地 2024.10.05
-
-
- 1,300万円
-
宇都宮市上野町
-
JR東北本線「岡本駅」まで徒歩18分
- 202.70m2
-
-
- 土地 2024.10.22
-
-
- 1,400万円
-
宇都宮市鶴田町
-
JR日光線「鶴田駅」まで徒歩6分
- 263.47m2
-
-
- 土地 2024.11.10
-
-
- 1,250万円
-
宇都宮市細谷町
-
JR東北本線「宇都宮駅」まで徒歩79分
- 274.90m2
-
-
- 土地 2024.11.14
-
-
- 1,400万円
-
宇都宮市西川田1丁目
-
東武宇都宮線「西川田駅」まで徒歩15分
- 232.07m2
-
-
- 土地 2024.11.16
-
-
- 1,200万円
-
宇都宮市竹林町
-
JR東北本線「宇都宮駅」まで徒歩33分
- 235.20m2
-
-
- 土地 2024.12.14
-
-
- 1,290万円
-
宇都宮市御幸本町
-
宇都宮芳賀ライト線「陽東3丁目駅」まで徒歩33分
- 165.71m2
-
-
- 土地 2024.12.16
-
-
- 1,400万円
-
宇都宮市戸祭町
-
東武宇都宮線「東武宇都宮駅」まで徒歩33分
- 385.22m2
-
-
- 土地 2024.12.20
-
-
- 1,400万円
-
宇都宮市上戸祭1丁目
-
JR東北本線「宇都宮駅」バス乗車20分 バス停「若草町」まで徒歩4分
- 330.57m2
-
-
- 土地 2024.12.21
-
-
- 1,400万円
-
宇都宮市戸祭町
-
東武宇都宮線「東武宇都宮駅」まで徒歩33分
- 385.22m2
-
-
- 土地 2025.02.04
-
-
- 1,200万円
-
宇都宮市細谷町
-
東武宇都宮線「東武宇都宮駅」バス乗車16分 バス停「県営細谷住宅前」まで徒歩7分
- 159.36m2
-
-
- 土地 2025.02.04
-
-
- 1,287万円
-
宇都宮市駒生町
-
東武宇都宮線「東武宇都宮駅」まで徒歩64分
- 236.44m2
-
-
- 土地 2025.02.23
-
-
- 1,240万円
-
宇都宮市台新田町
-
JR東北本線「雀宮駅」まで徒歩39分
- 185.21m2
-
-
- 土地 2025.03.02
-
-
- 1,230万円
-
宇都宮市山本1丁目
-
関東バス山本まで徒歩6分
- 220.26m2
-
-
- 土地 2025.03.06
-
-
- 1,200万円
-
宇都宮市若草4丁目
-
東武宇都宮線「東武宇都宮駅」まで徒歩49分
- 157.70m2
-
-
- 土地 2025.03.08
-
-
- 1,380万円
-
宇都宮市不動前4丁目
-
東武宇都宮線「南宇都宮駅」まで徒歩15分
- 216.48m2
-
-
- 土地 2025.03.13
-
-
- 1,230万円
-
宇都宮市山本1丁目
-
湘南新宿ライン宇須「宇都宮駅」まで徒歩43分
- 220.26m2
-
-
- 土地 2025.03.15
-
-
- 1,300万円
-
宇都宮市御幸本町
-
JR東北本線「岡本駅」まで徒歩45分
- 161.16m2
-
-
- 土地 2025.03.17
-
-
- 1,321万円
-
宇都宮市中岡本町
-
JR東北本線「岡本駅」まで徒歩24分
- 174.59m2
-
-
- 土地 2025.03.17
-
-
- 1,380万円
-
宇都宮市不動前3丁目
-
東武宇都宮線「南宇都宮駅」まで徒歩8分
- 200.00m2
-
-
- 土地 2025.03.21
-
-
- 1,222万円
-
宇都宮市兵庫塚3丁目
-
JR東北本線「雀宮駅」まで徒歩25分
- 202.00m2
-
-
- 土地 2025.03.22
-
-
- 1,222万円
-
宇都宮市兵庫塚3丁目
-
JR東北本線「雀宮駅」まで徒歩25分
- 202.00m2
-
-
- 土地 2025.03.27
-
-
- 1,222万円
-
宇都宮市兵庫塚3丁目
-
JR東北本線「雀宮駅」まで徒歩25分
- 202.00m2
-
-
- 土地 2025.04.08
-
-
- 1,228.90万円
-
宇都宮市兵庫塚3丁目
-
JR東北本線「雀宮駅」まで徒歩27分
- 184.68m2
-
-
- 土地 2025.04.10
-
-
- 1,248万円
-
宇都宮市鶴田町
-
東武宇都宮線「東武宇都宮駅」まで徒歩26分
- 206.34m2
-
-
- 土地 2025.04.12
-
-
- 1,400万円
-
宇都宮市道場宿町
-
宇都宮芳賀ライト線「ゆいの杜西駅」まで徒歩16分
- 647.39m2
-
-
- 土地 2025.04.12
-
-
- 1,400万円
-
宇都宮市道場宿町
-
宇都宮芳賀ライト線「ゆいの杜西駅」まで徒歩16分
- 647.39m2
-
-
- 土地 2025.04.14
-
-
- 1,200万円
-
宇都宮市針ヶ谷町
-
東武宇都宮線「安塚駅」まで徒歩23分
- 221.00m2
-
-
- 土地 2025.04.14
-
-
- 1,200万円
-
宇都宮市針ヶ谷町
-
東武宇都宮線「安塚駅」まで徒歩23分
- 221.00m2
-
-
- 土地 2025.04.20
-
-
- 1,380万円
-
宇都宮市新里町
-
関東バス新里町まで徒歩8分
- 747.13m2
-
-
- 土地 2025.04.21
-
-
- 1,380万円
-
宇都宮市新里町
-
関東バス新里町まで徒歩8分
- 747.13m2
-
-
- 土地 2025.04.22
-
-
- 1,369万円
-
宇都宮市滝の原3丁目
-
JR日光線「鶴田駅」まで徒歩13分
- 181.06m2
-
-
- 土地 2025.04.22
-
-
- 1,228万円
-
宇都宮市兵庫塚3丁目
-
JR東北本線「雀宮駅」まで徒歩30分
- 184.68m2
-
-
- 土地 2025.05.12
-
-
- 1,200万円
-
宇都宮市細谷町
-
東武宇都宮線「東武宇都宮駅」まで徒歩76分
- 378.65m2
-
-
- 土地 2025.05.26
-
-
- 1,207万円
-
宇都宮市上戸祭町
-
東武宇都宮線「東武宇都宮駅」まで車15分
- 184.81m2
-
-
- 土地 2025.06.05
-
-
- 1,200万円
-
宇都宮市岩曽町
-
JR東北本線「岡本駅」まで車9分
- 167.00m2
-
-
- 土地 2025.06.11
-
-
- 1,287万円
-
宇都宮市駒生町
-
東武宇都宮線「東武宇都宮駅」まで車15分
- 236.44m2
-
-
- 土地 2025.06.14
-
-
- 1,350万円
-
宇都宮市宝木本町
-
東武宇都宮線「東武宇都宮駅」まで徒歩85分
- 275.74m2
-
-
- 土地 2025.06.21
-
-
- 1,400万円
-
宇都宮市西の宮1丁目
-
東武宇都宮線「東武宇都宮駅」バス乗車20分 バス停「関東バス中丸公園」まで徒歩16分
- 269.00m2
-
-
- 土地 2025.07.04
-
-
- 1,290万円
-
宇都宮市南町
-
JR東北本線「雀宮駅」バス乗車7分 バス停「南町自治会館」まで徒歩2分
- 252.83m2
-
-
- 土地 2025.07.04
-
-
- 1,400万円
-
宇都宮市上戸祭4丁目
-
東武宇都宮線「東武宇都宮駅」まで車10分
- 332.72m2
-
-
- 土地 2025.07.07
-
-
- 1,400万円
-
宇都宮市鶴田町
-
JR日光線「鶴田駅」まで徒歩12分
- 263.47m2
-
-
- 土地 2025.07.13
-
-
- 1,200万円
-
宇都宮市鶴田町
-
東武宇都宮線「東武宇都宮駅」まで車10分
- 220.52m2
-
-
- 土地 2025.07.15
-
-
- 1,285万円
-
宇都宮市上戸祭町
-
東武宇都宮線「東武宇都宮駅」まで徒歩59分
- 184.81m2
-
-
- 土地 2025.08.05
-
-
- 1,250万円
-
宇都宮市宝木本町
-
東武宇都宮線「東武宇都宮駅」まで車18分
- 324.00m2
-
-
- 土地 2025.08.11
-
-
- 1,220万円
-
宇都宮市双葉2丁目
-
東武宇都宮線「江曾島駅」まで徒歩5分
- 161.21m2
-
-
- 土地 2025.08.11
-
-
- 1,230万円
-
宇都宮市山本1丁目
-
JR東北本線「宇都宮駅」まで車15分
- 220.26m2
-
-
- 土地 2025.08.11
-
-
- 1,300万円
-
宇都宮市一ノ沢町
-
東武宇都宮線「東武宇都宮駅」まで車9分
- 209.40m2
-
-
- 土地 2025.08.24
-
-
- 1,220万円
-
宇都宮市双葉2丁目
-
東武宇都宮線「江曾島駅」まで徒歩5分
- 161.21m2
-
-
- 土地 2025.08.26
-
-
- 1,290万円
-
宇都宮市鶴田町
-
東武宇都宮線「東武宇都宮駅」まで車10分
- 162.49m2
-
-
- 土地 2025.09.01
-
-
- 1,200万円
-
宇都宮市宮原3丁目
-
東武宇都宮線「南宇都宮駅」まで徒歩10分
- 221.04m2
-
-
- 土地 2025.09.01
-
-
- 1,280万円
-
宇都宮市鶴田町
-
東武宇都宮線「東武宇都宮駅」まで徒歩28分
- 170.00m2
-
-
- 土地 2025.09.04
-
-
- 1,360万円
-
宇都宮市下荒針町
-
東武宇都宮線「東武宇都宮駅」バス乗車39分 バス停「野尻」まで徒歩13分
- 243.10m2
-
-
- 土地 2025.09.04
-
-
- 1,219万円
-
宇都宮市下田原町
-
JR東北本線「岡本駅」まで徒歩65分
- 575.88m2
-
-
- 土地 2025.09.06
-
-
- 1,258.80万円
-
宇都宮市西川田2丁目
-
東武宇都宮線「西川田駅」まで徒歩9分
- 196.32m2
-
-
- 土地 2025.09.06
-
-
- 1,200万円
-
宇都宮市若草5丁目
-
東武宇都宮線「東武宇都宮駅」まで車15分
- 198.37m2
-
-
- 土地 2025.09.06
-
-
- 1,280万円
-
宇都宮市若草5丁目
-
東武宇都宮線「東武宇都宮駅」まで車15分
- 199.19m2
-
-
- 土地 2025.09.12
-
-
- 1,340万円
-
宇都宮市川田町
-
東武宇都宮線「江曾島駅」まで徒歩24分
- 195.56m2
-
-
- 土地 2025.09.12
-
-
- 1,400万円
-
宇都宮市道場宿町
-
宇都宮芳賀ライト線「ゆいの杜西駅」まで徒歩16分
- 647.39m2
-
-
- 土地 2025.09.19
-
-
- 1,300万円
-
宇都宮市星が丘1丁目
-
東武宇都宮線「東武宇都宮駅」まで徒歩18分
- 137.00m2
-
-
- 土地 2025.09.19
-
-
- 1,280万円
-
宇都宮市上戸祭町
-
東武宇都宮線「東武宇都宮駅」まで車12分
- 157.82m2
-
-
- 土地 2025.09.19
-
-
- 1,300万円
-
宇都宮市星が丘1丁目
-
東武宇都宮線「東武宇都宮駅」まで徒歩17分
- 137.00m2
-
-
- 土地 2025.09.20
-
-
- 1,380万円
-
宇都宮市細谷1丁目
-
東武宇都宮線「東武宇都宮駅」まで車18分
- 166.17m2
-
-
- 土地 2025.09.23
-
-
- 1,300万円
-
宇都宮市御幸町
-
JR東北本線「岡本駅」まで車11分
- 185.79m2
-
-
-
土地
2025.09.30
-
-
- 1,380万円
-
宇都宮市海道町
-
JR東北本線「岡本駅」まで車8分
- 224.00m2
-
-
土地
2025.09.30
-
-
土地
2025.10.02
-
-
- 1,290万円
-
宇都宮市野沢町
-
東武宇都宮線「東武宇都宮駅」まで車20分
- 215.78m2
-
-
土地
2025.10.02
-
-
土地
2025.10.02
-
-
- 1,390万円
-
宇都宮市野沢町
-
東武宇都宮線「東武宇都宮駅」まで車20分
- 194.43m2
-
-
土地
2025.10.02
-
-
土地
2025.10.13
-
-
- 1,200万円
-
宇都宮市竹林町
-
JR東北本線「宇都宮駅」まで徒歩33分
- 235.20m2
-
-
土地
2025.10.13
-
-
土地
2025.10.14
-
-
- 1,248万円
-
宇都宮市宝木本町
-
JR東北本線「宇都宮駅」まで車22分
- 303.43m2
-
-
土地
2025.10.14
-
-
土地
2025.10.14
-
-
- 1,248万円
-
宇都宮市宝木本町
-
JR東北本線「宇都宮駅」まで車22分
- 235.98m2
-
-
土地
2025.10.14
-
-
土地
2025.10.18
-
-
- 1,390万円
-
宇都宮市末広1丁目
-
JR東北本線「雀宮駅」まで徒歩18分
- 247.93m2
-
-
土地
2025.10.18
-
-
土地
2025.10.18
-
-
- 1,250万円
-
宇都宮市中岡本町
-
JR東北本線「岡本駅」まで徒歩25分
- 309.23m2
-
-
土地
2025.10.18
-
-
土地
2025.10.18
-
-
- 1,350万円
-
宇都宮市中岡本町
-
JR東北本線「岡本駅」まで徒歩25分
- 332.56m2
-
-
土地
2025.10.18
-
-
土地
2025.10.18
-
-
- 1,390万円
-
宇都宮市中岡本町
-
JR東北本線「岡本駅」まで徒歩25分
- 348.09m2
-
-
土地
2025.10.18
-
-
土地
2025.10.20
-
-
- 1,400万円
-
宇都宮市上戸祭1丁目
-
東武宇都宮線「東武宇都宮駅」まで車11分
- 330.57m2
-
-
土地
2025.10.20
-
-
土地
2025.10.23
-
-
- 1,200万円
-
宇都宮市板戸町
-
JR東北本線「岡本駅」まで徒歩79分
- 495.00m2
-
-
土地
2025.10.23
-
-
土地
2025.10.26
-
-
- 1,260万円
-
宇都宮市西の宮2丁目
-
JR東北本線「宇都宮駅」バス乗車22分 バス停「関東バス【西の宮団地中央】」まで徒歩3分
- 240.69m2
-
-
土地
2025.10.26
-
-
土地
2025.10.26
-
-
- 1,260万円
-
宇都宮市西の宮2丁目
-
JR東北本線「宇都宮駅」バス乗車22分 バス停「関東バス【西の宮団地中央】」まで徒歩3分
- 240.69m2
-
-
土地
2025.10.26
-
-
土地
2025.10.27
-
-
- 1,300万円
-
宇都宮市中里町
-
旧ユッピー中里まで徒歩5分
- 548.08m2
-
-
土地
2025.10.27
- 栃木県
マイページ物件数 - 6,618件
最近見た物件
-
-

-
- 事業用
- 600万円
-
福山市宮前町1丁目
-
JR山陽本線松永
-
-
-

-
- 土地
- 980万円
-
前橋市駒形町
-
JR両毛線駒形
-
-
-

-
- 土地
- 3,690万円
-
さいたま市北区日進町2丁目
-
JR川越線日進
-
栃木県土地新着物件
-
-

-
- 土地
- 1,540万円
-
宇都宮市宝木本町
-
JR東北本線宇都宮駅
-
-
-

-
- 土地
- 4,300万円
-
宇都宮市宝木町2丁目
-
東武宇都宮線東武宇都宮駅
-
-
-

-
- 土地
- 1,300万円
-
宇都宮市中里町
-
旧ユッピー中里
-
-
-

-
- 土地
- 395万円
-
宇都宮市上戸祭町
-
東武宇都宮線東武宇都宮駅
-
-
-

-
- 土地
- 3,600万円
-
宇都宮市石井町
-
JR東北本線宇都宮駅
-
-
-

-
- 土地
- 690万円
-
宇都宮市新里町
-
関東バスろまんちっく村
-
-
-

-
- 土地
- 1,260万円
-
宇都宮市西の宮2丁目
-
JR東北本線宇都宮駅
-
- お近くの店舗を探す
-
おすすめ物件
-
-

-
- 土地
- 1,500万円
-
小山市大字神鳥谷
-
JR東北本線小山
-
-
-

-
- 土地
- 750万円
-
河内郡上三川町大字西汗
-
関東バス【ゆうがお公園】
-
-
-

-
- 土地
- 690万円
-
鹿沼市磯町
-
JR日光線鹿沼
-
-
-

-
- 土地
- 2,100万円
-
宇都宮市西川田町
-
東武宇都宮線西川田
-
-
-

-
- 土地
- 1,180万円
-
宇都宮市宝木町2丁目
-
関東バス「山崎街道入口」
-
-
-

-
- 土地
- 680万円
-
宇都宮市上戸祭町
-
関東バス文星大学前
-
-
-

-
- 土地
- 1億1,700万円
-
宇都宮市下栗1丁目
-
湘南新宿ライン宇須宇都宮
-
-
-

-
- 土地
- 1億5,000万円
-
那須塩原市新町
-
JR東北本線黒磯
-
-
-

-
- 土地
- 3,500万円
-
宇都宮市東簗瀬1丁目
-
JR東北本線宇都宮
-
-
-

-
- 土地
- 851万円
-
宇都宮市江曽島1丁目
-
東武宇都宮線江曾島
-


